アプリで簡単 物件探し 通知 共有 アプリならではの機能を使ってみる
賃貸アパート

フォレストガーデン 健軍町駅 1LDK 賃貸(賃貸マンション・アパート)

情報提供元
アットホーム
フォレストガーデン
賃料 5.95万円  (管理費等:4000円)
礼金・敷金 なし / 1ヶ月 保証金/敷引・償却 なし / -
交通
所在地 熊本県上益城郡益城町大字惣領周辺地図
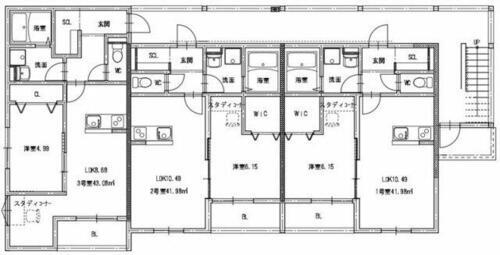
間取り 1LDK 専有面積 43.21m2
築年月 2025年9月 築年数 新築
おすすめポイント
二人入居可・角部屋・保証人不要/代行
お問い合わせ先
(株)COCOプランナーズ
お問い合わせ先
(株)COCOプランナーズ

詳細情報

賃料 5.95万円 管理費等 4000円
敷金 1ヶ月 礼金 なし
保証金 なし 敷引・償却 -
更新料 - 契約期間 2年
カード決済 -
所在地 熊本県上益城郡益城町大字惣領周辺地図
交通
  • 熊本市健軍線 健軍町駅 徒歩4.1km乗換案内
  • 熊本市健軍線 健軍交番前駅 徒歩4.5km乗換案内
  • 熊本市健軍線 動植物園入口駅 徒歩4.8km乗換案内
建物名 フォレストガーデン 
間取り 1LDK(洋6、LDK11.7) 築年月(築年数) 2025年9月 新築
専有面積 43.21㎡ 所在階/階数 1階/2階建
建物構造 木造  方位 南東 
現況 空  駐車場 有 4,400円
入居可能時期 即時 住宅保険 あり 2年 20000円
情報提供元 アットホーム[1161042616] 情報公開日
情報更新日 - 次回更新予定日 随時

設備など

2階以上 - 最上階 - 角部屋
駐車場(近隣含) エアコン付き バス・トイレ別
室内洗濯機置き場 追焚機能 オートロック付き -
モニタ付インターホン フローリング バルコニー
ガスコンロ可 浴室乾燥機 24時間セキュリティ -
宅配ボックス - ペット相談可 - 二人入居可
設備 エアコン・バルコニー・バス・トイレ別・トイレ・収納スペース・洗濯機置場・室内洗濯機置き場・洗面所・追焚機能・プロパンガス・フローリング・浴室乾燥機・ウォークインクローゼット・ガスコンロ可・温水洗浄便座・システムキッチン・カウンターキッチン・モニタ付インターホン・駐輪場・クローゼット・複層ガラス・オートバス・洗面所独立・コンロ2口以上・シューズボックス・インターネット対応・インターネット無料 
リフォーム履歴 -
リノベーション履歴 -
備考 室内設備はエアコン・システムキッチン・ネット使用料不要などが揃っているので、快適に過ごしやすいお部屋になります。浴室に追い焚き機能があるのでいつでも暖かいお風呂に入れます。お住まいにネットの回線を繋げましたので暮らしに役立ちます。新築のアパートです。どういった生活を送りたいか。それも住まい選びでは必要な要素です。新しい住まいでの快適な生活を、当社スタッフがお手伝い致します。上益城郡益城町エリアでの住まいなら、住み心地も快適な「フォレストガーデン」はいかがでしょうか。室内設備は浴室乾燥機・洗面所独立などが揃っており、とても充実しています。賃料が月5.95万円の物件です。駐輪場付きの物件です。利便性の高い暮らしをするなら上益城郡益城町でいかがでしょうか。賃貸住宅情報をお探しの際には、ぜひお気軽に当社までご連絡下さい。しっかりとサポート致します。・賃貸保証等:加入要(要加入:10,000円/入居時、以降は月額賃料の1%/毎月(入居期間中))・管理形態/管理員の勤務形態:不在・駐輪場:有 
特記事項 二人入居可・角部屋・保証人不要/代行

省エネ性能

エネルギー消費性能 -
断熱性能 -
目安光熱費 -

熊本県上益城郡益城町大字惣領 周辺地図情報

地図
※地図上に表示される物件の位置は付近住所に所在することを表すものであり、実際の物件所在地とは異なる場合がございます。
   正確な物件所在地は、取扱い不動産会社にお問い合わせください。
お問い合わせ先
(株)COCOプランナーズ

不動産会社情報

お問い合わせ先 商号:(株)COCOプランナーズ
免許番号:熊本県知事免許(3)第4996号
所在地:熊本市中央区帯山3丁目7-31
TEL:096-383-4445
取引態様:仲介
管理コード:413060000299085
所属協会など:(公社)熊本県宅地建物取引業協会会員、(一社)九州不動産公正取引協議会加盟
共有する
QRコード
お問い合わせ先
(株)COCOプランナーズ
    OCN×ドコモ光新規お申込みで合計最大137,280円相当おトク!特典の内訳・適用条件など詳細はこちら

    他のエリアから探す

    上益城郡益城町の詳細地域から賃貸物件を探す

    大字木山大字古閑大字惣領大字辻の城大字寺迫大字広崎大字福富大字馬水大字宮園大字安永

    近辺の市区から探す

    熊本市中央区熊本市東区合志市菊池郡大津町菊池郡菊陽町阿蘇郡西原村上益城郡御船町上益城郡嘉島町

    周辺の駅から探す

    熊本市健軍線
    神水交差点健軍校前動植物園入口健軍交番前健軍町

    熊本県上益城郡益城町で他のジャンルから探す


    掲載情報の著作権は提供元企業等に帰属します。
    Copyright:(C) 2025 At Home Co.,Ltd
    アプリで簡単 物件探し 大手不動産サイトの情報から一括検!プッシュ通知で物件を見逃さない
    App Storeからダウンロード Google Playで手に入れよう QRコード