アプリで簡単 物件探し 通知 共有 アプリならではの機能を使ってみる
中古マンション

サンデュエル中倉 6階 3LDK

情報提供元
SUUMO
サンデュエル中倉 外観写真
価格 2380万円  (管理費等:9600円/月(委託(通勤)))
修繕積立金 20,500円
交通
所在地 宮城県仙台市若林区中倉2周辺地図
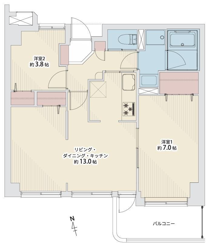
間取り 3LDK 専有面積 75.83m2(22.93坪)(壁芯)
所在階/階数 6階/9階建 方位
築年月 2004年11月 築年数 築21年
おすすめポイント
-物件のおすすめポイント-▼立地・仙台市地下鉄東西線「薬師堂」駅 徒歩15分▼特徴・家族が集うLDKは約15帖、和室約6帖が隣接・お料理中も会話を楽しめる対面式キッチン、パントリー付・WIC等、全居室に収納スペース有・バルコニーはトランクルームとスロップシンク付・ペット飼育可能(細則有)▼周辺環境・スーパー「サトー商会南小泉店」徒歩5分(約380m)・ツルハドラッグ仙台南小泉店 徒歩5分(約370m)・仙台市立大和小学校 徒歩8分(約580m)■ ご希望の住まい探しをお手伝いします ━━━━━・・・物件の詳細・ご相談はお気軽にお問い合わせください。
ペット相談可・管理人日勤
お問い合わせ先
三井のリハウス仙台駅東口センター三井不動産リアルティ東北(株)
物件を見たい、物件や住環境の詳しい情報やローン相談など、
お問い合わせ先
三井のリハウス仙台駅東口センター三井不動産リアルティ東北(株)

詳細情報

価格 2380万円 管理費等 9600円/月(委託(通勤))
駐車場 敷地内(1000円~1万2000円/月) 修繕積立金 20,500円
所在地 宮城県仙台市若林区中倉2周辺地図
交通
  • 仙台市地下鉄東西線 薬師堂駅 徒歩15分乗換案内
物件名 サンデュエル中倉
築年月(築年数) 2004年11月(築21年) 間取り 3LDK
総戸数 64戸 専有面積 75.83m2(22.93坪)(壁芯)
所在階/階数 6階/9階建 バルコニー面積 13.32m2
方位 建物構造 RC
管理形態 委託管理
維持費等 土地権利 所有権
用途地域 1種住居 借地期間・地代
現況 引渡可能年月 相談
情報提供元 SUUMO [020Z77393466] 情報公開日
情報更新日 次回更新予定日 随時

設備など

ペット相談可 即入居可 - 南向き
角部屋 - 駐車場空き有り トランクルーム -
オートロック - 宅配ボックス - 浴室乾燥機
床暖房 - ウォークインクローゼット - 管理人常駐 -
最上階 - 2階以上 タワーマンション -
設備 バルコニー・収納スペース・洗面所・エレベーター・管理人日勤・浴室乾燥機・シャンプードレッサ・風呂・対面K・衣類乾燥機
リフォーム履歴 -
リノベーション履歴 -
備考 <物件名>サンデュエル中倉/<駐車場>敷地内/委託(日勤)/<土地権利>所有権/<間取り>3LDK/<特徴>■三井のリハウス■6階部分、南向き住戸スーパーまで徒歩5分の住環境、スーパー 徒歩10分以内・市街地が近い・南向き・浴室乾燥機・全居室収納
販売戸数:1戸/管理費等帯:9600円/修繕積立金帯:20500円
特記事項 ペット相談可・管理人日勤

省エネ性能

エネルギー消費性能 -
断熱性能 -
目安光熱費 -

宮城県仙台市若林区中倉2 周辺地図情報

地図
※地図上に表示される物件の位置は付近住所に所在することを表すものであり、実際の物件所在地とは異なる場合がございます。
   正確な物件所在地は、取扱い不動産会社にお問い合わせください。
物件を見たい、物件や住環境の詳しい情報やローン相談など、
お問い合わせ先
三井のリハウス仙台駅東口センター三井不動産リアルティ東北(株)

不動産会社情報

お問い合わせ先 商号:三井のリハウス仙台駅東口センター三井不動産リアルティ東北(株)
免許番号:宮城県知事(8)第003998号
所在地:宮城県仙台市宮城野区榴岡4-5-22 宮城野センタービル1階
TEL:00786-01794359
取引態様:専任媒介
管理コード:FSBADA0B
共有する
QRコード
物件を見たい、物件や住環境の詳しい情報やローン相談など、
お問い合わせ先
三井のリハウス仙台駅東口センター三井不動産リアルティ東北(株)

仙台市若林区の暮らしデータ

人口などの統計情報

世帯数 524651世帯
人口総数 1066362人
転入者数 65750人
転入率(人口1000人当たり)
61.66人
転出者数 62390人
転出率(人口1000人当たり)
58.51人
土地平均価格
住宅地
139213円/m2
商業地
638309円/m2

結婚・育児の助成金

子育て関連の独自の取り組み 子育て家庭にやさしい取組みや子どもの遊び場を提供し、子ども・子育てを応援する店舗や施設を「せんだいのびすくサポーター」として募集し、子育て情報サイト「せんだいのびすくナビ」を通じてその情報を子育て家庭に発信している。男性従業員が一定期間以上の育児休業を取得した市内企業等に奨励金を支給する(2024年7月中より申請受付開始)。
出産祝い あり
公立保育所数 32所(うち0歳児保育を実施している保育所:32所)
私立保育所数 110所(うち0歳児保育を実施している保育所:110所)
保育所入所待機児童数 0人
認定こども園数 120園 預かり保育実施園数 公立:0園 私立:57園
学校給食 【小学校】完全給食【中学校】完全給食
公立中学校の学校選択制 一部実施
子ども・学生等医療費助成<通院>対象年齢 中学校卒業まで 子ども・学生等医療費助成<入院>対象年齢 中学校卒業まで

仙台市若林区の治安・ごみ収集情報

公共料金・インフラ

ガス料金(22m3使用した場合の月額) 仙台市4867円
水道料金(口径20mmで20m3の月額) 仙台市4290円
下水道料金(20m3を使用した場合の月額) 仙台市1917円
下水道普及率 98.7%

安心・安全

建物火災出火件数 153件
人口10000人当たり
1.40件
刑法犯認知件数 6087件
人口1000人当たり
5.55件
ハザード・防災マップ あり

医療

一般病院総数 47ヶ所
一般診療所総数 950ヶ所
小児科医師数 289人
小児人口10000人当たり
23.24人
産婦人科医師数 115人
15~49歳女性人口1万人当たり
5.01人
介護保険料基準額(月額) 6079円

ごみ

家庭ごみ収集(可燃ごみ) 有料
備考
指定ごみ袋有料。一般廃棄物処理手数料として徴収。
家庭ごみの分別方式 4分別8種〔家庭ごみ 紙類(新聞・折込チラシ、段ボール、紙パック、雑誌・雑がみ) プラスチック資源 缶・びん・ペットボトル・廃乾電池類等〕 拠点回収:使用済小型家電 使用済食用油 布類
家庭ごみの戸別収集 未実施
粗大ごみ収集 あり
備考
有料。戸別収集。事前申込制。
生ごみ処理機助成金制度 あり
上限金額
30000円
上限比率
60.0%

仙台市若林区の住まいの給付金

中古購入

利子補給制度 なし
補助/助成金制度 あり
上限金額
25万円
備考
市内に一定の要件を満たす新築または中古の一戸建ての住宅を取得された、夫婦ともに39歳以下の世帯や、小学生以下の子供がいる世帯の方々に対し、最大25万円(基礎額20万円、親世帯との同居・近居や多子の場合の加算額5万円)を助成。あわせて、助成の翌年度から3年間、1年あたり1万円(経費込み)相当、お米の配送や交通費により支援。

増築・改築・改修

利子補給制度 なし
補助/助成金制度 あり
上限金額
(1)100万円(2)10万円
備考
(1)【戸建木造住宅耐震改修工事補助金】1981年5月31日以前に建築確認を受けて着工した戸建木造住宅が対象。仙台市の耐震診断対象の結果、耐震改修の必要があるとされた住宅に対して、耐震改修工事費の4/5かつ上限100万円を補助する。他要件あり。(2)【戸建木造住宅耐震改修工事促進補助金】上記の耐震改修工事と併せて10万円以上のリフォーム工事を行うものは、上記の補助金に最大10万円を補助。
暮らしデータ提供元:生活ガイド.com
※行政機関により公表していない地域及びデータがございます。東京23区以外の政令指定都市は、市全体のデータとして表示しています。
※提供データには細心の注意を払っておりますが、調査後に変更がある場合があります。 最新の情報につきましては各市区役所までお問い合わせいただくか、自治体HPなどをご確認ください。

この物件を見た人はこんな物件も見ています

OCN×ドコモ光新規お申込みで合計最大137,280円相当おトク!特典の内訳・適用条件など詳細はこちら

仙台市若林区内の各駅の住みやすさ

他のエリアから探す

仙台市若林区の詳細地域から中古マンション物件を探す

荒井荒町石名坂五橋一本杉町沖野表柴田町卸町蒲町東河原町木ノ下三百人町新寺土樋遠見塚中倉成田町東八番丁古城南小泉大和町連坊小路六丁の目中町六丁の目南町若林

近辺の市区から探す

仙台市青葉区仙台市宮城野区仙台市太白区仙台市泉区名取市多賀城市宮城郡利府町

周辺の駅から探す

仙台市地下鉄東西線
青葉通一番町仙台宮城野通連坊薬師堂卸町六丁の目荒井

マンションライブラリーを見る

サンデュエル中倉

住宅ローンの返済額一覧

物件価格 2380万円に対して、年率 で、頭金 の場合
↓ボーナス 35年間 30年間 25年間 20年間 15年間 10年間
0万円 48,802円/月 56,247円/月 66,677円/月 82,331円/月 108,431円/月 160,648円/月
5万円 39,716円/月 47,271円/月 57,811円/月 73,572円/月 99,780円/月 152,103円/月
10万円 30,631円/月 38,296円/月 48,944円/月 64,814円/月 91,128円/月 143,558円/月
15万円 ローン不可 29,320円/月 40,077円/月 56,055円/月 82,477円/月 135,013円/月
20万円 ローン不可 ローン不可 ローン不可 47,296円/月 73,825円/月 126,468円/月
25万円 ローン不可 ローン不可 ローン不可 ローン不可 65,174円/月 117,922円/月
30万円 ローン不可 ローン不可 ローン不可 ローン不可 56,522円/月 109,377円/月
支払い利息合計 1,704,050円~ 1,458,280円~ 1,210,950円~ 967,680円~ 726,910円~ 483,980円~
※元利均等返済方式で試算しています。 「円」の単位以下の端数金額は「切り捨て」として計算しております。
※金利は、固定金利として計算しております。
※上記の住宅ローン返済額一覧は、あくまで試算であり、将来の金利動向により、実際のご返済額とは異なります。
※ボーナス支払総額が総支払額の50%を超えている場合、上記の表では「ローン不可」となります。
※住宅ローン返済額一覧の数値は、住宅ローンのお申し込みやご融資をお約束するものではございません。
物件を見たい、物件や住環境の詳しい情報やローン相談など、
お問い合わせ先
三井のリハウス仙台駅東口センター三井不動産リアルティ東北(株)

掲載情報の著作権は提供元企業等に帰属します。
Copyright:(C) 2025 Recruit Co., Ltd.
アプリで簡単 物件探し 大手不動産サイトの情報から一括検!プッシュ通知で物件を見逃さない
App Storeからダウンロード Google Playで手に入れよう QRコード