アプリで簡単 物件探し 通知 共有 アプリならではの機能を使ってみる
中古住宅

神奈川県綾瀬市寺尾南3 さがみ野駅 中古一戸建て・中古住宅

情報提供元
SUUMO
神奈川県綾瀬市寺尾南3 さがみ野駅 中古一戸建て・中古住宅
価格 3900万円
交通
所在地 神奈川県綾瀬市寺尾南3周辺地図
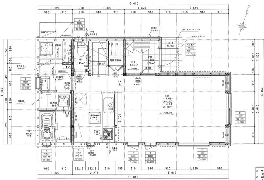
間取り 3SLDK
建物面積 97.7m2(登記) 土地面積 110.7m2(登記)
築年月 2021年10月 築年数 築4年1ヶ月
おすすめポイント
バリアフリー・駐車場2台分・オール電化・設計住宅性能評価取得・浴室1坪以上・インスペクション済・瑕疵保険(国交省指定法人)・フラット35S適合
物件を見たい、物件や住環境の詳しい情報やローン相談など、
お問い合わせ先
(株)Vie house

詳細情報

価格 3900万円
所在地 神奈川県綾瀬市寺尾南3周辺地図
交通
間取り 3SLDK 築年月(築年数) 2021年10月(築4年1ヶ月)
建物面積 97.7m2(登記) 建物構造・規模 木造2階建
土地面積 110.7m2(登記) 土地権利 所有権
私道面積 借地期間・地代
接道状況 東6m接面8.2m 駐車場
用途地域 都市計画
建ぺい率/容積率 60%/100% 現況
地目 引渡可能時期 相談
情報提供元 SUUMO [030Z77182633] 情報公開日
情報更新日 次回更新予定日 随時

設備など

1種低層地域 - 即入居可 - 売主・代理 -
駐車2台以上 平屋 - 本下水
都市ガス - カウンターキッチン - 床暖房 -
ウォークインクローゼット - バリアフリー
設備 バルコニー・トイレ・収納スペース・洗面所・シャンプードレッサ・温水洗浄便座・システムキッチン・風呂・LPガス・対面K・トイレ2ヶ所・床下収納・IHクッキングヒータ・上水道・本下水・駐車場2台分・フローリング・太陽光システム・省エネ給湯器
リフォーム履歴 -
リノベーション履歴 -
備考 <物件名>寺尾南3(さがみ野駅) 3900万円/<駐車場>カースペース/<土地権利>所有権/<間取り>3LDK+3S(納戸)/<特徴>設計住宅性能評価書・建築確認完了検査済証・BELS/省エネ基準適合認定書あり・瑕疵保険(国交省指定)保証付・フラット35・S適合証明書
建築確認:有/NO.第20UDIIS建09628号
販売戸数:1戸
特記事項 バリアフリー・駐車場2台分・オール電化・設計住宅性能評価取得・浴室1坪以上・インスペクション済・瑕疵保険(国交省指定法人)・フラット35S適合

省エネ性能

エネルギー消費性能 ★★★★★(削減率40%達成)
断熱性能 6段階/7段階中
目安光熱費 -

神奈川県綾瀬市寺尾南3 周辺地図情報

地図
※地図上に表示される物件の位置は付近住所に所在することを表すものであり、実際の物件所在地とは異なる場合がございます。
   正確な物件所在地は、取扱い不動産会社にお問い合わせください。
物件を見たい、物件や住環境の詳しい情報やローン相談など、
お問い合わせ先
(株)Vie house

不動産会社情報

お問い合わせ先 商号:(株)Vie house
免許番号:埼玉県知事(2)第023118号
所在地:埼玉県大里郡寄居町大字用土3119
TEL:048-584-7779
取引態様:専属専任媒介
共有する
QRコード
物件を見たい、物件や住環境の詳しい情報やローン相談など、
お問い合わせ先
(株)Vie house

綾瀬市の暮らしデータ

人口などの統計情報

世帯数 34760世帯
人口総数 84100人
転入者数 3969人
転入率(人口1000人当たり)
47.19人
転出者数 3627人
転出率(人口1000人当たり)
43.13人
土地平均価格
住宅地
117417円/m2
商業地
158000円/m2

結婚・育児の助成金

子育て関連の独自の取り組み (1)子育て講座。(2)幼児同乗用自転車購入費補助事業。(3)ひとり親家庭等高等学校在学児童交通費等給付事業。(4)養育費確保支援事業。(5)おたふくかぜワクチン予防接種費用助成事業。
出産祝い なし
公立保育所数 2所(うち0歳児保育を実施している保育所:2所)
私立保育所数 8所(うち0歳児保育を実施している保育所:8所)
保育所入所待機児童数 9人
認定こども園数 2園 預かり保育実施園数 公立:- 私立:8園
学校給食 【小学校】完全給食【中学校】完全給食
公立中学校の学校選択制 一部実施(一部区域については地理的環境による調整を認めている)
子ども・学生等医療費助成<通院>対象年齢 18歳3月末まで 子ども・学生等医療費助成<入院>対象年齢 18歳3月末まで

綾瀬市の治安・ごみ収集情報

公共料金・インフラ

ガス料金(22m3使用した場合の月額) 東京瓦斯株式会社(東京地区等)3926円
水道料金(口径20mmで20m3の月額) 神奈川県営水道2509円
下水道料金(20m3を使用した場合の月額) 綾瀬市2470円
下水道普及率 94.5%

安心・安全

建物火災出火件数 11件
人口10000人当たり
1.31件
刑法犯認知件数 430件
人口1000人当たり
5.12件
ハザード・防災マップ あり

医療

一般病院総数 1ヶ所
一般診療所総数 30ヶ所
小児科医師数 9人
小児人口10000人当たり
8.67人
産婦人科医師数 3人
15~49歳女性人口1万人当たり
1.91人
介護保険料基準額(月額) 5693円

ごみ

家庭ごみ収集(可燃ごみ) 無料
備考
-
家庭ごみの分別方式 4分別21種〔可燃ごみ 資源物(資源となる紙、新聞、雑誌、ダンボール、廃食用油、アルミ、スチール缶、小型家電・金属類、生きびん、透明のびん、茶のびん、その他のびん、牛乳パック、スプレー缶、布類、ペットボトル、蛍光灯、電池) 無価物 プラスチック〕
家庭ごみの戸別収集 一部実施(高齢者や障がい者でごみ出しの困難な世帯が対象)
粗大ごみ収集 あり
備考
有料。戸別収集(700円/セット)。直接持込(300円/セット)。
生ごみ処理機助成金制度 あり
上限金額
50000円
上限比率
90.0%

綾瀬市の住まいの給付金

中古購入

利子補給制度 なし
補助/助成金制度 なし

増築・改築・改修

利子補給制度 なし
補助/助成金制度 あり
上限金額
(1)4万円(2)8万円(3)100万円(4)6万円(5)18万円
備考
※1981年5月31以前に建築確認を受け、工事着手した木造住宅が対象。他要件あり。(1)【耐震診断費補助】診断費用の2/3で上限4万円を補助。(2)【耐震設計費補助】設計費用の2/3で上限8万円を補助。(3)【耐震改修費補助】工事費用の2/3で上限100万円を補助。(4)【工事監理費補助】監理費用の2/3で上限6万円を補助。(5)【耐震シェルター又は防災ベッド設置費補助】耐震シェルター又は防災ベッド設置費用の2/3で上限18万円を補助。
暮らしデータ提供元:生活ガイド.com
※行政機関により公表していない地域及びデータがございます。東京23区以外の政令指定都市は、市全体のデータとして表示しています。
※提供データには細心の注意を払っておりますが、調査後に変更がある場合があります。 最新の情報につきましては各市区役所までお問い合わせいただくか、自治体HPなどをご確認ください。

この物件を見た人はこんな物件も見ています

OCN×ドコモ光新規お申込みで合計最大137,280円相当おトク!特典の内訳・適用条件など詳細はこちら

住宅ローンの返済額一覧

物件価格 3900万円に対して、年率 で、頭金 の場合
↓ボーナス 35年間 30年間 25年間 20年間 15年間 10年間
0万円 88,259円/月 101,724円/月 120,587円/月 148,897円/月 196,100円/月 290,534円/月
5万円 79,173円/月 92,748円/月 111,721円/月 140,138円/月 187,448円/月 281,989円/月
10万円 70,088円/月 83,773円/月 102,854円/月 131,380円/月 178,797円/月 273,444円/月
15万円 61,002円/月 74,797円/月 93,987円/月 122,621円/月 170,145円/月 264,899円/月
20万円 51,917円/月 65,821円/月 85,120円/月 113,862円/月 161,494円/月 256,354円/月
25万円 ローン不可 56,846円/月 76,254円/月 105,104円/月 152,842円/月 247,809円/月
30万円 ローン不可 ローン不可 67,387円/月 96,345円/月 144,191円/月 239,263円/月
支払い利息合計 3,083,270円~ 2,636,360円~ 2,191,800円~ 1,747,760円~ 1,307,330円~ 870,300円~
※元利均等返済方式で試算しています。 「円」の単位以下の端数金額は「切り捨て」として計算しております。
※金利は、固定金利として計算しております。
※上記の住宅ローン返済額一覧は、あくまで試算であり、将来の金利動向により、実際のご返済額とは異なります。
※ボーナス支払総額が総支払額の50%を超えている場合、上記の表では「ローン不可」となります。
※住宅ローン返済額一覧の数値は、住宅ローンのお申し込みやご融資をお約束するものではございません。
物件を見たい、物件や住環境の詳しい情報やローン相談など、
お問い合わせ先
(株)Vie house

掲載情報の著作権は提供元企業等に帰属します。
Copyright:(C) 2025 Recruit Co., Ltd.
アプリで簡単 物件探し 大手不動産サイトの情報から一括検!プッシュ通知で物件を見逃さない
App Storeからダウンロード Google Playで手に入れよう QRコード