アプリで簡単 物件探し 通知 共有 アプリならではの機能を使ってみる
中古住宅

神奈川県相模原市緑区下九沢 橋本駅 中古一戸建て・中古住宅

情報提供元
SUUMO
神奈川県相模原市緑区下九沢 橋本駅 中古一戸建て・中古住宅
価格 2580万円
交通
所在地 神奈川県相模原市緑区下九沢周辺地図
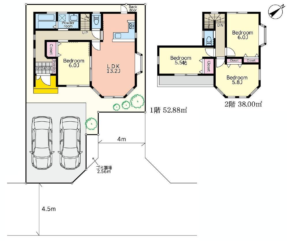
間取り 4LDK
建物面積 90.88m2(登記) 土地面積 120.7m2(登記)
築年月 2001年5月 築年数 築24年6ヶ月
おすすめポイント
☆宅地建物取引士がご案内いたします東亜住宅ではお客様が安心して頂けますよう常に新しい事を取り入れております。経験豊富な知識でお客様の悩み事をしっかりと解消いたします。☆お客様に合わせます「仕事や育児が忙しくて物件を見に行く時間ない」「夫婦間で予定が合ない」奥様、ご主人様で日時をずらしてご案内することも可能です。☆住宅ローンはお任せください「転職したばかり」「借入れがある」「過去に審査が通らなかった」「通るか心配」内容お伺いさせて頂ければ、しっかりとご提案いたします。土日に限らず平日、営業時間外でもご対応可能です。お住まい探しは(株)東亜住宅にお任せください!
日当り良好・駐車場2台分・角地・浴室1坪以上
物件を見たい、物件や住環境の詳しい情報やローン相談など、
お問い合わせ先
(株)東亜住宅

詳細情報

価格 2580万円
所在地 神奈川県相模原市緑区下九沢周辺地図
交通
  • 京王相模原線 橋本駅 バス9分/「上中の原団地」バス停 停歩5分乗換案内
間取り 4LDK 築年月(築年数) 2001年5月(築24年6ヶ月)
建物面積 90.88m2(登記) 建物構造・規模 木造2階建
土地面積 120.7m2(登記) 土地権利 所有権
私道面積 借地期間・地代
接道状況 南東4.5m 二方道路 駐車場
用途地域 1種中高 都市計画
建ぺい率/容積率 60%/150% 現況
地目 引渡可能時期 即時
情報提供元 SUUMO [030Z78496574] 情報公開日
情報更新日 次回更新予定日 随時

設備など

1種低層地域 - 即入居可 売主・代理 -
駐車2台以上 平屋 - 本下水
都市ガス - カウンターキッチン - 床暖房 -
ウォークインクローゼット - バリアフリー -
設備 収納スペース・浴室乾燥機・システムキッチン・風呂・LPガス・対面K・トイレ2ヶ所・浄水器・衣類乾燥機・食器洗浄乾燥機・上水道・本下水・駐車場2台分・リフォーム・フローリング・リノベーション
リフォーム履歴 2025年6月完了
 水回り設備交換:キッチン・浴室・トイレ
 内装リフォーム:壁・床・全室
2025年6月完了
 その他リフォーム:バルコニー防水工事
※年月は一番古いリフォーム箇所を表します
リノベーション履歴 -
備考 <物件名>下九沢 2580万円/<駐車場>カースペース/<土地権利>所有権/<間取り>4LDK/<リフォーム>●リフォーム:2025年6月完了(水回り設備交換:キッチン・浴室・トイレ、内装リフォーム:壁・床・全室)、2025年6月完了(その他リフォーム:バルコニー防水工事)※年月は一番古いリフォーム箇所を表します/<特徴>デザイナーズリノベーション♪見学予約は【0120-60-1665】まで♪、駐車2台可・即引渡可・スーパー 徒歩10分以内・内外装リフォーム・内装リフォーム
販売戸数:1戸
特記事項 日当り良好・駐車場2台分・角地・浴室1坪以上

省エネ性能

エネルギー消費性能 -
断熱性能 -
目安光熱費 -

神奈川県相模原市緑区下九沢 周辺地図情報

地図
※地図上に表示される物件の位置は付近住所に所在することを表すものであり、実際の物件所在地とは異なる場合がございます。
   正確な物件所在地は、取扱い不動産会社にお問い合わせください。
物件を見たい、物件や住環境の詳しい情報やローン相談など、
お問い合わせ先
(株)東亜住宅

不動産会社情報

お問い合わせ先 商号:(株)東亜住宅
免許番号:神奈川県知事(1)第031951号
所在地:神奈川県相模原市緑区東橋本1-22-1 アイビースクエアB1階
TEL:0120-601665
取引態様:媒介
共有する
QRコード
物件を見たい、物件や住環境の詳しい情報やローン相談など、
お問い合わせ先
(株)東亜住宅

相模原市緑区の暮らしデータ

人口などの統計情報

世帯数 332249世帯
人口総数 717861人
転入者数 35065人
転入率(人口1000人当たり)
48.85人
転出者数 31817人
転出率(人口1000人当たり)
44.32人
土地平均価格
住宅地
158342円/m2
商業地
275407円/m2

結婚・育児の助成金

子育て関連の独自の取り組み (1)妊婦健診(16回助成)。(2)電子母子健康手帳アプリ(「さがプリコ」)。(3)さがみはら子育てきずなLINE(メールマガジン)。(4)新生児聴覚検査事業。(5)ふれあい親子サロン育児相談、身体計測、栄養相談、親子あそび等。(6)ブックスタート・セカンドブック事業(4ヶ月児、2歳6ヶ月児親子に絵本をプレゼント)。(7)産婦等を対象とした家事の支援を行う訪問支援事業(2022年10月から)。(8)移動式子どもの遊び場。(9)子育て世帯等中古住宅購入・改修費補助事業(子育て世帯や若年世帯が中古住宅を購入する場合や親世帯との同居に伴い親世帯が所有する住宅の改修を行った場合に補助金を支給)。(10)さがみはら休日一時保育事業。(11)子どもの施設使用料等の無料化。
出産祝い なし
公立保育所数 22所(うち0歳児保育を実施している保育所:17所)
私立保育所数 72所(うち0歳児保育を実施している保育所:72所)
保育所入所待機児童数 7人
認定こども園数 74園 預かり保育実施園数 公立:- 私立:17園
学校給食 【小学校】完全給食【中学校】完全給食 家庭弁当等との選択制/デリバリー形式[運搬:ランチボックス、内容:完全給食]
公立中学校の学校選択制 一部実施(学校選択制の分類の一つである「特定地域選択制」に相当する「指定変更許可区域」を導入)
子ども・学生等医療費助成<通院>対象年齢 18歳3月末まで 子ども・学生等医療費助成<入院>対象年齢 18歳3月末まで

相模原市緑区の治安・ごみ収集情報

公共料金・インフラ

ガス料金(22m3使用した場合の月額) 東京瓦斯株式会社(東京地区等)3926円
日本瓦斯株式会社(もえぎ野地区)6358円
水道料金(口径20mmで20m3の月額) 相模原市(牧野中央 簡易水道)2685円
相模原市(葛原 簡易水道)2685円
相模原市(青根 簡易水道)1760円
神奈川県営水道2988円
下水道料金(20m3を使用した場合の月額) 相模原市2036円
下水道普及率 97.5%

安心・安全

建物火災出火件数 98件
人口10000人当たり
1.35件
刑法犯認知件数 4250件
人口1000人当たり
5.86件
ハザード・防災マップ あり

医療

一般病院総数 32ヶ所
一般診療所総数 453ヶ所
小児科医師数 135人
小児人口10000人当たり
17.05人
産婦人科医師数 62人
15~49歳女性人口1万人当たり
4.44人
介護保険料基準額(月額) 6650円

ごみ

家庭ごみ収集(可燃ごみ) 無料
備考
一時多量ごみ等の清掃工場に直接持ち込まれた家庭ごみについては有料。
家庭ごみの分別方式 3分別15種〔一般ごみ 乾電池 資源(びん類、かん類、金物類、布類、蛍光管・水銀体温計、使用済食用油、紙類[新聞、雑誌・雑がみ、段ボール、紙パック、紙製容器包装]、容器包装プラ[プラ製容器包装、ペットボトル])〕 拠点回収:使用済小型家電
家庭ごみの戸別収集 一部実施(相模原市の主要駅9駅の周辺において、夜間戸別収集を実施。[小田急相模原駅、上溝駅、相模大野駅、相模原駅、相武台前駅、橋本駅、東林間駅、淵野辺駅、矢部駅])
粗大ごみ収集 あり
備考
有料。事前申込制。
生ごみ処理機助成金制度 あり
上限金額
20000円
上限比率
50.0%

相模原市緑区の住まいの給付金

中古購入

利子補給制度 あり
上限金額
(年額)33.18万円
備考
【勤労者住宅資金利子補給金】借入金の利子補給金を交付。補給対象借入額の上限は600万円、貸付利率の上限は年3%。補給期間は償還開始月から24ヶ月間。その他条件あり。
補助/助成金制度 なし

増築・改築・改修

利子補給制度 あり
上限金額
(1)(年額)33.18万円
備考
(1)【勤労者住宅資金利子補給金】借入金の利子補給金を交付。補給対象借入額の上限は600万円、貸付利率の上限は年3%。補給期間は償還開始月から24ヶ月間。その他条件あり。(2)【耐震・防火構造改修工事費用融資制度利子補給】旧耐震基準(1981年5月31日以前建築)の戸建住宅を改修する際の借入金の利子補給金を交付。利子補給率は年2.2%、他要件あり。
補助/助成金制度 あり
上限金額
125万円
備考
【相模原市戸建住宅耐震診断等補助制度】(a)戸建住宅耐震診断費用補助:上限12万円。(b)戸建住宅耐震改修計画作成費用補助:かかる費用の2/3以内、上限12万円。(c)戸建住宅耐震改修工事費用補助:耐震改修工事費用の1/2以内、上限80万円。建築士立会い費用の1/2以内、上限6万円。高齢者世帯等は上限25万円加算。(d)戸建住宅耐震改修計画・工事一括補助:耐震改修計画及び工事を一括で行う場合の費用の1/2以内、上限100万円。高齢者世帯等は上限25万円加算。
暮らしデータ提供元:生活ガイド.com
※行政機関により公表していない地域及びデータがございます。東京23区以外の政令指定都市は、市全体のデータとして表示しています。
※提供データには細心の注意を払っておりますが、調査後に変更がある場合があります。 最新の情報につきましては各市区役所までお問い合わせいただくか、自治体HPなどをご確認ください。

この物件を見た人はこんな物件も見ています

OCN×ドコモ光新規お申込みで合計最大137,280円相当おトク!特典の内訳・適用条件など詳細はこちら

相模原市緑区内の各駅の住みやすさ

住宅ローンの返済額一覧

物件価格 2580万円に対して、年率 で、頭金 の場合
↓ボーナス 35年間 30年間 25年間 20年間 15年間 10年間
0万円 53,993円/月 62,231円/月 73,771円/月 91,090円/月 119,967円/月 177,738円/月
5万円 44,908円/月 53,255円/月 64,904円/月 82,331円/月 111,315円/月 169,193円/月
10万円 35,822円/月 44,280円/月 56,037円/月 73,572円/月 102,664円/月 160,648円/月
15万円 ローン不可 35,304円/月 47,171円/月 64,814円/月 94,012円/月 152,103円/月
20万円 ローン不可 ローン不可 38,304円/月 56,055円/月 85,361円/月 143,558円/月
25万円 ローン不可 ローン不可 ローン不可 47,296円/月 76,709円/月 135,013円/月
30万円 ローン不可 ローン不可 ローン不可 ローン不可 68,058円/月 126,468円/月
支払い利息合計 1,884,270円~ 1,612,520円~ 1,341,650円~ 1,071,840円~ 803,390円~ 534,900円~
※元利均等返済方式で試算しています。 「円」の単位以下の端数金額は「切り捨て」として計算しております。
※金利は、固定金利として計算しております。
※上記の住宅ローン返済額一覧は、あくまで試算であり、将来の金利動向により、実際のご返済額とは異なります。
※ボーナス支払総額が総支払額の50%を超えている場合、上記の表では「ローン不可」となります。
※住宅ローン返済額一覧の数値は、住宅ローンのお申し込みやご融資をお約束するものではございません。
物件を見たい、物件や住環境の詳しい情報やローン相談など、
お問い合わせ先
(株)東亜住宅

掲載情報の著作権は提供元企業等に帰属します。
Copyright:(C) 2025 Recruit Co., Ltd.
アプリで簡単 物件探し 大手不動産サイトの情報から一括検!プッシュ通知で物件を見逃さない
App Storeからダウンロード Google Playで手に入れよう QRコード