アプリで簡単 物件探し 通知 共有 アプリならではの機能を使ってみる
中古住宅

千葉県長生郡白子町古所 中古一戸建て・中古住宅

情報提供元
SUUMO
千葉県長生郡白子町古所 中古一戸建て・中古住宅
価格 1150万円
交通
  • JR外房線「八積」8.8Km
所在地 千葉県長生郡白子町古所周辺地図
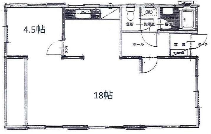
間取り 1LDK
建物面積 57.55m2(17.40坪)(登記) 土地面積 282.15m2(85.34坪)(登記)
築年月 1994年7月 築年数 築31年5ヶ月
おすすめポイント
・周辺田園風景の広がる長閑な環境です。・3方向角地に位置し、陽当たり良好です。・建物は、平成6年7月築の1LDKです。・令和7年6月内外装リフォーム済みで綺麗です。・海まで車で約3分。
日当り良好・閑静な住宅街・バリアフリー・駐車場2台分・リゾート向き・角地・整形地
物件を見たい、物件や住環境の詳しい情報やローン相談など、
お問い合わせ先
松屋地所(株)

詳細情報

価格 1150万円
所在地 千葉県長生郡白子町古所周辺地図
交通
  • JR外房線「八積」8.8Km
間取り 1LDK 築年月(築年数) 1994年7月(築31年5ヶ月)
建物面積 57.55m2(17.40坪)(登記) 建物構造・規模 木造平屋建て
土地面積 282.15m2(85.34坪)(登記) 土地権利 所有権
私道面積 借地期間・地代
接道状況 南西7.6m接面21m 南東5.2m接面13.6m 北東4m接面18.9m 二方道路 駐車場
用途地域 2種住居 都市計画
建ぺい率/容積率 60%/200% 現況
地目 引渡可能時期 即時
情報提供元 SUUMO [030Z77933572] 情報公開日
情報更新日 次回更新予定日 随時

設備など

1種低層地域 - 即入居可 売主・代理 -
駐車2台以上 平屋 本下水
都市ガス - カウンターキッチン - 床暖房 -
ウォークインクローゼット - バリアフリー
設備 システムキッチン・庭・LPガス・上水道・本下水・駐車場2台分・リフォーム・フローリング
リフォーム履歴 2025年6月完了
 水回り設備交換:キッチン・トイレ
 内装リフォーム:壁・床・全室
2025年6月完了
 その他リフォーム:外壁・屋根
※年月は一番古いリフォーム箇所を表します
リノベーション履歴 -
備考 <物件名>古所 1150万円/<駐車場>カースペース/<土地権利>所有権/<間取り>1LDK/<リフォーム>●リフォーム:2025年6月完了(水回り設備交換:キッチン・トイレ、内装リフォーム:壁・床・全室)、2025年6月完了(その他リフォーム:外壁・屋根)※年月は一番古いリフォーム箇所を表します/<特徴>九十九里浜(古所海岸)1.2km。敷地面積85坪。人気の平家建て。、駐車2台可・即引渡可・土地50坪以上・LDK18畳以上・内外装リフォーム
販売戸数:1戸
特記事項 日当り良好・閑静な住宅街・バリアフリー・駐車場2台分・リゾート向き・角地・整形地

省エネ性能

エネルギー消費性能 -
断熱性能 -
目安光熱費 -

千葉県長生郡白子町古所 周辺地図情報

地図
※地図上に表示される物件の位置は付近住所に所在することを表すものであり、実際の物件所在地とは異なる場合がございます。
   正確な物件所在地は、取扱い不動産会社にお問い合わせください。
物件を見たい、物件や住環境の詳しい情報やローン相談など、
お問い合わせ先
松屋地所(株)

不動産会社情報

お問い合わせ先 商号:松屋地所(株)
免許番号:千葉県知事(3)第015729号
所在地:千葉県大網白里市南玉4
TEL:0475-72-0568
取引態様:媒介
共有する
QRコード
物件を見たい、物件や住環境の詳しい情報やローン相談など、
お問い合わせ先
松屋地所(株)

この物件を見た人はこんな物件も見ています

OCN×ドコモ光新規お申込みで合計最大137,280円相当おトク!特典の内訳・適用条件など詳細はこちら

他のエリアから探す

長生郡白子町の詳細地域から一戸建て物件を探す

牛込北日当幸治剃金中里浜宿古所

近辺の市区から探す

茂原市東金市大網白里市山武郡九十九里町長生郡一宮町長生郡睦沢町長生郡長生村

千葉県長生郡白子町で他のジャンルから探す

住宅ローンの返済額一覧

物件価格 1150万円に対して、年率 で、頭金 の場合
↓ボーナス 35年間 30年間 25年間 20年間 15年間 10年間
0万円 16,873円/月 19,447円/月 23,053円/月 28,465円/月 37,489円/月 55,543円/月
5万円 ローン不可 10,471円/月 14,186円/月 19,707円/月 28,838円/月 46,998円/月
10万円 ローン不可 ローン不可 ローン不可 ローン不可 20,186円/月 38,453円/月
15万円 ローン不可 ローン不可 ローン不可 ローン不可 ローン不可 29,907円/月
20万円 ローン不可 ローン不可 ローン不可 ローン不可 ローン不可 ローン不可
25万円 ローン不可 ローン不可 ローン不可 ローン不可 ローン不可 ローン不可
30万円 ローン不可 ローン不可 ローン不可 ローン不可 ローン不可 ローン不可
支払い利息合計 586,660円~ 503,920円~ 418,400円~ 333,840円~ 251,110円~ 168,200円~
※元利均等返済方式で試算しています。 「円」の単位以下の端数金額は「切り捨て」として計算しております。
※金利は、固定金利として計算しております。
※上記の住宅ローン返済額一覧は、あくまで試算であり、将来の金利動向により、実際のご返済額とは異なります。
※ボーナス支払総額が総支払額の50%を超えている場合、上記の表では「ローン不可」となります。
※住宅ローン返済額一覧の数値は、住宅ローンのお申し込みやご融資をお約束するものではございません。
物件を見たい、物件や住環境の詳しい情報やローン相談など、
お問い合わせ先
松屋地所(株)

掲載情報の著作権は提供元企業等に帰属します。
Copyright:(C) 2025 Recruit Co., Ltd.
アプリで簡単 物件探し 大手不動産サイトの情報から一括検!プッシュ通知で物件を見逃さない
App Storeからダウンロード Google Playで手に入れよう QRコード