アプリで簡単 物件探し 通知 共有 アプリならではの機能を使ってみる
中古住宅

千葉県船橋市飯山満町3 飯山満駅 中古一戸建て・中古住宅

情報提供元
SUUMO
千葉県船橋市飯山満町3 飯山満駅 中古一戸建て・中古住宅
価格 2480万円
交通
所在地 千葉県船橋市飯山満町3周辺地図
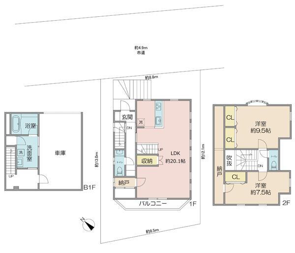
間取り 2LDK
建物面積 130m2(登記)、うち地下室40.57m2 土地面積 107.53m2(登記)
築年月 1997年3月 築年数 築28年8ヶ月
おすすめポイント
【リフォーム内容】・天井・壁・床下地組、建具一式交換(1階納戸・2階トイレ・地下脱衣所)・クロス貼り(浴室除く天井・壁)、CF貼り(洗面所・トイレ)・フロアタイル貼り(1階・2階)・システムキッチン・ユニットバス(1620タイプ)・洗面化粧台・便器(ウォシュレット一体型)交換・給湯器交換、マルチリモコンセット、洗濯機パン交換、洗濯機用単水栓交換・分電盤交換、スイッチ・コンセント等交換・照明器具一式交換・ハウスクリーニング等■地下車庫1台分(車種による)※西側(隣地所有者側)に高さ約4.0mの擁壁あり※地下室面積には車庫面積23.18㎡を含みます。
お問い合わせ先
大成有楽不動産販売(株)船橋センター
物件を見たい、物件や住環境の詳しい情報やローン相談など、
お問い合わせ先
大成有楽不動産販売(株)船橋センター

詳細情報

価格 2480万円
所在地 千葉県船橋市飯山満町3周辺地図
交通
間取り 2LDK 築年月(築年数) 1997年3月(築28年8ヶ月)
建物面積 130m2(登記)、うち地下室40.57m2 建物構造・規模 木造地上2階地下1階建
土地面積 107.53m2(登記) 土地権利 所有権
私道面積 借地期間・地代
接道状況 北東4.9m 駐車場
用途地域 1種低層 都市計画
建ぺい率/容積率 50%/100% 現況
地目 引渡可能時期 相談
情報提供元 SUUMO [030Z77920030] 情報公開日
情報更新日 次回更新予定日 随時

設備など

1種低層地域 即入居可 - 売主・代理 -
駐車2台以上 - 平屋 - 本下水
都市ガス カウンターキッチン - 床暖房 -
ウォークインクローゼット - バリアフリー -
設備 都市ガス・システムキッチン・モニタ付インターホン・トイレ2ヶ所・上水道・本下水・リフォーム
リフォーム履歴 2025年7月完了
 水回り設備交換:キッチン・浴室・トイレ
 内装リフォーム:壁・床
※年月は一番古いリフォーム箇所を表します
リノベーション履歴 -
備考 <物件名>飯山満町3(飯山満駅) 2480万円/<土地権利>所有権/<間取り>2LDK/<リフォーム>●リフォーム:2025年7月完了(水回り設備交換:キッチン・浴室・トイレ、内装リフォーム:壁・床)※年月は一番古いリフォーム箇所を表します/<特徴>■2LDK+車庫+納戸 ■2025年8月末室内リフォーム完成、内装リフォーム・システムキッチン・LDK15畳以上・トイレ2ヶ所・2階建
販売戸数:1戸
特記事項

省エネ性能

エネルギー消費性能 -
断熱性能 -
目安光熱費 -

千葉県船橋市飯山満町3 周辺地図情報

地図
※地図上に表示される物件の位置は付近住所に所在することを表すものであり、実際の物件所在地とは異なる場合がございます。
   正確な物件所在地は、取扱い不動産会社にお問い合わせください。
物件を見たい、物件や住環境の詳しい情報やローン相談など、
お問い合わせ先
大成有楽不動産販売(株)船橋センター

不動産会社情報

お問い合わせ先 商号:大成有楽不動産販売(株)船橋センター
免許番号:国土交通大臣(10)第003394号
所在地:千葉県船橋市本町7-7-1 船橋ツインビル西館6階
TEL:0120-236415
取引態様:専任媒介
管理コード:AAA12906
共有する
QRコード
物件を見たい、物件や住環境の詳しい情報やローン相談など、
お問い合わせ先
大成有楽不動産販売(株)船橋センター

船橋市の暮らしデータ

人口などの統計情報

世帯数 289591世帯
人口総数 648331人
転入者数 34405人
転入率(人口1000人当たり)
53.07人
転出者数 30333人
転出率(人口1000人当たり)
46.79人
土地平均価格
住宅地
177853円/m2
商業地
700875円/m2

結婚・育児の助成金

子育て関連の独自の取り組み (1)児童ホーム・子育て支援センター。(2)産後ケア事業。(3)送迎サービス付き病児保育事業。(4)保育士(市内私立園)の給与上乗せに対する助成。(5)産後2週間頃、1ヶ月頃の産後間もない時期の産婦に対する健康診査。(6)安心して妊娠・出産・子育てができるよう保健師等が相談に応じる窓口「子育て世代包括支援センター(ふなここ)」の設置。(7)産前・産後サポート事業(多胎マタニティクラス・多胎おやこクラス)。(8)ヤングケアラー支援事業(LINE相談、配食サービス、家事援助、ファミリー・サポート・センター利用料補助)。(9)妊婦一般健康診査受診票14回分を超えて妊婦健康診査を受ける場合の費用を2回分まで助成(対象者条件あり)。
出産祝い なし
公立保育所数 27所(うち0歳児保育を実施している保育所:27所)
私立保育所数 98所(うち0歳児保育を実施している保育所:96所)
保育所入所待機児童数 24人
認定こども園数 11園 預かり保育実施園数 公立:- 私立:38園
学校給食 【小学校】完全給食【中学校】家庭弁当等との選択制[内容:完全給食(献立選択制)]
公立中学校の学校選択制 一部実施(一部選択地域のみ[新入学時又は他市町村からの転入学時のみ])
子ども・学生等医療費助成<通院>対象年齢 18歳3月末まで 子ども・学生等医療費助成<入院>対象年齢 18歳3月末まで

船橋市の治安・ごみ収集情報

公共料金・インフラ

ガス料金(22m3使用した場合の月額) 京葉瓦斯株式会社4515円
習志野市3432円
水道料金(口径20mmで20m3の月額) 千葉県営水道3250円
習志野市2629円
下水道料金(20m3を使用した場合の月額) 船橋市2211円
下水道普及率 91.8%

安心・安全

建物火災出火件数 86件
人口10000人当たり
1.34件
刑法犯認知件数 3253件
人口1000人当たり
5.06件
ハザード・防災マップ あり

医療

一般病院総数 19ヶ所
一般診療所総数 380ヶ所
小児科医師数 78人
小児人口10000人当たり
10.05人
産婦人科医師数 38人
15~49歳女性人口1万人当たり
2.81人
介護保険料基準額(月額) 6600円

ごみ

家庭ごみ収集(可燃ごみ) 無料
備考
一時多量ごみは収集不可。ごみ処理施設に自己搬入するか、ごみ処理許可業者に収集を依頼。指定ごみ袋に、ごみ処理費用は加算されない。
家庭ごみの分別方式 4分別16種〔可燃ごみ 不燃ごみ(不燃ごみ、乾電池、水銀含有物、蛍光管等) 資源ごみ(空きびん、空き缶、金属類、ペットボトル) 有価物(新聞、雑誌、雑がみ、段ボール、牛乳パック、古着、毛布)〕
家庭ごみの戸別収集 一部実施(ふれあい収集に限る)
粗大ごみ収集 あり
備考
有料。戸別収集。事前申込制。
生ごみ処理機助成金制度 あり
上限金額
10000円
上限比率
33.3%

船橋市の住まいの給付金

中古購入

利子補給制度 なし
補助/助成金制度 あり
上限金額
10万円
備考
【親世帯・子育て世帯近居同居支援事業】離れて暮らす親世帯・子育て世帯が住宅を建築・購入し、近居(※)または同居した場合に助成(10万円)を行う。※同一の小学校区、又は直線距離で1.2km以内の範囲に居住すること。他要件あり。

増築・改築・改修

利子補給制度 なし
補助/助成金制度 あり
上限金額
(1)8万円(2)100万円(3)8万円
備考
(1)【木造住宅耐震診断助成制度】2000年5月31日以前に新築工事に着手した戸建及び併用住宅が対象。耐震診断費の2/3を助成し、上限8万円。他要件あり。(2)【木造住宅耐震改修助成制度】2000年5月31日以前に建築工事に着手した戸建及び併用住宅が対象。耐震改修工事費及び工事監理費の4/5を助成し、上限100万円。他要件あり。(3)【住宅バリアフリー・断熱改修支援事業】住宅のバリアフリー化等にかかる費用の3/10(上限8万円)。他要件あり。
暮らしデータ提供元:生活ガイド.com
※行政機関により公表していない地域及びデータがございます。東京23区以外の政令指定都市は、市全体のデータとして表示しています。
※提供データには細心の注意を払っておりますが、調査後に変更がある場合があります。 最新の情報につきましては各市区役所までお問い合わせいただくか、自治体HPなどをご確認ください。

この物件を見た人はこんな物件も見ています

OCN×ドコモ光新規お申込みで合計最大137,280円相当おトク!特典の内訳・適用条件など詳細はこちら

住宅ローンの返済額一覧

物件価格 2480万円に対して、年率 で、頭金 の場合
↓ボーナス 35年間 30年間 25年間 20年間 15年間 10年間
0万円 51,397円/月 59,239円/月 70,224円/月 86,710円/月 114,199円/月 169,193円/月
5万円 42,312円/月 50,263円/月 61,357円/月 77,952円/月 105,547円/月 160,648円/月
10万円 33,226円/月 41,288円/月 52,491円/月 69,193円/月 96,896円/月 152,103円/月
15万円 ローン不可 32,312円/月 43,624円/月 60,434円/月 88,245円/月 143,558円/月
20万円 ローン不可 ローン不可 ローン不可 51,676円/月 79,593円/月 135,013円/月
25万円 ローン不可 ローン不可 ローン不可 ローン不可 70,942円/月 126,468円/月
30万円 ローン不可 ローン不可 ローン不可 ローン不可 62,290円/月 117,922円/月
支払い利息合計 1,793,950円~ 1,535,400円~ 1,275,050円~ 1,018,880円~ 765,150円~ 509,380円~
※元利均等返済方式で試算しています。 「円」の単位以下の端数金額は「切り捨て」として計算しております。
※金利は、固定金利として計算しております。
※上記の住宅ローン返済額一覧は、あくまで試算であり、将来の金利動向により、実際のご返済額とは異なります。
※ボーナス支払総額が総支払額の50%を超えている場合、上記の表では「ローン不可」となります。
※住宅ローン返済額一覧の数値は、住宅ローンのお申し込みやご融資をお約束するものではございません。
物件を見たい、物件や住環境の詳しい情報やローン相談など、
お問い合わせ先
大成有楽不動産販売(株)船橋センター

掲載情報の著作権は提供元企業等に帰属します。
Copyright:(C) 2025 Recruit Co., Ltd.
アプリで簡単 物件探し 大手不動産サイトの情報から一括検!プッシュ通知で物件を見逃さない
App Storeからダウンロード Google Playで手に入れよう QRコード