中古住宅
埼玉県深谷市萱場 深谷駅 中古一戸建て・中古住宅
 
  
    
      | 価格 | 2290万円 | 
    
      | 交通 |  | 
    
      | 所在地 | 埼玉県深谷市萱場周辺地図 | 
    
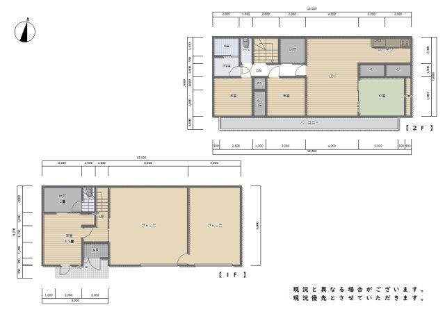
      | 間取り | 3LDK | 
    
      | 建物面積 | 179m2(54.14坪)(登記) | 土地面積 | 268.89m2(81.33坪)(登記) | 
    
      | 築年月 | 1998年3月 | 築年数 | 築27年8ヶ月 | 
  
 
 
- おすすめポイント
- ■土地81坪■本下水利用可能■小学校徒歩8分■即日内覧可能
 駐車場2台分・整形地・浴室1坪以上
  
    物件を見たい、物件や住環境の詳しい情報やローン相談など、
    
    
    
      - お問い合わせ先
- (株)アップルホーム
 
 
| 価格 | 2290万円 | 
| 所在地 | 埼玉県深谷市萱場周辺地図 | 
| 交通 | 
  JR高崎線 深谷駅 徒歩22分乗換案内JR高崎線 岡部駅 徒歩3.3km乗換案内 | 
| 間取り | 3LDK | 築年月(築年数) | 1998年3月(築27年8ヶ月) | 
| 建物面積 | 179m2(54.14坪)(登記) | 建物構造・規模 | 木造2階建 | 
| 土地面積 | 268.89m2(81.33坪)(登記) | 土地権利 | 所有権 | 
| 私道面積 |  | 借地期間・地代 |  | 
| 接道状況 |  | 駐車場 | 無 | 
| 用途地域 | 準工業 | 都市計画 |  | 
| 建ぺい率/容積率 | 60%/200% | 現況 |  | 
| 地目 |  | 引渡可能時期 | 即時 | 
| 情報提供元 | SUUMO [030Z78385423] | 情報公開日 |  | 
| 情報更新日 |  | 次回更新予定日 | 随時 | 
設備など
| 1種低層地域 | - | 即入居可 | ○ | 売主・代理 | - | 
| 駐車2台以上 | ○ | 平屋 | - | 本下水 | ○ | 
| 都市ガス | - | カウンターキッチン | - | 床暖房 | - | 
| ウォークインクローゼット | - | バリアフリー | - |  |  | 
| 設備 | 風呂・LPガス・上水道・本下水・駐車場2台分・太陽光システム | 
| リフォーム履歴 | - | 
| リノベーション履歴 | - | 
| 備考 | <物件名>萱場(深谷駅) 2290万円/<土地権利>所有権/<間取り>3LDK/<特徴>■1F事務所■2F居住スペース(3LDK)■太陽光システム設置、太陽光発電システム・駐車2台可・土地50坪以上・南向き・整形地 販売戸数:1戸
 法令等制限:特別用途制限地域
 | 
| 特記事項 | 駐車場2台分・整形地・浴室1坪以上 | 
埼玉県深谷市萱場 周辺地図情報
※地図上に表示される物件の位置は付近住所に所在することを表すものであり、実際の物件所在地とは異なる場合がございます。
   正確な物件所在地は、取扱い不動産会社にお問い合わせください。
 
 
  
    物件を見たい、物件や住環境の詳しい情報やローン相談など、
    
    
    
      - お問い合わせ先
- (株)アップルホーム
 
 
不動産会社情報
| お問い合わせ先 | 商号:(株)アップルホーム 免許番号:埼玉県知事(2)第023274号
 所在地:埼玉県熊谷市新堀623-2
 TEL:0120-466263
 取引態様:専任媒介
 管理コード:11568
 | 共有する |  | 
  
    物件を見たい、物件や住環境の詳しい情報やローン相談など、
    
    
    
      - お問い合わせ先
- (株)アップルホーム
 
 
  
  
    人口などの統計情報
    
      
        
          | 世帯数 | 55713世帯 | 
        
          | 人口総数 | 141419人 | 
        
          | 転入者数 | 5356人 
 
              転入率(人口1000人当たり)37.87人 | 
        
          | 転出者数 | 4361人 
 
              転出率(人口1000人当たり)30.84人 | 
        
          | 土地平均価格 | 
              住宅地35311円/m2商業地70850円/m2 | 
      
    
   
    
    結婚・育児の助成金
    
      
        
          | 子育て関連の独自の取り組み | - | 
        
          | 出産祝い | あり | 
        
          | 公立保育所数 | 2所(うち0歳児保育を実施している保育所:2所) | 
        
          | 私立保育所数 | 33所(うち0歳児保育を実施している保育所:33所) | 
        
          | 保育所入所待機児童数 | 0人 | 
        
          | 認定こども園数 | 3園 | 預かり保育実施園数 | 公立:7園 私立:1園 | 
        
          | 学校給食 | 【小学校】完全給食【中学校】完全給食 | 
        
          | 公立中学校の学校選択制 | 未実施 | 
        
          | 子ども・学生等医療費助成<通院>対象年齢 | 18歳3月末まで | 子ども・学生等医療費助成<入院>対象年齢 | 18歳3月末まで | 
      
    
   
    
    深谷市の治安・ごみ収集情報
    公共料金・インフラ
    
      
        
          | ガス料金(22m3使用した場合の月額) | 東京瓦斯株式会社(東京地区等)3926円 武州瓦斯株式会社4281円
 埼玉ガス株式会社4852円
 | 
        
          | 水道料金(口径20mmで20m3の月額) | 深谷市2948円 | 
        
          | 下水道料金(20m3を使用した場合の月額) | 深谷市3520円 | 
        
          | 下水道普及率 | 62.1% | 
      
    
    安心・安全
    
      
        
          | 建物火災出火件数 | 35件 
              人口10000人当たり2.48件 | 
        
          | 刑法犯認知件数 | 876件 
              人口1000人当たり6.20件 | 
        
          | ハザード・防災マップ | あり | 
      
    
    医療
    
      
        
          | 一般病院総数 | 8ヶ所 | 
        
          | 一般診療所総数 | 92ヶ所 | 
        
          | 小児科医師数 | 18人 
              小児人口10000人当たり11.37人 | 
        
          | 産婦人科医師数 | 10人 
              15~49歳女性人口1万人当たり3.87人 | 
        
          | 介護保険料基準額(月額) | 6100円 | 
      
    
    ごみ
    
      
        
          | 家庭ごみ収集(可燃ごみ) | 無料 | 
        
          | 家庭ごみの分別方式 | 5分別12種〔燃やせるごみ 燃やせないごみ 使用済小型家電 有害ごみ 資源物(かん類、びん類、ペットボトル、紙類[新聞、雑誌、ダンボール、雑紙、紙パック])〕 | 
        
          | 家庭ごみの戸別収集 | 未実施 | 
        
          | 粗大ごみ収集 | あり | 
        
          | 生ごみ処理機助成金制度 | なし 
              上限金額-上限比率- | 
      
    
   
  
      深谷市の住まいの給付金
                  中古購入
    
    増築・改築・改修
    
      
        
          | 利子補給制度 | なし | 
        
          | 補助/助成金制度 | あり 
              上限金額35万円 | 
      
    
          
    
      ※行政機関により公表していない地域及びデータがございます。東京23区以外の政令指定都市は、市全体のデータとして表示しています。
      
※提供データには細心の注意を払っておりますが、調査後に変更がある場合があります。 最新の情報につきましては各市区役所までお問い合わせいただくか、自治体HPなどをご確認ください。
    
      深谷市の暮らしデータをもっと見る
     
 
- 
  
 
- 埼玉県熊谷市銀座6
- 
- 価格
- 3980万円
- 建物面積
- 101.85m2
- 土地面積
- 138.3m2
 
 
- 
  
 
- 埼玉県熊谷市銀座6
- 
- 価格
- 3980万円
- 建物面積
- 99.57m2
- 土地面積
- 154.43m2
 
 
- 
  
 
- 埼玉県熊谷市円光2
- 
- 価格
- 1780万円
- 建物面積
- 86.11m2
- 土地面積
- 165.37m2
 
 
- 
  
 
- 埼玉県熊谷市別府2
- 
- 価格
- 1880万円
- 建物面積
- 108.88m2
- 土地面積
- 146.68m2
 
 
- 
  
 
- 埼玉県加須市水深
- 
- 価格
- 2580万円
- 建物面積
- 98.53m2
- 土地面積
- 317.9m2
 
 
 
  
    
  
  
    物件を見たい、物件や住環境の詳しい情報やローン相談など、
    
    
    
      - お問い合わせ先
- (株)アップルホーム