アプリで簡単 物件探し 通知 共有 アプリならではの機能を使ってみる
中古住宅

青森県弘前市大字袋町 中央弘前駅 中古一戸建て・中古住宅

情報提供元
SUUMO
青森県弘前市大字袋町 中央弘前駅 中古一戸建て・中古住宅
価格 2500万円
交通
所在地 青森県弘前市大字袋町周辺地図
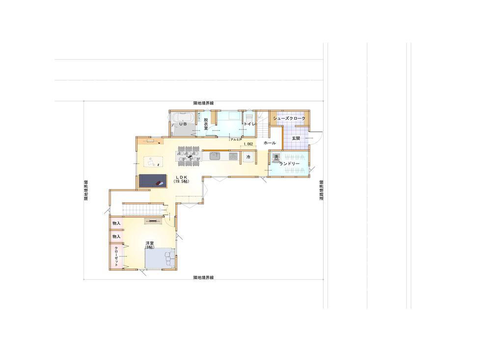
間取り 4LDK
建物面積 125.86m2(実測) 土地面積 203.47m2(登記)
築年月 1965年10月 築年数 築60年2ヶ月
おすすめポイント
弘前城近くにリノベーション物件登場♪11月~工事開始予定!キッチン・トイレ・化粧台・照明器具 新品へ交換☆彡屋根塗装・外壁サイディング張・クロス貼替☆彡断熱改修・耐震補強工事☆彡駐車スペース拡張☆彡今なら、設備やクロス、屋根・外壁等のお色が選べます♪
閑静な住宅街・駐車場2台分・角地・浴室1坪以上
お問い合わせ先
(株)ケーオーハウジング 不動産部 ケーオー不動産
物件を見たい、物件や住環境の詳しい情報やローン相談など、
お問い合わせ先
(株)ケーオーハウジング 不動産部 ケーオー不動産

詳細情報

価格 2500万円
所在地 青森県弘前市大字袋町周辺地図
交通
  • 弘南鉄道大鰐線 中央弘前駅 徒歩27分乗換案内
間取り 4LDK 築年月(築年数) 1965年10月(築60年2ヶ月)
建物面積 125.86m2(実測) 建物構造・規模 木造2階建
土地面積 203.47m2(登記) 土地権利 所有権
私道面積 借地期間・地代
接道状況 東5.4m接面12m 北2.8m接面16.5m 二方道路 駐車場
用途地域 1種中高 都市計画
建ぺい率/容積率 60%/200% 現況
地目 引渡可能時期 2026年2月
情報提供元 SUUMO [020Z78593339] 情報公開日
情報更新日 次回更新予定日 随時

設備など

1種低層地域 - 即入居可 - 売主・代理
駐車2台以上 平屋 - 本下水
都市ガス - カウンターキッチン - 床暖房 -
ウォークインクローゼット - バリアフリー -
設備 収納スペース・洗面所・シャンプードレッサ・システムキッチン・モニタ付インターホン・風呂・庭・IHクッキングヒータ・複層ガラス・上水道・本下水・駐車場2台分・リフォーム
リフォーム履歴 2026年2月完了予定
 水回り設備交換:キッチン・トイレ
 内装リフォーム:壁・床・全室
2026年2月完了予定
 その他リフォーム:外壁・屋根
※年月は一番古いリフォーム箇所を表します
リノベーション履歴 -
備考 <物件名>大字袋町(中央弘前駅) 2500万円/<駐車場>カースペース/<土地権利>所有権/<間取り>4LDK/<リフォーム>●リフォーム:2026年2月完了予定(水回り設備交換:キッチン・トイレ、内装リフォーム:壁・床・全室)、2026年2月完了予定(その他リフォーム:外壁・屋根)※年月は一番古いリフォーム箇所を表します/<特徴>【リノベーション物件!】住宅ローン減税対応!、耐震基準適合証明書・駐車2台可・土地50坪以上・LDK18畳以上・スーパー 徒歩10分以内
販売戸数:1戸
法令等制限:景観法、都市再生特別地区
特記事項 閑静な住宅街・駐車場2台分・角地・浴室1坪以上

省エネ性能

エネルギー消費性能 -
断熱性能 -
目安光熱費 -

青森県弘前市大字袋町 周辺地図情報

地図
※地図上に表示される物件の位置は付近住所に所在することを表すものであり、実際の物件所在地とは異なる場合がございます。
   正確な物件所在地は、取扱い不動産会社にお問い合わせください。
物件を見たい、物件や住環境の詳しい情報やローン相談など、
お問い合わせ先
(株)ケーオーハウジング 不動産部 ケーオー不動産

不動産会社情報

お問い合わせ先 商号:(株)ケーオーハウジング 不動産部 ケーオー不動産
免許番号:青森県知事(5)第003090号
所在地:青森県弘前市大字田町5-6-6
TEL:0172-88-8840
取引態様:売主
共有する
QRコード
物件を見たい、物件や住環境の詳しい情報やローン相談など、
お問い合わせ先
(株)ケーオーハウジング 不動産部 ケーオー不動産

弘前市の暮らしデータ

人口などの統計情報

世帯数 70743世帯
人口総数 161958人
転入者数 4690人
転入率(人口1000人当たり)
28.96人
転出者数 5004人
転出率(人口1000人当たり)
30.90人
土地平均価格
住宅地
23907円/m2
商業地
54613円/m2

結婚・育児の助成金

子育て関連の独自の取り組み (1)インフルエンザ予防接種費用助成(6ヶ月児~未就学児に1回分の費用無料)。(2)おたふくかぜ任意予防接種費用助成(1歳児と年度内に6歳になる幼児に費用の一部助成)。(3)新生児聴覚検査費助成(検査費用の一部を助成)(4)5歳児発達健診・相談事業。(5)子どもの発達支援事業。(6)ひろさき多子家族応援パスポート(多子家族に公共施設無料パスポート発行)。(7)多子家族の小・中学校給食費の半額助成制度(3人目以降の児童生徒対象)。(8)中学生ピロリ菌検査事業。
出産祝い なし
公立保育所数 0所(うち0歳児保育を実施している保育所:-)
私立保育所数 34所(うち0歳児保育を実施している保育所:34所)
保育所入所待機児童数 0人
認定こども園数 34園 預かり保育実施園数 公立:- 私立:6園
学校給食 【小学校】完全給食【中学校】完全給食
公立中学校の学校選択制 一部実施(特認校制)
子ども・学生等医療費助成<通院>対象年齢 18歳3月末まで 子ども・学生等医療費助成<入院>対象年齢 18歳3月末まで

弘前市の治安・ごみ収集情報

公共料金・インフラ

ガス料金(22m3使用した場合の月額) 弘前ガス株式会社8165円
水道料金(口径20mmで20m3の月額) 弘前市3922円
下水道料金(20m3を使用した場合の月額) 弘前市3145円
下水道普及率 86.0%

安心・安全

建物火災出火件数 30件
人口10000人当たり
1.78件
刑法犯認知件数 914件
人口1000人当たり
5.43件
ハザード・防災マップ あり

医療

一般病院総数 11ヶ所
一般診療所総数 157ヶ所
小児科医師数 68人
小児人口10000人当たり
41.39人
産婦人科医師数 31人
15~49歳女性人口1万人当たり
10.93人
介護保険料基準額(月額) 6930円

ごみ

家庭ごみ収集(可燃ごみ) 無料
備考
-
家庭ごみの分別方式 10分別〔燃やせるごみ 燃やせないごみ かん びん ペットボトル ダンボール 紙パック 新聞 雑誌・雑がみ 危険ごみ〕 拠点回収:使用済小型家電 衣類 古紙類(ダンボール 新聞 雑誌・雑がみ)
家庭ごみの戸別収集 一部実施(【弘前市ごみ出しサポート事業】家庭ごみを集積所に出すことが困難な高齢者などの世帯に対し、自宅前で個別にごみを収集する制度を実施)
粗大ごみ収集 あり
備考
無料。戸別及び集積所収集(併用)。申し込みは不要、月1回の定期回収。
生ごみ処理機助成金制度 なし
上限金額
-
上限比率
-

弘前市の住まいの給付金

中古購入

利子補給制度 なし
補助/助成金制度 あり
上限金額
50万円
備考
【弘前市空き家・空き地利活用事業費補助金】空き家・空き地バンクに登録された物件で建築後25年以上経過し、空き家になってから90日以上経過したものの購入費用の1/2を補助する。上限は空き家の購入20万円。子育て世帯、移住者、登録から3年以上経過した物件の購入者はそれぞれ10万円の上乗せあり。

増築・改築・改修

利子補給制度 なし
補助/助成金制度 あり
上限金額
100.4万円
備考
【弘前市木造住宅耐震改修促進事業】1981年5月31日以前に建築された建築物の耐震改修工事が対象。補助対象経費に応じて助成額が変わる。上限100.4万円。他要件あり。
暮らしデータ提供元:生活ガイド.com
※行政機関により公表していない地域及びデータがございます。東京23区以外の政令指定都市は、市全体のデータとして表示しています。
※提供データには細心の注意を払っておりますが、調査後に変更がある場合があります。 最新の情報につきましては各市区役所までお問い合わせいただくか、自治体HPなどをご確認ください。
OCN×ドコモ光新規お申込みで合計最大137,280円相当おトク!特典の内訳・適用条件など詳細はこちら

弘前市内の各駅の住みやすさ

住宅ローンの返済額一覧

物件価格 2500万円に対して、年率 で、頭金 の場合
↓ボーナス 35年間 30年間 25年間 20年間 15年間 10年間
0万円 51,917円/月 59,837円/月 70,933円/月 87,586円/月 115,352円/月 170,902円/月
5万円 42,831円/月 50,862円/月 62,067円/月 78,828円/月 106,701円/月 162,357円/月
10万円 33,746円/月 41,886円/月 53,200円/月 70,069円/月 98,050円/月 153,812円/月
15万円 ローン不可 32,910円/月 44,333円/月 61,310円/月 89,398円/月 145,267円/月
20万円 ローン不可 ローン不可 35,466円/月 52,552円/月 80,747円/月 136,722円/月
25万円 ローン不可 ローン不可 ローン不可 43,793円/月 72,095円/月 128,177円/月
30万円 ローン不可 ローン不可 ローン不可 ローン不可 63,444円/月 119,631円/月
支払い利息合計 1,812,350円~ 1,550,680円~ 1,290,250円~ 1,031,120円~ 772,870円~ 514,460円~
※元利均等返済方式で試算しています。 「円」の単位以下の端数金額は「切り捨て」として計算しております。
※金利は、固定金利として計算しております。
※上記の住宅ローン返済額一覧は、あくまで試算であり、将来の金利動向により、実際のご返済額とは異なります。
※ボーナス支払総額が総支払額の50%を超えている場合、上記の表では「ローン不可」となります。
※住宅ローン返済額一覧の数値は、住宅ローンのお申し込みやご融資をお約束するものではございません。
物件を見たい、物件や住環境の詳しい情報やローン相談など、
お問い合わせ先
(株)ケーオーハウジング 不動産部 ケーオー不動産

掲載情報の著作権は提供元企業等に帰属します。
Copyright:(C) 2025 Recruit Co., Ltd.
アプリで簡単 物件探し 大手不動産サイトの情報から一括検!プッシュ通知で物件を見逃さない
App Storeからダウンロード Google Playで手に入れよう QRコード