アプリで簡単 物件探し 通知 共有 アプリならではの機能を使ってみる
中古住宅

大阪府堺市中区深阪3丁 泉ケ丘駅 中古一戸建て・中古住宅

情報提供元
LIFULL HOME'S
大阪府堺市中区深阪3丁 泉ケ丘駅 中古一戸建て・中古住宅
価格 2980万円
交通
所在地 大阪府堺市中区深阪3丁周辺地図
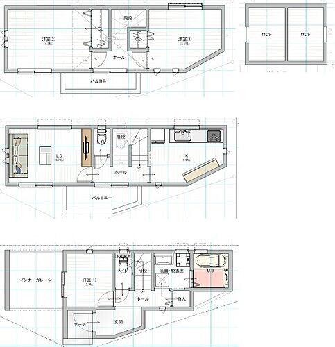
間取り 4SLDK
建物面積 114.27m2 土地面積 248m2
築年月 1988年2月 築年数 築37年10ヶ月
おすすめポイント
◆4SLDKのゆとりあるお住まいです♪◆自然豊かな閑静な住宅地◆生活便利な好立地です
駐車場2台分
お問い合わせ先
リノヴェック不動産販売本社 リノヴェック株式会社
物件を見たい、物件や住環境の詳しい情報やローン相談など、
お問い合わせ先
リノヴェック不動産販売本社 リノヴェック株式会社

詳細情報

価格 2980万円
所在地 大阪府堺市中区深阪3丁周辺地図
交通
  • 南海電鉄泉北線 泉ケ丘駅 バス7分/「深阪」バス停 停歩6分乗換案内
  • 南海電鉄泉北線 泉ケ丘駅 徒歩23分乗換案内
間取り 4SLDK 築年月(築年数) 1988年2月(築37年10ヶ月)
建物面積 114.27m2 建物構造・規模 木造2階建
土地面積 248m2 土地権利 所有権
私道面積 借地期間・地代
接道状況 東5.9m公道接面8.1m
セットバック 駐車場 空有 (2台) 無料 物件からの距離0m
用途地域 2種中高 都市計画 市街化区域
建ぺい率/容積率 60%/200% 現況 空室
地目 宅地 引渡可能時期 相談
情報提供元 LIFULL HOME'S [1260250006725] 情報公開日
情報更新日 次回更新予定日 2025年12月9日

設備など

1種低層地域 - 即入居可 - 売主・代理 -
駐車2台以上 平屋 - 本下水 -
都市ガス - カウンターキッチン - 床暖房 -
ウォークインクローゼット - バリアフリー -
設備 システムキッチン・追焚機能・温水洗浄便座・オートバス
リフォーム履歴 -
リノベーション履歴 -
備考 【物件周辺の生活情報】
・学校
深阪小学校(500m)、平井中学校(1,200m)
・買い物
スーパー(650m)、コンビニ(350m)、ドラッグストア(550m)、商店街(2,000m)
・その他施設
総合病院(1,600m)、公園(230m)、銀行(1,000m)
【不動産にまつわる全てを一括でお手伝い♪】*不動産の売買・不要資産処分・相続物件の売却・買取紹介・任意売却・マイホーム購入・お住み替え・住宅ローン等々*改装工事・ご自宅の改装等々・各種改装に携わる全ての工事*各種保険の取り扱い・ご自宅の火災保険・地震保険・お車の自動車保険・各種損害保険・何でもご相談下さい!
国土法届出:不要
特記事項 駐車場2台分

省エネ性能

エネルギー消費性能 -
断熱性能 -
目安光熱費 -

大阪府堺市中区深阪3丁 周辺地図情報

地図
※地図上に表示される物件の位置は付近住所に所在することを表すものであり、実際の物件所在地とは異なる場合がございます。
   正確な物件所在地は、取扱い不動産会社にお問い合わせください。
物件を見たい、物件や住環境の詳しい情報やローン相談など、
お問い合わせ先
リノヴェック不動産販売本社 リノヴェック株式会社

不動産会社情報

お問い合わせ先 商号:リノヴェック不動産販売本社 リノヴェック株式会社
免許番号:大阪府知事(3)第57659号
所在地:大阪府堺市中区東山66-1
取引態様:専属専任媒介
管理コード:6725
所属協会など:(公社)近畿圏不動産流通機構、(公社)近畿地区不動産公正取引協議会、(一社)大阪府宅地建物取引業協会
共有する
QRコード

お電話でのお問い合わせ

電話をかける(携帯・PHS可)
お問い合わせダイヤル
通話無料0037-634-84915
営業時間 09:00~20:00 (定休日:毎週水曜日、毎月第1,2火曜日、年末年始)
音声案内に従って数字を入力
お問い合わせ番号
25208-2970
不動産会社につながります
不動産会社のスタッフと
直接電話で話せます。
※不動産会社がお電話に出られなかった場合、株式会社LIFULLは電話会社が提供するサービスを介してお客様の発信者番号を受領後、折り返し専用の電話番号を発番してお問合せの不動産会社に通知します(お客様の発信者番号がお問合せの不動産会社に通知されることはございません)
※光IP電話、及びIP電話からはご利用になれません
※0037で始まる電話番号に携帯電話からお問合せいただいた方には、ショートメッセージ(SMS)によるお問合せ完了通知をお届けする場合があります
物件を見たい、物件や住環境の詳しい情報やローン相談など、
お問い合わせ先
リノヴェック不動産販売本社 リノヴェック株式会社

堺市中区の暮らしデータ

人口などの統計情報

世帯数 365535世帯
人口総数 817041人
転入者数 37003人
転入率(人口1000人当たり)
45.29人
転出者数 35961人
転出率(人口1000人当たり)
44.01人
土地平均価格
住宅地
143254円/m2
商業地
254357円/m2

結婚・育児の助成金

子育て関連の独自の取り組み (1)「さかいマイ保育園」の実施(身近な保育所[園]をかかりつけ保育園として登録)。(2)子ども食堂。(3)子育て応援アプリ。
出産祝い あり
公立保育所数 0所(うち0歳児保育を実施している保育所:-)
私立保育所数 24所(うち0歳児保育を実施している保育所:24所)
保育所入所待機児童数 0人
認定こども園数 136園 預かり保育実施園数 公立:4園 私立:5園
学校給食 【小学校】完全給食【中学校】家庭弁当等との選択制/デリバリー形式[運搬:ランチボックス、内容:完全給食]
公立中学校の学校選択制 一部実施
子ども・学生等医療費助成<通院>対象年齢 18歳3月末まで 子ども・学生等医療費助成<入院>対象年齢 18歳3月末まで

堺市中区の治安・ごみ収集情報

公共料金・インフラ

ガス料金(22m3使用した場合の月額) 大阪瓦斯株式会社4544円
水道料金(口径20mmで20m3の月額) 堺市2464円
下水道料金(20m3を使用した場合の月額) 堺市2821円
下水道普及率 98.5%

安心・安全

建物火災出火件数 115件
人口10000人当たり
1.39件
刑法犯認知件数 6173件
人口1000人当たり
7.47件
ハザード・防災マップ あり

医療

一般病院総数 39ヶ所
一般診療所総数 744ヶ所
小児科医師数 108人
小児人口10000人当たり
11.15人
産婦人科医師数 73人
15~49歳女性人口1万人当たり
4.60人
介護保険料基準額(月額) 7418円

ごみ

家庭ごみ収集(可燃ごみ) 無料
備考
-
家庭ごみの分別方式 2分別12種〔生活ごみ 資源(缶類・びん類、プラスチック製容器包装、ペットボトル、小型金属[金属、刃物類、スプレー缶・カセットボンベ]、古紙類[新聞、雑誌、ダンボール、紙パック]、不燃小物類)〕
家庭ごみの戸別収集 実施
粗大ごみ収集 あり
備考
有料。戸別収集。事前申込制。粗大ごみ処理券を貼付。
生ごみ処理機助成金制度 なし
上限金額
-
上限比率
-

堺市中区の住まいの給付金

中古購入

利子補給制度 なし
補助/助成金制度 なし

増築・改築・改修

利子補給制度 なし
補助/助成金制度 あり
上限金額
(1)110万円(2)200万円
備考
(1)【耐震改修補助】設計費補助は上限10万円、工事費補助は上限100万円。(2)【住宅・建築物防火改修等促進事業】防火改修等工事費の2/3以内で上限200万円。
暮らしデータ提供元:生活ガイド.com
※行政機関により公表していない地域及びデータがございます。東京23区以外の政令指定都市は、市全体のデータとして表示しています。
※提供データには細心の注意を払っておりますが、調査後に変更がある場合があります。 最新の情報につきましては各市区役所までお問い合わせいただくか、自治体HPなどをご確認ください。
OCN×ドコモ光新規お申込みで合計最大137,280円相当おトク!特典の内訳・適用条件など詳細はこちら

堺市中区内の各駅の住みやすさ

住宅ローンの返済額一覧

物件価格 2980万円に対して、年率 で、頭金 の場合
↓ボーナス 35年間 30年間 25年間 20年間 15年間 10年間
0万円 64,377円/月 74,198円/月 87,958円/月 108,607円/月 143,037円/月 211,919円/月
5万円 55,291円/月 65,223円/月 79,091円/月 99,848円/月 134,386円/月 203,374円/月
10万円 46,206円/月 56,247円/月 70,224円/月 91,090円/月 125,734円/月 194,829円/月
15万円 37,120円/月 47,271円/月 61,357円/月 82,331円/月 117,083円/月 186,284円/月
20万円 ローン不可 38,296円/月 52,491円/月 73,572円/月 108,431円/月 177,738円/月
25万円 ローン不可 ローン不可 ローン不可 64,814円/月 99,780円/月 169,193円/月
30万円 ローン不可 ローン不可 ローン不可 56,055円/月 91,128円/月 160,648円/月
支払い利息合計 2,248,980円~ 1,924,000円~ 1,597,750円~ 1,278,160円~ 955,990円~ 636,500円~
※元利均等返済方式で試算しています。 「円」の単位以下の端数金額は「切り捨て」として計算しております。
※金利は、固定金利として計算しております。
※上記の住宅ローン返済額一覧は、あくまで試算であり、将来の金利動向により、実際のご返済額とは異なります。
※ボーナス支払総額が総支払額の50%を超えている場合、上記の表では「ローン不可」となります。
※住宅ローン返済額一覧の数値は、住宅ローンのお申し込みやご融資をお約束するものではございません。
物件を見たい、物件や住環境の詳しい情報やローン相談など、
お問い合わせ先
リノヴェック不動産販売本社 リノヴェック株式会社

掲載情報の著作権は提供元企業等に帰属します。
Copyright:(C) 2025 LIFULL Co.,Ltd.
アプリで簡単 物件探し 大手不動産サイトの情報から一括検!プッシュ通知で物件を見逃さない
App Storeからダウンロード Google Playで手に入れよう QRコード