中古住宅
大阪府堺市堺区神保通 堺東駅 中古一戸建て・中古住宅
 
  
    
      | 価格 | 
      
        3850万円
       | 
    
    
      | 交通 | 
      
       | 
    
    
      | 所在地 | 
      
大阪府堺市堺区神保通周辺地図
       | 
    
    
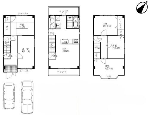
      | 間取り | 
      4LDK | 
    
    
      | 建物面積 | 
      106.92m2(32.34坪) | 
      土地面積 | 
      107.72m2(32.58坪)(登記) | 
    
    
      | 築年月 | 
      2023年7月 | 
      築年数 | 
      築2年5ヶ月 | 
    
  
 
 
- おすすめポイント
 
- ◇即入居可◇省エネルギー住宅照明書発行可能◇ローン減税可能◇小中学校、スーパー徒歩10分圏内◇周辺環境◇◇南海高野線「堺東」駅まで徒歩20分(約1600m)◇幼保認定こども園ベルキンダーまで徒歩7分(633m)◇共愛こども園まで徒歩6分(558m)◇安井小学校まで徒歩9分(738m)◇陵西中学校まで徒歩7分(577m)◇ファミリーマート京屋御陵通店まで徒歩3分(309m)◇ライフ大仙店まで徒歩4分(370m)◇キリン堂ドラッグストア 堺旭ヶ丘北店まで徒歩8分(661m)◇業務スーパー 堺東店まで徒歩9分(740m)
駐車場2台分 
  
    物件を見たい、物件や住環境の詳しい情報やローン相談など、
    
    
    
      - お問い合わせ先
 
      - (株)コーヨー不動産販売
 
    
   
 
| 価格 | 
3850万円  | 
| 所在地 | 
大阪府堺市堺区神保通周辺地図
 | 
| 交通 | 
 | 
| 間取り | 
4LDK | 
築年月(築年数) | 
2023年7月(築2年5ヶ月) | 
| 建物面積 | 
106.92m2(32.34坪) | 
建物構造・規模 | 
木造2階建
 | 
| 土地面積 | 
107.72m2(32.58坪)(登記) | 
土地権利 | 
所有権 | 
| 私道面積 | 
 | 
借地期間・地代 | 
 | 
| 接道状況 | 
南東5.5m接面5.5m | 
駐車場 | 
有  | 
| 用途地域 | 
2種中高 | 
都市計画 | 
 | 
| 建ぺい率/容積率 | 
60%/200% | 
現況 | 
 | 
| 地目 | 
 | 
引渡可能時期 | 
即時 | 
| 情報提供元 | 
SUUMO [060Z78460964] | 
情報公開日 | 
 | 
| 情報更新日 | 
 | 
次回更新予定日 | 
随時 | 
設備など
| 1種低層地域 | 
- | 
即入居可 | 
○ | 
売主・代理 | 
- | 
| 駐車2台以上 | 
○ | 
平屋 | 
- | 
本下水 | 
○ | 
| 都市ガス | 
○ | 
カウンターキッチン | 
- | 
床暖房 | 
- | 
| ウォークインクローゼット | 
- | 
バリアフリー | 
- | 
 | 
 | 
| 設備 | 
収納スペース・都市ガス・システムキッチン・風呂・対面K・グルニエ・上水道・本下水・駐車場2台分 | 
| リフォーム履歴 | 
- | 
| リノベーション履歴 | 
- | 
| 備考 | 
<物件名>神保通(堺東駅) 3850万円/<駐車場>カースペース/<土地権利>所有権/<間取り>4LDK/<特徴>◇築後未入居◇耐震等級3◇フラット35A可能◇駐車場2台可◇、耐震基準適合証明書・BELS/省エネ基準適合認定書あり・駐車2台可・即引渡可・LDK18畳以上 建築確認:有/NO.第R04確認建築近確0003337号 販売戸数:1戸 法令等制限:景観法、宅地造成工事規制区域、準防火地域 | 
| 特記事項 | 
駐車場2台分 | 
大阪府堺市堺区神保通 周辺地図情報
※地図上に表示される物件の位置は付近住所に所在することを表すものであり、実際の物件所在地とは異なる場合がございます。
   正確な物件所在地は、取扱い不動産会社にお問い合わせください。
 
 
  
    物件を見たい、物件や住環境の詳しい情報やローン相談など、
    
    
    
      - お問い合わせ先
 
      - (株)コーヨー不動産販売
 
    
   
 
不動産会社情報
| お問い合わせ先 | 
商号:(株)コーヨー不動産販売
 免許番号:大阪府知事(7)第044101号 所在地:大阪府堺市西区鳳北町1-4-3 TEL:0120-612722 取引態様:媒介 | 
共有する | 
 | 
  
    物件を見たい、物件や住環境の詳しい情報やローン相談など、
    
    
    
      - お問い合わせ先
 
      - (株)コーヨー不動産販売
 
    
   
 
  
  
    人口などの統計情報
    
      
        
          | 世帯数 | 
          365535世帯 | 
        
        
          | 人口総数 | 
          817041人 | 
        
        
          | 転入者数 | 
          37003人 
            
              - 転入率(人口1000人当たり)
 
              - 45.29人
 
             
           | 
        
        
          | 転出者数 | 
          35961人 
            
              - 転出率(人口1000人当たり)
 
              - 44.01人
 
             
           | 
        
        
          | 土地平均価格 | 
          
            
              - 住宅地
 
              - 143254円/m2
 
              - 商業地
 
              - 254357円/m2
 
             
           | 
        
      
    
   
    
    結婚・育児の助成金
    
      
        
          | 子育て関連の独自の取り組み | 
          (1)「さかいマイ保育園」の実施(身近な保育所[園]をかかりつけ保育園として登録)。(2)子ども食堂。(3)子育て応援アプリ。 | 
        
        
          | 出産祝い | 
          あり | 
        
        
          | 公立保育所数 | 
          0所(うち0歳児保育を実施している保育所:-) | 
        
        
          | 私立保育所数 | 
          24所(うち0歳児保育を実施している保育所:24所) | 
        
        
          | 保育所入所待機児童数 | 
          0人 | 
        
        
          | 認定こども園数 | 
          136園 | 
          預かり保育実施園数 | 
          公立:4園 私立:5園 | 
        
        
          | 学校給食 | 
          【小学校】完全給食【中学校】家庭弁当等との選択制/デリバリー形式[運搬:ランチボックス、内容:完全給食] | 
        
        
          | 公立中学校の学校選択制 | 
          一部実施 | 
        
        
          | 子ども・学生等医療費助成<通院>対象年齢 | 
          18歳3月末まで | 
          子ども・学生等医療費助成<入院>対象年齢 | 
          18歳3月末まで | 
        
      
    
   
    
    堺市堺区の治安・ごみ収集情報
    公共料金・インフラ
    
      
        
          | ガス料金(22m3使用した場合の月額) | 
          大阪瓦斯株式会社4544円 | 
        
        
          | 水道料金(口径20mmで20m3の月額) | 
          堺市2464円 | 
        
        
          | 下水道料金(20m3を使用した場合の月額) | 
          堺市2821円 | 
        
        
          | 下水道普及率 | 
          98.5% | 
        
      
    
    安心・安全
    
      
        
          | 建物火災出火件数 | 
          
            115件            
              - 人口10000人当たり
 
              - 1.39件
 
             
           | 
        
        
          | 刑法犯認知件数 | 
          
            6173件            
              - 人口1000人当たり
 
              - 7.47件
 
             
           | 
        
        
          | ハザード・防災マップ | 
          あり | 
        
      
    
    医療
    
      
        
          | 一般病院総数 | 
          39ヶ所 | 
        
        
          | 一般診療所総数 | 
          744ヶ所 | 
        
        
          | 小児科医師数 | 
          
            108人            
              - 小児人口10000人当たり
 
              - 11.15人
 
             
           | 
        
        
          | 産婦人科医師数 | 
          
            73人            
              - 15~49歳女性人口1万人当たり
 
              - 4.60人
 
             
           | 
        
        
          | 介護保険料基準額(月額) | 
          7418円 | 
        
      
    
    ごみ
    
      
        
          | 家庭ごみ収集(可燃ごみ) | 
          
            無料            
           | 
        
        
          | 家庭ごみの分別方式 | 
          2分別12種〔生活ごみ 資源(缶類・びん類、プラスチック製容器包装、ペットボトル、小型金属[金属、刃物類、スプレー缶・カセットボンベ]、古紙類[新聞、雑誌、ダンボール、紙パック]、不燃小物類)〕 | 
        
        
          | 家庭ごみの戸別収集 | 
          実施 | 
        
        
          | 粗大ごみ収集 | 
          
            あり            
           | 
        
        
          | 生ごみ処理機助成金制度 | 
          
            なし            
              - 上限金額
 
              - -
 
              - 上限比率
 
              - -
 
             
           | 
        
      
    
   
  
      堺市堺区の住まいの給付金
                  中古購入
    
    増築・改築・改修
    
      
        
          | 利子補給制度 | 
          なし                 | 
        
        
          | 補助/助成金制度 | 
          あり                  
              - 上限金額
 
              - (1)110万円(2)200万円
 
             
            
                 | 
        
      
    
          
    
      ※行政機関により公表していない地域及びデータがございます。東京23区以外の政令指定都市は、市全体のデータとして表示しています。
      
※提供データには細心の注意を払っておりますが、調査後に変更がある場合があります。 最新の情報につきましては各市区役所までお問い合わせいただくか、自治体HPなどをご確認ください。
    
      堺市堺区の暮らしデータをもっと見る
     
 
この物件を見た人はこんな物件も見ています
- 
 
- 
 
- 
 
- 
 
- 
 
- 
 
- 
- 大阪府堺市堺区幸通
 
- 
- 価格
 
- 2480万円
 
- 建物面積
 
- 132.4m2
 
- 土地面積
 
- 99.96m2
 
 
 
 
- 
 
- 
 
- 
 
- 
 
- 
 
- 
 
- 
 
- 
 
- 
 
- 
 
- 
 
- 
 
- 
 
- 
- 大阪府堺市中区上之
 
- 
- 価格
 
- 2200万円
 
- 建物面積
 
- 104.33m2
 
- 土地面積
 
- 120.5m2
 
 
 
 
- 
 
- 
 
- 
 
- 
 
- 
 
- 
 
- 
 
- 
 
- 
 
- 
 
- 
 
- 
 
- 
 
- 
- 大阪府堺市堺区旭通
 
- 
- 価格
 
- 2480万円
 
- 建物面積
 
- 142.56m2
 
- 土地面積
 
- 95.29m2
 
 
 
 
- 
 
- 
 
- 
 
- 
 
- 
 
 
 
 
  
    
  
  
    物件を見たい、物件や住環境の詳しい情報やローン相談など、
    
    
    
      - お問い合わせ先
 
      - (株)コーヨー不動産販売