アプリで簡単 物件探し 通知 共有 アプリならではの機能を使ってみる
中古住宅

三重県名張市つつじが丘南5番町 名張駅 中古一戸建て・中古住宅

情報提供元
SUUMO
三重県名張市つつじが丘南5番町 名張駅 中古一戸建て・中古住宅
価格 1280万円
交通
所在地 三重県名張市つつじが丘南5番町周辺地図
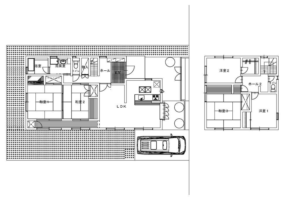
間取り 5LDK
建物面積 144.08m2(登記) 土地面積 216.3m2(登記)
築年月 1994年7月 築年数 築31年4ヶ月
おすすめポイント
水廻り全て新品交換済み!食洗器付きキッチン、ユニットバス・洗面・トイレも一新。和室は畳表替え襖張り替え、縁側床フロア、リフォーム済みで快適な住空間。ミサワホーム建築の重厚感のある建物です。いつでもご案内可能です。お気軽にお問い合わせください。
閑静な住宅街・駐車場2台分
物件を見たい、物件や住環境の詳しい情報やローン相談など、
お問い合わせ先
(株)ワンライフ

詳細情報

価格 1280万円
所在地 三重県名張市つつじが丘南5番町周辺地図
交通
  • 近鉄大阪線 名張駅 バス17分/「つつじが丘南五番町」バス停 停歩3分乗換案内
間取り 5LDK 築年月(築年数) 1994年7月(築31年4ヶ月)
建物面積 144.08m2(登記) 建物構造・規模 木造2階建
土地面積 216.3m2(登記) 土地権利 所有権
私道面積 借地期間・地代
接道状況 北東9m接面11.6m 駐車場
用途地域 1種中高 都市計画
建ぺい率/容積率 60%/200% 現況
地目 引渡可能時期 即時
情報提供元 SUUMO [050Z78463522] 情報公開日
情報更新日 次回更新予定日 随時

設備など

1種低層地域 - 即入居可 売主・代理
駐車2台以上 平屋 - 本下水
都市ガス - カウンターキッチン - 床暖房 -
ウォークインクローゼット バリアフリー -
設備 トイレ・洗面所・浴室乾燥機・ウォークインクローゼット・シャンプードレッサ・温水洗浄便座・システムキッチン・モニタ付インターホン・風呂・庭・LPガス・対面K・トイレ2ヶ所・浄水器・衣類乾燥機・食器洗浄乾燥機・上水道・本下水・駐車場2台分・リフォーム
リフォーム履歴 2025年10月完了
 水回り設備交換:キッチン・浴室・トイレ
 内装リフォーム:壁・床
 その他:洗面室
※年月は一番古いリフォーム箇所を表します
リノベーション履歴 -
備考 <物件名>つつじが丘南5番町 1280万円/<駐車場>カースペース/<土地権利>所有権/<間取り>5LDK/<リフォーム>●リフォーム:2025年10月完了(水回り設備交換:キッチン・浴室・トイレ、内装リフォーム:壁・床、その他:洗面室)※年月は一番古いリフォーム箇所を表します/<特徴>リフォーム令和7年10月完成。駐車2台。ミサワホーム建築。当社売主につき。、駐車2台可・土地50坪以上・内装リフォーム・システムキッチン・浴室乾燥機
販売戸数:1戸
特記事項 閑静な住宅街・駐車場2台分

省エネ性能

エネルギー消費性能 -
断熱性能 -
目安光熱費 -

三重県名張市つつじが丘南5番町 周辺地図情報

地図
※地図上に表示される物件の位置は付近住所に所在することを表すものであり、実際の物件所在地とは異なる場合がございます。
   正確な物件所在地は、取扱い不動産会社にお問い合わせください。
物件を見たい、物件や住環境の詳しい情報やローン相談など、
お問い合わせ先
(株)ワンライフ

不動産会社情報

お問い合わせ先 商号:(株)ワンライフ
免許番号:大阪府知事(1)第063085号
所在地:大阪府枚方市楠葉並木1-37-24 2階
TEL:072-894-7440
取引態様:売主
共有する
QRコード
物件を見たい、物件や住環境の詳しい情報やローン相談など、
お問い合わせ先
(株)ワンライフ

名張市の暮らしデータ

人口などの統計情報

世帯数 31398世帯
人口総数 75248人
転入者数 2062人
転入率(人口1000人当たり)
27.40人
転出者数 2419人
転出率(人口1000人当たり)
32.15人
土地平均価格
住宅地
31788円/m2
商業地
60050円/m2

結婚・育児の助成金

子育て関連の独自の取り組み (1)名張版ネウボラ(妊娠・出産・育児の切れ目ない支援)。(2)産後2週間目全戸電話相談。(3)主任児童委員による「こんにちは赤ちゃん訪問」。(4)おっぱいケア事業。(5)コミュニティ・スクール。(6)小1体験プロジェクト「ピカ1学級」。
出産祝い なし
公立保育所数 3所(うち0歳児保育を実施している保育所:2所)
私立保育所数 7所(うち0歳児保育を実施している保育所:7所)
保育所入所待機児童数 0人
認定こども園数 7園 預かり保育実施園数 公立:- 私立:2園
学校給食 【小学校】完全給食【中学校】給食なし
公立中学校の学校選択制 未実施
子ども・学生等医療費助成<通院>対象年齢 中学校卒業まで 子ども・学生等医療費助成<入院>対象年齢 中学校卒業まで

名張市の治安・ごみ収集情報

公共料金・インフラ

ガス料金(22m3使用した場合の月額) 名張近鉄ガス株式会社4940円
水道料金(口径20mmで20m3の月額) 名張市2420円
下水道料金(20m3を使用した場合の月額) 名張市3344円
下水道普及率 58.2%

安心・安全

建物火災出火件数 12件
人口10000人当たり
1.57件
刑法犯認知件数 264件
人口1000人当たり
3.46件
ハザード・防災マップ あり

医療

一般病院総数 2ヶ所
一般診療所総数 67ヶ所
小児科医師数 15人
小児人口10000人当たり
17.69人
産婦人科医師数 4人
15~49歳女性人口1万人当たり
3.06人
介護保険料基準額(月額) 6600円

ごみ

家庭ごみ収集(可燃ごみ) 有料
備考
指定ごみ袋有料。
家庭ごみの分別方式 3分別20種〔可燃ごみ 不燃ごみ 資源など(ビン[無色、茶、その他]、カン[アルミ・スチール、スプレー缶]、金属類、繊維類、新聞紙、紙パック、段ボール、雑誌・ざつ紙、ペットボトル、乾電池、体温計、蛍光管、廃食油、小型家電、ライター)〕
家庭ごみの戸別収集 未実施
粗大ごみ収集 あり
備考
有料。戸別収集。事前申込制。200円/点。1回収集5点まで。
生ごみ処理機助成金制度 なし
上限金額
-
上限比率
-

名張市の住まいの給付金

中古購入

利子補給制度 なし
補助/助成金制度 あり
上限金額
(1)100万円(2)120万円
備考
(1)【移住支援のためのリノベーション支援事業】市外からの移住者が行う空き家住宅の改修工事費用に対し、その1/3(上限100万円)を補助。(2)【子育て世帯リノベーション支援事業】市外からの子育て世帯の移住者が行う中古住宅の改修工事費用に対し、その1/3(上限120万円)を補助。

増築・改築・改修

利子補給制度 なし
補助/助成金制度 あり
上限金額
88万円
備考
【木造住宅耐震事業】総合評点が0.7未満である住宅の耐震補強設計費の1/3(上限18万円)を補助。また、耐震補強工事に対し、その2/3(上限50万円)を補助。耐震工事と同時にリフォームを行う場合、その1/3(上限20万円)を上乗せ。
暮らしデータ提供元:生活ガイド.com
※行政機関により公表していない地域及びデータがございます。東京23区以外の政令指定都市は、市全体のデータとして表示しています。
※提供データには細心の注意を払っておりますが、調査後に変更がある場合があります。 最新の情報につきましては各市区役所までお問い合わせいただくか、自治体HPなどをご確認ください。

この物件を見た人はこんな物件も見ています

OCN×ドコモ光新規お申込みで合計最大137,280円相当おトク!特典の内訳・適用条件など詳細はこちら

名張市内の各駅の住みやすさ

住宅ローンの返済額一覧

物件価格 1280万円に対して、年率 で、頭金 の場合
↓ボーナス 35年間 30年間 25年間 20年間 15年間 10年間
0万円 20,247円/月 23,336円/月 27,664円/月 34,158円/月 44,987円/月 66,652円/月
5万円 11,162円/月 14,361円/月 18,797円/月 25,400円/月 36,336円/月 58,106円/月
10万円 ローン不可 ローン不可 ローン不可 ローン不可 27,684円/月 49,561円/月
15万円 ローン不可 ローン不可 ローン不可 ローン不可 ローン不可 41,016円/月
20万円 ローン不可 ローン不可 ローン不可 ローン不可 ローン不可 ローン不可
25万円 ローン不可 ローン不可 ローン不可 ローン不可 ローン不可 ローン不可
30万円 ローン不可 ローン不可 ローン不可 ローン不可 ローン不可 ローン不可
支払い利息合計 707,520円~ 604,320円~ 501,700円~ 400,160円~ 300,750円~ 201,280円~
※元利均等返済方式で試算しています。 「円」の単位以下の端数金額は「切り捨て」として計算しております。
※金利は、固定金利として計算しております。
※上記の住宅ローン返済額一覧は、あくまで試算であり、将来の金利動向により、実際のご返済額とは異なります。
※ボーナス支払総額が総支払額の50%を超えている場合、上記の表では「ローン不可」となります。
※住宅ローン返済額一覧の数値は、住宅ローンのお申し込みやご融資をお約束するものではございません。
物件を見たい、物件や住環境の詳しい情報やローン相談など、
お問い合わせ先
(株)ワンライフ

掲載情報の著作権は提供元企業等に帰属します。
Copyright:(C) 2025 Recruit Co., Ltd.
アプリで簡単 物件探し 大手不動産サイトの情報から一括検!プッシュ通知で物件を見逃さない
App Storeからダウンロード Google Playで手に入れよう QRコード