ワールドシティタワーズ アクアタワー 11階 2LDK
2LDK / 品川駅
- 情報提供元
- SUUMO
価格18400万円
-
外観:写真左奥
-
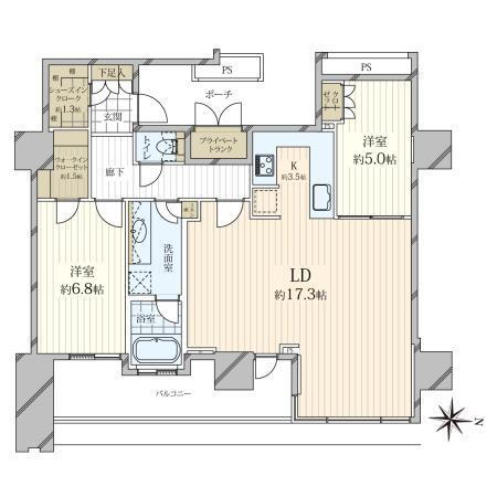
2LDK、価格1億8400万円、専有面積80.92m2、バルコニー面積12.96m2 間取り図
-
洗面所
-
リビング・ダイニング
-
リビング・ダイニング
-
リビング・ダイニング
-
LDK
-
LDK
-
キッチン
-
キッチン
-
浴室
-
トイレ
-
洋室
-
リビング・ダイニング
-
洋室
-
玄関
-
共用部
-
バルコニー
-
マルエツ 港南ワールドシティ店まで130m
-
JR「品川」駅 港南口まで1100m
-
東京モノレール「天王洲アイル」駅まで320m
-
この物件が気になりましたか? 物件や周辺施設などの詳しい情報は
問合せをすることで確認できます
- お問い合わせ先
- 野村の仲介+麻布営業部野村不動産ソリューションズ(株)
■2LDK+WIC+SIC 専有面積:80.92m2、17.3帖の広々とした明るく開放的なLD■ウォークインクローゼット、シューズインクローゼット、プライベートトランクなど収納スペース豊富■リフォームにより3LDKに変更可能(別途有償)■3.5帖の作業スペースが充実したキッチン■住友不動産(株)旧分譲×清水建設(株)施工■総戸数2090戸・地上42階建て 大規模・制震構造タワーマンション■24時間有人管理&コンシェルジュサービス有、トリプルセキュリティシステム、24時間有人警備
-
価格返済シミュレーション 18400万円
-
管理費等1万9778円/月(委託(常駐))
-
修繕
積立金24,480円 -
専有面積80.92m2(壁芯)
-
間取り2LDK
-
バルコニー面積12.96m2
-
築年数2005年10月
(築20年3ヶ月) -
方位東
-
駐車場敷地内(2万3000円~3万2500円/月)
-
総戸数1038戸
-
所在階
階数11階
地上42階地下2階建 -
物件
タイプ中古マンション -
マンション名ワールドシティタワーズ アクアタワー
-
住所東京都港区港南4 地図
-
交通JR山手線 品川駅 徒歩15分
JR東海道本線 品川駅 徒歩15分
JR京浜東北線 品川駅 徒歩15分
| 借地期間・地代 | - |
|---|---|
| 建物構造 | RC |
| 管理形態 | 委託管理 |
| 維持費等 | - |
| 土地権利 | 所有権 |
| 用途地域 | 2種住居 |
| 現況 | - |
| 引渡可能年月 | 相談 |
| 情報提供元 | SUUMO [030Z78884146] |
| 情報公開日 | |
| 情報更新日 | |
| 次回更新予定日 | 随時 |
地図
設備など
設備
| バス・トイレ | トイレ、浴室乾燥機、温水洗浄便座、風呂 |
|---|---|
| キッチン | システムキッチン、浄水器、食器洗浄乾燥機 |
| 収納 | 収納スペース、ウォークインクローゼット、シューズインクローク |
| セキュリティ | 管理人常駐、モニタ付インターホン |
| 室内設備 | 洗面所、シャンプードレッサ、床暖房、衣類乾燥機 |
| 建物設備 | エレベーター、宅配BOX |
| 駐車場・駐輪場 | 駐輪場、バイク置き場 |
備考
<物件名>ワールドシティタワーズ アクアタワー/<駐車場>敷地内/委託(常駐)/<土地権利>所有権の共有/<間取り>2LDK/<特徴>レインボーブリッジ・京浜運河を望む・陽当たり眺望、室内コンディション良好、2沿線以上利用可・オーシャンビュー・スーパー 徒歩10分以内・市街地が近い・海まで2km以内
販売戸数:1戸/管理費等帯:19778円/修繕積立金帯:24480円
法令等制限:トランクルーム面積:1.56m2 ポーチ面積:8.69m2 ※専有面積(80.92m2)には、プライベートトランク面積(1.56m2)を含みます。
続きを見る
販売戸数:1戸/管理費等帯:19778円/修繕積立金帯:24480円
法令等制限:トランクルーム面積:1.56m2 ポーチ面積:8.69m2 ※専有面積(80.92m2)には、プライベートトランク面積(1.56m2)を含みます。
特記事項
ペット相談可・日当り良好・バリアフリー・管理人常駐・24時間ゴミ出し可
省エネ性能
| エネルギー消費性能 | - |
|---|---|
| 断熱性能 | - |
| 目安光熱費 | - |
- お問い合わせ先
- 野村の仲介+麻布営業部野村不動産ソリューションズ(株)
不動産会社情報
お問い合わせ先
| 商号 | 野村の仲介+麻布営業部野村不動産ソリューションズ(株) |
|---|---|
| 免許番号 | 国土交通大臣(5)第006101号 |
| 所在地 | 東京都港区麻布十番2-11-5 アクシアフォレスタ麻布1階 |
| TEL | 0120-703-320 |
| 取引態様 | 一般媒介 |
| 管理コード | F82BY033 |
| 所属協会など | - |
この地域の暮らしデータ
港区の人口などの統計情報
| 世帯数 | 146084世帯 |
|---|---|
| 人口総数 | 266306人 |
| 転入者数 |
29747人 転入率(人口1000人当たり) 111.70人 |
| 転出者数 |
25086人 転出率(人口1000人当たり) 94.20人 |
| 土地平均価格 |
住宅地 2313000円/m2 商業地 6411852円/m2 |
港区の結婚・育児の助成金
| 出産・子育て | |
|---|---|
| 子育て関連の独自の取り組み | (1)ひとり親世帯等の経済的負担や家事負担が軽減できるよう、提供する食料品を掲載したカタログを送付し、利用者が選択した食料品を自宅に配送(2)在宅子育て家庭等の一時保育ニーズに対応するため、小規模保育事業所の空き定員を活用した「余裕活用型一時保育」を実施。(3)延長保育料の上限額の設定し、常時延長保育を利用しなければならない世帯の経済的な負担を軽減。(4)未就学児が2人以上いる世帯に、子どもタクシー利用券を支給(5)出産費用助成の算出上限額を81万円に増額(6)全ての子育て家庭が安心して生き生きと子育てができるよう、0歳から高校生世代までのお子さんを対象に、臨時に港区商店街振興組合連合会の電子スマイル商品券を「港区子育て応援分」として、子ども一人当たり5万円配付。 |
| 出産祝い |
あり
|
| 公立保育所数 |
21ヶ所 0歳児保育を実施 21ヶ所 |
| 私立保育所数 |
62ヶ所 0歳児保育を実施 62ヶ所 |
| 保育所入所待機児童数 | 0人 |
| 認定こども園数 | 1園 |
| 預かり保育実施園数-公立 | 12園 |
| 預かり保育実施園数-私立 | 6園 |
| 学校給食 | 【小学校】完全給食【中学校】完全給食 |
| 公立中学校の学校選択制 | 実施 |
| 子ども・学生等医療費助成<通院>対象年齢 | 18歳3月末まで |
| 子ども・学生等医療費助成<入院>対象年齢 | 18歳3月末まで |
港区の治安・ごみ収集情報
| 公共料金・インフラ | |
|---|---|
| ガス料金(22m3使用した場合の月額) | 東京瓦斯株式会社(東京地区等)3926円 |
| 水道料金(口径20mmで20m3の月額) | 東京都水道局2816円 |
| 下水道料金(20m3を使用した場合の月額) | 東京都下水道局2068円 |
| 下水道普及率 | 100.0% |
| 安心・安全 | |
| 建物火災出火件数 |
225件 人口10000人当たり 8.64件 |
| 刑法犯認知件数 |
2980件 人口1000人当たり 11.44件 |
| ハザード・防災マップ | あり |
| 医療 | |
| 一般病院総数 | 13ヶ所 |
| 一般診療所総数 | 953ヶ所 |
| 小児科医師数 |
144人 小児人口10000人当たり 39.84人 |
| 産婦人科医師数 |
191人 15~49歳女性人口1万人当たり 28.68人 |
| 介護保険料基準額(月額) | 6400円 |
| ごみ | |
| 家庭ごみ収集(可燃ごみ) |
無料
|
| 家庭ごみの分別方式 | 4分別7種〔可燃ごみ 不燃ごみ 資源プラスチック 資源(ペットボトル、びん、かん、古紙[新聞、ダンボール、紙パック、雑誌、その他再生可能紙])〕 |
| 家庭ごみの戸別収集 | 一部実施(65歳以上の高齢者、介護保険法[1997年法律第123号]に規定する要介護認定を受けている方、身体障害者手帳、愛の手帳又は精神障害者保健福祉手帳の交付を受けている方、難病の患者に対する医療等に関する法律[2014年法律第50号]第5条第1項に規定する指定難病又は東京都難病患者等に係る医療費等の助成に関する規則[2000年東京都規則第94号]別表第1の第2類に定める特殊疾病に罹患している方、母子健康手帳の交付を受けた妊婦の方、産後1年を経過する月の前月末日までの子どもを養育する者ひとり親世帯の方) |
| 粗大ごみ収集 |
あり
|
| 生ごみ処理機助成金制度 |
あり 上限金額 20000円 上限比率 50.0% |
港区の住まいの給付金
暮らしデータ提供元:生活ガイド.com
※行政機関により公表していない地域及びデータがございます。東京23区以外の政令指定都市は、市全体のデータとして表示しています。
※提供データには細心の注意を払っておりますが、調査後に変更がある場合があります。 最新の情報につきましては各市区役所までお問い合わせいただくか、自治体HPなどをご確認ください。
※提供データには細心の注意を払っておりますが、調査後に変更がある場合があります。 最新の情報につきましては各市区役所までお問い合わせいただくか、自治体HPなどをご確認ください。
住宅ローンシミュレーション
月々の返済額からの購入額の計算と、購入額からの返済額の計算ができます。
住宅ローンをお考えの方へ
最もおトクであなたにぴったりな
住宅ローンをみてみよう!
お気に入りの物件を見逃さない!
プッシュ通知で最新の物件情報が届く





