1棟アパート レジェンド上落合 収益物件・投資物件
- 情報提供元
- LIFULL HOME'S
-
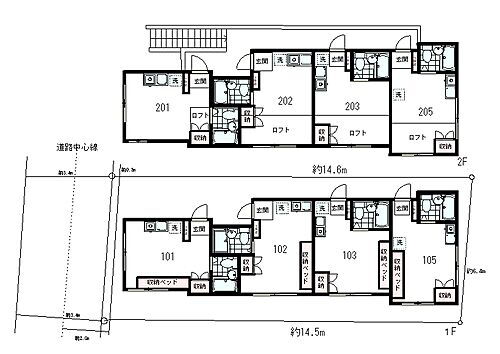
間取り
-
外観
-
外観
-
外観
-
エントランス
-
ゴミ置き場
-
前面道路
-
前面道路
-
前面道路
-
この物件が気になりましたか? 物件や周辺施設などの詳しい情報は
問合せをすることで確認できます
- お問い合わせ先
- ピタットハウス大森東口店 売買部 株式会社アイディプロパティ
オーナーチェンジ物件!!4路線使える好立地。全戸南向きとなります。現在満室稼働中
-
価格返済シミュレーション 10,300万円
-
表面利回り5.39%
-
種別1棟アパート
-
管理費等-
-
修繕
積立金- -
年間予定収入555万円(想定月収 : 46万円) 周辺の家賃相場
-
建物名レジェンド上落合
-
住所東京都新宿区上落合3丁目22-10 地図
-
交通東京メトロ東西線 落合駅 徒歩4分
都営地下鉄大江戸線 中井駅 徒歩6分
| 土地面積 | 92.56m2(公簿) |
|---|---|
| 建物面積 | 102.26m2 |
| 専有面積 | 12.15m2~13.26m2 |
| 間取り | ワンルーム |
| バルコニー面積 | - |
| 駐車場 | - |
| 管理形態 | - |
| 築年月 | 1991年2月(築34年9ヶ月) |
| 総戸数 | 8戸 |
| 事務所戸数 | - |
| 接道状況 | 西3.4m公道接面6.2m 一方道路 |
| セットバック | 1.9㎡ |
| 私道面積 | - |
| 敷地権利 | 所有権 |
| 借地期間・地代 | - |
| 建物構造 | 木造 |
| 所在階/階建て | 2階建 |
| 都市計画 | 市街化区域 |
| 建ぺい率・容積率 | 60%・300% |
| 用途地域 | 1種住居 |
| 地目 | 宅地 |
| 現況 | 賃貸中 |
| 条件等 | - |
| 引渡し | 即時 |
| 国土法 | - |
| 情報提供元 | LIFULL HOME'S [1398930000123] |
| 情報公開日 | |
| 情報更新日 | |
| 次回更新予定日 | 2025年11月6日 |
地図
表面利回り:満室時表面利回り(年)=賃料×12ヶ月/購入価格※賃料は周辺相場を元に満室時を想定して算出。利回りとは、当該不動産の1年間の予定賃料収入の不動産取得対価に対する割合であり、公租公課・共益費など、その他当該物件を維持するために必要な費用の控除する前の収入で算出しています。また、想定賃料が将来にわたり確実に得られる保証はございません。
設備など
- お問い合わせ先
- ピタットハウス大森東口店 売買部 株式会社アイディプロパティ
※0037で始まる電話番号に携帯電話からお問合せいただいた方には、ショートメッセージ(SMS)によるお問合せ完了通知をお届けする場合があります。
不動産会社情報
お問い合わせ先
商号:ピタットハウス大森東口店 売買部 株式会社アイディプロパティ
免許番号:東京都知事(03)第096845号
所在地:東京都大田区大森北1丁目4-1 桂昇大森駅前ビル2階
取引態様:一般媒介
管理コード:123
所属協会など:(公社)首都圏不動産公正取引協議会、(公社)全日本不動産協会東京都本部 会社情報 この会社の他の物件情報を見る
免許番号:東京都知事(03)第096845号
所在地:東京都大田区大森北1丁目4-1 桂昇大森駅前ビル2階
取引態様:一般媒介
管理コード:123
所属協会など:(公社)首都圏不動産公正取引協議会、(公社)全日本不動産協会東京都本部 会社情報 この会社の他の物件情報を見る
この地域の暮らしデータ
新宿区の人口などの統計情報
| 世帯数 | 222461世帯 |
|---|---|
| 人口総数 | 349226人 |
| 転入者数 |
46749人 転入率(人口1000人当たり) 133.86人 |
| 転出者数 |
41291人 転出率(人口1000人当たり) 118.24人 |
| 土地平均価格 |
住宅地 875917円/m2 商業地 5390517円/m2 |
新宿区の結婚・育児の助成金
| 出産・子育て | |
|---|---|
| 子育て関連の独自の取り組み | (1)新宿区子ども未来基金(子どもの育ちを支援する区民等の自主的な活動への支援等)。(2)しんじゅく子育て応援ナビ(スマートフォンによる子育て情報の提供)。(3)産前産後支援事業(ヘルパーや産後ドゥーラの派遣)。(4)ホームスタート(先輩ママ、パパが家庭を訪問し子育て支援)。(5)多世代近居同居助成(近居・同居にかかる子世帯と親世帯の費用を一部助成)。(6)次世代育成転居助成(子育て世帯へ民間賃貸住宅への住み替えにかかる費用を一部助成)。(7)ひとり親家庭休養ホーム。(8)ベビーシッター利用支援。(9)障害児通所支援の利用者負担を軽減。(10)障害児通所施設における給食費の負担を軽減。 |
| 出産祝い |
あり
|
| 公立保育所数 |
11ヶ所 0歳児保育を実施 11ヶ所 |
| 私立保育所数 |
54ヶ所 0歳児保育を実施 39ヶ所 |
| 保育所入所待機児童数 | 0人 |
| 認定こども園数 | 17園 |
| 預かり保育実施園数-公立 | 4園 |
| 預かり保育実施園数-私立 | 9園 |
| 学校給食 | 【小学校】完全給食【中学校】完全給食 |
| 公立中学校の学校選択制 | 実施(新入学時のみ) |
| 子ども・学生等医療費助成<通院>対象年齢 | 18歳3月末まで |
| 子ども・学生等医療費助成<入院>対象年齢 | 18歳3月末まで |
新宿区の治安・ごみ収集情報
| 公共料金・インフラ | |
|---|---|
| ガス料金(22m3使用した場合の月額) | 東京瓦斯株式会社(東京地区等)3926円 |
| 水道料金(口径20mmで20m3の月額) | 東京都水道局2816円 |
| 下水道料金(20m3を使用した場合の月額) | 東京都下水道局2068円 |
| 下水道普及率 | 100.0% |
| 安心・安全 | |
| 建物火災出火件数 |
168件 人口10000人当たり 4.81件 |
| 刑法犯認知件数 |
5537件 人口1000人当たり 15.85件 |
| ハザード・防災マップ | あり |
| 医療 | |
| 一般病院総数 | 13ヶ所 |
| 一般診療所総数 | 766ヶ所 |
| 小児科医師数 |
237人 小児人口10000人当たり 78.56人 |
| 産婦人科医師数 |
153人 15~49歳女性人口1万人当たり 17.39人 |
| 介護保険料基準額(月額) | 6600円 |
| ごみ | |
| 家庭ごみ収集(可燃ごみ) |
無料
|
| 家庭ごみの分別方式 | 3分別14種〔燃やすごみ 金属・陶器・ガラスごみ(陶器・刃物・ガラス類、蛍光ランプ・水銀体温計・水銀血圧計、ライター) 資源(資源プラスチック[製品プラスチック・容器包装プラスチック]、古紙[新聞、チラシ・雑誌・本、紙パック、段ボール]、びん、缶、ペットボトル、スプレー缶・カセットボンベ、乾電池)〕 拠点回収:使用済小型電子機器等 紙パック 白色トレイ 乾電池 |
| 家庭ごみの戸別収集 | 一部実施(高齢者・障害者世帯等のごみ出しを支援) |
| 粗大ごみ収集 |
あり
|
| 生ごみ処理機助成金制度 |
なし 上限金額 - 上限比率 - |
暮らしデータ提供元:生活ガイド.com
※行政機関により公表していない地域及びデータがございます。東京23区以外の政令指定都市は、市全体のデータとして表示しています。
※提供データには細心の注意を払っておりますが、調査後に変更がある場合があります。 最新の情報につきましては各市区役所までお問い合わせいただくか、自治体HPなどをご確認ください。
※提供データには細心の注意を払っておりますが、調査後に変更がある場合があります。 最新の情報につきましては各市区役所までお問い合わせいただくか、自治体HPなどをご確認ください。
家賃相場情報
東京メトロ東西線 落合駅の家賃相場
| 間取り | 家賃相場 | |
|---|---|---|
| ワンルーム | 10.27万円 | |
| 1K・1DK | 11.79万円 | |
| 1LDK・2K・2DK | 18.26万円 | |
| 2LDK・3K・3DK | 25.9万円 | |
| 3LDK・4K・4LDK | 29.6万円 | |
住宅ローンシミュレーション
月々の返済額からの購入額の計算と、購入額からの返済額の計算ができます。
住宅ローンをお考えの方へ
最もおトクであなたにぴったりな
住宅ローンをみてみよう!




