東京都渋谷区恵比寿3 恵比寿駅 中古一戸建て・中古住宅
2SLDK / 恵比寿駅
- 情報提供元
- SUUMO
価格20980万円
-
たっぷりの陽光に包まれる明るい住まいで自然と毎日笑顔になりますね。
-
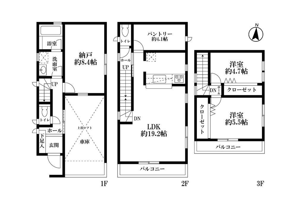
2億980万円、2LDK+2S(納戸)、土地面積77.36m2、建物面積116.62m2
-
かけがえのない友人たちを招いてホームパーティーはいかがでしょうか
-
駐車場の上部をロフトにしたスペース。いろいろな用途に使える広さがございます。
-
1階の納戸も明るく笑顔も弾けそう
-
毎日の生活を、より華やかに、より心強く感じさせてくれるリビング
-
ささやかで豊かな時間を大切にできるバスルーム
-
食洗器付きのシステムキッチンです。収納が多いので物が増えてもすっきりした印象を保つことができます。
-
ベットールームの窓も大きくて開放的
-
ちょっとした棚があると使い勝手がいいものです
-
光と影の贅沢な調和、気品あふれる艶やかなパウダールーム
-
トイレは1階・2階にそれぞれございます。混雑回避はもちろん、ご家族間や来客時のトイレの使い分けも可能です!
-
ハイルーフも悠々収納可能なシャッター付きビルトインガレージ
-
間口が広く開放感がございます。建物も大きく見え、存在感も増しますね。
-
マルエツプチ白金台プラチナ通り店まで271m
-
シューズクローゼットもたっぷり収納力
-
現地からの眺望 自然教育園も見えます
-
2階の広々と開放感のある19帖のリビングダイニングは、食事や団らんの場としてだけでなく、お友達を呼んでホームパーティーもできます♪
-
1日1日の幸せを願い、生み出される料理は、このキッチンでどうぞ
-
大きなクローゼットのある3階居室も使い勝手が良さそうです。
-
広い玄関は帰宅した時に安らぎを感じます
-
この物件が気になりましたか? 物件や周辺施設などの詳しい情報は
問合せをすることで確認できます
- お問い合わせ先
- (株)住建ハウジング営業3課
~おすすめポイント~〇【現地内覧可能】お気軽にお問い合わせ下さいませ〇2階のLDKは約19帖あり広々快適!〇緑が多く落ち着いた生活ができる環境です。〇近隣には緑豊かな公園や図書館など多くの施設がございます。〇お散歩やランニングが楽しめる住環境です。~交通至便なロケーション~〇3駅利用可能で通勤も楽々!〇保育園・小学校が徒歩10分以内!〇毎日のお買物に便利なスーパーは徒歩3分圏内の場所
-
価格返済シミュレーション 20980万円
-
土地面積77.36m2(23.40坪)(実測)
-
建物面積116.62m2(35.27坪)、うち1階車庫13.54m2
-
間取り2SLDK
-
建物構造・規模木造3階建
-
築年月2012年7月
(築13年4ヶ月) -
駐車場有
-
物件
タイプ中古住宅 -
住所東京都渋谷区恵比寿3 地図
-
交通JR山手線 恵比寿駅 徒歩16分
東京メトロ南北線 白金台駅 徒歩14分
JR山手線 目黒駅 徒歩16分
| 私道面積 | - |
|---|---|
| 接道状況 | 南7.7m接面5.9m |
| 用途地域 | 1種低層 |
| 建ぺい率 / 容積率 | 60% / 150% |
| 地目 | - |
| 土地権利 | 所有権 |
| 借地期間・地代 | - |
| 都市計画 | - |
| 現況 | - |
| 引渡可能時期 | 即時 |
| 情報提供元 | SUUMO [030Z78015413] |
| 情報公開日 | |
| 情報更新日 | |
| 次回更新予定日 | 随時 |
地図
設備など
設備
| バス・トイレ | トイレ、浴室乾燥機、温水洗浄便座、風呂、トイレ2ヶ所 |
|---|---|
| キッチン | システムキッチン、対面K、食器洗浄乾燥機 |
| 収納 | 収納スペース、グルニエ |
| セキュリティ | モニタ付インターホン |
| 室内設備 | ロフト、洗面所、フローリング、シャンプードレッサ、床暖房、衣類乾燥機 |
| 建物設備 | バルコニー |
| 駐車場・駐輪場 | 車庫 |
| 特徴 | リノベーション、リフォーム |
リフォーム履歴
2024年12月完了
水回り設備交換:キッチン・浴室・トイレ
内装リフォーム:壁・床・全室
2024年12月完了
その他リフォーム:外壁
※年月は一番古いリフォーム箇所を表します
続きを見る
水回り設備交換:キッチン・浴室・トイレ
内装リフォーム:壁・床・全室
2024年12月完了
その他リフォーム:外壁
※年月は一番古いリフォーム箇所を表します
備考
<物件名>恵比寿3丁目 リノベーション戸建て/<駐車場>車庫/<土地権利>所有権/<間取り>2LDK+2S(納戸)/<リフォーム>●リフォーム:2024年12月完了(水回り設備交換:キッチン・浴室・トイレ、内装リフォーム:壁・床・全室)、2024年12月完了(その他リフォーム:外壁)※年月は一番古いリフォーム箇所を表します/<特徴>〇恵比寿スカイウォークまで徒歩10分〇ハイルーフ可能ビルトインガレージ、即引渡可・2沿線以上利用可・LDK18畳以上・スーパー 徒歩10分以内・市街地が近い
販売戸数:1戸
法令等制限:景観法による規制有、航空法による規制有、安全条例による規制有、高度地区、準防火地域、高さ最高限度有、日影制限有
続きを見る
販売戸数:1戸
法令等制限:景観法による規制有、航空法による規制有、安全条例による規制有、高度地区、準防火地域、高さ最高限度有、日影制限有
特記事項
日当り良好・閑静な住宅街・整形地・浴室1坪以上
省エネ性能
| エネルギー消費性能 | - |
|---|---|
| 断熱性能 | - |
| 目安光熱費 | - |
- お問い合わせ先
- (株)住建ハウジング営業3課
不動産会社情報
お問い合わせ先
商号: (株)住建ハウジング営業3課
免許番号:国土交通大臣(9)第003766号
所在地:東京都渋谷区大山町18-6
TEL:0120-600903
取引態様:専属専任媒介
管理コード:2189575 この会社の他の物件情報を見る この不動産会社に相談したい
免許番号:国土交通大臣(9)第003766号
所在地:東京都渋谷区大山町18-6
TEL:0120-600903
取引態様:専属専任媒介
管理コード:2189575 この会社の他の物件情報を見る この不動産会社に相談したい
この地域の暮らしデータ
渋谷区の人口などの統計情報
| 世帯数 | 149856世帯 |
|---|---|
| 人口総数 | 230609人 |
| 転入者数 |
24064人 転入率(人口1000人当たり) 104.35人 |
| 転出者数 |
22282人 転出率(人口1000人当たり) 96.62人 |
| 土地平均価格 |
住宅地 1394400円/m2 商業地 6619444円/m2 |
渋谷区の結婚・育児の助成金
| 出産・子育て | |
|---|---|
| 子育て関連の独自の取り組み | (1)待機児解消のため区立保育室を2ヶ所設置。(2)認可外保育施設に待機児専用の受入枠を23名分確保。(3)スマートフォンアプリ「LINE」を活用した子育て情報の配信サービス。(4)渋谷区子育てネウボラ事業。妊娠から出産そして子育てまでの切れ目のない支援を行う、フィンランド発祥の出産・子育て支援の場「ネウボラ」にならい、それらの支援機能を担う関係所管を「渋谷区子育てネウボラ」に集約。保健師をはじめとするさまざまな専門職員や関係職員が連携して、妊娠、出産、子育て期のさまざまな悩み、不安等の相談に応じたり、健診を行ったり、地域のみんなで子育てをする場として設けている。 |
| 出産祝い |
あり
|
| 公立保育所数 |
18ヶ所 0歳児保育を実施 13ヶ所 |
| 私立保育所数 |
39ヶ所 0歳児保育を実施 30ヶ所 |
| 保育所入所待機児童数 | 0人 |
| 認定こども園数 | 11園 |
| 預かり保育実施園数-公立 | 5園 |
| 預かり保育実施園数-私立 | 13園 |
| 学校給食 | 【小学校】完全給食【中学校】完全給食 |
| 公立中学校の学校選択制 | 実施(選択希望制) |
| 子ども・学生等医療費助成<通院>対象年齢 | 18歳3月末まで |
| 子ども・学生等医療費助成<入院>対象年齢 | 18歳3月末まで |
渋谷区の治安・ごみ収集情報
| 公共料金・インフラ | |
|---|---|
| ガス料金(22m3使用した場合の月額) | 東京瓦斯株式会社(東京地区等)3926円 |
| 水道料金(口径20mmで20m3の月額) | 東京都水道局2816円 |
| 下水道料金(20m3を使用した場合の月額) | 東京都下水道局2068円 |
| 下水道普及率 | 100.0% |
| 安心・安全 | |
| 建物火災出火件数 |
110件 人口10000人当たり 4.51件 |
| 刑法犯認知件数 |
3388件 人口1000人当たり 13.89件 |
| ハザード・防災マップ | あり |
| 医療 | |
| 一般病院総数 | 15ヶ所 |
| 一般診療所総数 | 722ヶ所 |
| 小児科医師数 |
70人 小児人口10000人当たり 29.57人 |
| 産婦人科医師数 |
68人 15~49歳女性人口1万人当たり 11.68人 |
| 介護保険料基準額(月額) | 6170円 |
| ごみ | |
| 家庭ごみ収集(可燃ごみ) |
無料
|
| 家庭ごみの分別方式 | 3分別13種〔可燃ごみ 不燃ごみ(金属類、割れ物・刃物などの危険物、ライター) 資源(新聞、雑誌、段ボール、びん、缶、ペットボトル、スプレー缶・カセットボンベ、蛍光管、プラスチック)〕 拠点回収:小型家電 衣類 紙パック 食品用発泡スチロールトレイ 食用油 おもちゃ 食器・調理器具 集団回収:新聞 雑誌 段ボール 紙パック 布類 びん 缶 ペットボトル |
| 家庭ごみの戸別収集 | 一部実施 |
| 粗大ごみ収集 |
あり
|
| 生ごみ処理機助成金制度 |
あり 上限金額 20000円 上限比率 50.0% |
渋谷区の住まいの給付金
暮らしデータ提供元:生活ガイド.com
※行政機関により公表していない地域及びデータがございます。東京23区以外の政令指定都市は、市全体のデータとして表示しています。
※提供データには細心の注意を払っておりますが、調査後に変更がある場合があります。 最新の情報につきましては各市区役所までお問い合わせいただくか、自治体HPなどをご確認ください。
※提供データには細心の注意を払っておりますが、調査後に変更がある場合があります。 最新の情報につきましては各市区役所までお問い合わせいただくか、自治体HPなどをご確認ください。
この物件を見た人はこんな物件も
見ています
住宅ローンシミュレーション
月々の返済額からの購入額の計算と、購入額からの返済額の計算ができます。
住宅ローンをお考えの方へ
最もおトクであなたにぴったりな
住宅ローンをみてみよう!
お気に入りの物件を見逃さない!
プッシュ通知で最新の物件情報が届く






