1棟アパート cocolo 収益物件・投資物件
- 情報提供元
- LIFULL HOME'S
-
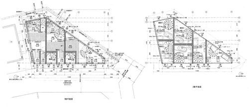
1階から2階図面
-
3階図面
-
外観
-
外観
-
周辺環境
-
エントランス
-
東側前面道路
-
メールボックス・宅配ボックス
-
東側前面道路
-
プロパンガス
-
北側前面道路
-
この物件が気になりましたか? 物件や周辺施設などの詳しい情報は
問合せをすることで確認できます
- お問い合わせ先
- ピタットハウス大森東口店 売買部 株式会社アイディプロパティ
人気のデザイナーズアパートです。現在満室稼働中となります。詳細資料お送り致します。
-
価格返済シミュレーション 10,500万円
-
表面利回り5.54%
-
種別1棟アパート
-
管理費等-
-
修繕
積立金- -
年間予定収入582万円(想定月収 : 48万円) 周辺の家賃相場
-
建物名cocolo
-
住所東京都大田区南六郷3丁目5-1 地図
-
交通京浜急行電鉄本線 雑色駅 徒歩8分
京浜急行電鉄本線 六郷土手駅 徒歩16分
| 土地面積 | 102.21m2(公簿) |
|---|---|
| 建物面積 | 172.2m2 |
| 専有面積 | 25m2~32m2 |
| 間取り | - |
| バルコニー面積 | - |
| 駐車場 | - |
| 管理形態 | - |
| 築年月 | 2013年11月(築12年1ヶ月) |
| 総戸数 | 6戸 |
| 事務所戸数 | - |
| 接道状況 | 北東4.1m公道接面2.4m 東4m私道接面13.5m位置指定あり 角地 |
| 私道面積 | - |
| 敷地権利 | 所有権 |
| 借地期間・地代 | - |
| 建物構造 | 木造 |
| 所在階/階建て | 3階建 |
| 都市計画 | 市街化区域 |
| 建ぺい率・容積率 | 60%・200% |
| 用途地域 | 準工業 |
| 地目 | 宅地 |
| 現況 | 賃貸中 |
| 条件等 | - |
| 引渡し | 相談 |
| 国土法 | - |
| 情報提供元 | LIFULL HOME'S [1398930000132] |
| 情報公開日 | |
| 情報更新日 | |
| 次回更新予定日 | 2025年11月13日 |
地図
表面利回り:満室時表面利回り(年)=賃料×12ヶ月/購入価格※賃料は周辺相場を元に満室時を想定して算出。利回りとは、当該不動産の1年間の予定賃料収入の不動産取得対価に対する割合であり、公租公課・共益費など、その他当該物件を維持するために必要な費用の控除する前の収入で算出しています。また、想定賃料が将来にわたり確実に得られる保証はございません。
設備など
- お問い合わせ先
- ピタットハウス大森東口店 売買部 株式会社アイディプロパティ
※0037で始まる電話番号に携帯電話からお問合せいただいた方には、ショートメッセージ(SMS)によるお問合せ完了通知をお届けする場合があります。
不動産会社情報
お問い合わせ先
商号:ピタットハウス大森東口店 売買部 株式会社アイディプロパティ
免許番号:東京都知事(03)第096845号
所在地:東京都大田区大森北1丁目4-1 桂昇大森駅前ビル2階
取引態様:専任媒介
管理コード:132
所属協会など:(公社)首都圏不動産公正取引協議会、(公社)全日本不動産協会東京都本部 会社情報 この会社の他の物件情報を見る
免許番号:東京都知事(03)第096845号
所在地:東京都大田区大森北1丁目4-1 桂昇大森駅前ビル2階
取引態様:専任媒介
管理コード:132
所属協会など:(公社)首都圏不動産公正取引協議会、(公社)全日本不動産協会東京都本部 会社情報 この会社の他の物件情報を見る
この地域の暮らしデータ
大田区の人口などの統計情報
| 世帯数 | 399628世帯 |
|---|---|
| 人口総数 | 733634人 |
| 転入者数 |
55358人 転入率(人口1000人当たり) 75.46人 |
| 転出者数 |
47162人 転出率(人口1000人当たり) 64.29人 |
| 土地平均価格 |
住宅地 524720円/m2 商業地 895412円/m2 |
大田区の結婚・育児の助成金
| 出産・子育て | |
|---|---|
| 子育て関連の独自の取り組み | 区内保育施設の人材の確保・定着を支援し、また保育の質の向上を目的とする研修実施の他、若年層保育士の定着促進と中堅・ベテラン層保育士の同一施設における継続勤務を奨励することで保育士の質の向上を図る保育士応援手当を交付している。 |
| 出産祝い |
あり
|
| 公立保育所数 |
37ヶ所 0歳児保育を実施 26ヶ所 |
| 私立保育所数 |
155ヶ所 0歳児保育を実施 104ヶ所 |
| 保育所入所待機児童数 | 0人 |
| 認定こども園数 | 0園 |
| 預かり保育実施園数-公立 | 0園 |
| 預かり保育実施園数-私立 | 45園 |
| 学校給食 | 【小学校】完全給食【中学校】完全給食 |
| 公立中学校の学校選択制 | 未実施 |
| 子ども・学生等医療費助成<通院>対象年齢 | 18歳3月末まで |
| 子ども・学生等医療費助成<入院>対象年齢 | 18歳3月末まで |
大田区の治安・ごみ収集情報
| 公共料金・インフラ | |
|---|---|
| ガス料金(22m3使用した場合の月額) | 東京瓦斯株式会社(東京地区等)3926円 |
| 水道料金(口径20mmで20m3の月額) | 東京都水道局2816円 |
| 下水道料金(20m3を使用した場合の月額) | 東京都下水道局2068円 |
| 下水道普及率 | 100.0% |
| 安心・安全 | |
| 建物火災出火件数 |
118件 人口10000人当たり 1.58件 |
| 刑法犯認知件数 |
3851件 人口1000人当たり 5.15件 |
| ハザード・防災マップ | あり |
| 医療 | |
| 一般病院総数 | 24ヶ所 |
| 一般診療所総数 | 613ヶ所 |
| 小児科医師数 |
149人 小児人口10000人当たり 19.74人 |
| 産婦人科医師数 |
66人 15~49歳女性人口1万人当たり 3.96人 |
| 介護保険料基準額(月額) | 6600円 |
| ごみ | |
| 家庭ごみ収集(可燃ごみ) |
無料
|
| 家庭ごみの分別方式 | 3分別11種〔可燃ごみ 不燃ごみ 資源9品目(新聞・チラシ、雑誌・雑がみ、紙パック、段ボール、飲食用びん、飲食用かん、食品トレイ、ペットボトル、発泡スチロール)〕 拠点回収:使用済小型家電10品目(携帯電話 携帯音楽プレーヤー 携帯ゲーム機器 デジタルカメラ ポータブルビデオカメラ ポータブルカーナビ 電子辞書 卓上計算機 ACアダプター USBメモリ) 廃食用油 古着 |
| 家庭ごみの戸別収集 | 一部実施(次のいずれかに該当する者のみで構成される世帯で、自ら集積所までごみを持ち出すことが困難であり、また他の者の協力を得ることができない世帯。[1]要介護2以上に認定されていること。[2]身体障害者障害程度1級及び2級に認定されていること。[3]その他、区長が認める者) |
| 粗大ごみ収集 |
あり
|
| 生ごみ処理機助成金制度 |
なし 上限金額 - 上限比率 - |
暮らしデータ提供元:生活ガイド.com
※行政機関により公表していない地域及びデータがございます。東京23区以外の政令指定都市は、市全体のデータとして表示しています。
※提供データには細心の注意を払っておりますが、調査後に変更がある場合があります。 最新の情報につきましては各市区役所までお問い合わせいただくか、自治体HPなどをご確認ください。
※提供データには細心の注意を払っておりますが、調査後に変更がある場合があります。 最新の情報につきましては各市区役所までお問い合わせいただくか、自治体HPなどをご確認ください。
家賃相場情報
京浜急行電鉄本線 雑色駅の家賃相場
| 間取り | 家賃相場 | |
|---|---|---|
| ワンルーム | 8.74万円 | |
| 1K・1DK | 9.3万円 | |
| 1LDK・2K・2DK | 13.53万円 | |
| 2LDK・3K・3DK | 17.3万円 | |
| 3LDK・4K・4LDK | 21.98万円 | |
住宅ローンシミュレーション
月々の返済額からの購入額の計算と、購入額からの返済額の計算ができます。
住宅ローンをお考えの方へ
最もおトクであなたにぴったりな
住宅ローンをみてみよう!




