建築条件付土地
兵庫県加古川市尾上町口里 浜の宮駅 土地
173.41m2(実測) / 浜の宮駅
- 情報提供元
- LIFULL HOME'S
価格1490万円
-
現地写真(造成CGイメージ加工)□■現地ご案内&ご来店予約受付しております!■□お気軽にお問合せ下さい♪
-
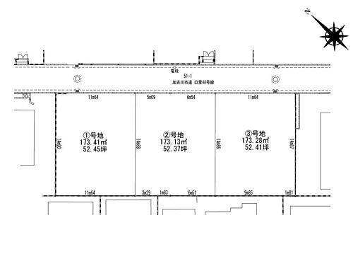
■全体区画図■大和建設では、24時間NETから来店予約・モデルハウス見学もご予約受付中♪お気軽にご相談ください!
-
現地写真(造成CGイメージ加工)□■現地ご案内&ご来店予約受付しております!■□お気軽にお問合せ下さい♪
-
山電浜の宮駅 徒歩5分
-
加古川市浜の宮幼稚園 徒歩6分(約470m)
-
加古川市立浜の宮小学校 徒歩5分(約370m)
-
加古川市立浜の宮中学校 徒歩10分(約780m)
-
マルアイ浜の宮店 徒歩6分(約440m)
-
エディオン新加古川店 徒歩13分(約1060m)
-
サンドラッグ加古川安田店 徒歩16分(約1240m)
-
マックスバリュ安田店 徒歩16分(約1280m)
-
ホームプラザナフコ南加古川店 徒歩16分(約1280m)
-
ジョーシン加古川店 徒歩18分(約1400m)
-
医療法人社団せいわ会たずみ病院 徒歩13分(約990m)
-
Webよりご来店予約していただいたご新規のお客様にJCBギフトカード3000円分プレゼント
-
プラン例 床面積:100.43平米 建物価格:1998万円(税込)
-
スーパーストロング構造体バリューによる「耐震等級3」で建てる家づくり。永く暮らすマイホームなので目に見えるところだけでなく、目に見えない「住まいの性能」にしっかりこだわった家づくりをご提案します
-
建築基準法の1.5倍の耐震性能である耐震等級3を標準に採用。避難所となる病院や消防署の耐震性能と同レベルです。また、地震の揺れを最大80%軽減する特殊制震ゴムを採用し、繰り返しの地震にも強い家です。
-
地震保険では、地震で建物が全壊した場合、建物価格の50%しか補償されません。当社の場合、残りの50%を株式会社LIXILが補償。最大で2000万円(=建物価格4000万円)まで補償。
-
基礎では「上端筋」と「下端筋」を1本づつ増やし、開口部においては「開口補強筋」を追加するなど、通常と比べてかなり鉄筋量が多くなっています。
-
構造壁には、筋交いだけでなく構造用パネルと呼ばれている面材と合わせることで、壁の強度そのものをアップさせています。
-
「剛床工法」を採用し、地震時に建物にかかる水平方向のパワーを、効率よく柱や耐力壁に分散することで、建物全体でしっかりと揺れをおさえ、耐震性能を大幅にアップ。
-
品質を守る為に独自の検査基準を設定し、トリプルチェックで安心できる家づくりを目指しております。
-
安心して住み続けて頂くために建物の20年保証制度の導入を行っています。当社が必要と認めた有償のメンテナンス工事を実施して頂くことにより、さらに10年間保証を延長することが出来ます。
-
当社施工例 住宅の横綱大和建設は自由設計です。満足いくまでお打合せ頂けます。
-
当社施工例 最初から最後まで専任の設計士が担当なので気安さと安心感をもって何度でもご相談して頂けます。
-
JR西明石駅から徒歩4分・国道2号線沿い「小久保西」交差点カド お車でお越しの方は店舗専用駐車場14台完備してますのでご安心下さい。駐車場は2号線北側ののぼりが立っているところです。
-
ゆったりとした店内でお飲み物を飲みながら、ゆっくりお打ち合わせをして頂けます♪ひざ掛けもご用意していますので、お気軽にお声かけ下さい。
-
この物件が気になりましたか? 物件や周辺施設などの詳しい情報は
問合せをすることで確認できます
- お問い合わせ先
- DAIWA 住宅の横綱大和建設株式会社
【 DAIWA CITY 】ダイワシティ尾上町口里 全3区画 販売開始しました! 約52坪のきれいな整形地です♪ 山電浜の宮駅まで徒歩5分♪ スーパーまで徒歩6分とお買い物も便利な立地です♪
-
価格返済シミュレーション 1490万円
-
坪単価28.41万円
-
土地面積173.41m2(実測)
-
用途地域1種中高
-
建築条件あり
-
建ぺい率60%
-
容積率200%
-
住所兵庫県加古川市尾上町口里 地図
-
交通山陽電気鉄道本線 浜の宮駅 徒歩5分
| 土地権利 | 所有権 |
|---|---|
| 都市計画 | 市街化区域 |
| 借地期間・地代 | - |
| 私道面積 | - |
| 地目 | 宅地 |
| 接道状況 | 北東4.1m公道 一方道路 |
| セットバック | 無 |
| 引渡可能時期 | 相談 |
| 現況 | 更地 |
| 条件等 | |
| 情報提供元 | LIFULL HOME'S [1394480003263] |
| 情報公開日 | |
| 情報更新日 | |
| 次回更新予定日 | 2025年12月7日 |
地図
設備など
設備
上水道・都市ガス・本下水
続きを見る
建築条件
建築条件あり
建築条件付き土地とは、一定期間内(概ね3ヶ月程度)に特定の建設会社と建築請負契約を結ぶことを 条件にしている宅地のことです。建物の内容は、土地購入者の自由意思により決定可能で、土地売買契約後、 建築請負会社と購入した土地に建設する建物について協議することになります。 期間内に建築請負契約が成立しなければ売買契約は白紙となり、支払済みの金銭はすべて返却されます。
備考
【物件周辺の生活情報】
・学校
加古川市立浜の宮小学校(370m)、加古川市立浜の宮中学校(780m)
・買い物
スーパー(440m)、コンビニ(310m)、ドラッグストア(1,240m)
・その他施設
総合病院(990m)、加古川市立浜の宮幼稚園(470m)
引渡し時期相談内容:※造成工事2025年4月下旬完了予定。
~地盤20年保証付き~耐震等級3 耐震補償付き・制震標準仕様・HEAT20G2(断熱)標準仕様 【設備・特記事項備考】建築条件付き
国土法届出:不要
法令等制限:※22条区域、第3種高度地区
続きを見る
・学校
加古川市立浜の宮小学校(370m)、加古川市立浜の宮中学校(780m)
・買い物
スーパー(440m)、コンビニ(310m)、ドラッグストア(1,240m)
・その他施設
総合病院(990m)、加古川市立浜の宮幼稚園(470m)
引渡し時期相談内容:※造成工事2025年4月下旬完了予定。
~地盤20年保証付き~耐震等級3 耐震補償付き・制震標準仕様・HEAT20G2(断熱)標準仕様 【設備・特記事項備考】建築条件付き
国土法届出:不要
法令等制限:※22条区域、第3種高度地区
特記事項
省エネ性能
| エネルギー消費性能 | - |
|---|---|
| 断熱性能 | - |
| 目安光熱費 | - |
- お問い合わせ先
- DAIWA 住宅の横綱大和建設株式会社
※0037で始まる電話番号に携帯電話からお問合せいただいた方には、ショートメッセージ(SMS)によるお問合せ完了通知をお届けする場合があります。
不動産会社情報
お問い合わせ先
商号: DAIWA 住宅の横綱大和建設株式会社
免許番号:兵庫県知事(6)第401049号
所在地:兵庫県明石市小久保2丁目14番地の1
取引態様:代理
管理コード:3263
所属協会など:(公社)近畿圏不動産流通機構 会社情報 この会社の他の物件情報を見る この不動産会社に相談したい
免許番号:兵庫県知事(6)第401049号
所在地:兵庫県明石市小久保2丁目14番地の1
取引態様:代理
管理コード:3263
所属協会など:(公社)近畿圏不動産流通機構 会社情報 この会社の他の物件情報を見る この不動産会社に相談したい
※建築条件土地の情報内に掲載されている、建物プラン例は、土地購入者の設計プランの参考の一例であって、プランの採用可否は任意です。
※建築条件付き土地とは、その土地に建築する建物の建築請負契約が、一定期間内に成立することを条件として売買される土地のことをいいます。建築請負契約成立に向けて設計プランを協議するため、土地購入者が自己の希望する建物の設計協議をするために必要な相当の期間の交渉期間が設定され、その期間内で希望を満たすプランが実現できたかどうかにより結論を出します。なお、この期間は概ね3ヶ月程度とされています。納得のいくプランが出来ず、建築請負契約が成立しない場合、土地売買契約は白紙に戻り、土地契約にかかった代金(土地代金、手付金など)は名目のいかんに関わらず、全て返却されます。
※建築条件付き土地とは、その土地に建築する建物の建築請負契約が、一定期間内に成立することを条件として売買される土地のことをいいます。建築請負契約成立に向けて設計プランを協議するため、土地購入者が自己の希望する建物の設計協議をするために必要な相当の期間の交渉期間が設定され、その期間内で希望を満たすプランが実現できたかどうかにより結論を出します。なお、この期間は概ね3ヶ月程度とされています。納得のいくプランが出来ず、建築請負契約が成立しない場合、土地売買契約は白紙に戻り、土地契約にかかった代金(土地代金、手付金など)は名目のいかんに関わらず、全て返却されます。
この地域の暮らしデータ
加古川市の人口などの統計情報
| 世帯数 | 107075世帯 |
|---|---|
| 人口総数 | 258691人 |
| 転入者数 |
8245人 転入率(人口1000人当たり) 31.87人 |
| 転出者数 |
7948人 転出率(人口1000人当たり) 30.72人 |
| 土地平均価格 |
住宅地 81219円/m2 商業地 138450円/m2 |
加古川市の結婚・育児の助成金
| 出産・子育て | |
|---|---|
| 子育て関連の独自の取り組み | (1)子育て支援予防接種助成事業(任意の予防接種のうち、おたふく風邪・三種混合ワクチンの接種料金の一部[2,000円・各1回限り]を助成)。(2)不妊不育症治療費助成事業(不妊・不育症の検査・治療を受けた夫婦に費用の一部を助成。一般不妊治療3万円/年、特定不妊治療5万円/回、不育症治療10万円/年を上限。所得制限なし)。(3)無料託児サービス(主に在宅で子育てをする家庭を対象に、市内2ヶ所の子育てプラザ内で加古川市在住の6ヶ月から就学前の子どもを無料で預かるサービスを実施している)。(4)育児休業からの復職に伴う利用申し込み(育児休業からの復職を予定している保護者を対象に、早期から年度途中の入園予約を受付)。 |
| 出産祝い |
あり
|
| 公立保育所数 |
3ヶ所 0歳児保育を実施 3ヶ所 |
| 私立保育所数 |
13ヶ所 0歳児保育を実施 13ヶ所 |
| 保育所入所待機児童数 | 12人 |
| 認定こども園数 | 31園 |
| 預かり保育実施園数-公立 | 16園 |
| 預かり保育実施園数-私立 | 2園 |
| 学校給食 | 【小学校】完全給食【中学校】完全給食 |
| 公立中学校の学校選択制 | 未実施 |
| 子ども・学生等医療費助成<通院>対象年齢 | 18歳3月末まで |
| 子ども・学生等医療費助成<入院>対象年齢 | 18歳3月末まで |
加古川市の治安・ごみ収集情報
| 公共料金・インフラ | |
|---|---|
| ガス料金(22m3使用した場合の月額) | 大阪瓦斯株式会社4544円 |
| 水道料金(口径20mmで20m3の月額) | 加古川市2596円 |
| 下水道料金(20m3を使用した場合の月額) | 加古川市2530円 |
| 下水道普及率 | 92.4% |
| 安心・安全 | |
| 建物火災出火件数 |
36件 人口10000人当たり 1.38件 |
| 刑法犯認知件数 |
1752件 人口1000人当たり 6.72件 |
| ハザード・防災マップ | あり |
| 医療 | |
| 一般病院総数 | 12ヶ所 |
| 一般診療所総数 | 179ヶ所 |
| 小児科医師数 |
50人 小児人口10000人当たり 16.09人 |
| 産婦人科医師数 |
18人 15~49歳女性人口1万人当たり 3.72人 |
| 介護保険料基準額(月額) | 5600円 |
| ごみ | |
| 家庭ごみ収集(可燃ごみ) |
無料
|
| 家庭ごみの分別方式 | 3分別17種〔燃やすごみ 燃やさないごみ 資源物(カン[飲食料用カン、スプレー缶・カセットボンベ]、ビン[無色びん、茶色びん、その他の色びん]、ペットボトル、紙[新聞紙・折込チラシ、段ボール、雑誌・雑がみ、紙パック]、衣類、蛍光灯、乾電池、ライター、剪定枝)〕 拠点回収:使用済小型家電 ライター インクカートリッジ 水銀使用製品 |
| 家庭ごみの戸別収集 | 一部実施(【加古川市さわやか収集】実施要綱に該当する高齢者、心身障がい者等を対象に家庭ごみ戸別収集を実施) |
| 粗大ごみ収集 |
あり
|
| 生ごみ処理機助成金制度 |
あり 上限金額 30000円 上限比率 50.0% |
加古川市の住まいの給付金
暮らしデータ提供元:生活ガイド.com
※行政機関により公表していない地域及びデータがございます。東京23区以外の政令指定都市は、市全体のデータとして表示しています。
※提供データには細心の注意を払っておりますが、調査後に変更がある場合があります。 最新の情報につきましては各市区役所までお問い合わせいただくか、自治体HPなどをご確認ください。
※提供データには細心の注意を払っておりますが、調査後に変更がある場合があります。 最新の情報につきましては各市区役所までお問い合わせいただくか、自治体HPなどをご確認ください。
新築一戸建てからも探してみる
建築条件付土地
加古川町平野(加古川駅) 2580万円~2880万円
建築条件付土地
FreedomTown東加古川<1期完売、2期分譲開始!>
建築条件付土地
◆パルスタイル◆ 加古川市加古川町粟津
住宅ローンシミュレーション
月々の返済額からの購入額の計算と、購入額からの返済額の計算ができます。
住宅ローンをお考えの方へ
最もおトクであなたにぴったりな
住宅ローンをみてみよう!
お気に入りの物件を見逃さない!
プッシュ通知で最新の物件情報が届く





