ドルミ恵比寿 1階 1SLDK
1SLDK / 恵比寿駅
- 情報提供元
- SUUMO
価格8980万円
-
1982年に竣工した、総戸数29戸のマンション。徒歩1分の場所にはコンビニがあって便利!バス停も徒歩1分で、「渋谷」駅や「田町」駅へバスでのアクセスも可能です◎
-
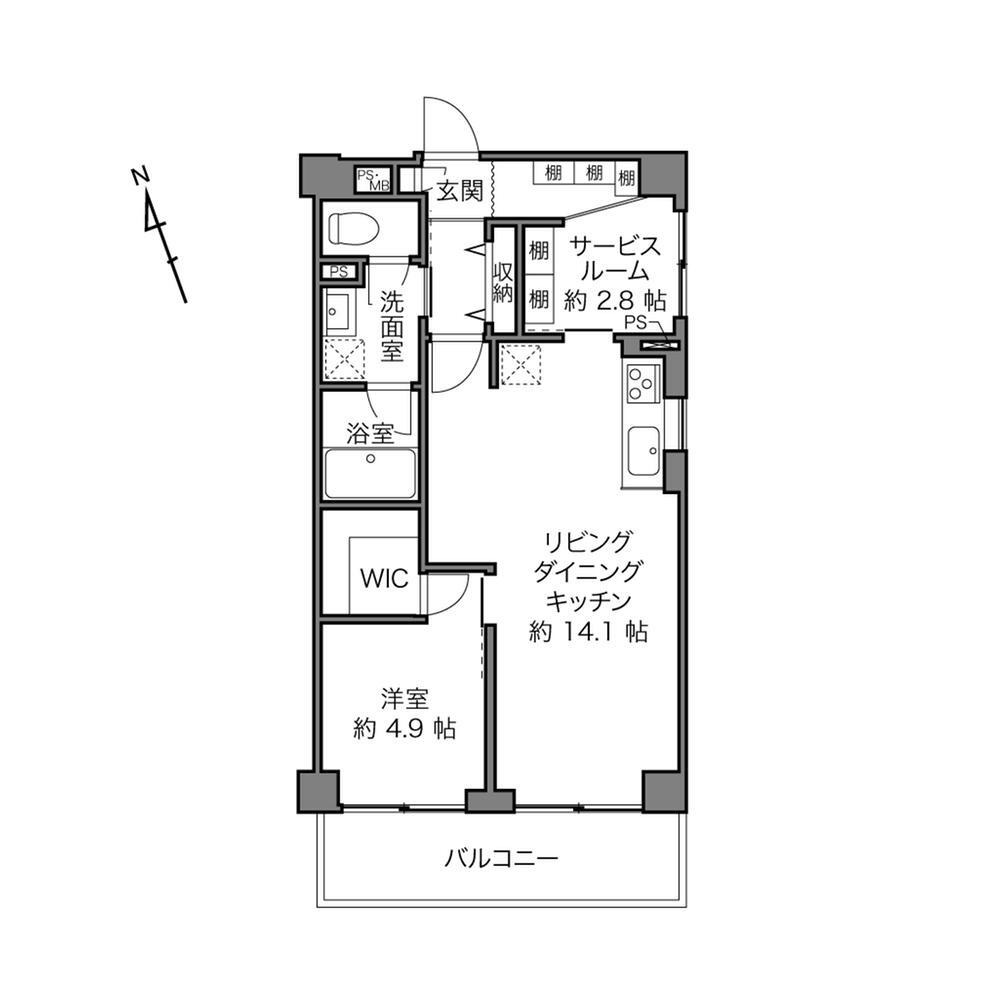
1LDK+S(納戸)、価格8980万円、専有面積52.38m2、バルコニー面積7.42m2
-
LDKの広さは約14.1帖。南西向きのバルコニーに面しています。※完成イメージ
-
南西向きの窓からはやわらかな自然光が差し込みます。1階なので、わんちゃんの足音などは気にせずOKなのはうれしい!※完成イメージ
-
年間1000件を超える取引を行う中古・リノベーション住宅の流通プラットフォームのカウカモ。その豊富なデータを元に、一住戸ずつ顧客起点でプロデュースし住み心地まで考え抜いたリノベーション物件です。
-
約4.9帖の洋室はLDKと同じく南西向き。ダブルベッドのほかに、サイドボードなどを置ける広さです。※完成イメージ
-
広い土間が目に飛び込んできて、ひと味違う空間※完成イメージ
-
造作の洗面台のまわりにはくすみカラーのタイルをあしらい、可愛い印象に。※完成イメージ
-
ウォークインクローゼット(WIC)。シーズンオフのアイテムや使用頻度の低い家電、スーツケースなどをまるっと収納できます。※完成イメージ
-
トイレには洗面室からアクセスする間取りです。※完成イメージ
-
マンションエントランス
-
1階に所在する住戸のため、正面には道路が。ただし、きれいに手入れされた植栽が視線を遮っている印象です。
-
キッチンは3口コンロタイプで食洗機付き。壁には横長タイルをあしらい、ニッチ収納を設けます。キッチン横には、食器棚や、サイドボードなどを置けるスペースがありますよ。※完成イメージ
-
窓を背にしたカット。躯体現しの梁(はり)を境にリビングとダイニングのスペースを緩やかに分け、それぞれに家具やアートをゆったりと飾れる広さを確保します。※完成イメージ
-
約4.9帖の洋室にはWIC(ウォークインクローゼット)が。※完成イメージ
-
土間はサービスルームまで続く間取りで、カーテンで緩く仕切ることも可能。壁には有孔ボードと可動棚を設置し、見せる収納を楽しめるようになっています。※完成イメージ
-
共用部
-
突板のフローリングや特徴的なタイルなど、素材の表情を活かし、既製品感を抑えた “ちょっとユニーク” なカフェのような空間に仕上げます。※完成イメージ
-
約2.8帖のサービスルームには、北東向きの腰窓から自然光が届きます。※完成イメージ
-
玄関土間の壁には有孔ボードと可動棚を設置し、見せる収納を楽しめるようになっています。※完成イメージ
-
この物件が気になりましたか? 物件や周辺施設などの詳しい情報は
問合せをすることで確認できます
- お問い合わせ先
- (株)ツクルバ
■仕事もプライベートも心地よく共存できるよう、広がりのあるLDKと回遊できる間取りで生活動線とし、多目的な暮らしを叶える空間となっております。■1階ながらも、外からの視線は植栽でやわらかく遮られ、南向きの明るさを心地よく感じられる住まいです。
-
価格返済シミュレーション 8980万円
-
管理費等1万4400円/月(委託(管理員なし))
-
修繕
積立金13,360円 -
専有面積52.38m2(壁芯)
-
間取り1SLDK
-
バルコニー面積7.42m2
-
築年数1982年6月
(築43年5ヶ月) -
方位南
-
駐車場無
-
総戸数29戸
-
所在階
階数1階
6階建 -
物件
タイプ中古マンション -
マンション名ドルミ恵比寿
-
住所東京都渋谷区恵比寿3 地図
-
交通JR山手線 恵比寿駅 徒歩9分
東京メトロ日比谷線 広尾駅 徒歩12分
東京メトロ南北線 白金高輪駅 徒歩20分
| 借地期間・地代 | - |
|---|---|
| 建物構造 | SRC |
| 管理形態 | - |
| 維持費等 | - |
| 土地権利 | 所有権 |
| 用途地域 | 近隣商業 |
| 現況 | - |
| 引渡可能年月 | 即時 |
| 情報提供元 | SUUMO [030Z78590831] |
| 情報公開日 | |
| 情報更新日 | |
| 次回更新予定日 | 随時 |
地図
設備など
設備
| バス・トイレ | トイレ、浴室乾燥機、温水洗浄便座、風呂 |
|---|---|
| キッチン | システムキッチン、浄水器、食器洗浄乾燥機 |
| 収納 | 収納スペース、ウォークインクローゼット、シューズインクローク |
| セキュリティ | モニタ付インターホン |
| 室内設備 | 衣類乾燥機 |
| 建物設備 | バルコニー、エレベーター |
| 駐車場・駐輪場 | 駐輪場、バイク置き場 |
| 特徴 | リノベーション、リフォーム |
| テレビ・通信 | 高速ネット対応 |
リフォーム履歴
2025年11月完了予定
水回り設備交換:キッチン・浴室・トイレ
内装リフォーム:壁・床・全室
その他:給排水管、給湯器
2003年12月完了
共用部の大規模修繕工事
※年月は一番古いリフォーム箇所を表します
続きを見る
水回り設備交換:キッチン・浴室・トイレ
内装リフォーム:壁・床・全室
その他:給排水管、給湯器
2003年12月完了
共用部の大規模修繕工事
※年月は一番古いリフォーム箇所を表します
備考
<物件名>ドルミ恵比寿/<駐車場>無/<土地権利>所有権/<間取り>1LDK+S(納戸)/<リフォーム>●リフォーム:2025年11月完了予定(水回り設備交換:キッチン・浴室・トイレ、内装リフォーム:壁・床・全室、その他:給排水管、給湯器)、2003年12月完了(共用部の大規模修繕工事)※年月は一番古いリフォーム箇所を表します/<特徴>恵比寿駅徒歩9分、1SLDK+SIC+WICで収納充実。小型犬、猫2匹可能、修繕・点検の記録・年内引渡可・即引渡可・2沿線以上利用可・市街地が近い
販売戸数:1戸/管理費等帯:14400円/修繕積立金帯:13360円
続きを見る
販売戸数:1戸/管理費等帯:14400円/修繕積立金帯:13360円
特記事項
ペット相談可・角部屋・24時間ゴミ出し可
省エネ性能
| エネルギー消費性能 | - |
|---|---|
| 断熱性能 | - |
| 目安光熱費 | - |
- お問い合わせ先
- (株)ツクルバ
不動産会社情報
お問い合わせ先
商号: (株)ツクルバ
免許番号:東京都知事(3)第097398号
所在地:東京都渋谷区恵比寿4-3-14 恵比寿SSビル7階
TEL:050-5526-2929
取引態様:一般媒介 この会社の他の物件情報を見る この不動産会社に相談したい
免許番号:東京都知事(3)第097398号
所在地:東京都渋谷区恵比寿4-3-14 恵比寿SSビル7階
TEL:050-5526-2929
取引態様:一般媒介 この会社の他の物件情報を見る この不動産会社に相談したい
この地域の暮らしデータ
渋谷区の人口などの統計情報
| 世帯数 | 149856世帯 |
|---|---|
| 人口総数 | 230609人 |
| 転入者数 |
24064人 転入率(人口1000人当たり) 104.35人 |
| 転出者数 |
22282人 転出率(人口1000人当たり) 96.62人 |
| 土地平均価格 |
住宅地 1394400円/m2 商業地 6619444円/m2 |
渋谷区の結婚・育児の助成金
| 出産・子育て | |
|---|---|
| 子育て関連の独自の取り組み | (1)待機児解消のため区立保育室を2ヶ所設置。(2)認可外保育施設に待機児専用の受入枠を23名分確保。(3)スマートフォンアプリ「LINE」を活用した子育て情報の配信サービス。(4)渋谷区子育てネウボラ事業。妊娠から出産そして子育てまでの切れ目のない支援を行う、フィンランド発祥の出産・子育て支援の場「ネウボラ」にならい、それらの支援機能を担う関係所管を「渋谷区子育てネウボラ」に集約。保健師をはじめとするさまざまな専門職員や関係職員が連携して、妊娠、出産、子育て期のさまざまな悩み、不安等の相談に応じたり、健診を行ったり、地域のみんなで子育てをする場として設けている。 |
| 出産祝い |
あり
|
| 公立保育所数 |
18ヶ所 0歳児保育を実施 13ヶ所 |
| 私立保育所数 |
39ヶ所 0歳児保育を実施 30ヶ所 |
| 保育所入所待機児童数 | 0人 |
| 認定こども園数 | 11園 |
| 預かり保育実施園数-公立 | 5園 |
| 預かり保育実施園数-私立 | 13園 |
| 学校給食 | 【小学校】完全給食【中学校】完全給食 |
| 公立中学校の学校選択制 | 実施(選択希望制) |
| 子ども・学生等医療費助成<通院>対象年齢 | 18歳3月末まで |
| 子ども・学生等医療費助成<入院>対象年齢 | 18歳3月末まで |
渋谷区の治安・ごみ収集情報
| 公共料金・インフラ | |
|---|---|
| ガス料金(22m3使用した場合の月額) | 東京瓦斯株式会社(東京地区等)3926円 |
| 水道料金(口径20mmで20m3の月額) | 東京都水道局2816円 |
| 下水道料金(20m3を使用した場合の月額) | 東京都下水道局2068円 |
| 下水道普及率 | 100.0% |
| 安心・安全 | |
| 建物火災出火件数 |
110件 人口10000人当たり 4.51件 |
| 刑法犯認知件数 |
3388件 人口1000人当たり 13.89件 |
| ハザード・防災マップ | あり |
| 医療 | |
| 一般病院総数 | 15ヶ所 |
| 一般診療所総数 | 722ヶ所 |
| 小児科医師数 |
70人 小児人口10000人当たり 29.57人 |
| 産婦人科医師数 |
68人 15~49歳女性人口1万人当たり 11.68人 |
| 介護保険料基準額(月額) | 6170円 |
| ごみ | |
| 家庭ごみ収集(可燃ごみ) |
無料
|
| 家庭ごみの分別方式 | 3分別13種〔可燃ごみ 不燃ごみ(金属類、割れ物・刃物などの危険物、ライター) 資源(新聞、雑誌、段ボール、びん、缶、ペットボトル、スプレー缶・カセットボンベ、蛍光管、プラスチック)〕 拠点回収:小型家電 衣類 紙パック 食品用発泡スチロールトレイ 食用油 おもちゃ 食器・調理器具 集団回収:新聞 雑誌 段ボール 紙パック 布類 びん 缶 ペットボトル |
| 家庭ごみの戸別収集 | 一部実施 |
| 粗大ごみ収集 |
あり
|
| 生ごみ処理機助成金制度 |
あり 上限金額 20000円 上限比率 50.0% |
渋谷区の住まいの給付金
暮らしデータ提供元:生活ガイド.com
※行政機関により公表していない地域及びデータがございます。東京23区以外の政令指定都市は、市全体のデータとして表示しています。
※提供データには細心の注意を払っておりますが、調査後に変更がある場合があります。 最新の情報につきましては各市区役所までお問い合わせいただくか、自治体HPなどをご確認ください。
※提供データには細心の注意を払っておりますが、調査後に変更がある場合があります。 最新の情報につきましては各市区役所までお問い合わせいただくか、自治体HPなどをご確認ください。
この物件を見た人はこんな物件も
見ています
住宅ローンシミュレーション
月々の返済額からの購入額の計算と、購入額からの返済額の計算ができます。
住宅ローンをお考えの方へ
最もおトクであなたにぴったりな
住宅ローンをみてみよう!
お気に入りの物件を見逃さない!
プッシュ通知で最新の物件情報が届く






