兵庫県加古川市別府町本町2丁目 別府駅 中古一戸建て・中古住宅
4LDK / 別府駅
- 情報提供元
- LIFULL HOME'S
価格777万円
-
外観
-
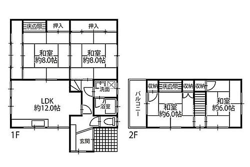
間取り
-
外観写真
-
前面道路含む現地写真
-
加古川市立別府小学校 130m
-
イトーヨーカドー アリオ加古川店 660m
-
ファミリーマート 新野辺北町店 680m
-
別府駅 910m
-
ドラッグストアコスモス 東加古川店 1190m
-
A-プライス 加古川別府店 1180m
-
たずみ病院 1340m
-
加古川市立別府中学校 1450m
-
浜の宮公園 1650m
-
玄関
-
この物件が気になりましたか? 物件や周辺施設などの詳しい情報は
問合せをすることで確認できます
- お問い合わせ先
- ハウスドゥ 加古川駅南 INFINEX株式会社
◆家を買うならハウスドゥ 加古川駅南!◆不動産に関する問題を一緒に解決!
-
価格返済シミュレーション 777万円
-
土地面積158.34m2
-
建物面積111.02m2
-
間取り4LDK
-
建物構造・規模木造2階建
-
築年月1982年8月
(築43年4ヶ月) -
駐車場無
-
物件
タイプ中古住宅 -
住所兵庫県加古川市別府町本町2丁目 地図
-
交通山陽電気鉄道本線 別府駅 徒歩13分
| 私道面積 | - |
|---|---|
| 接道状況 | 南西15m公道接面2.8m |
| セットバック | 無 |
| 用途地域 | 1種住居 |
| 建ぺい率 / 容積率 | 60% / 200% |
| 地目 | 宅地 |
| 土地権利 | 所有権 |
| 借地期間・地代 | - |
| 都市計画 | 市街化区域 |
| 現況 | 空室 |
| 引渡可能時期 | 即時 |
| 情報提供元 | LIFULL HOME'S [1561100000038] |
| 情報公開日 | |
| 情報更新日 | |
| 次回更新予定日 | 2025年12月2日 |
地図
設備など
設備
| バス・トイレ | 温水洗浄便座 |
|---|---|
| 室内設備 | 洗面所独立、室内洗濯機置き場 |
| 建物設備 | バルコニー、プロパンガス |
| その他 | 上水道、本下水 |
備考
【物件周辺の生活情報】
・学校
加古川市立別府小学校(130m)、加古川市立別府中学校(1,450m)
・買い物
スーパー(1,180m)、コンビニ(680m)、ドラッグストア(1,190m)
・その他施設
公園(1,650m)、イトーヨーカドー アリオ加古川店(660m)
ハウスドゥ加古川駅南店は不動産業界をお客様の為の業界へ変えるために、日々営業しております。全ての不動産情報を公開、お客様に寄り添った提案を心掛けます。お客様にとって最適な物件、最適な条件でご購入いただけるように購入までの流れや住宅ローン等ご不明な点があれば何度でもお答えいたします。不動産の仕組みやローンの仕組みを理解していただいた上で安心安全な取引をしていただくことを心掛けております。 【設備・特記事項備考】専用バス・専用トイレ
国土法届出:不要
述べ床面積:111.02m2/南西
法令等制限:前面道路43但し書き道路 再建築可 包括同意基準(3)-4 前面道路所有者、加古川市所 有(管理者、加古川市土木総務課 管理者の承諾可 土木総務課、課長 水野氏確認 R7.7.31)
続きを見る
・学校
加古川市立別府小学校(130m)、加古川市立別府中学校(1,450m)
・買い物
スーパー(1,180m)、コンビニ(680m)、ドラッグストア(1,190m)
・その他施設
公園(1,650m)、イトーヨーカドー アリオ加古川店(660m)
ハウスドゥ加古川駅南店は不動産業界をお客様の為の業界へ変えるために、日々営業しております。全ての不動産情報を公開、お客様に寄り添った提案を心掛けます。お客様にとって最適な物件、最適な条件でご購入いただけるように購入までの流れや住宅ローン等ご不明な点があれば何度でもお答えいたします。不動産の仕組みやローンの仕組みを理解していただいた上で安心安全な取引をしていただくことを心掛けております。 【設備・特記事項備考】専用バス・専用トイレ
国土法届出:不要
述べ床面積:111.02m2/南西
法令等制限:前面道路43但し書き道路 再建築可 包括同意基準(3)-4 前面道路所有者、加古川市所 有(管理者、加古川市土木総務課 管理者の承諾可 土木総務課、課長 水野氏確認 R7.7.31)
特記事項
-
省エネ性能
| エネルギー消費性能 | - |
|---|---|
| 断熱性能 | - |
| 目安光熱費 | - |
- お問い合わせ先
- ハウスドゥ 加古川駅南 INFINEX株式会社
※0037で始まる電話番号に携帯電話からお問合せいただいた方には、ショートメッセージ(SMS)によるお問合せ完了通知をお届けする場合があります。
不動産会社情報
お問い合わせ先
商号: ハウスドゥ 加古川駅南 INFINEX株式会社
免許番号:兵庫県知事(01)第401794号
所在地:兵庫県加古川市加古川町溝之口753 兵庫住宅ビル1階
取引態様:媒介
管理コード:38
所属協会など:(公社)近畿地区不動産公正取引協議会、(一社)兵庫県宅地建物取引業協会 会社情報 この会社の他の物件情報を見る この不動産会社に相談したい
免許番号:兵庫県知事(01)第401794号
所在地:兵庫県加古川市加古川町溝之口753 兵庫住宅ビル1階
取引態様:媒介
管理コード:38
所属協会など:(公社)近畿地区不動産公正取引協議会、(一社)兵庫県宅地建物取引業協会 会社情報 この会社の他の物件情報を見る この不動産会社に相談したい
この地域の暮らしデータ
加古川市の人口などの統計情報
| 世帯数 | 107075世帯 |
|---|---|
| 人口総数 | 258691人 |
| 転入者数 |
8245人 転入率(人口1000人当たり) 31.87人 |
| 転出者数 |
7948人 転出率(人口1000人当たり) 30.72人 |
| 土地平均価格 |
住宅地 81219円/m2 商業地 138450円/m2 |
加古川市の結婚・育児の助成金
| 出産・子育て | |
|---|---|
| 子育て関連の独自の取り組み | (1)子育て支援予防接種助成事業(任意の予防接種のうち、おたふく風邪・三種混合ワクチンの接種料金の一部[2,000円・各1回限り]を助成)。(2)不妊不育症治療費助成事業(不妊・不育症の検査・治療を受けた夫婦に費用の一部を助成。一般不妊治療3万円/年、特定不妊治療5万円/回、不育症治療10万円/年を上限。所得制限なし)。(3)無料託児サービス(主に在宅で子育てをする家庭を対象に、市内2ヶ所の子育てプラザ内で加古川市在住の6ヶ月から就学前の子どもを無料で預かるサービスを実施している)。(4)育児休業からの復職に伴う利用申し込み(育児休業からの復職を予定している保護者を対象に、早期から年度途中の入園予約を受付)。 |
| 出産祝い |
あり
|
| 公立保育所数 |
3ヶ所 0歳児保育を実施 3ヶ所 |
| 私立保育所数 |
13ヶ所 0歳児保育を実施 13ヶ所 |
| 保育所入所待機児童数 | 12人 |
| 認定こども園数 | 31園 |
| 預かり保育実施園数-公立 | 16園 |
| 預かり保育実施園数-私立 | 2園 |
| 学校給食 | 【小学校】完全給食【中学校】完全給食 |
| 公立中学校の学校選択制 | 未実施 |
| 子ども・学生等医療費助成<通院>対象年齢 | 18歳3月末まで |
| 子ども・学生等医療費助成<入院>対象年齢 | 18歳3月末まで |
加古川市の治安・ごみ収集情報
| 公共料金・インフラ | |
|---|---|
| ガス料金(22m3使用した場合の月額) | 大阪瓦斯株式会社4544円 |
| 水道料金(口径20mmで20m3の月額) | 加古川市2596円 |
| 下水道料金(20m3を使用した場合の月額) | 加古川市2530円 |
| 下水道普及率 | 92.4% |
| 安心・安全 | |
| 建物火災出火件数 |
36件 人口10000人当たり 1.38件 |
| 刑法犯認知件数 |
1752件 人口1000人当たり 6.72件 |
| ハザード・防災マップ | あり |
| 医療 | |
| 一般病院総数 | 12ヶ所 |
| 一般診療所総数 | 179ヶ所 |
| 小児科医師数 |
50人 小児人口10000人当たり 16.09人 |
| 産婦人科医師数 |
18人 15~49歳女性人口1万人当たり 3.72人 |
| 介護保険料基準額(月額) | 5600円 |
| ごみ | |
| 家庭ごみ収集(可燃ごみ) |
無料
|
| 家庭ごみの分別方式 | 3分別17種〔燃やすごみ 燃やさないごみ 資源物(カン[飲食料用カン、スプレー缶・カセットボンベ]、ビン[無色びん、茶色びん、その他の色びん]、ペットボトル、紙[新聞紙・折込チラシ、段ボール、雑誌・雑がみ、紙パック]、衣類、蛍光灯、乾電池、ライター、剪定枝)〕 拠点回収:使用済小型家電 ライター インクカートリッジ 水銀使用製品 |
| 家庭ごみの戸別収集 | 一部実施(【加古川市さわやか収集】実施要綱に該当する高齢者、心身障がい者等を対象に家庭ごみ戸別収集を実施) |
| 粗大ごみ収集 |
あり
|
| 生ごみ処理機助成金制度 |
あり 上限金額 30000円 上限比率 50.0% |
加古川市の住まいの給付金
暮らしデータ提供元:生活ガイド.com
※行政機関により公表していない地域及びデータがございます。東京23区以外の政令指定都市は、市全体のデータとして表示しています。
※提供データには細心の注意を払っておりますが、調査後に変更がある場合があります。 最新の情報につきましては各市区役所までお問い合わせいただくか、自治体HPなどをご確認ください。
※提供データには細心の注意を払っておりますが、調査後に変更がある場合があります。 最新の情報につきましては各市区役所までお問い合わせいただくか、自治体HPなどをご確認ください。
住宅ローンシミュレーション
月々の返済額からの購入額の計算と、購入額からの返済額の計算ができます。
住宅ローンをお考えの方へ
最もおトクであなたにぴったりな
住宅ローンをみてみよう!
お気に入りの物件を見逃さない!
プッシュ通知で最新の物件情報が届く






