鳥取県米子市東町 米子駅 中古一戸建て・中古住宅
4SLDK / 米子駅
- 情報提供元
- SUUMO
価格3480万円
-
敷地面積約125坪となります。 平成12年築の建物になります。 駐車も複数台可能です〇
-
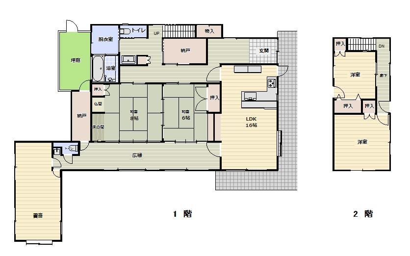
4LDK+Sとなります。 小学校やスーパー等も近く利便性の良い立地に位置しております〇 ご家族世帯にもおすすめの不動産となっております。
-
前面道路南側の写真になります。 幅員約9.1mとなり見通しも良いです。
-
北側になります。 こちらの方向を行って頂くと駅前通りに出ます。
-
お風呂には大きなFIX窓が付いており 外の坪庭も鑑賞できます〇
-
1F和室6帖となっております。 掘りコタツ仕様となっております。
-
和を感じれる玄関部分となっております。 左に行くと素敵なお庭もございます。
-
トイレです。 綺麗に使用されております。
-
利便性の良い立地にある不動産になります。
-
お風呂から見える坪庭になります。
-
和室を出て頂くと廊下になります。 外の庭を鑑賞しながらお茶を嗜む事ができます♪
-
1F和室8帖となっております。 6帖部分と続き間となっております。
-
玄関室内側になります。 ワンポイントとして野球のバットが手摺りの代わりとして壁についております〇
-
綺麗に手入れされているお庭になります♪ 外で見るのも良し、中からガラス越しに見るのも良し 色々な楽しみ方がありそうです〇
-
洗面になります。 収納も多くて便利です〇
-
2F洋室となります。
-
玄関正面です。 廊下も広く光も良く差し込んできます。
-
ストックヤードも完備されており 収納スペースにも困りません〇
-
2F洋室となります。
-
建物外観となっております。
-
この物件が気になりましたか? 物件や周辺施設などの詳しい情報は
問合せをすることで確認できます
- お問い合わせ先
- (株)佐嶋工務店
~POINT~〇敷地面積約125坪〇平成12年建築〇利便性の良い立地〇子育て世帯にお勧め〇小学校近くの立地■現在417番は借地となります。■借地→売主により譲渡時名義変更致します。■セコムリース中※売買時解約≪周辺環境≫就将小学校まで徒歩約6分湊山中学校まで徒歩約5分
-
価格返済シミュレーション 3480万円
-
土地面積411.85m2(124.58坪)(登記)
-
建物面積190.78m2(57.71坪)(登記)
-
間取り4SLDK
-
建物構造・規模木造2階建
-
築年月2000年6月
(築25年6ヶ月) -
駐車場無
-
物件
タイプ中古住宅 -
住所鳥取県米子市東町 地図
-
交通JR山陰本線 米子駅 バス3分/「太田医院前」バス停 停歩1分
| 私道面積 | - |
|---|---|
| 接道状況 | 南東9.1m接面17m |
| 用途地域 | 近隣商業 |
| 建ぺい率 / 容積率 | 80% / 400% |
| 地目 | - |
| 土地権利 | 所有権 |
| 借地期間・地代 | - |
| 都市計画 | - |
| 現況 | - |
| 引渡可能時期 | 相談 |
| 情報提供元 | SUUMO [080Z78689872] |
| 情報公開日 | |
| 情報更新日 | |
| 次回更新予定日 | 随時 |
地図
設備など
設備
| 建物設備 | 庭 |
|---|---|
| その他 | 上水道、本下水 |
備考
<物件名>東町 3480万円/<土地権利>所有権/<間取り>4LDK+S(納戸)/<特徴>■敷地面積約125坪■平成12年建築■利便性の良い立地〇、駐車3台以上可・土地100坪以上・スーパー 徒歩10分以内・駅まで平坦・閑静な住宅地
販売戸数:1戸
法令等制限:景観法、宅地造成工事規制区域、準防火地域
続きを見る
販売戸数:1戸
法令等制限:景観法、宅地造成工事規制区域、準防火地域
特記事項
閑静な住宅街・駐車場3台分以上
省エネ性能
| エネルギー消費性能 | - |
|---|---|
| 断熱性能 | - |
| 目安光熱費 | - |
- お問い合わせ先
- (株)佐嶋工務店
不動産会社情報
お問い合わせ先
商号: (株)佐嶋工務店
免許番号:鳥取県知事(1)第001411号
所在地:鳥取県米子市義方町11-26
TEL:0120-138340
取引態様:専任媒介
管理コード:44165 この会社の他の物件情報を見る この不動産会社に相談したい
免許番号:鳥取県知事(1)第001411号
所在地:鳥取県米子市義方町11-26
TEL:0120-138340
取引態様:専任媒介
管理コード:44165 この会社の他の物件情報を見る この不動産会社に相談したい
この地域の暮らしデータ
米子市の人口などの統計情報
| 世帯数 | 61991世帯 |
|---|---|
| 人口総数 | 145163人 |
| 転入者数 |
4835人 転入率(人口1000人当たり) 33.31人 |
| 転出者数 |
4944人 転出率(人口1000人当たり) 34.06人 |
| 土地平均価格 |
住宅地 32565円/m2 商業地 51900円/m2 |
米子市の結婚・育児の助成金
| 出産・子育て | |
|---|---|
| 子育て関連の独自の取り組み | 出産・子育て応援給付金及び5歳児健康診査について、キャッシュレス決済サービス「J-Coin Pay」による地域限定ポイントの活用を下記のとおり実施する。【出産・子育て応援給付金】現行の妊娠、出産時にそれぞれ5万円ずつの現金給付と、J-Coin Pay によるポイント給付を選択できることとし、J-Coin Pay を選択した場合は、5,000円分のポイントをプラスして給付する。【5歳児健康診査】5歳児健康診査の一次健診となる「5歳児よなごっ子健診アンケート」の回答者のうち希望される方へ、1人当たり500円分のJ-Coin Payポイントを給付する。 |
| 出産祝い |
なし
|
| 公立保育所数 |
10ヶ所 0歳児保育を実施 1ヶ所 |
| 私立保育所数 |
23ヶ所 0歳児保育を実施 20ヶ所 |
| 保育所入所待機児童数 | 0人 |
| 認定こども園数 | 12園 |
| 預かり保育実施園数-公立 | - |
| 預かり保育実施園数-私立 | 7園 |
| 学校給食 | 【小学校】完全給食【中学校】完全給食 |
| 公立中学校の学校選択制 | 未実施 |
| 子ども・学生等医療費助成<通院>対象年齢 | 18歳3月末まで |
| 子ども・学生等医療費助成<入院>対象年齢 | 18歳3月末まで |
米子市の治安・ごみ収集情報
| 公共料金・インフラ | |
|---|---|
| ガス料金(22m3使用した場合の月額) | 米子瓦斯株式会社6397円 |
| 水道料金(口径20mmで20m3の月額) | 米子市2741円 |
| 下水道料金(20m3を使用した場合の月額) | 米子市3429円 |
| 下水道普及率 | 74.2% |
| 安心・安全 | |
| 建物火災出火件数 |
24件 人口10000人当たり 1.63件 |
| 刑法犯認知件数 |
685件 人口1000人当たり 4.65件 |
| ハザード・防災マップ | あり |
| 医療 | |
| 一般病院総数 | 11ヶ所 |
| 一般診療所総数 | 165ヶ所 |
| 小児科医師数 |
88人 小児人口10000人当たり 46.82人 |
| 産婦人科医師数 |
40人 15~49歳女性人口1万人当たり 14.57人 |
| 介護保険料基準額(月額) | 6480円 |
| ごみ | |
| 家庭ごみ収集(可燃ごみ) |
有料
|
| 家庭ごみの分別方式 | 5種11分別〔可燃ごみ 不燃ごみ 不燃性粗大ごみ 資源ごみ(白色発泡スチロール・トレー、缶・ビン類、ペットボトル、新聞・チラシ、本・雑誌・雑がみ・牛乳パック、ダンボール・紙箱) 乾電池・蛍光管等(乾電池、蛍光管・水銀体温計)〕 拠点回収:小型家電(不燃ごみ及び不燃性粗大ごみのうち対象となる家電製品 パソコン) |
| 家庭ごみの戸別収集 | 一部実施 |
| 粗大ごみ収集 |
あり
|
| 生ごみ処理機助成金制度 |
あり 上限金額 20000円 上限比率 33.3% |
米子市の住まいの給付金
暮らしデータ提供元:生活ガイド.com
※行政機関により公表していない地域及びデータがございます。東京23区以外の政令指定都市は、市全体のデータとして表示しています。
※提供データには細心の注意を払っておりますが、調査後に変更がある場合があります。 最新の情報につきましては各市区役所までお問い合わせいただくか、自治体HPなどをご確認ください。
※提供データには細心の注意を払っておりますが、調査後に変更がある場合があります。 最新の情報につきましては各市区役所までお問い合わせいただくか、自治体HPなどをご確認ください。
住宅ローンシミュレーション
月々の返済額からの購入額の計算と、購入額からの返済額の計算ができます。
住宅ローンをお考えの方へ
最もおトクであなたにぴったりな
住宅ローンをみてみよう!
お気に入りの物件を見逃さない!
プッシュ通知で最新の物件情報が届く






