大阪府箕面市桜3 牧落駅 中古一戸建て・中古住宅
2SLDK / 牧落駅
- 情報提供元
- SUUMO
価格3980万円
-
物件の外観(南側から)[2025年6月17日撮影]周辺は戸建の立ち並ぶ閑静な住宅街です。
-
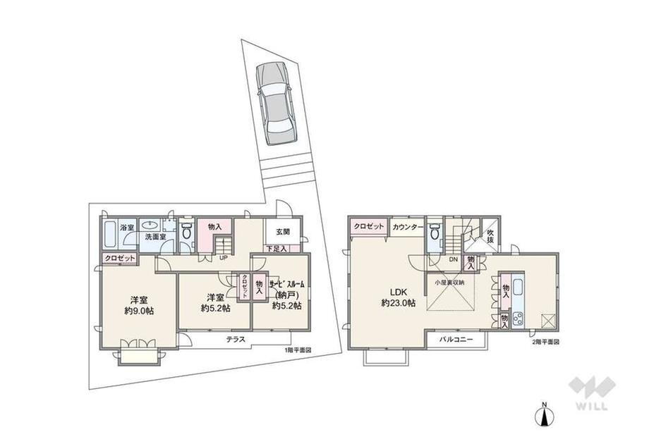
3980万円、2LDK+S、土地面積115.1m2、建物面積109.72m2 間取りは、109.72平米の2SLDK。約23帖の2Fリビングプラン。玄関ホールは吹き抜けになっており、開放感がございます。
-
LDK約23.0帖[2025年6月7日撮影]広さがありますので、様々な家具を置いて頂けます。
-
キッチン[2025年6月7日撮影]2025年5月に新調しております。
-
LDK約23.0帖[2025年6月7日撮影]広さがあるので様々な家具を置いて頂けます。
-
浴室[2025年6月7日撮影]2025年5月に新調しております。
-
南側洋室約5.2帖[2025年6月7日撮影]窓から北側テラスに出ていただけます。
-
玄関[2025年6月7日撮影]シューズボックスがあり、靴を沢山収納していただけます。
-
洗面室[2025年6月7日撮影]2025年5月に新調しております。
-
1階トイレ[2025年6月7日撮影]トイレは1階と2階にそれぞれございます。
-
物件の北側前面道路(西側から)[2025年6月7日撮影]前面道路に広さがあるので駐車しやすいです。
-
物件の駐車スペース[2025年6月17日撮影]軽自動車を1台駐車していただけます。
-
バルコニー[2025年6月7日撮影]LDKから出られるバルコニーです。
-
北乃屋(箕面店)まで835m 北乃屋(箕面店)の外観
-
屋根裏収納[2025年6月7日撮影]2階LDKの上部に屋根裏収納がございます。
-
納戸[2025年6月7日撮影]広さ約5.2帖の納戸です。物入があり、収納に便利です。
-
南西側洋室約9.0帖[2025年6月7日撮影]窓が多いので、採光・通風良好です。
-
物件の玄関[2025年6月17日撮影]道路まで距離があるので小さいお子様がいても安心です。
-
物件の南側前面道路(東側から)[2025年6月7日撮影]前面道路に広さがあるので駐車しやすいです。
-
バルコニーからの眺め(南西方向)[2025年6月7日撮影]南向きのため日当たり良好です。
-
コープ(箕面)まで958m コープ(箕面)の外観
-
この物件が気になりましたか? 物件や周辺施設などの詳しい情報は
問合せをすることで確認できます
- お問い合わせ先
- ウィル不動産販売 箕面営業所(株)ウィル
〇阪急箕面線「牧落」駅徒歩12分!〇2025年6月リフォーム完成! キッチン・洗面台・浴室・トイレ新調 フローリング張替、クロス張替など〇LDKは広々の約23.0帖! 2Fのため、通行人の目線が気になりません!〇玄関部分には吹き抜けとなっており、開放感がございます!〇周辺は戸建が立ち並ぶ閑静な住宅地!〇「西小学校」徒歩7分!〇「第一中学校」徒歩9分!■弊社の特徴について・駐車場も完備しておりますのでご利用ください。・キッズスペースもございますので、小さなお子様がいらっしゃるご家庭もお気軽にご来場ください!
-
価格返済シミュレーション 3980万円
-
土地面積115.1m2(登記)、路地状部分:24m2含
-
建物面積109.72m2(登記)
-
間取り2SLDK
-
建物構造・規模木造2階建
-
築年月1990年9月
(築35年3ヶ月) -
駐車場-
-
物件
タイプ中古住宅 -
住所大阪府箕面市桜3 地図
-
交通阪急箕面線 牧落駅 徒歩12分
阪急宝塚線 石橋阪大前駅 徒歩3.6km
大阪モノレール本線 少路駅 徒歩4.3km
| 私道面積 | - |
|---|---|
| 接道状況 | 北6.6m接面2.8m |
| 用途地域 | 1種低層 |
| 建ぺい率 / 容積率 | 60% / 150% |
| 地目 | - |
| 土地権利 | 所有権 |
| 借地期間・地代 | - |
| 都市計画 | - |
| 現況 | - |
| 引渡可能時期 | 即時 |
| 情報提供元 | SUUMO [060Z77758613] |
| 情報公開日 | |
| 情報更新日 | |
| 次回更新予定日 | 随時 |
地図
設備など
設備
| バス・トイレ | トイレ、浴室乾燥機、温水洗浄便座、風呂、トイレ2ヶ所 |
|---|---|
| キッチン | システムキッチン、食器洗浄乾燥機 |
| 収納 | 収納スペース |
| セキュリティ | モニタ付インターホン |
| 室内設備 | 衣類乾燥機 |
| 建物設備 | バルコニー、都市ガス |
| 特徴 | リフォーム |
| その他 | 上水道、本下水 |
リフォーム履歴
2025年5月完了
水回り設備交換:キッチン・浴室・トイレ
内装リフォーム:床
※年月は一番古いリフォーム箇所を表します
続きを見る
水回り設備交換:キッチン・浴室・トイレ
内装リフォーム:床
※年月は一番古いリフォーム箇所を表します
備考
<物件名>桜3(牧落駅) 3980万円/<土地権利>所有権/<間取り>2LDK+S(納戸)/<リフォーム>●リフォーム:2025年5月完了(水回り設備交換:キッチン・浴室・トイレ、内装リフォーム:床)※年月は一番古いリフォーム箇所を表します/<特徴>■ウィル不動産販売■2025年6月リフォーム完成の中古戸建!、LDK20畳以上・内装リフォーム・システムキッチン・浴室乾燥機・陽当り良好
販売戸数:1戸
続きを見る
販売戸数:1戸
特記事項
日当り良好・閑静な住宅街
省エネ性能
| エネルギー消費性能 | - |
|---|---|
| 断熱性能 | - |
| 目安光熱費 | - |
- お問い合わせ先
- ウィル不動産販売 箕面営業所(株)ウィル
不動産会社情報
お問い合わせ先
商号: ウィル不動産販売 箕面営業所(株)ウィル
免許番号:国土交通大臣(5)第006447号
所在地:大阪府箕面市箕面5-1-55
TEL:0120-334221
取引態様:媒介
管理コード:746800R この会社の他の物件情報を見る この不動産会社に相談したい
免許番号:国土交通大臣(5)第006447号
所在地:大阪府箕面市箕面5-1-55
TEL:0120-334221
取引態様:媒介
管理コード:746800R この会社の他の物件情報を見る この不動産会社に相談したい
この地域の暮らしデータ
箕面市の人口などの統計情報
| 世帯数 | 58008世帯 |
|---|---|
| 人口総数 | 139318人 |
| 転入者数 |
6825人 転入率(人口1000人当たり) 48.99人 |
| 転出者数 |
6127人 転出率(人口1000人当たり) 43.98人 |
| 土地平均価格 |
住宅地 196025円/m2 商業地 435000円/m2 |
箕面市の結婚・育児の助成金
| 出産・子育て | |
|---|---|
| 子育て関連の独自の取り組み | (1)小中一貫校の施設一体型。(2)豊能広域子ども急病センター。(3)カウンセラー巡回。(4)「箕面食ナビブック」「食ナビスタディシート」を学校に配布。(5)司書を全校に配置。(6)箕面・世界子どもの本アカデミー賞創設。(7)子育て情報を発信。(8)支援講師の配置。(9)教員セミナーを開催。(10)インフルエンザ予防接種費用の一部助成。 |
| 出産祝い |
なし
|
| 公立保育所数 |
2ヶ所 0歳児保育を実施 2ヶ所 |
| 私立保育所数 |
26ヶ所 0歳児保育を実施 26ヶ所 |
| 保育所入所待機児童数 | 0人 |
| 認定こども園数 | 7園 |
| 預かり保育実施園数-公立 | 0園 |
| 預かり保育実施園数-私立 | 2園 |
| 学校給食 | 【小学校】完全給食【中学校】完全給食 |
| 公立中学校の学校選択制 | 未実施 |
| 子ども・学生等医療費助成<通院>対象年齢 | 18歳3月末まで |
| 子ども・学生等医療費助成<入院>対象年齢 | 18歳3月末まで |
箕面市の治安・ごみ収集情報
| 公共料金・インフラ | |
|---|---|
| ガス料金(22m3使用した場合の月額) | 大阪瓦斯株式会社4544円 |
| 水道料金(口径20mmで20m3の月額) | 箕面市2934円 |
| 下水道料金(20m3を使用した場合の月額) | 箕面市1863円 |
| 下水道普及率 | 100.0% |
| 安心・安全 | |
| 建物火災出火件数 |
18件 人口10000人当たり 1.32件 |
| 刑法犯認知件数 |
809件 人口1000人当たり 5.91件 |
| ハザード・防災マップ | あり |
| 医療 | |
| 一般病院総数 | 9ヶ所 |
| 一般診療所総数 | 135ヶ所 |
| 小児科医師数 |
30人 小児人口10000人当たり 14.73人 |
| 産婦人科医師数 |
20人 15~49歳女性人口1万人当たり 7.15人 |
| 介護保険料基準額(月額) | 5970円 |
| ごみ | |
| 家庭ごみ収集(可燃ごみ) |
一部有料
|
| 家庭ごみの分別方式 | 5分別9種〔燃えるごみ かん・びん(かん、びん) 危険ごみ(ライター、乾電池・水銀を含む体温計、蛍光灯、カセット式ガスボンベ・スプレー) 不燃ごみ ペットボトル〕 |
| 家庭ごみの戸別収集 | 実施(ステーション収集と併用) |
| 粗大ごみ収集 |
あり
|
| 生ごみ処理機助成金制度 |
なし 上限金額 - 上限比率 - |
箕面市の住まいの給付金
暮らしデータ提供元:生活ガイド.com
※行政機関により公表していない地域及びデータがございます。東京23区以外の政令指定都市は、市全体のデータとして表示しています。
※提供データには細心の注意を払っておりますが、調査後に変更がある場合があります。 最新の情報につきましては各市区役所までお問い合わせいただくか、自治体HPなどをご確認ください。
※提供データには細心の注意を払っておりますが、調査後に変更がある場合があります。 最新の情報につきましては各市区役所までお問い合わせいただくか、自治体HPなどをご確認ください。
この物件を見た人はこんな物件も
見ています
住宅ローンシミュレーション
月々の返済額からの購入額の計算と、購入額からの返済額の計算ができます。
住宅ローンをお考えの方へ
最もおトクであなたにぴったりな
住宅ローンをみてみよう!
お気に入りの物件を見逃さない!
プッシュ通知で最新の物件情報が届く






