東京都東久留米市中央町3 東久留米駅 中古一戸建て・中古住宅
3LDK / 東久留米駅
- 情報提供元
- SUUMO
価格3680万円
-
南側から外観を撮影
-
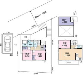
3680万円、3LDK、土地面積110.01m2、建物面積82.66m2
-
リビングダイニング
本画像は、売主様の家具をCGで消し、AIホームステージングで加工している写真であり、現況とは異なる場合がございます。 -
リビングダイニング
本画像は売主様の家具をCGで消した画像であり、現況と異なる可能性がございます。 -
システムバス
-
キッチン
本画像は売主様の家具をCGで消した画像であり、現況と異なる可能性がございます。 -
南面お庭
-
エントランス・車庫
-
リビングダイニング
本画像は、売主様の家具をCGで消し、AIホームステージングで加工している写真であり、現況とは異なる場合がございます。 -
リビングダイニング
本画像は、売主様の家具をCGで消し、AIホームステージングで加工している写真であり、現況とは異なる場合がございます。 -
この物件が気になりましたか? 物件や周辺施設などの詳しい情報は
問合せをすることで確認できます
- お問い合わせ先
- (株)LIVICO
◆◇◆◇担当着目ポイント◇◆◇◆◇◆◇◆◇室内大変きれいにお使いです。現地にてご体感ください◆対面L型オープンキッチン 導線に無駄がありません◇車庫の上に2階建を建築しており、道路からの目線がきになりません◆近くには大きな都立公園「六仙」があり、子供と思いっきり遊べます◇固定階段でロフトへアクセス可能なため、重いものの収納可能◆雨風のしのげる車庫で愛車を守ります◇都心への通勤も直通電車多数のため便利で、かつ畑も残る貴重なエリア◆◇◆◇◆◇◆◇◆◇◆◇◆◇◆◇◆◇◆◇詳細は担当までお気軽にご連絡くださいま
-
価格返済シミュレーション 3680万円
-
土地面積110.01m2(33.27坪)(登記)
-
建物面積82.66m2(25.00坪)(登記)、うち1階車庫18.28m2
-
間取り3LDK
-
建物構造・規模木造2階建
-
築年月2021年2月
(築4年9ヶ月) -
駐車場有
-
物件
タイプ中古住宅 -
住所東京都東久留米市中央町3 地図
-
交通西武池袋線 東久留米駅 徒歩20分
| 私道面積 | - |
|---|---|
| 接道状況 | 北6m接面9.9m |
| 用途地域 | 1種低層 |
| 建ぺい率 / 容積率 | 40% / 80% |
| 地目 | - |
| 土地権利 | 所有権 |
| 借地期間・地代 | - |
| 都市計画 | - |
| 現況 | - |
| 引渡可能時期 | 相談 |
| 情報提供元 | SUUMO [030Z78615560] |
| 情報公開日 | |
| 情報更新日 | |
| 次回更新予定日 | 随時 |
地図
設備など
設備
| バス・トイレ | トイレ、浴室乾燥機、温水洗浄便座、風呂、トイレ2ヶ所 |
|---|---|
| キッチン | システムキッチン、対面K |
| セキュリティ | モニタ付インターホン |
| 室内設備 | ロフト、洗面所、フローリング、シャンプードレッサ、衣類乾燥機 |
| 建物設備 | バルコニー、都市ガス、庭 |
| その他 | 上水道、本下水 |
備考
<物件名>中央町3(東久留米駅) 3680万円/<駐車場>車庫/<土地権利>所有権/<間取り>3LDK/<特徴>吹き抜けのあるLDK■明るく解放感あり■令和3年2月築■固定階段付ロフト、2沿線以上利用可・市街地が近い・システムキッチン・浴室乾燥機・陽当り良好
販売戸数:1戸
続きを見る
販売戸数:1戸
特記事項
日当り良好・閑静な住宅街・整形地
省エネ性能
| エネルギー消費性能 | - |
|---|---|
| 断熱性能 | - |
| 目安光熱費 | - |
- お問い合わせ先
- (株)LIVICO
不動産会社情報
お問い合わせ先
商号: (株)LIVICO
免許番号:東京都知事(1)第106968号
所在地:東京都板橋区中板橋21-1-1階
TEL:03-6909-6338
取引態様:一般媒介 この会社の他の物件情報を見る この不動産会社に相談したい
免許番号:東京都知事(1)第106968号
所在地:東京都板橋区中板橋21-1-1階
TEL:03-6909-6338
取引態様:一般媒介 この会社の他の物件情報を見る この不動産会社に相談したい
この地域の暮らしデータ
東久留米市の人口などの統計情報
| 世帯数 | 51146世帯 |
|---|---|
| 人口総数 | 116512人 |
| 転入者数 |
5315人 転入率(人口1000人当たり) 45.62人 |
| 転出者数 |
4843人 転出率(人口1000人当たり) 41.57人 |
| 土地平均価格 |
住宅地 203000円/m2 商業地 392500円/m2 |
東久留米市の結婚・育児の助成金
| 出産・子育て | |
|---|---|
| 子育て関連の独自の取り組み | 児童の居場所づくり事業。 |
| 出産祝い |
なし
|
| 公立保育所数 |
7ヶ所 0歳児保育を実施 7ヶ所 |
| 私立保育所数 |
14ヶ所 0歳児保育を実施 13ヶ所 |
| 保育所入所待機児童数 | 0人 |
| 認定こども園数 | 2園 |
| 預かり保育実施園数-公立 | - |
| 預かり保育実施園数-私立 | 4園 |
| 学校給食 | 【小学校】完全給食【中学校】家庭弁当等との選択制/デリバリー形式[運搬:ランチボックス、内容:完全給食] |
| 公立中学校の学校選択制 | 未実施 |
| 子ども・学生等医療費助成<通院>対象年齢 | 18歳3月末まで |
| 子ども・学生等医療費助成<入院>対象年齢 | 18歳3月末まで |
東久留米市の治安・ごみ収集情報
| 公共料金・インフラ | |
|---|---|
| ガス料金(22m3使用した場合の月額) | 東京瓦斯株式会社(東京地区等)3926円 |
| 水道料金(口径20mmで20m3の月額) | 東京都水道局2816円 |
| 下水道料金(20m3を使用した場合の月額) | 東久留米市2134円 |
| 下水道普及率 | 100.0% |
| 安心・安全 | |
| 建物火災出火件数 |
24件 人口10000人当たり 2.08件 |
| 刑法犯認知件数 |
605件 人口1000人当たり 5.25件 |
| ハザード・防災マップ | あり |
| 医療 | |
| 一般病院総数 | 3ヶ所 |
| 一般診療所総数 | 67ヶ所 |
| 小児科医師数 |
15人 小児人口10000人当たり 10.96人 |
| 産婦人科医師数 |
15人 15~49歳女性人口1万人当たり 6.95人 |
| 介護保険料基準額(月額) | 5900円 |
| ごみ | |
| 家庭ごみ収集(可燃ごみ) |
有料
|
| 家庭ごみの分別方式 | 10分別12種〔燃やせるごみ 燃やせないごみ リサイクルカン リサイクルビン 紙類(新聞・チラシ、ダンボール、雑紙・雑誌) 布類 容器包装プラスチック ペットボトル 有害ごみ 剪定枝〕 拠点回収:小型廃家電類 |
| 家庭ごみの戸別収集 | 実施 |
| 粗大ごみ収集 |
あり
|
| 生ごみ処理機助成金制度 |
なし 上限金額 - 上限比率 - |
東久留米市の住まいの給付金
暮らしデータ提供元:生活ガイド.com
※行政機関により公表していない地域及びデータがございます。東京23区以外の政令指定都市は、市全体のデータとして表示しています。
※提供データには細心の注意を払っておりますが、調査後に変更がある場合があります。 最新の情報につきましては各市区役所までお問い合わせいただくか、自治体HPなどをご確認ください。
※提供データには細心の注意を払っておりますが、調査後に変更がある場合があります。 最新の情報につきましては各市区役所までお問い合わせいただくか、自治体HPなどをご確認ください。
この物件を見た人はこんな物件も
見ています
住宅ローンシミュレーション
月々の返済額からの購入額の計算と、購入額からの返済額の計算ができます。
住宅ローンをお考えの方へ
最もおトクであなたにぴったりな
住宅ローンをみてみよう!
お気に入りの物件を見逃さない!
プッシュ通知で最新の物件情報が届く






