東京都国分寺市戸倉1 恋ヶ窪駅 中古一戸建て・中古住宅
7LDK / 恋ヶ窪駅
- 情報提供元
- SUUMO
価格22000万円
-
外観
-
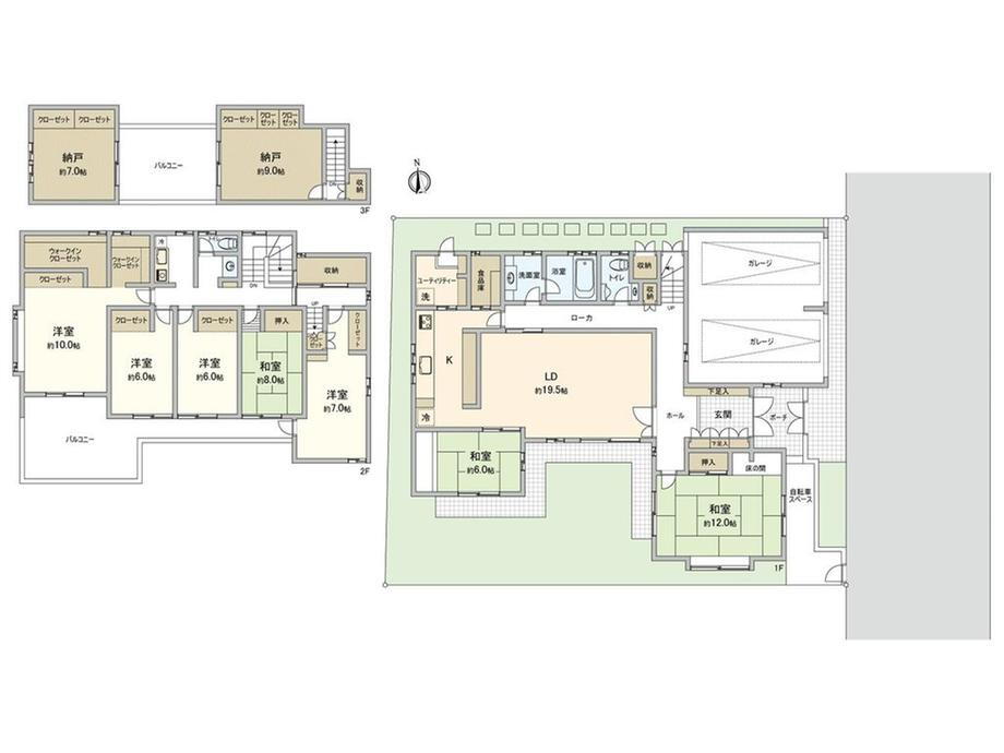
2億2000万円、7LDK、土地面積281.79m2、建物面積321.48m2
-
外観
-
外観
-
外観
-
前面道路
-
庭
-
ビルトインガレージ
-
国分寺市立第六小学校まで670m 徒歩9分
-
国分寺市立第五中学校まで1040m
-
さんかく公園まで570m
-
この物件が気になりましたか? 物件や周辺施設などの詳しい情報は
問合せをすることで確認できます
- お問い合わせ先
- 三井のリハウス国分寺センター三井不動産リアルティ(株)
-物件のおすすめポイント-▼立地・閑静な住宅街▼特徴・LDKはゆとりある約19.5帖・作業に集中しやすい壁付キッチン、食品庫有・1階独立和室は約12.0帖の広さ・多様な使い方が可能なユーティリティー有・2階各居室に面する南向きバルコニー有・3階に納戸を2箇所配置、多用途に活用可能・ビルトイン駐車場有(車種による)※規定の建ぺい率・容積率をオーバーしており、再建築にあたり同規模の建築物の建築は不可※リフォームを行う際、制限を受けることがあります■ ご希望の住まい探しをお手伝いします ━━━━━・・・物件の詳細・ご相談はお気軽にお問い合わせください。
-
価格返済シミュレーション 22000万円
-
土地面積281.79m2(85.24坪)(登記)
-
建物面積321.48m2(97.24坪)(登記)
-
間取り7LDK
-
建物構造・規模その他3階建
-
築年月1993年5月
(築32年6ヶ月) -
駐車場有
-
物件
タイプ中古住宅 -
住所東京都国分寺市戸倉1 地図
-
交通西武国分寺線 恋ヶ窪駅 徒歩9分
| 私道面積 | - |
|---|---|
| 接道状況 | 北東6m接面15m |
| 用途地域 | 1種低層 |
| 建ぺい率 / 容積率 | 40% / 80% |
| 地目 | - |
| 土地権利 | 所有権 |
| 借地期間・地代 | - |
| 都市計画 | - |
| 現況 | - |
| 引渡可能時期 | 2026年4月 |
| 情報提供元 | SUUMO [030Z77982611] |
| 情報公開日 | |
| 情報更新日 | |
| 次回更新予定日 | 随時 |
地図
設備など
設備
| バス・トイレ | 風呂、トイレ2ヶ所 |
|---|---|
| 収納 | 収納スペース、ウォークインクローゼット |
| 建物設備 | バルコニー、都市ガス |
| その他 | 上水道、本下水 |
備考
<物件名>戸倉1(恋ヶ窪駅) 2億2000万円/<駐車場>車庫/<土地権利>所有権/<間取り>7LDK/<特徴>■三井のリハウス■部屋数が確保された3階建住宅WIC2箇所等、収納豊富、駐車3台以上可・土地50坪以上・LDK18畳以上・スーパー 徒歩10分以内・閑静な住宅地
販売戸数:1戸
法令等制限:※本物件は規定の建ぺい率、容積率をオーバーしており、再建築にあたり同規模の建築物は建築できません。※リフォームを行う際にも制限を受けることがございます。
続きを見る
販売戸数:1戸
法令等制限:※本物件は規定の建ぺい率、容積率をオーバーしており、再建築にあたり同規模の建築物は建築できません。※リフォームを行う際にも制限を受けることがございます。
特記事項
閑静な住宅街・駐車場3台分以上
省エネ性能
| エネルギー消費性能 | - |
|---|---|
| 断熱性能 | - |
| 目安光熱費 | - |
- お問い合わせ先
- 三井のリハウス国分寺センター三井不動産リアルティ(株)
不動産会社情報
お問い合わせ先
商号: 三井のリハウス国分寺センター三井不動産リアルティ(株)
免許番号:国土交通大臣(15)第000777号
所在地:東京都国分寺市南町3-16-7 ダイワビル1階
TEL:00786-01793813
取引態様:一般媒介
管理コード:FH7APA05 この会社の他の物件情報を見る この不動産会社に相談したい
免許番号:国土交通大臣(15)第000777号
所在地:東京都国分寺市南町3-16-7 ダイワビル1階
TEL:00786-01793813
取引態様:一般媒介
管理コード:FH7APA05 この会社の他の物件情報を見る この不動産会社に相談したい
この地域の暮らしデータ
国分寺市の人口などの統計情報
| 世帯数 | 63916世帯 |
|---|---|
| 人口総数 | 128762人 |
| 転入者数 |
8662人 転入率(人口1000人当たり) 67.27人 |
| 転出者数 |
7785人 転出率(人口1000人当たり) 60.46人 |
| 土地平均価格 |
住宅地 297222円/m2 商業地 1375000円/m2 |
国分寺市の結婚・育児の助成金
| 出産・子育て | |
|---|---|
| 子育て関連の独自の取り組み | (1)プレイステーションは、2020年4月に移設。戸外及び建物のどちらも利用できる遊び場。(2)児童発達支援センターつくしんぼ(お子さんやお子さんの発達に不安をもつご家族とその関係者を対象に、お子さんの発達や子育てに関する総合的な支援を行う)。(3)地区連絡会(子どもとその家庭を支援するネットワークが形成するため、市と国分寺子育て支援事業者連絡協議会が協働し、子育て支援活動団体等が情報交換できる会議を実施)。 |
| 出産祝い |
あり
|
| 公立保育所数 |
3ヶ所 0歳児保育を実施 3ヶ所 |
| 私立保育所数 |
41ヶ所 0歳児保育を実施 38ヶ所 |
| 保育所入所待機児童数 | 24人 |
| 認定こども園数 | 0園 |
| 預かり保育実施園数-公立 | - |
| 預かり保育実施園数-私立 | 4園 |
| 学校給食 | 【小学校】完全給食【中学校】家庭弁当等との選択制/デリバリー形式[運搬:ランチボックス、内容:完全給食] |
| 公立中学校の学校選択制 | 一部実施 |
| 子ども・学生等医療費助成<通院>対象年齢 | 18歳3月末まで |
| 子ども・学生等医療費助成<入院>対象年齢 | 18歳3月末まで |
国分寺市の治安・ごみ収集情報
| 公共料金・インフラ | |
|---|---|
| ガス料金(22m3使用した場合の月額) | 東京瓦斯株式会社(東京地区等)3926円 |
| 水道料金(口径20mmで20m3の月額) | 東京都水道局2816円 |
| 下水道料金(20m3を使用した場合の月額) | 国分寺市1699円 |
| 下水道普及率 | 100.0% |
| 安心・安全 | |
| 建物火災出火件数 |
23件 人口10000人当たり 1.78件 |
| 刑法犯認知件数 |
594件 人口1000人当たり 4.60件 |
| ハザード・防災マップ | あり |
| 医療 | |
| 一般病院総数 | 2ヶ所 |
| 一般診療所総数 | 112ヶ所 |
| 小児科医師数 |
12人 小児人口10000人当たり 7.47人 |
| 産婦人科医師数 |
7人 15~49歳女性人口1万人当たり 2.50人 |
| 介護保険料基準額(月額) | 5917円 |
| ごみ | |
| 家庭ごみ収集(可燃ごみ) |
有料
|
| 家庭ごみの分別方式 | 4分別22種〔可燃ごみ(もやせるごみ、おむつ) 不燃ごみ 有害ごみ(刃物、電球、スプレー缶・カセットボンベ、蛍光灯・ライター・体温計、電池、小型家電) 資源ごみ(プラスチック、ビン、カン、新聞紙、ダンボール、牛乳パック類、本・雑誌、その他の紙、衣類・布類、ペットボトル、せん定枝、落葉、下草)〕 |
| 家庭ごみの戸別収集 | 実施(次のものは拠点収集も行っている。生ごみ[登録制]、食用油、陶磁器、金物、小型家電、使い捨てコンタクトレンズケース、靴、かばん、ベルト、ぬいぐるみ、入れ歯) |
| 粗大ごみ収集 |
あり
|
| 生ごみ処理機助成金制度 |
あり 上限金額 30000円 上限比率 66.7% |
国分寺市の住まいの給付金
暮らしデータ提供元:生活ガイド.com
※行政機関により公表していない地域及びデータがございます。東京23区以外の政令指定都市は、市全体のデータとして表示しています。
※提供データには細心の注意を払っておりますが、調査後に変更がある場合があります。 最新の情報につきましては各市区役所までお問い合わせいただくか、自治体HPなどをご確認ください。
※提供データには細心の注意を払っておりますが、調査後に変更がある場合があります。 最新の情報につきましては各市区役所までお問い合わせいただくか、自治体HPなどをご確認ください。
この物件を見た人はこんな物件も
見ています
住宅ローンシミュレーション
月々の返済額からの購入額の計算と、購入額からの返済額の計算ができます。
住宅ローンをお考えの方へ
最もおトクであなたにぴったりな
住宅ローンをみてみよう!
お気に入りの物件を見逃さない!
プッシュ通知で最新の物件情報が届く






