東京都国立市中2 国立駅 中古一戸建て・中古住宅
2LDK / 国立駅
- 情報提供元
- SUUMO
価格9780万円
-
東急ホームズが提供する輸入住宅「ミルクリーク」シリーズのこだわりの注文建築です。
-
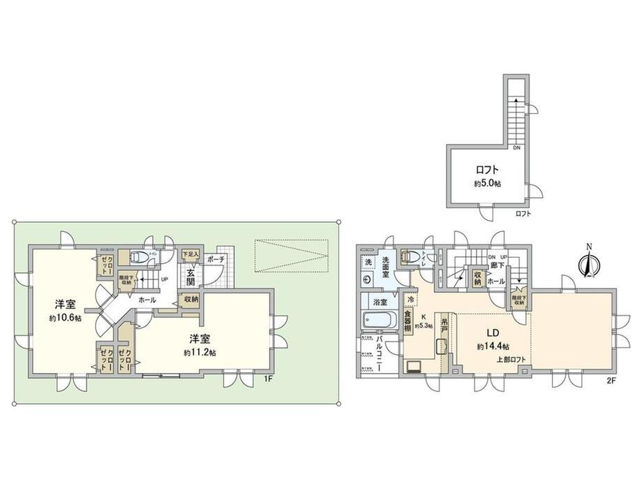
9780万円、2LDK、土地面積106.57m2、建物面積104.24m2
-
チューダー様式の特徴のひとつであるオーバーハング、また木の温かみや素材感を生かした重厚なハーフティンバースタイルで上質なくつろぎを演出しております。
-
重厚なハーフティンバーデザインの部屋に、灯を直列に燈せば、特別な満足感に包まれながらお寛ぎいただけます。
-
吹き抜けがあり、開放感・日当たり良好。床には無垢材を使用しております。
-
空や月も望めるバルコニーに繋がる窓を開ければ、入浴しながら自然の空気を楽しめます。
-
広々としたL字キッチン、ご家族で料理が楽しめます。
-
廊下に吹き抜けがあり、リビング・廊下・玄関からご家族の会話や挨拶等が出来ます。
-
ご家族様を明るく迎えいれる広々とした玄関です。
-
洗面所には窓があり、明るいです。
-
1階トイレ
-
間仕切り壁を設置することで、3LDKの間取へ変更が可能です。(有償)
-
LDKの床にはヘリンボーンのデザインを採用、素材はアンティーク調の無垢材を採用。年数を重ねてよりよく味が出る建物になっております。
-
広々としたL字キッチン、ご家族で料理が楽しめます
-
廊下に吹き抜けがあり、リビング・廊下・玄関からご家族の会話や挨拶等が出来ます。
-
2階トイレ
-
全館空調システム 24時間365日快適な温度ときれいな空気を家全体に提供 玄関から、居室、廊下、トイレなど、家全体が均一な温度を保つことができるのが特徴です。
-
■リフォ―ム履歴(2022年2月実施済み)
・クロス交換、フローリング張替 装飾(枠)交換(1階洋室)
・基礎と壁・梁等の補強(1階洋室)、西側外壁全面塗替え
・10年目点検実施済み -
■リフォ―ム履歴(2022年2月実施済み)
・クロス交換、フローリング張替 装飾(枠)交換(1階洋室)
・基礎と壁・梁等の補強(1階洋室)、西側外壁全面塗替え
・10年目点検実施済み -
画像
-
この物件が気になりましたか? 物件や周辺施設などの詳しい情報は
問合せをすることで確認できます
- お問い合わせ先
- 三井のリハウス国立センター三井不動産リアルティ(株)
-物件のおすすめポイント-▼特徴・「ミルクリーク」シリーズの注文建築・プライバシーに配慮された2階リビング・LDKは約19.7帖、LD上部は吹抜け仕様・作業動線の短いL字型の対面式キッチン・全館空調システム採用・固定階段で昇降可能なロフト付▼2022年2月内外装リフォーム履歴・クロス交換、フローリング張替(1階洋室)、西側外壁全面塗替 等▼周辺環境・スーパー「コープみらいミニコープ国立西店」徒歩5分(約400m)・国立第二小学校 徒歩7分(約550m)■ ご希望の住まい探しをお手伝いします ━━━━━・・・物件の詳細・ご相談はお気軽にお問い合わせください。
-
価格返済シミュレーション 9780万円
-
土地面積106.57m2(32.23坪)(登記)
-
建物面積104.24m2(31.53坪)(登記)
-
間取り2LDK
-
建物構造・規模木造2階建
-
築年月2012年12月
(築12年11ヶ月) -
駐車場-
-
物件
タイプ中古住宅 -
住所東京都国立市中2 地図
-
交通JR中央線 国立駅 徒歩14分
| 私道面積 | 15m2 |
|---|---|
| 接道状況 | 東4m接面7.5m |
| 用途地域 | 1種低層 |
| 建ぺい率 / 容積率 | 50% / 100% |
| 地目 | - |
| 土地権利 | 所有権 |
| 借地期間・地代 | - |
| 都市計画 | - |
| 現況 | - |
| 引渡可能時期 | 相談 |
| 情報提供元 | SUUMO [030Z77825676] |
| 情報公開日 | |
| 情報更新日 | |
| 次回更新予定日 | 随時 |
地図
設備など
設備
| バス・トイレ | トイレ、温水洗浄便座、風呂、トイレ2ヶ所 |
|---|---|
| キッチン | システムキッチン、対面K、浄水器、食器洗浄乾燥機 |
| 収納 | 収納スペース |
| セキュリティ | モニタ付インターホン |
| 室内設備 | ロフト、フローリング |
| 建物設備 | 都市ガス、複層ガラス |
| 特徴 | リフォーム |
| その他 | 上水道、本下水 |
リフォーム履歴
2022年2月完了
内装リフォーム:床
その他:1階西側洋室部分
2022年2月完了
その他リフォーム:外壁・西側全面
※年月は一番古いリフォーム箇所を表します
続きを見る
内装リフォーム:床
その他:1階西側洋室部分
2022年2月完了
その他リフォーム:外壁・西側全面
※年月は一番古いリフォーム箇所を表します
備考
<物件名>中2(国立駅) 9780万円/<土地権利>所有権/<間取り>2LDK/<リフォーム>●リフォーム:2022年2月完了(内装リフォーム:床、その他:1階西側洋室部分)、2022年2月完了(その他リフォーム:外壁・西側全面)※年月は一番古いリフォーム箇所を表します/<特徴>■三井のリハウス■東急ホームズが提供する輸入住宅全居室10帖以上の広さ、LDK18畳以上・スーパー 徒歩10分以内・内外装リフォーム・システムキッチン・陽当り良好
販売戸数:1戸
続きを見る
販売戸数:1戸
特記事項
日当り良好・閑静な住宅街・整形地
省エネ性能
| エネルギー消費性能 | - |
|---|---|
| 断熱性能 | - |
| 目安光熱費 | - |
- お問い合わせ先
- 三井のリハウス国立センター三井不動産リアルティ(株)
不動産会社情報
お問い合わせ先
商号: 三井のリハウス国立センター三井不動産リアルティ(株)
免許番号:国土交通大臣(15)第000777号
所在地:東京都国立市東1-4-13 COI国立ビル1階
TEL:00786-01793816
取引態様:専任媒介
管理コード:F25AFA0B この会社の他の物件情報を見る この不動産会社に相談したい
免許番号:国土交通大臣(15)第000777号
所在地:東京都国立市東1-4-13 COI国立ビル1階
TEL:00786-01793816
取引態様:専任媒介
管理コード:F25AFA0B この会社の他の物件情報を見る この不動産会社に相談したい
この地域の暮らしデータ
国立市の人口などの統計情報
| 世帯数 | 38227世帯 |
|---|---|
| 人口総数 | 75889人 |
| 転入者数 |
4749人 転入率(人口1000人当たり) 62.58人 |
| 転出者数 |
4692人 転出率(人口1000人当たり) 61.83人 |
| 土地平均価格 |
住宅地 378833円/m2 商業地 438000円/m2 |
国立市の結婚・育児の助成金
| 出産・子育て | |
|---|---|
| 子育て関連の独自の取り組み | (1)幼児同乗用自転車貸出事業(幼児同乗用自転車8台を未就学の子どもを養育している世帯に年度単位で貸し出す[2016年9月から開始])。(2)子育てアプリ(市の子育てサービスや制度、子育て世帯へのおしらせ等をお届け[2016年3月から開始])。(3)くにたち子育てサポート窓口(くにサポ)(妊娠・出産から子育てに関する相談を一元的に受け付け)。(4)くにたちゆりかご事業(妊婦への全数面談を行い、その後の支援につなげる)。(5)子育て用品リサイクル・リンク事業(家庭で着られなくなった子ども服を提供してもらい、必要な方へ無償で提供する[2018年9月から開始])。 |
| 出産祝い |
あり
|
| 公立保育所数 |
3ヶ所 0歳児保育を実施 3ヶ所 |
| 私立保育所数 |
15ヶ所 0歳児保育を実施 15ヶ所 |
| 保育所入所待機児童数 | 16人 |
| 認定こども園数 | 2園 |
| 預かり保育実施園数-公立 | - |
| 預かり保育実施園数-私立 | 8園 |
| 学校給食 | 【小学校】完全給食【中学校】完全給食 |
| 公立中学校の学校選択制 | 未実施 |
| 子ども・学生等医療費助成<通院>対象年齢 | 18歳3月末まで |
| 子ども・学生等医療費助成<入院>対象年齢 | 18歳3月末まで |
国立市の治安・ごみ収集情報
| 公共料金・インフラ | |
|---|---|
| ガス料金(22m3使用した場合の月額) | 東京瓦斯株式会社(東京地区等)3926円 |
| 水道料金(口径20mmで20m3の月額) | 東京都水道局2816円 |
| 下水道料金(20m3を使用した場合の月額) | 国立市1804円 |
| 下水道普及率 | 100.0% |
| 安心・安全 | |
| 建物火災出火件数 |
11件 人口10000人当たり 1.43件 |
| 刑法犯認知件数 |
358件 人口1000人当たり 4.64件 |
| ハザード・防災マップ | あり |
| 医療 | |
| 一般病院総数 | 2ヶ所 |
| 一般診療所総数 | 84ヶ所 |
| 小児科医師数 |
13人 小児人口10000人当たり 15.53人 |
| 産婦人科医師数 |
4人 15~49歳女性人口1万人当たり 2.53人 |
| 介護保険料基準額(月額) | 6467円 |
| ごみ | |
| 家庭ごみ収集(可燃ごみ) |
有料
|
| 家庭ごみの分別方式 | 8分別15種〔可燃ごみ 不燃ごみ 容器包装プラスチック 小型家電製品 有害ごみ 危険物 不燃系資源物(びん、かん、ペットボトル) 可燃系資源物(新聞紙、段ボール、本・雑誌、紙パック、雑がみ、古布)〕 |
| 家庭ごみの戸別収集 | 実施(2017年9月以降、希望があり、かつ道路事情により戸別収集可能な世帯には実施) |
| 粗大ごみ収集 |
あり
|
| 生ごみ処理機助成金制度 |
なし 上限金額 - 上限比率 - |
国立市の住まいの給付金
暮らしデータ提供元:生活ガイド.com
※行政機関により公表していない地域及びデータがございます。東京23区以外の政令指定都市は、市全体のデータとして表示しています。
※提供データには細心の注意を払っておりますが、調査後に変更がある場合があります。 最新の情報につきましては各市区役所までお問い合わせいただくか、自治体HPなどをご確認ください。
※提供データには細心の注意を払っておりますが、調査後に変更がある場合があります。 最新の情報につきましては各市区役所までお問い合わせいただくか、自治体HPなどをご確認ください。
この物件を見た人はこんな物件も
見ています
住宅ローンシミュレーション
月々の返済額からの購入額の計算と、購入額からの返済額の計算ができます。
住宅ローンをお考えの方へ
最もおトクであなたにぴったりな
住宅ローンをみてみよう!
お気に入りの物件を見逃さない!
プッシュ通知で最新の物件情報が届く






