神奈川県大和市西鶴間1 鶴間駅 中古一戸建て・中古住宅
1SLDK / 鶴間駅
- 情報提供元
- SUUMO
価格3980万円
-
ご見学の際にはご自宅はもちろん、駅やご指定頂いた場所まで無料でお迎えに伺います!
-
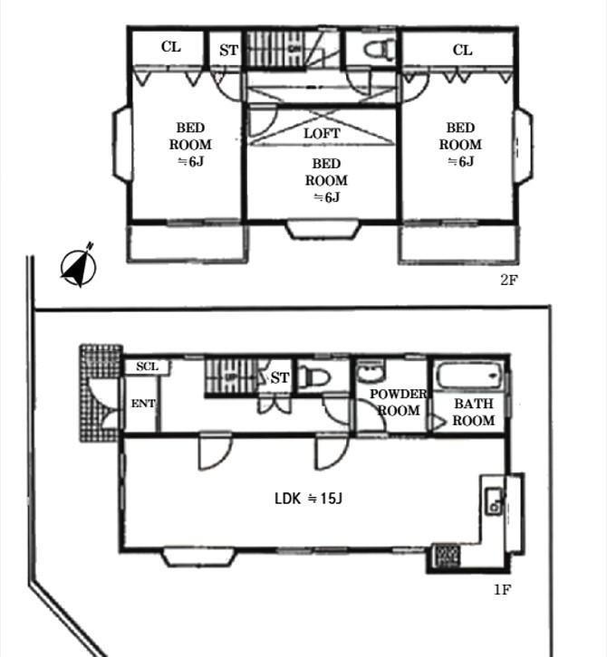
3980万円、1LDK+2S(納戸)、土地面積61.91m2、建物面積75.28m2 LDKは広々22帖ございます!全居室収納完備なのでお部屋を広々お使いいただけます♪リビングイン階段は家族のコミュニケーション不足解消に繋がります!
-
周辺環境とのコラボレーションにより明るく開放的な空間を演出。
-
リビングを見渡せるカウンターキッチンで、お子様の様子を伺いながら食事の支度が可能!リビングで勉強するお子様にはピッタリです。家族の気配を感じられる、そんな空間を演出できるキッチンです。
-
カウンターキッチンはリビングを見渡せるので、お料理番組やドラマを見ながら作業ができます。食事前後の配膳、片づけもカウンター越しのやりとりが便利。ご家族も積極的にお手伝いしてくれる環境が自然と整います。
-
毎日の疲れを癒してくれるお風呂は1坪タイプを採用 お子様と一緒でもゆったり入れます♪
-
玄関はお家の顔となる場所です!そんな玄関には大きなSICがあり、玄関が散らかることはありません!いつでも奇麗な玄関でお友達を呼びたくなる事間違いなし♪
-
大きな窓からは快適な光を取り入れ、通気性能を上げる事で居心地の良い空間を演出します。多くの時間を過ごす住まいだからこそ、いつも快適な場所であるように心掛けています
-
小田急江ノ島線「鶴間」駅まで320m
-
大和市立西鶴間小学校まで817m
-
大和市立大和中学校まで804m
-
やまとオークシティーまで913m
-
マルエツ鶴間店まで221m
-
つるま幼稚園まで582m
-
大和南林間雲母保育園まで418m
-
大和市役所まで1076m
-
大和市地域医療センターまで703m
-
この物件が気になりましたか? 物件や周辺施設などの詳しい情報は
問合せをすることで確認できます
- お問い合わせ先
- LIXIL不動産ショップ (株)CORE大和支店
※プレゼント情報参照!~~~~~~~~~~~~~~~~~~~~~~LIXIL不動産ショップの不動産売買仲介ですので安心・安全・優しい接客を楽しみに来てください♪他社さんとの違いをご堪能下さいませ!~~~~~~~~~~~~~~~~~~~~~~≪小学校・中学校≫火曜・水曜も営業中!リフォームのご相談も無料で承ります。◆◆●ご内見希望・物件所在地の詳細・付近の物件情報等はコチラまでTEL 046-240-1982
-
価格返済シミュレーション 3980万円
-
土地面積61.91m2
-
建物面積75.28m2
-
間取り1SLDK
-
建物構造・規模木造3階建
-
築年月2018年12月
(築6年11ヶ月) -
駐車場有
-
物件
タイプ中古住宅 -
住所神奈川県大和市西鶴間1 地図
-
交通小田急江ノ島線 鶴間駅 徒歩4分
小田急江ノ島線 南林間駅 徒歩11分
東急田園都市線 中央林間駅 徒歩29分
| 私道面積 | - |
|---|---|
| 接道状況 | 南4m |
| 用途地域 | 1種低層 |
| 建ぺい率 / 容積率 | 60% / 200% |
| 地目 | - |
| 土地権利 | 所有権 |
| 借地期間・地代 | - |
| 都市計画 | - |
| 現況 | - |
| 引渡可能時期 | 相談 |
| 情報提供元 | SUUMO [030Z77754577] |
| 情報公開日 | |
| 情報更新日 | |
| 次回更新予定日 | 随時 |
地図
設備など
設備
| バス・トイレ | 風呂 |
|---|---|
| 収納 | 収納スペース、グルニエ |
| セキュリティ | モニタ付インターホン |
| 室内設備 | フローリング |
| 建物設備 | バルコニー、都市ガス、庭 |
| その他 | 上水道、本下水 |
備考
<物件名>西鶴間1(鶴間駅) 3980万円/<駐車場>カースペース/<土地権利>所有権/<間取り>1LDK+2S(納戸)/<特徴>リクシルから不動産探しで5000円分のギフトカードがもらえるよ♪、地盤調査済・LDK20畳以上・スーパー 徒歩10分以内・市街地が近い・南向き
販売戸数:1戸
続きを見る
販売戸数:1戸
特記事項
日当り良好・閑静な住宅街・バリアフリー・整形地・浴室1坪以上
省エネ性能
| エネルギー消費性能 | - |
|---|---|
| 断熱性能 | - |
| 目安光熱費 | - |
- お問い合わせ先
- LIXIL不動産ショップ (株)CORE大和支店
不動産会社情報
お問い合わせ先
商号: LIXIL不動産ショップ (株)CORE大和支店
免許番号:国土交通大臣(1)第010504号
所在地:神奈川県大和市深見3861
TEL:046-240-1982
取引態様:媒介
管理コード:12078 この会社の他の物件情報を見る この不動産会社に相談したい
免許番号:国土交通大臣(1)第010504号
所在地:神奈川県大和市深見3861
TEL:046-240-1982
取引態様:媒介
管理コード:12078 この会社の他の物件情報を見る この不動産会社に相談したい
この地域の暮らしデータ
大和市の人口などの統計情報
| 世帯数 | 110397世帯 |
|---|---|
| 人口総数 | 245038人 |
| 転入者数 |
12607人 転入率(人口1000人当たり) 51.45人 |
| 転出者数 |
11120人 転出率(人口1000人当たり) 45.38人 |
| 土地平均価格 |
住宅地 206385円/m2 商業地 397600円/m2 |
大和市の結婚・育児の助成金
| 出産・子育て | |
|---|---|
| 子育て関連の独自の取り組み | 屋内こども広場(大型遊具や知育玩具を設置した屋内の遊び場。理由を問わない一時預かりや保育士による育児相談も実施)。送迎ステーション(幼稚園や認定こども園の教育時間の前後に預かり保育を実施し、保育所と同様の保育時間を確保する事業)。 |
| 出産祝い |
あり
|
| 公立保育所数 |
4ヶ所 0歳児保育を実施 4ヶ所 |
| 私立保育所数 |
54ヶ所 0歳児保育を実施 54ヶ所 |
| 保育所入所待機児童数 | 0人 |
| 認定こども園数 | 4園 |
| 預かり保育実施園数-公立 | - |
| 預かり保育実施園数-私立 | 13園 |
| 学校給食 | 【小学校】完全給食【中学校】完全給食 |
| 公立中学校の学校選択制 | 一部実施(一部の学区または地域において、通学区域の弾力的運用を実施) |
| 子ども・学生等医療費助成<通院>対象年齢 | 18歳3月末まで |
| 子ども・学生等医療費助成<入院>対象年齢 | 18歳3月末まで |
大和市の治安・ごみ収集情報
| 公共料金・インフラ | |
|---|---|
| ガス料金(22m3使用した場合の月額) | 東京瓦斯株式会社(東京地区等)3926円 |
| 水道料金(口径20mmで20m3の月額) | 神奈川県営水道2509円 |
| 下水道料金(20m3を使用した場合の月額) | 大和市2292円 |
| 下水道普及率 | 95.5% |
| 安心・安全 | |
| 建物火災出火件数 |
29件 人口10000人当たり 1.21件 |
| 刑法犯認知件数 |
1787件 人口1000人当たり 7.47件 |
| ハザード・防災マップ | あり |
| 医療 | |
| 一般病院総数 | 8ヶ所 |
| 一般診療所総数 | 174ヶ所 |
| 小児科医師数 |
33人 小児人口10000人当たり 11.21人 |
| 産婦人科医師数 |
22人 15~49歳女性人口1万人当たり 4.37人 |
| 介護保険料基準額(月額) | 6485円 |
| ごみ | |
| 家庭ごみ収集(可燃ごみ) |
有料
|
| 家庭ごみの分別方式 | 3分別24種〔可燃ごみ(可燃ごみ、紙おむつ類、剪定枝、枯葉・雑草) 不燃ごみ(不燃ごみ、使い捨てライター、電池類、蛍光灯、水銀含有物、電球) 資源(新聞・折込チラシ、段ボール、雑誌・本・その他の紙、布類、紙パック、紙製容器包装、空き缶・金物類[アルミ、スチール]、空きびん[生きびん、透明びん、色付きびん]、ペットボトル、白色トレイ、容器包装プラ)〕 |
| 家庭ごみの戸別収集 | 実施 |
| 粗大ごみ収集 |
あり
|
| 生ごみ処理機助成金制度 |
あり 上限金額 35000円 上限比率 75.0% |
大和市の住まいの給付金
暮らしデータ提供元:生活ガイド.com
※行政機関により公表していない地域及びデータがございます。東京23区以外の政令指定都市は、市全体のデータとして表示しています。
※提供データには細心の注意を払っておりますが、調査後に変更がある場合があります。 最新の情報につきましては各市区役所までお問い合わせいただくか、自治体HPなどをご確認ください。
※提供データには細心の注意を払っておりますが、調査後に変更がある場合があります。 最新の情報につきましては各市区役所までお問い合わせいただくか、自治体HPなどをご確認ください。
この物件を見た人はこんな物件も
見ています
住宅ローンシミュレーション
月々の返済額からの購入額の計算と、購入額からの返済額の計算ができます。
住宅ローンをお考えの方へ
最もおトクであなたにぴったりな
住宅ローンをみてみよう!
お気に入りの物件を見逃さない!
プッシュ通知で最新の物件情報が届く






