青森県弘前市大字浜の町東1 弘前駅 中古一戸建て・中古住宅
6DK / 弘前駅
- 情報提供元
- SUUMO
価格650万円
-
外観
-
650万円、6DK、土地面積181.2m2、建物面積134.65m2
-
画像
-
画像
-
画像
-
画像
-
画像
-
画像
-
画像
-
いとく 浜の町店まで808m
-
画像
-
画像
-
画像
-
画像
-
ファミリーマート 弘前石渡三丁目店まで1160m
-
画像
-
画像
-
ツルハドラッグ 弘前浜の町店まで232m
-
画像
-
画像
-
ハッピー・ドラッグ 弘前浜の町店まで808m
-
この物件が気になりましたか? 物件や周辺施設などの詳しい情報は
問合せをすることで確認できます
- お問い合わせ先
- センチュリー21(株)アクト弘前店
・収納スペース多数で片付けラクラク。バス利用で弘前駅にもアクセスしやすい便利な住環境!・買い物施設・ドラッグストア・郵便局が近く生活利便性◎。落ち着いた住宅地で暮らしやすさも魅力。・平坦地×前面道路6.5mで駐車も安心。ゆとりある6DKで家族みんなが快適に暮らせます。詳細情報をお求めの方は、「資料請求(無料)」をクリック!
-
価格返済シミュレーション 650万円
-
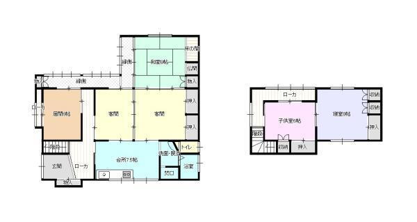
土地面積181.2m2(登記)
-
建物面積134.65m2(登記)
-
間取り6DK
-
建物構造・規模木造2階建
-
築年月1964年8月
(築61年4ヶ月) -
駐車場有
-
物件
タイプ中古住宅 -
住所青森県弘前市大字浜の町東1 地図
-
交通JR奥羽本線 弘前駅 バス20分/「神社前」バス停 停歩1分
| 私道面積 | - |
|---|---|
| 接道状況 | 北6.5m接面14.5m |
| 用途地域 | 1種低層 |
| 建ぺい率 / 容積率 | 50% / 80% |
| 地目 | - |
| 土地権利 | 所有権 |
| 借地期間・地代 | - |
| 都市計画 | - |
| 現況 | - |
| 引渡可能時期 | 相談 |
| 情報提供元 | SUUMO [020Z78820154] |
| 情報公開日 | |
| 情報更新日 | |
| 次回更新予定日 | 随時 |
地図
設備など
設備
| 建物設備 | LPガス |
|---|---|
| その他 | 上水道、本下水 |
備考
<物件名>大字浜の町東1 650万円/<駐車場>カースペース/<土地権利>所有権/<間取り>6DK/<特徴>\利便性◎の6DK!駅アクセス良好で暮らしやすい立地/、土地50坪以上・閑静な住宅地・前道6m以上・2階建・平坦地
販売戸数:1戸
法令等制限:景観法、建築基準法第22条区域、屋外広告物条例、居住誘導区域内
続きを見る
販売戸数:1戸
法令等制限:景観法、建築基準法第22条区域、屋外広告物条例、居住誘導区域内
特記事項
閑静な住宅街
省エネ性能
| エネルギー消費性能 | - |
|---|---|
| 断熱性能 | - |
| 目安光熱費 | - |
- お問い合わせ先
- センチュリー21(株)アクト弘前店
不動産会社情報
お問い合わせ先
商号: センチュリー21(株)アクト弘前店
免許番号:青森県知事(2)第003526号
所在地:青森県弘前市大字中野3-1-32
TEL:0172-88-6966
取引態様:一般媒介
管理コード:172502-164 この会社の他の物件情報を見る この不動産会社に相談したい
免許番号:青森県知事(2)第003526号
所在地:青森県弘前市大字中野3-1-32
TEL:0172-88-6966
取引態様:一般媒介
管理コード:172502-164 この会社の他の物件情報を見る この不動産会社に相談したい
この地域の暮らしデータ
弘前市の人口などの統計情報
| 世帯数 | 70743世帯 |
|---|---|
| 人口総数 | 161958人 |
| 転入者数 |
4690人 転入率(人口1000人当たり) 28.96人 |
| 転出者数 |
5004人 転出率(人口1000人当たり) 30.90人 |
| 土地平均価格 |
住宅地 23907円/m2 商業地 54613円/m2 |
弘前市の結婚・育児の助成金
| 出産・子育て | |
|---|---|
| 子育て関連の独自の取り組み | (1)インフルエンザ予防接種費用助成(6ヶ月児~未就学児に1回分の費用無料)。(2)おたふくかぜ任意予防接種費用助成(1歳児と年度内に6歳になる幼児に費用の一部助成)。(3)新生児聴覚検査費助成(検査費用の一部を助成)(4)5歳児発達健診・相談事業。(5)子どもの発達支援事業。(6)ひろさき多子家族応援パスポート(多子家族に公共施設無料パスポート発行)。(7)多子家族の小・中学校給食費の半額助成制度(3人目以降の児童生徒対象)。(8)中学生ピロリ菌検査事業。 |
| 出産祝い |
なし
|
| 公立保育所数 |
0ヶ所 0歳児保育を実施 - |
| 私立保育所数 |
34ヶ所 0歳児保育を実施 34ヶ所 |
| 保育所入所待機児童数 | 0人 |
| 認定こども園数 | 34園 |
| 預かり保育実施園数-公立 | - |
| 預かり保育実施園数-私立 | 6園 |
| 学校給食 | 【小学校】完全給食【中学校】完全給食 |
| 公立中学校の学校選択制 | 一部実施(特認校制) |
| 子ども・学生等医療費助成<通院>対象年齢 | 18歳3月末まで |
| 子ども・学生等医療費助成<入院>対象年齢 | 18歳3月末まで |
弘前市の治安・ごみ収集情報
| 公共料金・インフラ | |
|---|---|
| ガス料金(22m3使用した場合の月額) | 弘前ガス株式会社8165円 |
| 水道料金(口径20mmで20m3の月額) | 弘前市3922円 |
| 下水道料金(20m3を使用した場合の月額) | 弘前市3145円 |
| 下水道普及率 | 86.0% |
| 安心・安全 | |
| 建物火災出火件数 |
30件 人口10000人当たり 1.78件 |
| 刑法犯認知件数 |
914件 人口1000人当たり 5.43件 |
| ハザード・防災マップ | あり |
| 医療 | |
| 一般病院総数 | 11ヶ所 |
| 一般診療所総数 | 157ヶ所 |
| 小児科医師数 |
68人 小児人口10000人当たり 41.39人 |
| 産婦人科医師数 |
31人 15~49歳女性人口1万人当たり 10.93人 |
| 介護保険料基準額(月額) | 6930円 |
| ごみ | |
| 家庭ごみ収集(可燃ごみ) |
無料
|
| 家庭ごみの分別方式 | 10分別〔燃やせるごみ 燃やせないごみ かん びん ペットボトル ダンボール 紙パック 新聞 雑誌・雑がみ 危険ごみ〕 拠点回収:使用済小型家電 衣類 古紙類(ダンボール 新聞 雑誌・雑がみ) |
| 家庭ごみの戸別収集 | 一部実施(【弘前市ごみ出しサポート事業】家庭ごみを集積所に出すことが困難な高齢者などの世帯に対し、自宅前で個別にごみを収集する制度を実施) |
| 粗大ごみ収集 |
あり
|
| 生ごみ処理機助成金制度 |
なし 上限金額 - 上限比率 - |
弘前市の住まいの給付金
暮らしデータ提供元:生活ガイド.com
※行政機関により公表していない地域及びデータがございます。東京23区以外の政令指定都市は、市全体のデータとして表示しています。
※提供データには細心の注意を払っておりますが、調査後に変更がある場合があります。 最新の情報につきましては各市区役所までお問い合わせいただくか、自治体HPなどをご確認ください。
※提供データには細心の注意を払っておりますが、調査後に変更がある場合があります。 最新の情報につきましては各市区役所までお問い合わせいただくか、自治体HPなどをご確認ください。
住宅ローンシミュレーション
月々の返済額からの購入額の計算と、購入額からの返済額の計算ができます。
住宅ローンをお考えの方へ
最もおトクであなたにぴったりな
住宅ローンをみてみよう!
お気に入りの物件を見逃さない!
プッシュ通知で最新の物件情報が届く






