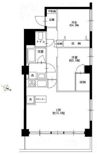
恵比寿駅(東京都)の初期費用クレジットカード対応の賃貸物件(賃貸マンション・アパート) 物件一覧(31ページ目)
引越しでポイントゲット!
初期費用にクレジットカードが利用できる物件
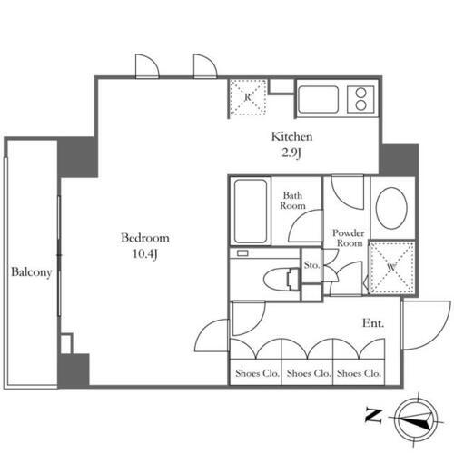
恵比寿駅(東京都)の初期費用クレジットカード対応の賃貸物件(賃貸マンション・アパート) 物件一覧(31ページ目)
引越しでポイントゲット!
初期費用にクレジットカードが利用できる物件
ページ上部の「保存した条件」から確認できます。
ページ上部の「保存した条件」から確認できます。

ページ上部の「お気に入り」から確認できます。
ページ上部の「お気に入り」から確認できます。
