売店舗・売事務所 北五葉6丁目店舗・事務所 収益物件・投資物件
- 情報提供元
- LIFULL HOME'S
-
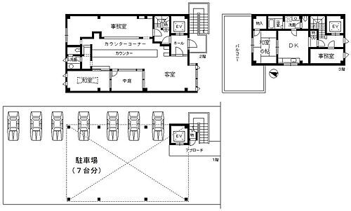
間取り
-
おしゃれな外観のロードサイド店舗・事務所です。
-
前面道路は幅員約20mの「明石神戸宝塚線」です。
-
2003年8月エスバイエル施工の鉄骨造3階建です。
-
天井高を高くとってありますので解放感があります。
-
内装
-
一枚板を使用した大型カウンターが魅力です。
-
内装
-
内装
-
内装
-
内装
-
3階部分は住居や事務所として使用可能です。
-
3階キッチン
-
2階トイレ
-
2階お客様用洗面スペースです。
-
2階店舗エントランス部分
-
カースペースは常時出入りできる状態で7台分可能です。
-
1階駐車場からエレベーターで各階へアクセス可能です。
-
前面道路と高低差の少ない敷地です。
-
2階部分は中央部の中庭を囲むように各室を配置しています。
-
この物件が気になりましたか? 物件や周辺施設などの詳しい情報は
問合せをすることで確認できます
- お問い合わせ先
- 有限会社ホームマーケット流通
主要県道「明石神戸宝塚線」沿いのロードサイド店舗・事務所です。平成15年8月エスバイエル施工の鉄骨造3階建。カースペースは7台分以上可能です。
-
価格返済シミュレーション 4,980万円
-
表面利回り-
-
種別売店舗・売事務所
-
管理費等-
-
修繕
積立金- -
年間予定収入- 周辺の家賃相場
-
建物名北五葉6丁目店舗・事務所
-
住所兵庫県神戸市北区北五葉6丁目14-34 地図
-
交通神戸電鉄粟生線 西鈴蘭台駅 徒歩14分
神戸電鉄粟生線 鈴蘭台西口駅 徒歩10分
| 土地面積 | 263.6m2 |
|---|---|
| 建物面積 | 163.61m2 |
| 間取り | 3SDK |
| バルコニー面積 | - |
| 駐車場 | 有 無料 |
| 管理形態 | - |
| 築年月 | 2003年8月(築22年4ヶ月) |
| 総戸数 | 1戸 |
| 接道状況 | 南東20m公道 一方道路 |
| 私道面積 | - |
| 敷地権利 | 所有権 |
| 借地期間・地代 | - |
| 建物構造 | 鉄骨 |
| 所在階/階建て | 3階 / 3階建 |
| 都市計画 | 市街化区域 |
| 建ぺい率・容積率 | 60%・200% |
| 用途地域 | 準住居 |
| 地目 | 宅地 |
| 現況 | 賃貸中 |
| 条件等 | - |
| 引渡し | 相談 |
| 国土法 | - |
| 情報提供元 | LIFULL HOME'S [1520940000031] |
| 情報公開日 | |
| 情報更新日 | |
| 次回更新予定日 | 2025年12月4日 |
地図
表面利回り:満室時表面利回り(年)=賃料×12ヶ月/購入価格※賃料は周辺相場を元に満室時を想定して算出。利回りとは、当該不動産の1年間の予定賃料収入の不動産取得対価に対する割合であり、公租公課・共益費など、その他当該物件を維持するために必要な費用の控除する前の収入で算出しています。また、想定賃料が将来にわたり確実に得られる保証はございません。
設備など
設備
上水道・都市ガス・本下水・バス・トイレ別・ガスコンロ可・コンロ2口以上・システムキッチン・給湯・シャンプードレッサ・室内洗濯機置き場・エレベーター・フローリング・駐輪場・バイク置き場
続きを見る
リフォーム履歴
-
続きを見る
リノベーション履歴
-
続きを見る
備考
【物件周辺の生活情報】
・学校
神戸市立北五葉小学校(560m)、神戸市立鈴蘭台中学校(1,030m)
・買い物
スーパー(670m)、コンビニ(170m)、ドラッグストア(220m)
・その他施設
総合病院(760m)、銀行(1,050m)
敷地面積約79坪の整形地。前面道路との高低差が少ない敷地です。エレベーターも付いています。3階部分は事務所や住居として使用出来ます。 【設備・特記事項備考】専用バス・専用トイレ
敷地面積:263.60m2
販売戸数:1戸
続きを見る
・学校
神戸市立北五葉小学校(560m)、神戸市立鈴蘭台中学校(1,030m)
・買い物
スーパー(670m)、コンビニ(170m)、ドラッグストア(220m)
・その他施設
総合病院(760m)、銀行(1,050m)
敷地面積約79坪の整形地。前面道路との高低差が少ない敷地です。エレベーターも付いています。3階部分は事務所や住居として使用出来ます。 【設備・特記事項備考】専用バス・専用トイレ
敷地面積:263.60m2
販売戸数:1戸
建築確認番号
-
特記事項
駐車場3台分以上・外観タイル張り・最上階
- お問い合わせ先
- 有限会社ホームマーケット流通
※0037で始まる電話番号に携帯電話からお問合せいただいた方には、ショートメッセージ(SMS)によるお問合せ完了通知をお届けする場合があります。
不動産会社情報
お問い合わせ先
| 商号 | 有限会社ホームマーケット流通 |
|---|---|
| 免許番号 | 兵庫県知事(06)第010616号 |
| 所在地 | 兵庫県神戸市北区北五葉1丁目13-1 |
| TEL | - |
| 取引態様 | 専任媒介 |
| 管理コード | 31 |
| 所属協会など | (公社)近畿圏不動産流通機構、(公社)近畿地区不動産公正取引協議会、(公社)全日本不動産協会兵庫県本部 |
この地域の暮らしデータ
神戸市の人口などの統計情報
| 世帯数 | 734091世帯 |
|---|---|
| 人口総数 | 1500425人 |
| 転入者数 |
75773人 転入率(人口1000人当たり) 50.50人 |
| 転出者数 |
75052人 転出率(人口1000人当たり) 50.02人 |
| 土地平均価格 |
住宅地 196681円/m2 商業地 844842円/m2 |
神戸市の結婚・育児の助成金
| 出産・子育て | |
|---|---|
| 子育て関連の独自の取り組み | (1)妊産婦タクシー利用券。(2)産後ケア事業(32ヶ所)。(3)多胎児家庭支援の充実(多胎児家庭ホームヘルプサービス等)。(4)多様な保育施設で待機児童3年連続ゼロ(保育送迎ステーション等)。(5)病児保育(22ヶ所)。(6)夜間、休日に年中無休で診療する「神戸こども初期急病センター」。(7)天候関係なく無料で遊べる場所の充実(こべっこランド、こども本の森神戸、児童館120ヶ所等)。(8)学童保育希望者全員受入れ。(9)インフルエンザ予防接種費の一部助成(12歳まで)。(10)市民が市内高校に通う通学定期代無料化。(11)子連れ利用可能な無料コワーキングスペース(無料の一時保育付)。(12)大人同伴の小学生以下の市バス・地下鉄の料金が無料。(13)住み替え補助(「住みかえーる」で検索)。 |
| 出産祝い |
あり
|
| 公立保育所数 |
56ヶ所 0歳児保育を実施 45ヶ所 |
| 私立保育所数 |
70ヶ所 0歳児保育を実施 67ヶ所 |
| 保育所入所待機児童数 | 0人 |
| 認定こども園数 | 191園 |
| 預かり保育実施園数-公立 | 28園 |
| 預かり保育実施園数-私立 | 37園 |
| 学校給食 | 【小学校】完全給食【中学校】完全給食 デリバリー形式[運搬:ランチボックス、内容:完全給食]、但し家庭弁当等の持参も可(2024年9月から順次全員喫食制へ移行) |
| 公立中学校の学校選択制 | 一部実施(特定地域選択制) |
| 子ども・学生等医療費助成<通院>対象年齢 | 18歳3月末まで |
| 子ども・学生等医療費助成<入院>対象年齢 | 18歳3月末まで |
神戸市の治安・ごみ収集情報
| 公共料金・インフラ | |
|---|---|
| ガス料金(22m3使用した場合の月額) | 大阪瓦斯株式会社4544円 伊丹産業株式会社7185円 |
| 水道料金(口径20mmで20m3の月額) | 神戸市2926円 |
| 下水道料金(20m3を使用した場合の月額) | 神戸市1760円 |
| 下水道普及率 | 98.7% |
| 安心・安全 | |
| 建物火災出火件数 |
236件 人口10000人当たり 1.55件 |
| 刑法犯認知件数 |
12014件 人口1000人当たり 7.88件 |
| ハザード・防災マップ | あり |
| 医療 | |
| 一般病院総数 | 98ヶ所 |
| 一般診療所総数 | 1643ヶ所 |
| 小児科医師数 |
408人 小児人口10000人当たり 24.03人 |
| 産婦人科医師数 |
190人 15~49歳女性人口1万人当たり 6.47人 |
| 介護保険料基準額(月額) | 6580円 |
| ごみ | |
| 家庭ごみ収集(可燃ごみ) |
無料
|
| 家庭ごみの分別方式 | 5分別〔缶・びん・ペットボトル 容器包装プラスチック 燃えないごみ カセットボンベ・スプレー缶 燃えるごみ〕 拠点回収:使用済小型家電 カセットボンベ・スプレー缶 水銀体温計・温度計・血圧計 蛍光管 乾電池・充電式電池・ボタン電池 |
| 家庭ごみの戸別収集 | 一部実施(【ひまわり収集】クリーンステーションまで、ごみを持ち出すことが困難な高齢者または障害者など一部の対象者に実施) |
| 粗大ごみ収集 |
あり
|
| 生ごみ処理機助成金制度 |
なし 上限金額 - 上限比率 - |
暮らしデータ提供元:生活ガイド.com
※行政機関により公表していない地域及びデータがございます。東京23区以外の政令指定都市は、市全体のデータとして表示しています。
※提供データには細心の注意を払っておりますが、調査後に変更がある場合があります。 最新の情報につきましては各市区役所までお問い合わせいただくか、自治体HPなどをご確認ください。
※提供データには細心の注意を払っておりますが、調査後に変更がある場合があります。 最新の情報につきましては各市区役所までお問い合わせいただくか、自治体HPなどをご確認ください。
家賃相場情報
神戸電鉄粟生線 西鈴蘭台駅の家賃相場
| 間取り | 家賃相場 | |
|---|---|---|
| ワンルーム | 4.31万円 | |
| 1K・1DK | 4.36万円 | |
| 1LDK・2K・2DK | 4.46万円 | |
| 2LDK・3K・3DK | 5.07万円 | |
| 3LDK・4K・4LDK | 7.19万円 | |
住宅ローンシミュレーション
月々の返済額からの購入額の計算と、購入額からの返済額の計算ができます。
住宅ローンをお考えの方へ
最もおトクであなたにぴったりな
住宅ローンをみてみよう!




