工場・倉庫・他 新家土地 収益物件・投資物件
- 情報提供元
- LIFULL HOME'S
-
現況更地
-
お好きなハウスメーカーにて建築可能です。
-
現況更地、月極駐車場として使用しております。
-
月極駐車場として投資用物件にも利用可能。
-
駐車場代月6,000円。
-
10台中8台利用中。
-
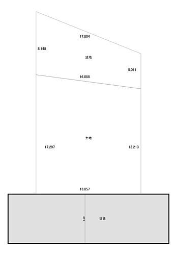
間口約13.85m
-
登記面積328平米ございます。
-
閑静な住宅街です。
-
前面道路約6.00m
-
イトーピア1号公園まで徒歩約1分
-
春は桜がきれいです。
-
泉南市立新家小学校まで約950m
-
泉南市立一丘中学校まで約2800m
-
泉南市新家南簡易郵便局まで約300m
-
自然あふれる場所で建築いただけます。
-
外観
-
外観
-
外観
-
セブンイレブン泉南新家店まで徒歩約24分
-
この物件が気になりましたか? 物件や周辺施設などの詳しい情報は
問合せをすることで確認できます
- お問い合わせ先
- 株式会社BUGGY不動産
投資用や住宅用地としてもOK!住宅用地の場合お好きなハウスメーカーで建築可能です。
-
価格返済シミュレーション 780万円
-
表面利回り-
-
種別工場・倉庫・他
-
管理費等-
-
修繕
積立金- -
年間予定収入- 周辺の家賃相場
-
建物名新家土地
-
住所大阪府泉南市新家 地図
-
交通阪和線 新家駅 徒歩22分
| 土地面積 | 328m2(公簿) |
|---|---|
| 建物面積 | - |
| 間取り | - |
| バルコニー面積 | - |
| 駐車場 | - |
| 管理形態 | - |
| 築年月 | - |
| 総戸数 | - |
| 接道状況 | 南6m公道接面13m 一方道路 |
| セットバック | 無 |
| 私道面積 | - |
| 敷地権利 | 所有権 |
| 借地期間・地代 | - |
| 建物構造 | - |
| 所在階/階建て | - |
| 都市計画 | 調整区域 |
| 建ぺい率・容積率 | 50%・100% |
| 用途地域 | 1種低層 |
| 地目 | 宅地 |
| 現況 | 更地 |
| 条件等 | - |
| 引渡し | 相談 |
| 国土法 | 不要 |
| 情報提供元 | LIFULL HOME'S [1527700000007] |
| 情報公開日 | |
| 情報更新日 | |
| 次回更新予定日 | 2025年12月4日 |
地図
表面利回り:満室時表面利回り(年)=賃料×12ヶ月/購入価格※賃料は周辺相場を元に満室時を想定して算出。利回りとは、当該不動産の1年間の予定賃料収入の不動産取得対価に対する割合であり、公租公課・共益費など、その他当該物件を維持するために必要な費用の控除する前の収入で算出しています。また、想定賃料が将来にわたり確実に得られる保証はございません。
設備など
- お問い合わせ先
- 株式会社BUGGY不動産
※0037で始まる電話番号に携帯電話からお問合せいただいた方には、ショートメッセージ(SMS)によるお問合せ完了通知をお届けする場合があります。
不動産会社情報
お問い合わせ先
商号:株式会社BUGGY不動産
免許番号:大阪府知事(01)第065234号
所在地:大阪府大阪市住吉区長居西1丁目5-4
取引態様:一般媒介
管理コード:7
所属協会など:(公社)近畿圏不動産流通機構、(公社)近畿地区不動産公正取引協議会、(公社)全日本不動産協会大阪府本部 会社情報 この会社の他の物件情報を見る
免許番号:大阪府知事(01)第065234号
所在地:大阪府大阪市住吉区長居西1丁目5-4
取引態様:一般媒介
管理コード:7
所属協会など:(公社)近畿圏不動産流通機構、(公社)近畿地区不動産公正取引協議会、(公社)全日本不動産協会大阪府本部 会社情報 この会社の他の物件情報を見る
この地域の暮らしデータ
泉南市の人口などの統計情報
| 世帯数 | 23053世帯 |
|---|---|
| 人口総数 | 58789人 |
| 転入者数 |
2329人 転入率(人口1000人当たり) 39.62人 |
| 転出者数 |
2758人 転出率(人口1000人当たり) 46.91人 |
| 土地平均価格 |
住宅地 40275円/m2 商業地 81500円/m2 |
泉南市の結婚・育児の助成金
| 出産・子育て | |
|---|---|
| 子育て関連の独自の取り組み | (1)公民協働で行う親子教室(赤ちゃん教室)。(2)青少年センター等の教育施設と親子教室(就学前)。(3)コロナ禍で外出しづらい親子に向けた手遊び等の動画配信。(4) 保育士等の資格を有するが現在就労していない方を対象に、保育現場復帰への支援を行っている。具体的には、市が会計年度任用職員として、公立こども園において、一定期間雇用し、潜在保育士職場復帰支援プログラムにもとづき、公立認定こども園の職員が指導・支援を行い、保育現場への就職を支援する。(5)乳幼児向け遊び広場「SENNAN LITTLE PARK りるぱ」を開設。 |
| 出産祝い |
あり
|
| 公立保育所数 |
0ヶ所 0歳児保育を実施 - |
| 私立保育所数 |
1ヶ所 0歳児保育を実施 1ヶ所 |
| 保育所入所待機児童数 | 2人 |
| 認定こども園数 | 7園 |
| 預かり保育実施園数-公立 | 2園 |
| 預かり保育実施園数-私立 | 1園 |
| 学校給食 | 【小学校】完全給食【中学校】デリバリー形式[運搬:ランチボックス及び食缶、内容:完全給食] |
| 公立中学校の学校選択制 | 未実施 |
| 子ども・学生等医療費助成<通院>対象年齢 | 18歳3月末まで |
| 子ども・学生等医療費助成<入院>対象年齢 | 18歳3月末まで |
泉南市の治安・ごみ収集情報
| 公共料金・インフラ | |
|---|---|
| ガス料金(22m3使用した場合の月額) | 大阪瓦斯株式会社4544円 |
| 水道料金(口径20mmで20m3の月額) | 大阪広域水道企業団(泉南水道センター)3240円 |
| 下水道料金(20m3を使用した場合の月額) | 泉南市2830円 |
| 下水道普及率 | 62.4% |
| 安心・安全 | |
| 建物火災出火件数 |
6件 人口10000人当たり 1.00件 |
| 刑法犯認知件数 |
344件 人口1000人当たり 5.72件 |
| ハザード・防災マップ | あり |
| 医療 | |
| 一般病院総数 | 6ヶ所 |
| 一般診療所総数 | 40ヶ所 |
| 小児科医師数 |
1人 小児人口10000人当たり 1.46人 |
| 産婦人科医師数 |
0人 15~49歳女性人口1万人当たり 0.00人 |
| 介護保険料基準額(月額) | 6250円 |
| ごみ | |
| 家庭ごみ収集(可燃ごみ) |
有料
|
| 家庭ごみの分別方式 | 3分別7種〔可燃ごみ 不燃ごみ 資源ごみ(びん・かん ペットボトル プラスチック製容器包装 紙製容器包装・新聞・雑誌・段ボール 古着・古布)〕 拠点回収:乾電池 |
| 家庭ごみの戸別収集 | 一部実施(ふれあい収集) |
| 粗大ごみ収集 |
あり
|
| 生ごみ処理機助成金制度 |
あり 上限金額 20000円 上限比率 50.0% |
暮らしデータ提供元:生活ガイド.com
※行政機関により公表していない地域及びデータがございます。東京23区以外の政令指定都市は、市全体のデータとして表示しています。
※提供データには細心の注意を払っておりますが、調査後に変更がある場合があります。 最新の情報につきましては各市区役所までお問い合わせいただくか、自治体HPなどをご確認ください。
※提供データには細心の注意を払っておりますが、調査後に変更がある場合があります。 最新の情報につきましては各市区役所までお問い合わせいただくか、自治体HPなどをご確認ください。
家賃相場情報
阪和線 新家駅の家賃相場
| 間取り | 家賃相場 | |
|---|---|---|
| ワンルーム | - | |
| 1K・1DK | 4.81万円 | |
| 1LDK・2K・2DK | 6.8万円 | |
| 2LDK・3K・3DK | 5.06万円 | |
| 3LDK・4K・4LDK | 5.77万円 | |
住宅ローンシミュレーション
月々の返済額からの購入額の計算と、購入額からの返済額の計算ができます。
住宅ローンをお考えの方へ
最もおトクであなたにぴったりな
住宅ローンをみてみよう!




