千葉県松戸市栄町5丁目 北松戸駅 新築一戸建て・分譲住宅
3LDK / 北松戸駅
- 情報提供元
- LIFULL HOME'S
価格4790万円
-
暮らしやすさと居心地の良さにこだわったシンプルで飽きのこないデザイン !
-
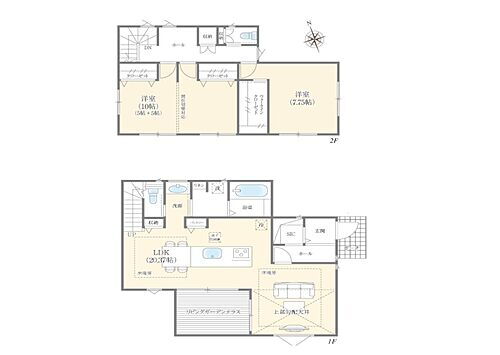
間取り
-
上質感あふれる外観デザイン。魅力の住まいを実現。
-
角地なので日当たりも良く、お家が堂々として見えます。
-
駅 1600m 千代田常磐北松戸駅
-
小学校 960m 松戸市立旭町小学校
-
中学校 1200m 松戸市立旭町中学校
-
幼稚園・保育園 880m さかえ幼稚園
-
病院 2600m 東葛クリニック病院
-
日当たりの良いリビング。お気に入りのグリーンを飾れば更に心地よさがアップ!
-
窓からのやさしい光が心地よいプライベートルーム
-
大切な家族、来客を出迎える玄関。
-
ラクラク開錠!スマートコントロールキー。
-
シューズインクローク付きの玄関。家族全員の靴や雨具などすっきり収納できます。
-
ご家族のコミュニケーションが深まるリビング階段を採用したLDK ※家具はCGです
-
明るい陽光が注ぎ、寛ぎの雰囲気に満たされるリビング・ダイニング。
-
食洗機・浄水器・3ツ口コンロなどデザイン性も機能性も兼ね備えたシステムキッチン!
-
カウンター越しに楽しいおしゃべり。いつものお料理がもっと美味しくなりそうですね。
-
将来は2部屋にすることもできますね。お年頃になったら夢の個室にチェンジ!
-
使いやすい形でベットや家具の置き方にも困ることもありません。
-
落ち着いた雰囲気でゆっくりお寛ぎいただけるバスルーム
-
トイレは1階と2階それぞれに配置されていてとても便利です。
-
大きく見やすい三面鏡で清潔感ある洗面台は、身だしなみチェックや肌のお手入れにおすすめです。
-
面倒なお片づけは食洗機にお任せ!家事の負担が減って、時間にも気持ちにもゆとりができます。
-
給湯器リモコンで家事もスムーズに。
-
開放感あるルーフバルコニー
-
駐車2台可能!急なお客様の駐車に。また、ご家族の自転車スペースとしても大活躍。
-
表札・インターホン・ポスト・宅配BOXをひとつに集約。エントランスになじむシンプルデザイン。
-
清潔感ある洗面化粧室で朝の身支度も快適
-
ウォークインクローゼット付きで生活空間を広く利用できます。
-
この物件が気になりましたか? 物件や周辺施設などの詳しい情報は
問合せをすることで確認できます
- お問い合わせ先
- エムイーPLUS城東 株式会社
-
価格返済シミュレーション 4790万円
-
土地面積121.36m2
-
建物面積101.01m2
-
間取り3LDK
-
建物構造・規模木造2階建
-
築年月2025年8月
(-)新築 -
駐車場空有 (1台) 無料
-
物件
タイプ新築一戸建て -
住所千葉県松戸市栄町5丁目 地図
-
交通千代田・常磐緩行線 北松戸駅 徒歩20分
千代田・常磐緩行線 馬橋駅 徒歩23分
| 私道面積 | - |
|---|---|
| 接道状況 | 南西9m公道 東5m公道 角地 |
| セットバック | 無 |
| 用途地域 | 1種低層 |
| 建ぺい率 / 容積率 | 60% / 100% |
| 地目 | 宅地 |
| 土地権利 | 所有権 |
| 借地期間・地代 | - |
| 都市計画 | 市街化区域 |
| 現況 | 空室 |
| 引渡可能時期 | 2025年12月中旬 |
| 情報提供元 | LIFULL HOME'S [1230340080219] |
| 情報公開日 | |
| 情報更新日 | |
| 次回更新予定日 | 2025年12月21日 |
地図
設備など
設備
| バス・トイレ | バス・トイレ別、オートバス |
|---|---|
| キッチン | システムキッチン |
| 収納 | ウォークインクローゼット、クローゼット、シューズボックス、シューズインクローク |
| 室内設備 | フローリング、室内洗濯機置き場 |
| 建物設備 | 給湯、都市ガス、太陽光システム |
| その他 | 上水道、本下水 |
備考
【物件周辺の生活情報】
・学校
松戸市立旭町小学校(960m)、松戸市立旭町中学校(1,200m)
【設備・特記事項備考】専用バス・専用トイレ・全居室収納
建築確認:有/NO.第24UDI1C建03421号
国土法届出:不要
販売戸数:1戸
法令等制限:盛土規制法
続きを見る
・学校
松戸市立旭町小学校(960m)、松戸市立旭町中学校(1,200m)
【設備・特記事項備考】専用バス・専用トイレ・全居室収納
建築確認:有/NO.第24UDI1C建03421号
国土法届出:不要
販売戸数:1戸
法令等制限:盛土規制法
特記事項
角地
省エネ性能
| エネルギー消費性能 | - |
|---|---|
| 断熱性能 | - |
| 目安光熱費 | - |
- お問い合わせ先
- エムイーPLUS城東 株式会社
※0037で始まる電話番号に携帯電話からお問合せいただいた方には、ショートメッセージ(SMS)によるお問合せ完了通知をお届けする場合があります。
不動産会社情報
お問い合わせ先
| 商号 | エムイーPLUS城東 株式会社 |
|---|---|
| 免許番号 | 東京都知事(3)第95782号 |
| 所在地 | 東京都足立区南花畑2丁目7-8 |
| 取引態様 | 媒介 |
| 管理コード | 80219 |
| 所属協会など | (公社)首都圏不動産公正取引協議会、(公社)全日本不動産協会東京都本部 |
この地域の暮らしデータ
松戸市の人口などの統計情報
| 世帯数 | 230931世帯 |
|---|---|
| 人口総数 | 498222人 |
| 転入者数 |
26880人 転入率(人口1000人当たり) 53.95人 |
| 転出者数 |
23303人 転出率(人口1000人当たり) 46.77人 |
| 土地平均価格 |
住宅地 151213円/m2 商業地 463125円/m2 |
松戸市の結婚・育児の助成金
| 出産・子育て | |
|---|---|
| 子育て関連の独自の取り組み | (1)全ての地域子育て支援拠点へ子育てコーディネーターを配置。(2)幼稚園の預かり保育での保育料助成及び人件費補助。(3)公立保育所での英語あそび・幼稚園等への補助金交付。(4)子育て世代包括支援センターにおける保健師・助産師・社会福祉士の3職種専任対応。(5)こども家庭センターの設置。(6)託児機能付きコワーキングスペースの設置。(7)「養育費をもらえていないひとり親家庭への給付金」の支給。(8)養育費確保支援・面会交流支援。(9)ひとり親家庭学習支援事業を利用している生徒の塾費用を助成。(10)幼児同乗用自転車等の購入費助成。(11)妊婦及び未就園児の0~2歳児がいる家庭への家事・育児ヘルパーの訪問。 |
| 出産祝い |
なし
|
| 公立保育所数 |
17ヶ所 0歳児保育を実施 14ヶ所 |
| 私立保育所数 |
50ヶ所 0歳児保育を実施 48ヶ所 |
| 保育所入所待機児童数 | 0人 |
| 認定こども園数 | 12園 |
| 預かり保育実施園数-公立 | - |
| 預かり保育実施園数-私立 | 34園 |
| 学校給食 | 【小学校】完全給食【中学校】完全給食 |
| 公立中学校の学校選択制 | 実施 |
| 子ども・学生等医療費助成<通院>対象年齢 | 18歳3月末まで |
| 子ども・学生等医療費助成<入院>対象年齢 | 18歳3月末まで |
松戸市の治安・ごみ収集情報
| 公共料金・インフラ | |
|---|---|
| ガス料金(22m3使用した場合の月額) | 京葉瓦斯株式会社4515円 |
| 水道料金(口径20mmで20m3の月額) | 千葉県営水道3250円 松戸市2761円 |
| 下水道料金(20m3を使用した場合の月額) | 松戸市2468円 |
| 下水道普及率 | 89.0% |
| 安心・安全 | |
| 建物火災出火件数 |
72件 人口10000人当たり 1.45件 |
| 刑法犯認知件数 |
2631件 人口1000人当たり 5.28件 |
| ハザード・防災マップ | あり |
| 医療 | |
| 一般病院総数 | 18ヶ所 |
| 一般診療所総数 | 277ヶ所 |
| 小児科医師数 |
64人 小児人口10000人当たり 11.69人 |
| 産婦人科医師数 |
28人 15~49歳女性人口1万人当たり 2.79人 |
| 介護保険料基準額(月額) | 6300円 |
| ごみ | |
| 家庭ごみ収集(可燃ごみ) |
無料
|
| 家庭ごみの分別方式 | 6分別22種〔可燃ごみ 不燃ごみ(スプレー缶等、金属製品類、陶磁器・ガラス製品類、小型家電製品類、普通自転車、30センチ以上50センチ未満プラスチック製品) リサイクルするプラスチック その他のプラスチックなどのごみ 資源ごみ(段ボール、新聞紙、折り込みチラシ、雑誌、本、紙パック、雑がみ、布類、ビン類、缶類) 有害ごみ(乾電池・コイン電池、蛍光灯等、体温計、使い捨てライター、珪藻土マット、30cm未満の小型充電式電池内蔵製品)〕 拠点回収:ペットボトル |
| 家庭ごみの戸別収集 | 一部実施(【松戸市家庭ごみ訪問収集事業】世帯員自ら排出することが困難である世帯に対して戸別収集を実施) |
| 粗大ごみ収集 |
あり
|
| 生ごみ処理機助成金制度 |
あり 上限金額 20000円 上限比率 33.3% |
暮らしデータ提供元:生活ガイド.com
※行政機関により公表していない地域及びデータがございます。東京23区以外の政令指定都市は、市全体のデータとして表示しています。
※提供データには細心の注意を払っておりますが、調査後に変更がある場合があります。 最新の情報につきましては各市区役所までお問い合わせいただくか、自治体HPなどをご確認ください。
※提供データには細心の注意を払っておりますが、調査後に変更がある場合があります。 最新の情報につきましては各市区役所までお問い合わせいただくか、自治体HPなどをご確認ください。
住宅ローンシミュレーション
月々の返済額からの購入額の計算と、購入額からの返済額の計算ができます。
住宅ローンをお考えの方へ
最もおトクであなたにぴったりな
住宅ローンをみてみよう!
お気に入りの物件を見逃さない!
プッシュ通知で最新の物件情報が届く






