長野県松本市沢村1 北松本駅 新築一戸建て・分譲住宅
3LDK / 北松本駅
- 情報提供元
- SUUMO
価格3180万円
-
外壁の汚れをセルフクリーニングしたり、色あせの原因になる紫外線をガードするなど、将来のお手入れにかかる費用を抑えることもできます。
-
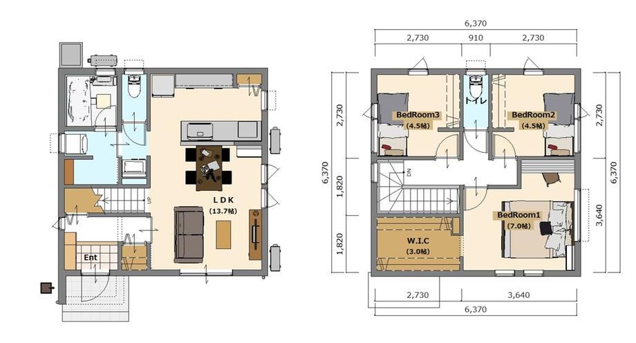
3180万円、3LDK、土地面積208.7m2、建物面積82.68m2 間取図
-
統一感のある落ち着いた雰囲気のリビングダイニング。
-
内装のカラーにあわせて照明、カーテンもコーデネート!
-
備え付けのカップボードには、引き出し式のゴミ箱を設置。キッチン周りをスッキリ整理でき料理もはかどります♪
-
グレーのアクセントクロスがおしゃれなトイレ。 清掃しやすいフチなし形状で快適かつ衛生的な空間です。
-
保温性に優れ、浴室暖房乾燥機付きで快適なバスタイムをサポートします。キレイサーモフロアで嬉しい冷えにくい床!高断熱浴槽で湯温を長時間キープし、省エネにも貢献。
-
ランドリースペースは収納付きでタオルや着替えの収納も◎
-
収納力と使いやすさを追求したシステムキッチン。IHクッキングヒーター搭載、食器洗い乾燥機(深型)でお掃除も家事も時短が出来ます。
-
区画図
-
対面式のキッチンで家族とコミュニケーションもとりやすいダイニング。
-
内観VR
-
2F洋室。温かみのある落ち着いた雰囲気の空間
-
2F主寝室 ウォークインクローゼット3.0帖! たっぷり収納できます!
-
画像
-
画像
-
画像
-
画像
-
画像
-
画像
-
画像
-
この物件が気になりましたか? 物件や周辺施設などの詳しい情報は
問合せをすることで確認できます
- お問い合わせ先
- (株)アルプスピアホーム松本土地情報館
Point!◇安心安全耐震等級3!地震保険割引対象!◇太陽光による経済効果が¥152 481/年!電気代が抑えられます♪◇耐震等級3に加えて制震装置マモリー搭載!地震に強いおうちで安心♪◇保証も充実!食器洗い乾燥機・備え付きエアコン等が故障しても15年間は保証します♪※宅地延長71.84㎡分有りArea!◆開智小学校まで400m(徒歩5分)◆旭町中学校まで2100m(徒歩27分)◆西友元町店まで770m(徒歩10分)◆セブンイレブンまで790m(徒歩10分)
-
価格返済シミュレーション 3180万円
-
土地面積208.7m2(63.13坪)(登記)
-
建物面積82.68m2(25.01坪)(実測)
-
間取り3LDK
-
建物構造・規模木造2階建
-
築年月2025年5月
(-)新築 -
駐車場有
-
物件
タイプ新築一戸建て -
住所長野県松本市沢村1 地図
-
交通JR大糸線 北松本駅 徒歩19分
| 私道面積 | - |
|---|---|
| 接道状況 | 東4m接面4m |
| 用途地域 | 1種中高 |
| 建ぺい率 / 容積率 | 60% / 160% |
| 地目 | - |
| 土地権利 | 所有権 |
| 借地期間・地代 | - |
| 都市計画 | - |
| 現況 | - |
| 引渡可能時期 | 即時 |
| 情報提供元 | SUUMO [040Z78037305] |
| 情報公開日 | |
| 情報更新日 | |
| 次回更新予定日 | 随時 |
地図
設備など
設備
| バス・トイレ | トイレ、浴室乾燥機、温水洗浄便座、風呂、トイレ2ヶ所 |
|---|---|
| キッチン | システムキッチン、対面K、IHクッキングヒータ、食器洗浄乾燥機 |
| 収納 | ウォークインクローゼット |
| セキュリティ | モニタ付インターホン |
| 室内設備 | フローリング、衣類乾燥機 |
| 建物設備 | 複層ガラス、太陽光システム、省エネ給湯器 |
| 駐車場・駐輪場 | 駐車場2台分 |
| その他 | 上水道、本下水 |
備考
<物件名>沢村一丁目A3情報館邸/<駐車場>カースペース/<土地権利>所有権/<間取り>3LDK/<特徴>【アルプスピアホーム】※価格改定しました!地震に強いおうちで安心!、設計住宅性能評価書・太陽光発電システム・高気密高断熱住宅・地盤調査済・年内引渡可
建築確認:有/NO.24NJM-10-01727
販売戸数:1戸
法令等制限:景観法による規制有、日影制限有
続きを見る
建築確認:有/NO.24NJM-10-01727
販売戸数:1戸
法令等制限:景観法による規制有、日影制限有
特記事項
閑静な住宅街・駐車場2台分・オール電化・設計住宅性能評価取得・浴室1坪以上
省エネ性能
| エネルギー消費性能 | - |
|---|---|
| 断熱性能 | - |
| 目安光熱費 | - |
- お問い合わせ先
- (株)アルプスピアホーム松本土地情報館
不動産会社情報
お問い合わせ先
| 商号 | (株)アルプスピアホーム松本土地情報館 |
|---|---|
| 免許番号 | 長野県知事(4)第005127号 |
| 所在地 | 長野県松本市小屋南1-14-12 |
| TEL | 0263-50-8700 |
| 取引態様 | 売主 |
| 管理コード | 62913 |
| 所属協会など | - |
この地域の暮らしデータ
松本市の人口などの統計情報
| 世帯数 | 104707世帯 |
|---|---|
| 人口総数 | 235475人 |
| 転入者数 |
9736人 転入率(人口1000人当たり) 41.35人 |
| 転出者数 |
9161人 転出率(人口1000人当たり) 38.90人 |
| 土地平均価格 |
住宅地 44652円/m2 商業地 131086円/m2 |
松本市の結婚・育児の助成金
| 出産・子育て | |
|---|---|
| 子育て関連の独自の取り組み | (1)子どもの権利に関する条例・子どもにやさしいまちづくり推進計画(子どもの権利相談室及び擁護委員の設置)。(2)不妊・不育症治療費助成事業。(3)歯科管理登録事業。(4)同時通園または低所得世帯の保育料の減免。(5)ひとり親家庭のファミリーサポート利用料助成。(6)発達障害児等の継続的支援。(7)子ども用品を回収し希望者に配布。(8)「ファーストスプーン」贈呈。(9)誕生記念樹贈呈。(10)絵本贈呈(ブックスタート、セカンドブック)。(11)小学生以下のインフルエンザ予防接種費用の一部助成。(12)おたふくかぜ予防接種費用の一部助成。(13)子育てクーポン(「3歳未満児家庭サポートクーポン」・「多子世帯子育てクーポン」電子クーポン)配布。 |
| 出産祝い |
あり
|
| 公立保育所数 |
43ヶ所 0歳児保育を実施 41ヶ所 |
| 私立保育所数 |
3ヶ所 0歳児保育を実施 3ヶ所 |
| 保育所入所待機児童数 | 15人 |
| 認定こども園数 | 15園 |
| 預かり保育実施園数-公立 | 3園 |
| 預かり保育実施園数-私立 | 6園 |
| 学校給食 | 【小学校】完全給食【中学校】完全給食 |
| 公立中学校の学校選択制 | 一部実施(小規模特認校制 自然環境に恵まれ、特色ある教育活動を推進している小規模校への就学を希望する場合、申請により指定校変更が可能) |
| 子ども・学生等医療費助成<通院>対象年齢 | 18歳3月末まで |
| 子ども・学生等医療費助成<入院>対象年齢 | 18歳3月末まで |
松本市の治安・ごみ収集情報
| 公共料金・インフラ | |
|---|---|
| ガス料金(22m3使用した場合の月額) | 松本ガス株式会社4493円 |
| 水道料金(口径20mmで20m3の月額) | 松本市3960円 |
| 下水道料金(20m3を使用した場合の月額) | 松本市(四賀地区)4920円 松本市(松本地区)3140円 松本市(梓川地区)3960円 松本市(波田地区)3830円 |
| 下水道普及率 | 97.3% |
| 安心・安全 | |
| 建物火災出火件数 |
23件 人口10000人当たり 0.95件 |
| 刑法犯認知件数 |
1301件 人口1000人当たり 5.40件 |
| ハザード・防災マップ | あり |
| 医療 | |
| 一般病院総数 | 13ヶ所 |
| 一般診療所総数 | 231ヶ所 |
| 小児科医師数 |
90人 小児人口10000人当たり 31.69人 |
| 産婦人科医師数 |
44人 15~49歳女性人口1万人当たり 9.94人 |
| 介護保険料基準額(月額) | 5780円 |
| ごみ | |
| 家庭ごみ収集(可燃ごみ) |
無料
|
| 家庭ごみの分別方式 | 4分別24種〔可燃ごみ 埋立ごみ 破砕ごみ 資源物(プラスチック資源、アルミ缶、スチール缶、その他金属、新聞、雑誌その他紙類、段ボール、紙パック、古布、ビールびん、ジュースびん、一升びん、白色びん、茶びん、その他色びん、小型家電、ペットボトル、蛍光管・体温計、乾電池、スプレー缶・ライター、廃食用油)〕 |
| 家庭ごみの戸別収集 | 未実施 |
| 粗大ごみ収集 |
あり
|
| 生ごみ処理機助成金制度 |
あり 上限金額 40000円 上限比率 50.0% |
暮らしデータ提供元:生活ガイド.com
※行政機関により公表していない地域及びデータがございます。東京23区以外の政令指定都市は、市全体のデータとして表示しています。
※提供データには細心の注意を払っておりますが、調査後に変更がある場合があります。 最新の情報につきましては各市区役所までお問い合わせいただくか、自治体HPなどをご確認ください。
※提供データには細心の注意を払っておりますが、調査後に変更がある場合があります。 最新の情報につきましては各市区役所までお問い合わせいただくか、自治体HPなどをご確認ください。
住宅ローンシミュレーション
月々の返済額からの購入額の計算と、購入額からの返済額の計算ができます。
住宅ローンをお考えの方へ
最もおトクであなたにぴったりな
住宅ローンをみてみよう!
お気に入りの物件を見逃さない!
プッシュ通知で最新の物件情報が届く






