ブランズタワー梅田 North 19階 3LDK
3LDK / 中津駅
- 情報提供元
- LIFULL HOME'S
価格23500万円
-
ブランズタワー梅田Northの外観(南西側より)
-
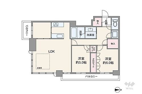
間取りは専有面積82.09平米の3LDK。採光面が広くとられた明るく開放的なLDKが魅力のプラン。室内廊下がL字型で、玄関先から室内を見通せないプライバシー性の高い造りです。
-
ブランズタワー梅田Northの外観(南東側より)
-
大阪主婦ノ会保育園[私立]
-
中津保育園 [私立]
-
豊崎小学校[公立]
-
goody
-
サンプラザ(本店)
-
キッチン&マーケット(ルクア大阪店)
-
中津病院
-
北スポーツセンター
-
中津公園
-
玄関[2025年3月28日撮影]
-
LDK帖[2025年3月28日撮影]
-
LDK帖[2025年3月28日撮影]
-
キッチン[2025年3月28日撮影]
-
キッチン[2025年3月28日撮影]
-
キッチン[2025年3月28日撮影]
-
浴室[2025年3月28日撮影]
-
トイレ[2025年3月28日撮影]
-
洗面室[2025年3月28日撮影]
-
バルコニー[2025年3月28日撮影]
-
バルコニー[2025年3月28日撮影]
-
バルコニーからの眺め(東方向)[2025年3月28日撮影]
-
バルコニーからの眺め(東方向)[2025年3月28日撮影]
-
エントランス※2019年12月現在工事中
-
エントランス前の地下鉄出入口
-
西側和室帖[2025年3月28日撮影]
-
東側洋室帖[2025年3月28日撮影]
-
北東側洋室帖[2025年3月28日撮影]
-
この物件が気になりましたか? 物件や周辺施設などの詳しい情報は
問合せをすることで確認できます
- お問い合わせ先
- 株式会社ウィル 本町営業所
■ウィル不動産販売■ ・大阪メトロ『中津駅』直結! ・2020年3月築!
-
価格返済シミュレーション 23500万円
-
管理費等20,700円
-
修繕
積立金6,570円 -
専有面積82.09m2(壁芯)
-
間取り3LDK
-
バルコニー面積11.51m2
-
築年数2020年1月
(築5年12ヶ月) -
方位東
-
駐車場-
-
総戸数653戸
-
所在階
階数19階
50階建 -
物件
タイプ中古マンション -
マンション名ブランズタワー梅田 North
-
住所大阪府大阪市北区豊崎3丁目16 地図
-
交通大阪市御堂筋線 中津駅 徒歩1分
阪急電鉄神戸線 中津駅 徒歩6分
| 借地期間・地代 | - |
|---|---|
| 建物構造 | RC |
| 管理形態 | 全部委託 |
| 管理員の勤務形態 | 日勤 |
| 維持費等 | - |
| 土地権利 | 所有権 |
| 用途地域 | 商業地域 |
| 現況 | 空室 |
| 引渡可能年月 | 相談 |
| 情報提供元 | LIFULL HOME'S [1522040000836] |
| 情報公開日 | |
| 情報更新日 | |
| 次回更新予定日 | 2025年12月24日 |
地図
設備など
設備
| バス・トイレ | バス・トイレ別、浴室乾燥機、温水洗浄便座 |
|---|---|
| キッチン | システムキッチン、食器洗浄乾燥機、コンロ2口以上 |
| 収納 | クローゼット |
| セキュリティ | オートロック、モニタ付インターホン、防犯カメラ |
| 室内設備 | フローリング、床暖房、洗面所独立、室内洗濯機置き場 |
| 建物設備 | バルコニー、エレベーター、都市ガス、宅配BOX |
| その他 | 上水道、本下水 |
備考
【物件周辺の生活情報】
・学校
豊崎小学校(480m)、豊崎中学校(1,440m)
施工会社:株式会社大林組
■総戸数653戸の大規模ハイグレードタワーマンション!■制震構造!■スカイバルコニー、ライブラリーラウンジ、プライベートガーデンなど共用施設充実!■専有面積82.09平米!■南東角部屋!採光・通風・眺望良好!■19階部分!上層階です!■玄関先から室内が見通しにくい造り!■各階にゴミステーションあり!■コーナーサッシの開放的なLDK!■生活感の出にくいキッチン配置!
国土法届出:不要
続きを見る
・学校
豊崎小学校(480m)、豊崎中学校(1,440m)
施工会社:株式会社大林組
■総戸数653戸の大規模ハイグレードタワーマンション!■制震構造!■スカイバルコニー、ライブラリーラウンジ、プライベートガーデンなど共用施設充実!■専有面積82.09平米!■南東角部屋!採光・通風・眺望良好!■19階部分!上層階です!■玄関先から室内が見通しにくい造り!■各階にゴミステーションあり!■コーナーサッシの開放的なLDK!■生活感の出にくいキッチン配置!
国土法届出:不要
特記事項
ペット相談可・角部屋・制震構造
省エネ性能
| エネルギー消費性能 | - |
|---|---|
| 断熱性能 | - |
| 目安光熱費 | - |
- お問い合わせ先
- 株式会社ウィル 本町営業所
※0037で始まる電話番号に携帯電話からお問合せいただいた方には、ショートメッセージ(SMS)によるお問合せ完了通知をお届けする場合があります。
不動産会社情報
お問い合わせ先
| 商号 | 株式会社ウィル 本町営業所 |
|---|---|
| 免許番号 | 国土交通大臣(05)第006447号 |
| 所在地 | 大阪府大阪市中央区本町1丁目4番13号 |
| 取引態様 | 媒介 |
| 管理コード | 836 |
| 所属協会など | (公社)近畿圏不動産流通機構 |
この地域の暮らしデータ
大阪市の人口などの統計情報
| 世帯数 | 1464615世帯 |
|---|---|
| 人口総数 | 2757642人 |
| 転入者数 |
225000人 転入率(人口1000人当たり) 81.59人 |
| 転出者数 |
188180人 転出率(人口1000人当たり) 68.24人 |
| 土地平均価格 |
住宅地 270839円/m2 商業地 1966607円/m2 |
大阪市の結婚・育児の助成金
| 出産・子育て | |
|---|---|
| 子育て関連の独自の取り組み | (1)子ども・子育てプラザ(在宅での子育て家庭や地域での子育て活動を支援し、また乳幼児期の親子や子育て支援者、就学期の子どもが集い交流する機会を提供する等、地域福祉活動の推進を図る)。(2)習い事・塾代助成事業(学習塾や家庭教師、文化・スポーツ教室等学校外教育にかかる費用を、1人当たり月額1万円まで助成。所得制限あり)。 |
| 出産祝い |
なし
|
| 公立保育所数 |
53ヶ所 0歳児保育を実施 52ヶ所 |
| 私立保育所数 |
395ヶ所 0歳児保育を実施 385ヶ所 |
| 保育所入所待機児童数 | 2人 |
| 認定こども園数 | 117園 |
| 預かり保育実施園数-公立 | 52園 |
| 預かり保育実施園数-私立 | - |
| 学校給食 | 【小学校】完全給食【中学校】完全給食 |
| 公立中学校の学校選択制 | 実施 |
| 子ども・学生等医療費助成<通院>対象年齢 | 18歳3月末まで |
| 子ども・学生等医療費助成<入院>対象年齢 | 18歳3月末まで |
大阪市の治安・ごみ収集情報
| 公共料金・インフラ | |
|---|---|
| ガス料金(22m3使用した場合の月額) | 大阪瓦斯株式会社4544円 |
| 水道料金(口径20mmで20m3の月額) | 大阪市2112円 |
| 下水道料金(20m3を使用した場合の月額) | 大阪市1276円 |
| 下水道普及率 | 100.0% |
| 安心・安全 | |
| 建物火災出火件数 |
553件 人口10000人当たり 2.01件 |
| 刑法犯認知件数 |
39408件 人口1000人当たり 14.32件 |
| ハザード・防災マップ | あり |
| 医療 | |
| 一般病院総数 | 170ヶ所 |
| 一般診療所総数 | 3734ヶ所 |
| 小児科医師数 |
659人 小児人口10000人当たり 22.80人 |
| 産婦人科医師数 |
380人 15~49歳女性人口1万人当たり 6.15人 |
| 介護保険料基準額(月額) | 9249円 |
| ごみ | |
| 家庭ごみ収集(可燃ごみ) |
無料
|
| 家庭ごみの分別方式 | 4分別11種〔普通ごみ(普通ごみ、危険ごみ[竹串、ガラス片、カミソリの刃]) 資源ごみ(空き缶・空きびん・金属製の生活用品・ペットボトル、スプレー缶・カセットボンベ) 容器包装プラスチック 古紙・衣類(新聞紙・折込チラシ、段ボール、紙パック、雑誌、衣類、その他の紙類)〕 |
| 家庭ごみの戸別収集 | 一部実施(【ふれあい収集】65歳以上の一人暮らしの高齢者または高齢者だけの世帯、障がいがある方が居住される家庭で、ごみ出しが困難な人が対象) |
| 粗大ごみ収集 |
あり
|
| 生ごみ処理機助成金制度 |
なし 上限金額 - 上限比率 - |
大阪市の住まいの給付金
暮らしデータ提供元:生活ガイド.com
※行政機関により公表していない地域及びデータがございます。東京23区以外の政令指定都市は、市全体のデータとして表示しています。
※提供データには細心の注意を払っておりますが、調査後に変更がある場合があります。 最新の情報につきましては各市区役所までお問い合わせいただくか、自治体HPなどをご確認ください。
※提供データには細心の注意を払っておりますが、調査後に変更がある場合があります。 最新の情報につきましては各市区役所までお問い合わせいただくか、自治体HPなどをご確認ください。
住宅ローンシミュレーション
月々の返済額からの購入額の計算と、購入額からの返済額の計算ができます。
住宅ローンをお考えの方へ
最もおトクであなたにぴったりな
住宅ローンをみてみよう!
お気に入りの物件を見逃さない!
プッシュ通知で最新の物件情報が届く





