須磨鷹取ブライトハウス 10階 3LDK
3LDK / 鷹取駅
- 情報提供元
- LIFULL HOME'S
価格3280万円
-
◇駅チカ!JR「鷹取」駅から徒歩6分♪
-
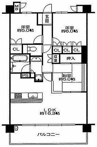
間取図
-
国道沿いの生活便利な立地♪
-
高い耐久性や断熱・気密性、防音性に優れた鉄筋コンクリート構造です。
-
神戸市立若宮小学校 徒歩11分。 850m
-
神戸市立鷹取中学校 徒歩9分。 680m
-
さくら会高橋病院 徒歩12分。 960m
-
・RC造10階建て4階部分
-
管理人が日勤している為、不審者やセールス訪問を監視・対応します。
-
ぺットOKで、一緒に楽しく暮らせる住まいです。
-
交通アクセス良好♪
-
・お気軽にお問い合わせ下さい♪
-
この物件が気になりましたか? 物件や周辺施設などの詳しい情報は
問合せをすることで確認できます
- お問い合わせ先
- 神戸不動産リアルティ株式会社
ラジオ・TV CM「サンテレビボックス席」にてテレビCM、「kissFM kobe」にてラジオCMを放送中! 地域に根ざした情報力とスピード感のある対応で、理想の住まい探しをサポート致します♪
-
価格返済シミュレーション 3280万円
-
管理費等8,900円
-
修繕
積立金20,000円 -
専有面積71.42m2(壁芯)
-
間取り3LDK
-
バルコニー面積12.73m2
-
築年数2008年2月
(築17年11ヶ月) -
方位南東
-
駐車場有 6,500円
-
総戸数68戸
-
所在階
階数10階
10階建 -
物件
タイプ中古マンション -
マンション名須磨鷹取ブライトハウス
-
住所兵庫県神戸市須磨区古川町1丁目 地図
-
交通山陽本線 鷹取駅 徒歩6分
山陽本線 須磨海浜公園駅 徒歩17分
| 借地期間・地代 | - |
|---|---|
| 建物構造 | RC |
| 管理形態 | 全部委託 |
| 管理員の勤務形態 | 日勤 |
| 維持費等 | - |
| 土地権利 | 所有権 |
| 用途地域 | 準工業 |
| 現況 | 空室 |
| 引渡可能年月 | 即時 |
| 情報提供元 | LIFULL HOME'S [1258860010336] |
| 情報公開日 | |
| 情報更新日 | |
| 次回更新予定日 | 2025年12月20日 |
地図
設備など
設備
| バス・トイレ | バス・トイレ別 |
|---|---|
| キッチン | システムキッチン |
| 収納 | クローゼット、シューズボックス |
| セキュリティ | オートロック |
| 室内設備 | フローリング、洗面所独立、室内洗濯機置き場 |
| 建物設備 | バルコニー、エレベーター、都市ガス、宅配BOX |
| 駐車場・駐輪場 | 駐輪場、バイク置き場 |
| その他 | 上水道、本下水 |
備考
【物件周辺の生活情報】
・学校
神戸市立若宮小学校(850m)、神戸市立鷹取中学校(680m)
・買い物
スーパー(320m)、コンビニ(280m)、ドラッグストア(1,130m)
・その他施設
総合病院(960m)、公園(520m)、銀行(270m)、須磨郵便局(440m)
施工会社:長谷工コーポレーション
◆10階部分!最上階の南東向き♪採光良好◇駅チカ!JR「鷹取」駅から徒歩6分◆平成20年築!ペット飼育可能マンション◇オートロック・宅配BOX付き・専有面積:71.42平米・3LDK・RC造10階建て10階部分・南東向きにつき陽当たりの良い室内♪・最上階です♪バルコニーからは海も望める開放的な眺望♪・LDKは約16.3帖♪対面式キッチンは家事をしながらリビングを見渡せ安心ですね♪・気になる部分のリフォームなどについてのご相談もお任せ下さい!弊社はショールームを兼ねた店舗です・JR山陽本線「鷹取」駅徒歩6分!駅から近く通勤通学やお出かけにも助かりますね♪・ペット飼育可能(規約制限あり)大切なペットと一緒に暮らせます♪・ご内覧はお気軽にお問い合わせ下さい♪◇◆神戸不動産リアルティ◆◇私たちは神戸・西宮・明石エリア密着の不動産売買専門会社です。ラジオ・TV CM「サンテレビボックス席」にてテレビCM、「kissFM kobe」にてラジオCMを放送中!物件の売却相談も承ります!圧倒的な広告量でより早く高く売ります! 【駐車場備考】料金最小:4000円 料金最大:6500円 【設備・特記事項備考】専用バス・専用トイレ・全居室収納・耐震基準適合証明書
国土法届出:不要
ネットワーク費用/月:1,703円、テレビ共視聴設備保守料/月:165円
続きを見る
・学校
神戸市立若宮小学校(850m)、神戸市立鷹取中学校(680m)
・買い物
スーパー(320m)、コンビニ(280m)、ドラッグストア(1,130m)
・その他施設
総合病院(960m)、公園(520m)、銀行(270m)、須磨郵便局(440m)
施工会社:長谷工コーポレーション
◆10階部分!最上階の南東向き♪採光良好◇駅チカ!JR「鷹取」駅から徒歩6分◆平成20年築!ペット飼育可能マンション◇オートロック・宅配BOX付き・専有面積:71.42平米・3LDK・RC造10階建て10階部分・南東向きにつき陽当たりの良い室内♪・最上階です♪バルコニーからは海も望める開放的な眺望♪・LDKは約16.3帖♪対面式キッチンは家事をしながらリビングを見渡せ安心ですね♪・気になる部分のリフォームなどについてのご相談もお任せ下さい!弊社はショールームを兼ねた店舗です・JR山陽本線「鷹取」駅徒歩6分!駅から近く通勤通学やお出かけにも助かりますね♪・ペット飼育可能(規約制限あり)大切なペットと一緒に暮らせます♪・ご内覧はお気軽にお問い合わせ下さい♪◇◆神戸不動産リアルティ◆◇私たちは神戸・西宮・明石エリア密着の不動産売買専門会社です。ラジオ・TV CM「サンテレビボックス席」にてテレビCM、「kissFM kobe」にてラジオCMを放送中!物件の売却相談も承ります!圧倒的な広告量でより早く高く売ります! 【駐車場備考】料金最小:4000円 料金最大:6500円 【設備・特記事項備考】専用バス・専用トイレ・全居室収納・耐震基準適合証明書
国土法届出:不要
ネットワーク費用/月:1,703円、テレビ共視聴設備保守料/月:165円
特記事項
ペット相談可・最上階
省エネ性能
| エネルギー消費性能 | - |
|---|---|
| 断熱性能 | - |
| 目安光熱費 | - |
- お問い合わせ先
- 神戸不動産リアルティ株式会社
※0037で始まる電話番号に携帯電話からお問合せいただいた方には、ショートメッセージ(SMS)によるお問合せ完了通知をお届けする場合があります。
不動産会社情報
お問い合わせ先
| 商号 | 神戸不動産リアルティ株式会社 |
|---|---|
| 免許番号 | 兵庫県知事(3)第401433号 |
| 所在地 | 兵庫県神戸市垂水区野田通5-15 |
| 取引態様 | 媒介 |
| 管理コード | 10336 |
| 所属協会など | (公社)近畿圏不動産流通機構 |
この地域の暮らしデータ
神戸市の人口などの統計情報
| 世帯数 | 734091世帯 |
|---|---|
| 人口総数 | 1500425人 |
| 転入者数 |
75773人 転入率(人口1000人当たり) 50.50人 |
| 転出者数 |
75052人 転出率(人口1000人当たり) 50.02人 |
| 土地平均価格 |
住宅地 196681円/m2 商業地 844842円/m2 |
神戸市の結婚・育児の助成金
| 出産・子育て | |
|---|---|
| 子育て関連の独自の取り組み | (1)妊産婦タクシー利用券。(2)産後ケア事業(32ヶ所)。(3)多胎児家庭支援の充実(多胎児家庭ホームヘルプサービス等)。(4)多様な保育施設で待機児童3年連続ゼロ(保育送迎ステーション等)。(5)病児保育(22ヶ所)。(6)夜間、休日に年中無休で診療する「神戸こども初期急病センター」。(7)天候関係なく無料で遊べる場所の充実(こべっこランド、こども本の森神戸、児童館120ヶ所等)。(8)学童保育希望者全員受入れ。(9)インフルエンザ予防接種費の一部助成(12歳まで)。(10)市民が市内高校に通う通学定期代無料化。(11)子連れ利用可能な無料コワーキングスペース(無料の一時保育付)。(12)大人同伴の小学生以下の市バス・地下鉄の料金が無料。(13)住み替え補助(「住みかえーる」で検索)。 |
| 出産祝い |
あり
|
| 公立保育所数 |
56ヶ所 0歳児保育を実施 45ヶ所 |
| 私立保育所数 |
70ヶ所 0歳児保育を実施 67ヶ所 |
| 保育所入所待機児童数 | 0人 |
| 認定こども園数 | 191園 |
| 預かり保育実施園数-公立 | 28園 |
| 預かり保育実施園数-私立 | 37園 |
| 学校給食 | 【小学校】完全給食【中学校】完全給食 デリバリー形式[運搬:ランチボックス、内容:完全給食]、但し家庭弁当等の持参も可(2024年9月から順次全員喫食制へ移行) |
| 公立中学校の学校選択制 | 一部実施(特定地域選択制) |
| 子ども・学生等医療費助成<通院>対象年齢 | 18歳3月末まで |
| 子ども・学生等医療費助成<入院>対象年齢 | 18歳3月末まで |
神戸市の治安・ごみ収集情報
| 公共料金・インフラ | |
|---|---|
| ガス料金(22m3使用した場合の月額) | 大阪瓦斯株式会社4544円 伊丹産業株式会社7185円 |
| 水道料金(口径20mmで20m3の月額) | 神戸市2926円 |
| 下水道料金(20m3を使用した場合の月額) | 神戸市1760円 |
| 下水道普及率 | 98.7% |
| 安心・安全 | |
| 建物火災出火件数 |
236件 人口10000人当たり 1.55件 |
| 刑法犯認知件数 |
12014件 人口1000人当たり 7.88件 |
| ハザード・防災マップ | あり |
| 医療 | |
| 一般病院総数 | 98ヶ所 |
| 一般診療所総数 | 1643ヶ所 |
| 小児科医師数 |
408人 小児人口10000人当たり 24.03人 |
| 産婦人科医師数 |
190人 15~49歳女性人口1万人当たり 6.47人 |
| 介護保険料基準額(月額) | 6580円 |
| ごみ | |
| 家庭ごみ収集(可燃ごみ) |
無料
|
| 家庭ごみの分別方式 | 5分別〔缶・びん・ペットボトル 容器包装プラスチック 燃えないごみ カセットボンベ・スプレー缶 燃えるごみ〕 拠点回収:使用済小型家電 カセットボンベ・スプレー缶 水銀体温計・温度計・血圧計 蛍光管 乾電池・充電式電池・ボタン電池 |
| 家庭ごみの戸別収集 | 一部実施(【ひまわり収集】クリーンステーションまで、ごみを持ち出すことが困難な高齢者または障害者など一部の対象者に実施) |
| 粗大ごみ収集 |
あり
|
| 生ごみ処理機助成金制度 |
なし 上限金額 - 上限比率 - |
神戸市の住まいの給付金
暮らしデータ提供元:生活ガイド.com
※行政機関により公表していない地域及びデータがございます。東京23区以外の政令指定都市は、市全体のデータとして表示しています。
※提供データには細心の注意を払っておりますが、調査後に変更がある場合があります。 最新の情報につきましては各市区役所までお問い合わせいただくか、自治体HPなどをご確認ください。
※提供データには細心の注意を払っておりますが、調査後に変更がある場合があります。 最新の情報につきましては各市区役所までお問い合わせいただくか、自治体HPなどをご確認ください。
住宅ローンシミュレーション
月々の返済額からの購入額の計算と、購入額からの返済額の計算ができます。
住宅ローンをお考えの方へ
最もおトクであなたにぴったりな
住宅ローンをみてみよう!
お気に入りの物件を見逃さない!
プッシュ通知で最新の物件情報が届く





