ブランズタワー梅田ノース 23階 2LDK
2LDK / 中津駅
- 情報提供元
- SUUMO
価格12120万円
-
外観
-
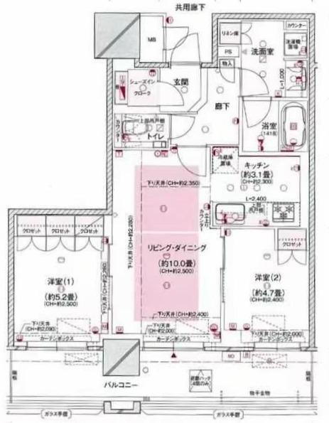
2LDK、価格1億2120万円、専有面積58.39m2、バルコニー面積12.86m2
-
画像
-
画像
-
画像
-
画像
-
画像
-
画像
-
画像
-
画像
-
画像
-
画像
-
画像
-
画像
-
画像
-
画像
-
この物件が気になりましたか? 物件や周辺施設などの詳しい情報は
問合せをすることで確認できます
- お問い合わせ先
- ピタットハウス栄住吉店(株)GYエステート
御堂筋線「中津」駅直結、阪急「大阪梅田」駅まで徒歩9分最高層地上50階建、2020年1月竣工、総戸数653戸のタワーマンションの23階南向きで眺望良好です!眺望の良い南向き住戸。シューズインクローゼットと各居室収納有りで充実の収納スペース。ライブラリーラウンジやオーナーズラウンジ、ゲストルームにパーティルームなどの共用施設も充実!現況空室で室内も大変丁寧に利用されておりますので、即日入居も可能です!
-
価格返済シミュレーション 12120万円
-
管理費等1万4700円/月(委託(常駐))
-
修繕
積立金4,970円 -
専有面積58.39m2(17.66坪)(壁芯)
-
間取り2LDK
-
バルコニー面積12.86m2
-
築年数2020年1月
(築5年12ヶ月) -
方位南
-
駐車場空無
-
総戸数653戸
-
所在階
階数23階
地上50階地下1階建 -
物件
タイプ中古マンション -
マンション名ブランズタワー梅田ノース
-
住所大阪府大阪市北区豊崎3 地図
-
交通地下鉄御堂筋線 中津駅 徒歩1分
阪急神戸線 中津駅 徒歩9分
阪急神戸線 大阪梅田駅 徒歩10分
| 借地期間・地代 | - |
|---|---|
| 建物構造 | RC |
| 管理形態 | 委託管理 |
| 維持費等 | インターネットに係る費用/定額費用880円 |
| 土地権利 | 所有権 |
| 用途地域 | 商業地域 |
| 現況 | - |
| 引渡可能年月 | 即時 |
| 情報提供元 | SUUMO [060Z78834051] |
| 情報公開日 | |
| 情報更新日 | |
| 次回更新予定日 | 随時 |
地図
設備など
設備
| バス・トイレ | トイレ、浴室乾燥機、温水洗浄便座、風呂、サウナ |
|---|---|
| キッチン | システムキッチン、食器洗浄乾燥機 |
| 収納 | 収納スペース、シューズインクローク |
| セキュリティ | 管理人常駐、モニタ付インターホン |
| 室内設備 | 洗面所、シャンプードレッサ、床暖房、衣類乾燥機 |
| 建物設備 | バルコニー |
| 駐車場・駐輪場 | 駐輪場 |
備考
<物件名>ブランズタワー梅田ノース/<駐車場>空無/委託(常駐)/<土地権利>所有権/<間取り>2LDK/<特徴>地下鉄御堂筋線『中津駅』徒歩1分で直結!、年内引渡可・即引渡可・2沿線以上利用可・市街地が近い・南向き
販売戸数:1戸/管理費等帯:14700円/修繕積立金帯:4970円
続きを見る
販売戸数:1戸/管理費等帯:14700円/修繕積立金帯:4970円
特記事項
ペット相談可・日当り良好・バリアフリー・管理人常駐
省エネ性能
| エネルギー消費性能 | - |
|---|---|
| 断熱性能 | - |
| 目安光熱費 | - |
- お問い合わせ先
- ピタットハウス栄住吉店(株)GYエステート
不動産会社情報
お問い合わせ先
| 商号 | ピタットハウス栄住吉店(株)GYエステート |
|---|---|
| 免許番号 | 愛知県知事(1)第025610号 |
| 所在地 | 愛知県名古屋市中区栄3-8ー32 |
| TEL | 052-228-3871 |
| 取引態様 | 媒介 |
| 管理コード | - |
| 所属協会など | - |
この地域の暮らしデータ
大阪市の人口などの統計情報
| 世帯数 | 1464615世帯 |
|---|---|
| 人口総数 | 2757642人 |
| 転入者数 |
225000人 転入率(人口1000人当たり) 81.59人 |
| 転出者数 |
188180人 転出率(人口1000人当たり) 68.24人 |
| 土地平均価格 |
住宅地 270839円/m2 商業地 1966607円/m2 |
大阪市の結婚・育児の助成金
| 出産・子育て | |
|---|---|
| 子育て関連の独自の取り組み | (1)子ども・子育てプラザ(在宅での子育て家庭や地域での子育て活動を支援し、また乳幼児期の親子や子育て支援者、就学期の子どもが集い交流する機会を提供する等、地域福祉活動の推進を図る)。(2)習い事・塾代助成事業(学習塾や家庭教師、文化・スポーツ教室等学校外教育にかかる費用を、1人当たり月額1万円まで助成。所得制限あり)。 |
| 出産祝い |
なし
|
| 公立保育所数 |
53ヶ所 0歳児保育を実施 52ヶ所 |
| 私立保育所数 |
395ヶ所 0歳児保育を実施 385ヶ所 |
| 保育所入所待機児童数 | 2人 |
| 認定こども園数 | 117園 |
| 預かり保育実施園数-公立 | 52園 |
| 預かり保育実施園数-私立 | - |
| 学校給食 | 【小学校】完全給食【中学校】完全給食 |
| 公立中学校の学校選択制 | 実施 |
| 子ども・学生等医療費助成<通院>対象年齢 | 18歳3月末まで |
| 子ども・学生等医療費助成<入院>対象年齢 | 18歳3月末まで |
大阪市の治安・ごみ収集情報
| 公共料金・インフラ | |
|---|---|
| ガス料金(22m3使用した場合の月額) | 大阪瓦斯株式会社4544円 |
| 水道料金(口径20mmで20m3の月額) | 大阪市2112円 |
| 下水道料金(20m3を使用した場合の月額) | 大阪市1276円 |
| 下水道普及率 | 100.0% |
| 安心・安全 | |
| 建物火災出火件数 |
553件 人口10000人当たり 2.01件 |
| 刑法犯認知件数 |
39408件 人口1000人当たり 14.32件 |
| ハザード・防災マップ | あり |
| 医療 | |
| 一般病院総数 | 170ヶ所 |
| 一般診療所総数 | 3734ヶ所 |
| 小児科医師数 |
659人 小児人口10000人当たり 22.80人 |
| 産婦人科医師数 |
380人 15~49歳女性人口1万人当たり 6.15人 |
| 介護保険料基準額(月額) | 9249円 |
| ごみ | |
| 家庭ごみ収集(可燃ごみ) |
無料
|
| 家庭ごみの分別方式 | 4分別11種〔普通ごみ(普通ごみ、危険ごみ[竹串、ガラス片、カミソリの刃]) 資源ごみ(空き缶・空きびん・金属製の生活用品・ペットボトル、スプレー缶・カセットボンベ) 容器包装プラスチック 古紙・衣類(新聞紙・折込チラシ、段ボール、紙パック、雑誌、衣類、その他の紙類)〕 |
| 家庭ごみの戸別収集 | 一部実施(【ふれあい収集】65歳以上の一人暮らしの高齢者または高齢者だけの世帯、障がいがある方が居住される家庭で、ごみ出しが困難な人が対象) |
| 粗大ごみ収集 |
あり
|
| 生ごみ処理機助成金制度 |
なし 上限金額 - 上限比率 - |
大阪市の住まいの給付金
暮らしデータ提供元:生活ガイド.com
※行政機関により公表していない地域及びデータがございます。東京23区以外の政令指定都市は、市全体のデータとして表示しています。
※提供データには細心の注意を払っておりますが、調査後に変更がある場合があります。 最新の情報につきましては各市区役所までお問い合わせいただくか、自治体HPなどをご確認ください。
※提供データには細心の注意を払っておりますが、調査後に変更がある場合があります。 最新の情報につきましては各市区役所までお問い合わせいただくか、自治体HPなどをご確認ください。
住宅ローンシミュレーション
月々の返済額からの購入額の計算と、購入額からの返済額の計算ができます。
住宅ローンをお考えの方へ
最もおトクであなたにぴったりな
住宅ローンをみてみよう!
お気に入りの物件を見逃さない!
プッシュ通知で最新の物件情報が届く





