ブリリアタワー堂島 11階 2LDK
2LDK / 西梅田駅
- 情報提供元
- SUUMO
価格22800万円
-
【外観】地上195m。それは、大阪の摩天楼の中心に、ひときわ存在感を放つ新たなランドマークとなる。
-
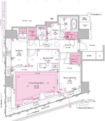
2LDK、価格2億2800万円、専有面積86.69m2 【間取り】2LDK南西角住戸☆各居室収納あり◎
-
【リビングダイニング】11階・南西角部屋!大開口で明るく開放的なリビングです!
-
【リビングダイニング】約24.9帖の開放的なLDK!床暖房付で、寒い冬も快適に過ごせます◎
-
【リビングダイニング】大きな窓からたくさんの陽が差し込み、お部屋全体がとても明るく、暖かみある空間です!
-
【キッチン】カウンターキッチンとなっており、景色を楽しみながらお料理していただけます◎
-
【洋室①】約7.4帖の洋室です☆WICがあるのでお部屋のレイアウトなど楽しんで頂けます☆
-
【トイレ】手洗いカウンター完備で衛生面もバッチリです☆
-
【独立洗面台】三面鏡裏収納や、下部にも収納スペースありで洗面台を綺麗に保てます☆
-
【洋室②】約6.5帖の洋室です☆窓があり陽当たり・通風良好◎
-
【物件からの眺望】10Fからの眺望です◎
-
【浴室】追い炊き機能完備で快適にお過ごしいただけます☆
-
【玄関】シューズインクローゼット完備◎
-
【ギャラリーコリドー】住まう方のステイタスを感じさせる、美しいホワイエです。
-
【ライブラリー】曲線が特徴的な、おしゃれで都会らしい空間デザイン。比較的静かで、読書や勉強も可能。
-
【43バー&ラウンジ】ラグジュアリーホテル顔負けの、上品で洗練された空のラウンジです。
-
【フィットネスルーム】27階です。高層階から見る都市の風景を横目に、マシンでトレーニング!
-
【ザ・ぺントハウス】世界的インテリアデザイナーによるコーディネート!
-
【スカイデッキ】ガラススクリーン越しに、大阪湾・六甲山・生駒山など広大な範囲を見渡せます!
-
【ルーフトップデッキ】ザ・ペントハウスに併設のデッキ。心地よい風に吹かれながら、景色を楽しめます。
-
ローソン 曽根崎新地店まで229m
-
この物件が気になりましたか? 物件や周辺施設などの詳しい情報は
問合せをすることで確認できます
- お問い合わせ先
- TOWERZ (株)ES&Company
☆お部屋POINT―――〇リビングダイニング床暖房付きで冬も暖かくお過ごしいただけます◎〇キッチンディスポーザー・食器洗い乾燥機付きで家事軽減に役立ちます☆〇浴室うれしい浴室暖房乾燥機付き!〇収納リネン庫もあり収納充実◎☆共用施設―――〇ウェイティングラウンジ〇ランドリールーム〇セキュリティカウンター〇コンシェルジュカウンター〇ギャラリーラウンジ〇ライブラリー〇フィットネスルーム〇ボードルーム〇ラウンジ〇バー&ラウンジ〇スカイコンシェルジュ〇ライブラリー〇ザ・ペントハウス〇ルーフトップデッキ〇スカイデッキ
-
価格返済シミュレーション 22800万円
-
管理費等3万1750円/月(委託(常駐))
-
修繕
積立金15,000円 -
専有面積86.69m2(26.22坪)(壁芯)
-
間取り2LDK
-
バルコニー面積-
-
築年数2023年12月
(築2年) -
方位南
-
駐車場-
-
総戸数463戸
-
所在階
階数11階
地上49階地下1階建 -
物件
タイプ中古マンション -
マンション名ブリリアタワー堂島
-
住所大阪府大阪市北区堂島2 地図
-
交通地下鉄四つ橋線 西梅田駅 徒歩4分
JR東西線 北新地駅 徒歩5分
JR大阪環状線 大阪駅 徒歩9分
| 借地期間・地代 | - |
|---|---|
| 建物構造 | RC |
| 管理形態 | 委託管理 |
| 維持費等 | インターネット利用料(月額)1,760円 |
| 土地権利 | 所有権 |
| 用途地域 | 商業地域 |
| 現況 | - |
| 引渡可能年月 | 即時 |
| 情報提供元 | SUUMO [060Z77926643] |
| 情報公開日 | |
| 情報更新日 | |
| 次回更新予定日 | 随時 |
地図
設備など
設備
| バス・トイレ | トイレ、浴室乾燥機、温水洗浄便座、風呂 |
|---|---|
| キッチン | システムキッチン、対面K、IHクッキングヒータ、浄水器、食器洗浄乾燥機 |
| 収納 | 収納スペース、ウォークインクローゼット、シューズインクローク |
| セキュリティ | 管理人常駐、モニタ付インターホン |
| 室内設備 | 床暖房、衣類乾燥機 |
| 建物設備 | エレベーター、宅配BOX、複層ガラス |
| 駐車場・駐輪場 | 駐輪場、バイク置き場 |
備考
<物件名>ブリリアタワー堂島/委託(常駐)/<土地権利>所有権/<間取り>2LDK/<特徴>タワーマンション専門【TOWERZ】◆11階!新築未入居物件!南西角部屋!、設計住宅性能評価書・建設住宅性能評価書(既存住宅)・フラット35Sに対応・2沿線以上利用可・LDK20畳以上
販売戸数:1戸/管理費等帯:31750円/修繕積立金帯:15000円
続きを見る
販売戸数:1戸/管理費等帯:31750円/修繕積立金帯:15000円
特記事項
ペット相談可・日当り良好・角部屋・管理人常駐・オール電化・設計住宅性能評価取得・浴室1坪以上・24時間ゴミ出し可
省エネ性能
| エネルギー消費性能 | - |
|---|---|
| 断熱性能 | - |
| 目安光熱費 | - |
- お問い合わせ先
- TOWERZ (株)ES&Company
不動産会社情報
お問い合わせ先
商号: TOWERZ (株)ES&Company
免許番号:国土交通大臣(1)第010312号
所在地:大阪府大阪市中央区淡路町3-6-3 御堂筋MTRビル1階
TEL:0120-905323
取引態様:媒介
管理コード:42216 この会社の他の物件情報を見る この不動産会社に相談したい
免許番号:国土交通大臣(1)第010312号
所在地:大阪府大阪市中央区淡路町3-6-3 御堂筋MTRビル1階
TEL:0120-905323
取引態様:媒介
管理コード:42216 この会社の他の物件情報を見る この不動産会社に相談したい
この地域の暮らしデータ
大阪市の人口などの統計情報
| 世帯数 | 1464615世帯 |
|---|---|
| 人口総数 | 2757642人 |
| 転入者数 |
225000人 転入率(人口1000人当たり) 81.59人 |
| 転出者数 |
188180人 転出率(人口1000人当たり) 68.24人 |
| 土地平均価格 |
住宅地 270839円/m2 商業地 1966607円/m2 |
大阪市の結婚・育児の助成金
| 出産・子育て | |
|---|---|
| 子育て関連の独自の取り組み | (1)子ども・子育てプラザ(在宅での子育て家庭や地域での子育て活動を支援し、また乳幼児期の親子や子育て支援者、就学期の子どもが集い交流する機会を提供する等、地域福祉活動の推進を図る)。(2)習い事・塾代助成事業(学習塾や家庭教師、文化・スポーツ教室等学校外教育にかかる費用を、1人当たり月額1万円まで助成。所得制限あり)。 |
| 出産祝い |
なし
|
| 公立保育所数 |
53ヶ所 0歳児保育を実施 52ヶ所 |
| 私立保育所数 |
395ヶ所 0歳児保育を実施 385ヶ所 |
| 保育所入所待機児童数 | 2人 |
| 認定こども園数 | 117園 |
| 預かり保育実施園数-公立 | 52園 |
| 預かり保育実施園数-私立 | - |
| 学校給食 | 【小学校】完全給食【中学校】完全給食 |
| 公立中学校の学校選択制 | 実施 |
| 子ども・学生等医療費助成<通院>対象年齢 | 18歳3月末まで |
| 子ども・学生等医療費助成<入院>対象年齢 | 18歳3月末まで |
大阪市の治安・ごみ収集情報
| 公共料金・インフラ | |
|---|---|
| ガス料金(22m3使用した場合の月額) | 大阪瓦斯株式会社4544円 |
| 水道料金(口径20mmで20m3の月額) | 大阪市2112円 |
| 下水道料金(20m3を使用した場合の月額) | 大阪市1276円 |
| 下水道普及率 | 100.0% |
| 安心・安全 | |
| 建物火災出火件数 |
553件 人口10000人当たり 2.01件 |
| 刑法犯認知件数 |
39408件 人口1000人当たり 14.32件 |
| ハザード・防災マップ | あり |
| 医療 | |
| 一般病院総数 | 170ヶ所 |
| 一般診療所総数 | 3734ヶ所 |
| 小児科医師数 |
659人 小児人口10000人当たり 22.80人 |
| 産婦人科医師数 |
380人 15~49歳女性人口1万人当たり 6.15人 |
| 介護保険料基準額(月額) | 9249円 |
| ごみ | |
| 家庭ごみ収集(可燃ごみ) |
無料
|
| 家庭ごみの分別方式 | 4分別11種〔普通ごみ(普通ごみ、危険ごみ[竹串、ガラス片、カミソリの刃]) 資源ごみ(空き缶・空きびん・金属製の生活用品・ペットボトル、スプレー缶・カセットボンベ) 容器包装プラスチック 古紙・衣類(新聞紙・折込チラシ、段ボール、紙パック、雑誌、衣類、その他の紙類)〕 |
| 家庭ごみの戸別収集 | 一部実施(【ふれあい収集】65歳以上の一人暮らしの高齢者または高齢者だけの世帯、障がいがある方が居住される家庭で、ごみ出しが困難な人が対象) |
| 粗大ごみ収集 |
あり
|
| 生ごみ処理機助成金制度 |
なし 上限金額 - 上限比率 - |
大阪市の住まいの給付金
暮らしデータ提供元:生活ガイド.com
※行政機関により公表していない地域及びデータがございます。東京23区以外の政令指定都市は、市全体のデータとして表示しています。
※提供データには細心の注意を払っておりますが、調査後に変更がある場合があります。 最新の情報につきましては各市区役所までお問い合わせいただくか、自治体HPなどをご確認ください。
※提供データには細心の注意を払っておりますが、調査後に変更がある場合があります。 最新の情報につきましては各市区役所までお問い合わせいただくか、自治体HPなどをご確認ください。
この物件を見た人はこんな物件も
見ています
住宅ローンシミュレーション
月々の返済額からの購入額の計算と、購入額からの返済額の計算ができます。
住宅ローンをお考えの方へ
最もおトクであなたにぴったりな
住宅ローンをみてみよう!
お気に入りの物件を見逃さない!
プッシュ通知で最新の物件情報が届く






