パークシティ武蔵小杉 ザ ガーデンタワーズイースト 27階 2LDK
2LDK / 武蔵小杉駅
- 情報提供元
- SUUMO
価格13880万円
-
【外観写真】2017年11月築、地下1階付き地上53階建て免震構造のタワーレジデンス!コンシェルジュサービスや24時間ゴミ出し可能など、充実の共用施設。複数沿線利用可能で便利な立地です。
-
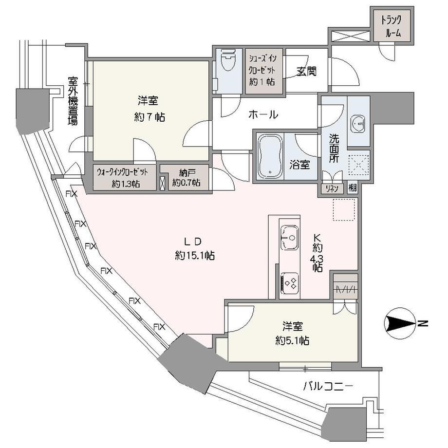
2LDK、価格1億3880万円、専有面積73.47m2、バルコニー面積6.77m2 対面式キッチンが採用されたLDKは約19.4帖。南東向きの窓からは、開放感のある街並みを望めます。WICやSIC、リネン庫など、室内各所に住空間をすっきり保てる収納が備わ…
-
【LDK】LDKは約19.4帖のゆとりある広さ。ソファやダイニングテーブルを配置しても圧迫感が少なく、自由度の高いコーディネートを楽しめます。/2025年11月クロス張替
-
【LDK】リビング全体を見渡せる対面式キッチンが採用されています。キッチン前面に腰壁があり、手元部分がリビング側から見えにくい設計です。/2025年11月クロス張替
-
【LDK】LDKから出入り可能な洋室が隣接しています。在宅ワークスペースや趣味の部屋など、多用途にご活用いただけます。/2025年11月クロス張替
-
【洗面室】洗面化粧台は横幅にゆとりがあり、並んで身支度が可能です。三面鏡裏・洗面ボウル下に収納スぺースが備わっています。/2025年11月クロス張替
-
【洋室(約5.1帖)】LDKに隣接する洋室です。掃き出し窓からバルコニーへ出入り可能◎/2025年11月クロス張替
-
【キッチン】システムキッチンには、家事負担を軽減する食器洗乾燥機が搭載されています。食事後の家事の時短が叶い、ご家族の時間をゆっくりと過ごすことができます。/2025年11月クロス張替
-
【浴室】一日の疲れを癒す浴室には、浴室換気乾燥機が搭載されています。天候や時間帯を気にせずに洗濯物を乾かすことができ便利です。花粉やPM2.5対策にも◎
-
【WIC】枕棚・ハンガーパイプ付きで、空間を余すことなく活用できそうです。衣類や小物はもちろん、スーツケースや季節家電などの収納も可能◎/2025年11月クロス張替
-
【バルコニー】約5.1帖の洋室から出入り可能。東向きのため、爽やかな朝日が差し込みます。便利な物干し金物付きです。
-
【納戸】LDKには、約0.7帖の納戸が設けられています。日用品のストックや防災グッズ、季節家電の収納などに重宝しそうです。/2025年11月クロス張替
-
【眺望】地上27階からの眺望です。視界を遮るような高い建物がなく、開放感のある景色を望めます。仕事や家事の合間に、景色を眺めながらほっと一息リフレッシュできそうです。
-
【SIC】玄関には、靴を履いたまま使用できる大容量のSICが設けられています。靴類だけでなく、アウトドア用品やスポーツ用品などもたっぷり収納可能です。/2025年11月クロス張替
-
【玄関】靴の脱ぎ履きも余裕をもって行えるゆったりとしたスペースが確保されています。玄関から居住スペースが見えづらい、プライバシーに配慮された間取りです。/2025年11月クロス張替
-
【LDK】LD部分は床暖房付きで、冬場でも足元からぽかぽかと暖かく過ごせます。埃や毛が舞い上がりにくく、小さなお子様がいるご家庭にも嬉しい設備です。/2025年11月クロス張替
-
【キッチン】お子様やご夫婦と一緒に立てる広さのキッチンです。コンロは3口ありますので、同時に複数の調理ができます。/2025年11月クロス張替
-
【洗面室】洗濯機置き場の横には、扉付きのリネン庫が備わっています。タオルや下着の収納、洗剤のストックなど、たっぷりと収納いただけます。/2025年11月クロス張替
-
【洋室(約7.0帖)】独立性の高いシンプルな洋室です。ベッドやドレッサーをを配置できるゆとりある広さにつき、主寝室としてもおすすめ◎WIC付きです。/2025年11月クロス張替
-
【洋室(約7.0帖)】南側に窓が設けられた明るい洋室。シンプルな内装のため、自由度が高く家具やレイアウトでお好みの空間を創り上げられます。/2025年11月クロス張替
-
【TVモニター付きインターホン】来訪者の顔と声を確認してから対応できる、TVモニター付きインターホンが設置されています。防犯面に配慮した設備で、お子様が留守番される際にも役立ちます。
-
この物件が気になりましたか? 物件や周辺施設などの詳しい情報は
問合せをすることで確認できます
- お問い合わせ先
- 明和地所(株)川崎店
◇◆「パークシティ武蔵小杉ザガーデンタワーズイースト」のオススメPOINT◆◇◆交通・東急東横線/JR南武線「武蔵小杉」駅 徒歩4分・JR横須賀線「武蔵小杉」駅 徒歩11分◆三井不動産レジデンシャル(株)旧分譲×(株)竹中工務店設計・施工!◆2017年築。地上53階建て、免震構造のタワーレジデンス。◆LDK約19.4帖。高層階につき開放感のある景色を望めます。◆床暖房(LD)・ディスポーザー・食器洗乾燥機・浴室換気乾燥機など、設備が充実。◆2025年11月、全室クロス張替・トイレ新規交換済み。◆24時間ゴミ出し可(各階にダストステーション)。◆ペット飼育可(規約制限有)。
-
価格返済シミュレーション 13880万円
-
管理費等2万4740円/月(委託(常駐))
-
修繕
積立金23,950円 -
専有面積73.47m2(壁芯)
-
間取り2LDK
-
バルコニー面積6.77m2
-
築年数2017年11月
(築8年2ヶ月) -
方位東
-
駐車場敷地内(1万9000円~3万5000円/月)
-
総戸数592戸
-
所在階
階数27階
地上53階地下1階建 -
物件
タイプ中古マンション -
マンション名パークシティ武蔵小杉 ザ ガーデンタワーズイースト
-
住所神奈川県川崎市中原区小杉町2 地図
-
交通東急東横線 武蔵小杉駅 徒歩4分
JR南武線 武蔵小杉駅 徒歩4分
JR横須賀線 武蔵小杉駅 徒歩11分
| 借地期間・地代 | - |
|---|---|
| 建物構造 | RC |
| 管理形態 | 委託管理 |
| 維持費等 | インターネット接続費(月額)946円 |
| 土地権利 | 所有権 |
| 用途地域 | 商業地域 |
| 現況 | - |
| 引渡可能年月 | 相談 |
| 情報提供元 | SUUMO [030Z78889701] |
| 情報公開日 | |
| 情報更新日 | |
| 次回更新予定日 | 随時 |
地図
設備など
設備
| バス・トイレ | トイレ、浴室乾燥機、温水洗浄便座、風呂、サウナ |
|---|---|
| キッチン | システムキッチン、対面K、浄水器、食器洗浄乾燥機 |
| 収納 | 収納スペース、ウォークインクローゼット、シューズインクローク |
| セキュリティ | 管理人常駐、モニタ付インターホン |
| 室内設備 | 床暖房、衣類乾燥機 |
| 建物設備 | エレベーター、宅配BOX |
| 駐車場・駐輪場 | 駐輪場、バイク置き場 |
| 特徴 | リフォーム |
リフォーム履歴
2025年11月完了
水回り設備交換:トイレ
続きを見る
水回り設備交換:トイレ
備考
<物件名>パークシティ武蔵小杉 ザ ガーデンタワーズイースト/<駐車場>敷地内/委託(常駐)/<土地権利>所有権の共有/<間取り>2LDK/<リフォーム>●リフォーム:2025年11月完了(水回り設備交換:トイレ)/<その他制限事項>A棟住宅管理費12930円 修繕積立金内訳:A・B棟全体修繕積立金520円、A・B棟住宅修繕積立金370円。A棟全体修繕積立金10330円、A棟住宅修繕積立金12730円 管理費:2026年1月分より改定(改定後:24730円/月) バイク置き場(空有):3000円/月、ミニバイク(空有):2000円/月 駐輪場(空有):200~400円/月トランクルーム:1.28㎡/<特徴>≪複数沿線利用可能≫南東向き×27階角住戸。充実の設備&豊富な収納有。、2沿線以上利用可・LDK18畳以上・スーパー 徒歩10分以内・市街地が近い・内装リフォーム
販売戸数:1戸/管理費等帯:24740円/修繕積立金帯:23950円
法令等制限:管理費内訳:A・B棟全体管理費1640円、A・B棟住宅管理費1720円。A棟全体管理費8450円
続きを見る
販売戸数:1戸/管理費等帯:24740円/修繕積立金帯:23950円
法令等制限:管理費内訳:A・B棟全体管理費1640円、A・B棟住宅管理費1720円。A棟全体管理費8450円
特記事項
ペット相談可・日当り良好・バリアフリー・角部屋・管理人常駐・24時間ゴミ出し可
省エネ性能
| エネルギー消費性能 | - |
|---|---|
| 断熱性能 | - |
| 目安光熱費 | - |
- お問い合わせ先
- 明和地所(株)川崎店
不動産会社情報
お問い合わせ先
| 商号 | 明和地所(株)川崎店 |
|---|---|
| 免許番号 | 国土交通大臣(9)第004118号 |
| 所在地 | 神奈川県川崎市幸区堀川町580 ソリッドスクエア東館4階 |
| TEL | 0120-919350 |
| 取引態様 | 専任媒介 |
| 管理コード | - |
| 所属協会など | - |
この地域の暮らしデータ
川崎市の人口などの統計情報
| 世帯数 | 745988世帯 |
|---|---|
| 人口総数 | 1529136人 |
| 転入者数 |
105162人 転入率(人口1000人当たり) 68.77人 |
| 転出者数 |
96761人 転出率(人口1000人当たり) 63.28人 |
| 土地平均価格 |
住宅地 302136円/m2 商業地 894684円/m2 |
川崎市の結婚・育児の助成金
| 出産・子育て | |
|---|---|
| 子育て関連の独自の取り組み | (1)産後ケアや妊娠期サポート事業、妊娠・出産SOS電話相談事業等(妊娠・出産包括支援事業として実施)。(2)産前・産後家庭支援ヘルパー派遣事業(妊娠中または産後6ヶ月[多胎の方は1年]までで、母親が体調不良等により育児や家事が困難かつ、日中ほかに育児や家事を行う者がいない家庭に、20回[多胎の方は60回]までヘルパーを派遣し、育児や家事のお手伝いを行う)。 |
| 出産祝い |
なし
|
| 公立保育所数 |
21ヶ所 0歳児保育を実施 20ヶ所 |
| 私立保育所数 |
429ヶ所 0歳児保育を実施 320ヶ所 |
| 保育所入所待機児童数 | 0人 |
| 認定こども園数 | 24園 |
| 預かり保育実施園数-公立 | - |
| 預かり保育実施園数-私立 | 56園 |
| 学校給食 | 【小学校】完全給食【中学校】完全給食 |
| 公立中学校の学校選択制 | 未実施 |
| 子ども・学生等医療費助成<通院>対象年齢 | 中学校卒業まで |
| 子ども・学生等医療費助成<入院>対象年齢 | 中学校卒業まで |
川崎市の治安・ごみ収集情報
| 公共料金・インフラ | |
|---|---|
| ガス料金(22m3使用した場合の月額) | 東京瓦斯株式会社(東京地区等)3926円 |
| 水道料金(口径20mmで20m3の月額) | 川崎市2321円 |
| 下水道料金(20m3を使用した場合の月額) | 川崎市2156円 |
| 下水道普及率 | 99.6% |
| 安心・安全 | |
| 建物火災出火件数 |
270件 人口10000人当たり 1.76件 |
| 刑法犯認知件数 |
7645件 人口1000人当たり 4.97件 |
| ハザード・防災マップ | あり |
| 医療 | |
| 一般病院総数 | 33ヶ所 |
| 一般診療所総数 | 1060ヶ所 |
| 小児科医師数 |
310人 小児人口10000人当たり 16.99人 |
| 産婦人科医師数 |
139人 15~49歳女性人口1万人当たり 4.04人 |
| 介護保険料基準額(月額) | 6591円 |
| ごみ | |
| 家庭ごみ収集(可燃ごみ) |
無料
|
| 家庭ごみの分別方式 | 7分別〔普通ごみ 空きびん 使用済み乾電池 ミックスペーパー プラスチック製容器包装 空き缶・ペットボトル 小物金属〕※プラスチック製容器包装については一部地域(川崎区)でプラスチック資源を実施 |
| 家庭ごみの戸別収集 | 一部実施(ふれあい収集[一部地域のみ実施]) |
| 粗大ごみ収集 |
あり
|
| 生ごみ処理機助成金制度 |
あり 上限金額 10000円 上限比率 50.0% |
川崎市の住まいの給付金
暮らしデータ提供元:生活ガイド.com
※行政機関により公表していない地域及びデータがございます。東京23区以外の政令指定都市は、市全体のデータとして表示しています。
※提供データには細心の注意を払っておりますが、調査後に変更がある場合があります。 最新の情報につきましては各市区役所までお問い合わせいただくか、自治体HPなどをご確認ください。
※提供データには細心の注意を払っておりますが、調査後に変更がある場合があります。 最新の情報につきましては各市区役所までお問い合わせいただくか、自治体HPなどをご確認ください。
住宅ローンシミュレーション
月々の返済額からの購入額の計算と、購入額からの返済額の計算ができます。
住宅ローンをお考えの方へ
最もおトクであなたにぴったりな
住宅ローンをみてみよう!
お気に入りの物件を見逃さない!
プッシュ通知で最新の物件情報が届く






