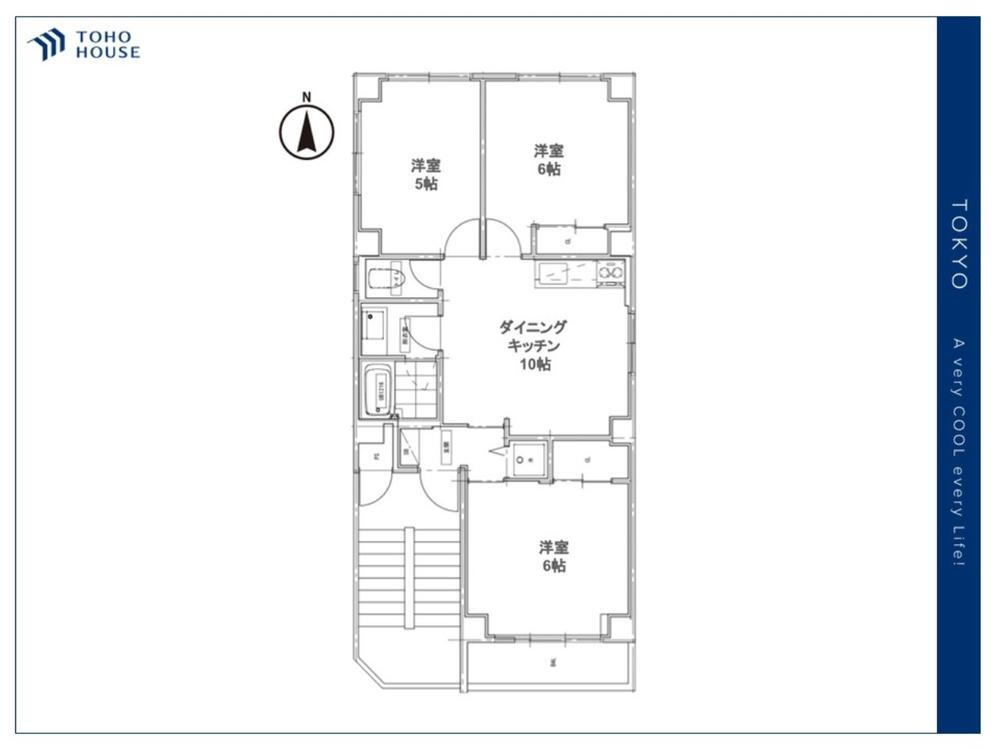
豊玉チェリーB棟 4階 3DK
3DK / 新江古田駅
- 情報提供元
- SUUMO
価格3280万円
-
街に溶け合う美しい景観を生みだしているにも関わらず、採光や風通しを考えて設計された間取り。優雅なひと時をお過ごしいただける筈です。
-
3DK、価格3280万円、専有面積60.34m2 陽光に愛され、環境に恵まれ、家族に包まれた邸宅は、どんなに月日が経っても色褪せる事なく【オンリーワン】に輝き続けます。
-
輝かしい未来を予感させる、立体的な造形とガラスのマテリアルが織りなす表情は、時を超え、時代を超えて、美しく誇り高い存在感を物語ります。
-
方角や時間帯の違いで日当たりがどう変化するか、周辺の道路や学校、お店や道路 の音など、家の中で静かに過ごせるかチェックできるのも、完成済みならでは。
-
ただ「住まう」だけではございません。気持ち良く住んで欲しい気持ちをこめて…。お住まいの事、住まう街の事、お金の事、何でもご相談下さいませ。
-
季節感を演出する多彩な樹木と豊かな彩りが重なり、四季折々の変化を楽しめる心地よい場所となることでしょう。時間の経過と共に味わいが出る素敵なリゾート時間を楽しんでください。
-
新江古田駅まで830m 江古田駅周辺には多数の大学。日本大学芸術学部、武蔵野音楽大学、武蔵大学があり、学生の街として賑やかな雰囲気を持っています。そのため学生向けのおしゃれな店や飲食店なども多数軒を連ねています。
-
西友桜台店まで921m 普段の食卓を豊かにする、充実した食生活をサポートしていただけます。
-
ミニコープ桜台駅前店まで897m 毎日の生活に欠かせない食品や日用品を取り揃えております。毎日の様に通う場所だからこそ近くにあるとさらに便利です。
-
マルエツ新江古田駅前店まで437m 安心して利用できる商品・サービスへのニーズが高まる昨今、お客様と価値観、倫理観を共有しながらトレーサビリティをはじめとした新たな仕組みづくりも積極的に進めています。
-
家族をあたたかく迎え入れてくれるエントランス。自分の家に帰ってきたときの安心感、お子様にとっての「実家」としての安心感…末永く時を刻む邸宅…ご自身でフィーリングを確かめてみてください。
-
夏の入浴やお掃除時の暑さ対策に適した「涼風機能」、入浴前に浴室を暖めておく「暖房機能」、浴室後の水滴や湿気を排出しカビの発生やいニオイを防止する「換気機能」に、梅雨の時期などに重宝する「乾燥機能」など、便利な機能が数多くございますので生活の様々な場面でお使い頂けます。
-
「ビルトインタイプ食器洗乾燥機」通常の手洗いでは使用出来ないほど高温のお湯や高圧水流を使うことにより汚れを効果的に落とすことができる。殺菌効果が非常に高く哺乳瓶などを使う家庭で需要が高く大変便利。
-
お風呂場と台所に操作リモコンがあり、キッチン近くにある給湯リモコンは、お料理の最中でもリビングで寛いでいるなかでもボタン一つで簡単に沸かせて便利ですね。
-
日本を訪れた外国の方で「使ってみて驚いた」と仰る方の多い、ウォシュレット。おしりを優しく洗ってくれるだけではなく、パワー脱臭機能なども備え、快適な空間を創出する機能もございます。
-
「見える安心」をカタチにしました。誰が来てもわかる様にモニター付きインターホンを設置。家事導線を考慮した個所に設置し、防犯性と利便性に優れ快適と安らぎを合わせた優しい設計。
-
新桜台駅まで942m 駅南側の千川通りには、街路樹として桜の木が植えられていて、春になると綺麗に咲き並んでおります。商店街では季節ごとにイベントがあったりと、自然と人の関わりが暖かい雰囲気を持つ街です。
-
江古田駅まで168m 江古田駅周辺には多数の大学。日本大学芸術学部、武蔵野音楽大学、武蔵大学があり、学生の街として賑やかな雰囲気を持っています。そのため学生向けのおしゃれな店や飲食店なども多数軒を連ねています。
-
ゆたか公園まで356m お住まい探しは、家の良し悪しだけでなく周辺環境も重要なポイント。それは月日が経つ事により「近くにあるもの」から「家の財産」へとイメージが変わってくる事を身体が理解しているからだと思います。
-
この物件が気になりましたか? 物件や周辺施設などの詳しい情報は
問合せをすることで確認できます
- お問い合わせ先
- 東宝ハウスライフソリューションズグループ(株)東宝ハウス練馬
□□ A very COOL every LIFE ! □□◎FPによるライフプランのシュミレーション・購入後も無理のない物件価格?・漠然としたキャッシュフローをグラフに。ご購入後の「おウチ」と「お金」のご相談窓口をご用意しております!・金利上昇時のリスクヘッジ、借換え相談、繰上返済のタイミング、各種保険の見直し・・・etc・おウチの設備保証や定期点検、駆け付けサービス・・・etcまずはお気軽に現地をご覧下さいませ。物件の詳細について、ご見学希望のお客様は下記番号までお気軽にご連絡下さい。お問い合わせ専用フリーダイヤル :0120-135-004
-
価格返済シミュレーション 3280万円
-
管理費等9050円/月(自主管理(管理員なし))
-
修繕
積立金- -
専有面積60.34m2
-
間取り3DK
-
バルコニー面積-
-
築年数1982年3月
(築43年8ヶ月) -
方位南
-
駐車場-
-
総戸数6戸
-
所在階
階数4階
6階建 -
物件
タイプ中古マンション -
マンション名豊玉チェリーB棟
-
住所東京都練馬区豊玉北2 地図
-
交通都営大江戸線 新江古田駅 徒歩5分
西武池袋線 桜台駅 徒歩11分
西武池袋線 江古田駅 徒歩11分
| 借地期間・地代 | - |
|---|---|
| 建物構造 | RC |
| 管理形態 | - |
| 維持費等 | - |
| 土地権利 | 所有権 |
| 用途地域 | - |
| 現況 | - |
| 引渡可能年月 | 相談 |
| 情報提供元 | SUUMO [030Z78565408] |
| 情報公開日 | |
| 情報更新日 | |
| 次回更新予定日 | 随時 |
地図
設備など
設備
| バス・トイレ | 風呂 |
|---|---|
| キッチン | システムキッチン、浄水器、食器洗浄乾燥機 |
| セキュリティ | モニタ付インターホン |
| 室内設備 | 洗面所、シャンプードレッサ |
| 駐車場・駐輪場 | 駐輪場 |
| 特徴 | リノベーション、リフォーム |
リフォーム履歴
2026年2月完了予定
水回り設備交換:キッチン・浴室・トイレ
内装リフォーム:壁・床・全室
※年月は一番古いリフォーム箇所を表します
続きを見る
水回り設備交換:キッチン・浴室・トイレ
内装リフォーム:壁・床・全室
※年月は一番古いリフォーム箇所を表します
備考
<物件名>豊玉チェリーB棟/<土地権利>所有権の共有/<間取り>3DK/<リフォーム>●リフォーム:2026年2月完了予定(水回り設備交換:キッチン・浴室・トイレ、内装リフォーム:壁・床・全室)※年月は一番古いリフォーム箇所を表します/<特徴>新江古田駅徒歩5分の好立地♪新規フルリノベーション工事進行中◎、2沿線以上利用可・年度内引渡可・市街地が近い・システムキッチン・角住戸
販売戸数:1戸/管理費等帯:9050円
続きを見る
販売戸数:1戸/管理費等帯:9050円
特記事項
日当り良好・閑静な住宅街・バリアフリー・角部屋
省エネ性能
| エネルギー消費性能 | - |
|---|---|
| 断熱性能 | - |
| 目安光熱費 | - |
- お問い合わせ先
- 東宝ハウスライフソリューションズグループ(株)東宝ハウス練馬
不動産会社情報
お問い合わせ先
商号: 東宝ハウスライフソリューションズグループ(株)東宝ハウス練馬
免許番号:東京都知事(2)第098694号
所在地:東京都練馬区東大泉1-27-22 光和ビル2F
TEL:0120-135004
取引態様:媒介
管理コード:4課 この会社の他の物件情報を見る この不動産会社に相談したい
免許番号:東京都知事(2)第098694号
所在地:東京都練馬区東大泉1-27-22 光和ビル2F
TEL:0120-135004
取引態様:媒介
管理コード:4課 この会社の他の物件情報を見る この不動産会社に相談したい
この地域の暮らしデータ
練馬区の人口などの統計情報
| 世帯数 | 374485世帯 |
|---|---|
| 人口総数 | 741540人 |
| 転入者数 |
49591人 転入率(人口1000人当たり) 66.88人 |
| 転出者数 |
44239人 転出率(人口1000人当たり) 59.66人 |
| 土地平均価格 |
住宅地 413757円/m2 商業地 816167円/m2 |
練馬区の結婚・育児の助成金
| 出産・子育て | |
|---|---|
| 子育て関連の独自の取り組み | (1)第3子誕生祝金。(2)子育てスタート応援券。(3)外遊び型子育てのひろば(おひさまぴよぴよ)。(4)ねりますくすくアプリ(ねりすく)。(5)ねりま子育て応援ハンドブック。(6)父親の育児応援DVD。(7)1年保育(1歳児・2歳児)。(8)発達に不安がある親子を対象にしたひろば事業(のびのびひろば)。(9)産後ケア事業。(10)移動型外遊びの場提供事業「おひさま てくてく」。(11)2019年度から、練馬こどもカフェ(民間カフェ等と協働し、保護者が交流したり子どもと一緒にリラックスできる場を提供し、私立幼稚園や保育事業者の協力を得て子育て講座等を実施)を開始。(12)ねりま子育て応援アプリ。 |
| 出産祝い |
あり
|
| 公立保育所数 |
60ヶ所 0歳児保育を実施 50ヶ所 |
| 私立保育所数 |
141ヶ所 0歳児保育を実施 136ヶ所 |
| 保育所入所待機児童数 | 0人 |
| 認定こども園数 | 3園 |
| 預かり保育実施園数-公立 | 3園 |
| 預かり保育実施園数-私立 | 35園 |
| 学校給食 | 【小学校】完全給食【中学校】完全給食 |
| 公立中学校の学校選択制 | 実施(新入学時のみ) |
| 子ども・学生等医療費助成<通院>対象年齢 | 18歳3月末まで |
| 子ども・学生等医療費助成<入院>対象年齢 | 18歳3月末まで |
練馬区の治安・ごみ収集情報
| 公共料金・インフラ | |
|---|---|
| ガス料金(22m3使用した場合の月額) | 東京瓦斯株式会社(東京地区等)3926円 |
| 水道料金(口径20mmで20m3の月額) | 東京都水道局2816円 |
| 下水道料金(20m3を使用した場合の月額) | 東京都下水道局2068円 |
| 下水道普及率 | 100.0% |
| 安心・安全 | |
| 建物火災出火件数 |
88件 人口10000人当たり 1.17件 |
| 刑法犯認知件数 |
3480件 人口1000人当たり 4.62件 |
| ハザード・防災マップ | あり |
| 医療 | |
| 一般病院総数 | 17ヶ所 |
| 一般診療所総数 | 593ヶ所 |
| 小児科医師数 |
125人 小児人口10000人当たり 14.71人 |
| 産婦人科医師数 |
40人 15~49歳女性人口1万人当たり 2.35人 |
| 介護保険料基準額(月額) | 6670円 |
| ごみ | |
| 家庭ごみ収集(可燃ごみ) |
無料
|
| 家庭ごみの分別方式 | 3分別10種〔可燃ごみ 不燃ごみ 資源(古紙[新聞、雑誌・雑紙、ダンボール、紙パック]、びん、缶、ペットボトル、容器包装プラスチック)〕 拠点回収:古布 廃食用油 乾電池 小型家電(13品目) |
| 家庭ごみの戸別収集 | 一部実施(【練馬区戸別訪問収集実施要綱】65歳以上の方のみの世帯または障害のある方のみの世帯で、世帯員自らごみを集積所へ持ち出すことが困難で、身近な人の協力が得られない世帯が対象) |
| 粗大ごみ収集 |
あり
|
| 生ごみ処理機助成金制度 |
なし 上限金額 - 上限比率 - |
練馬区の住まいの給付金
暮らしデータ提供元:生活ガイド.com
※行政機関により公表していない地域及びデータがございます。東京23区以外の政令指定都市は、市全体のデータとして表示しています。
※提供データには細心の注意を払っておりますが、調査後に変更がある場合があります。 最新の情報につきましては各市区役所までお問い合わせいただくか、自治体HPなどをご確認ください。
※提供データには細心の注意を払っておりますが、調査後に変更がある場合があります。 最新の情報につきましては各市区役所までお問い合わせいただくか、自治体HPなどをご確認ください。
この物件を見た人はこんな物件も
見ています
住宅ローンシミュレーション
月々の返済額からの購入額の計算と、購入額からの返済額の計算ができます。
住宅ローンをお考えの方へ
最もおトクであなたにぴったりな
住宅ローンをみてみよう!
お気に入りの物件を見逃さない!
プッシュ通知で最新の物件情報が届く






