日神パレステージ光が丘 2階 3LDK
3LDK / 光が丘駅
- 情報提供元
- SUUMO
価格4280万円
-
現地(2025年10月)撮影
-
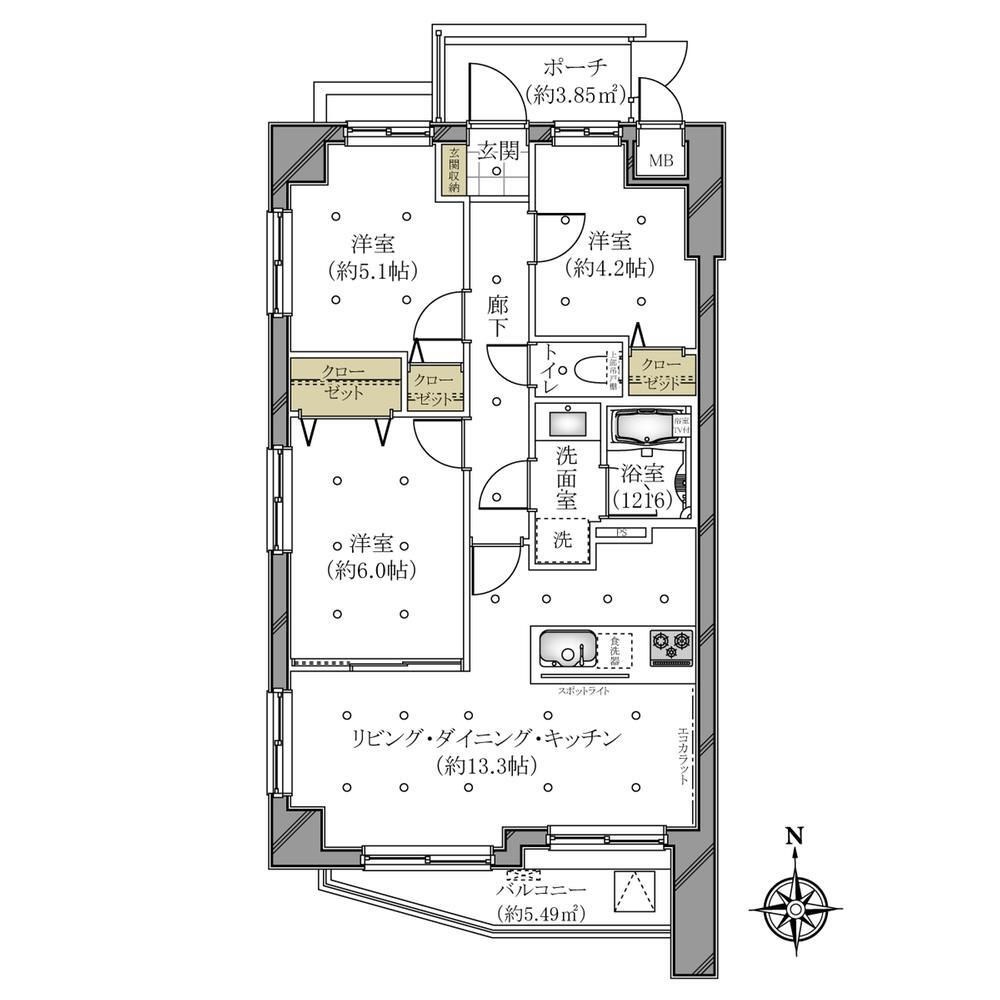
3LDK、価格4280万円、専有面積62.02m2、バルコニー面積5.49m2
-
この物件が気になりましたか? 物件や周辺施設などの詳しい情報は
問合せをすることで確認できます
- お問い合わせ先
- フジミ不動産販売(株)
・浴室TV付き・対面キッチン・新規エアコン1台設置
-
価格返済シミュレーション 4280万円
-
管理費等1万3640円/月(委託(通勤))
-
修繕
積立金16,700円 -
専有面積62.02m2(壁芯)
-
間取り3LDK
-
バルコニー面積5.49m2
-
築年数1995年1月
(築30年10ヶ月) -
方位南
-
駐車場敷地内(1万7000円/月)
-
総戸数22戸
-
所在階
階数2階
8階建 -
物件
タイプ中古マンション -
マンション名日神パレステージ光が丘
-
住所東京都練馬区高松5 地図
-
交通都営大江戸線 光が丘駅 徒歩13分
西武池袋線 練馬高野台駅 徒歩25分
都営大江戸線 練馬春日町駅 徒歩23分
| 借地期間・地代 | - |
|---|---|
| 建物構造 | RC |
| 管理形態 | 委託管理 |
| 維持費等 | - |
| 土地権利 | 所有権 |
| 用途地域 | - |
| 現況 | - |
| 引渡可能年月 | 相談 |
| 情報提供元 | SUUMO [030Z78524258] |
| 情報公開日 | |
| 情報更新日 | |
| 次回更新予定日 | 随時 |
地図
設備など
設備
| バス・トイレ | 浴室乾燥機、風呂 |
|---|---|
| キッチン | システムキッチン、対面K、浄水器、食器洗浄乾燥機 |
| 収納 | 収納スペース |
| セキュリティ | 管理人日勤、モニタ付インターホン |
| 室内設備 | 洗面所、シャンプードレッサ、衣類乾燥機 |
| 建物設備 | エレベーター、宅配BOX |
| 駐車場・駐輪場 | 駐輪場、バイク置き場 |
| 特徴 | リフォーム |
リフォーム履歴
2025年11月完了予定
水回り設備交換:キッチン・浴室・トイレ
内装リフォーム:壁・床・全室
※年月は一番古いリフォーム箇所を表します
続きを見る
水回り設備交換:キッチン・浴室・トイレ
内装リフォーム:壁・床・全室
※年月は一番古いリフォーム箇所を表します
備考
<物件名>日神パレステージ光が丘/<駐車場>敷地内/委託(日勤)/<土地権利>所有権/<間取り>3LDK/<リフォーム>●リフォーム:2025年11月完了予定(水回り設備交換:キッチン・浴室・トイレ、内装リフォーム:壁・床・全室)※年月は一番古いリフォーム箇所を表します/<特徴>●新規内装フルリノベーション●ペット飼育可●三方角部屋 、2沿線以上利用可・スーパー 徒歩10分以内・市街地が近い・海まで2km以内・南向き
販売戸数:1戸/管理費等帯:13640円/修繕積立金帯:16700円
続きを見る
販売戸数:1戸/管理費等帯:13640円/修繕積立金帯:16700円
特記事項
閑静な住宅街・角部屋・管理人日勤・24時間ゴミ出し可
省エネ性能
| エネルギー消費性能 | - |
|---|---|
| 断熱性能 | - |
| 目安光熱費 | - |
- お問い合わせ先
- フジミ不動産販売(株)
不動産会社情報
お問い合わせ先
商号: フジミ不動産販売(株)
免許番号:東京都知事(1)第108626号
所在地:東京都杉並区高円寺北3-23-12 オーク・タワー高円寺5階
TEL:03-5364-9160
取引態様:媒介 この会社の他の物件情報を見る この不動産会社に相談したい
免許番号:東京都知事(1)第108626号
所在地:東京都杉並区高円寺北3-23-12 オーク・タワー高円寺5階
TEL:03-5364-9160
取引態様:媒介 この会社の他の物件情報を見る この不動産会社に相談したい
この地域の暮らしデータ
練馬区の人口などの統計情報
| 世帯数 | 374485世帯 |
|---|---|
| 人口総数 | 741540人 |
| 転入者数 |
49591人 転入率(人口1000人当たり) 66.88人 |
| 転出者数 |
44239人 転出率(人口1000人当たり) 59.66人 |
| 土地平均価格 |
住宅地 413757円/m2 商業地 816167円/m2 |
練馬区の結婚・育児の助成金
| 出産・子育て | |
|---|---|
| 子育て関連の独自の取り組み | (1)第3子誕生祝金。(2)子育てスタート応援券。(3)外遊び型子育てのひろば(おひさまぴよぴよ)。(4)ねりますくすくアプリ(ねりすく)。(5)ねりま子育て応援ハンドブック。(6)父親の育児応援DVD。(7)1年保育(1歳児・2歳児)。(8)発達に不安がある親子を対象にしたひろば事業(のびのびひろば)。(9)産後ケア事業。(10)移動型外遊びの場提供事業「おひさま てくてく」。(11)2019年度から、練馬こどもカフェ(民間カフェ等と協働し、保護者が交流したり子どもと一緒にリラックスできる場を提供し、私立幼稚園や保育事業者の協力を得て子育て講座等を実施)を開始。(12)ねりま子育て応援アプリ。 |
| 出産祝い |
あり
|
| 公立保育所数 |
60ヶ所 0歳児保育を実施 50ヶ所 |
| 私立保育所数 |
141ヶ所 0歳児保育を実施 136ヶ所 |
| 保育所入所待機児童数 | 0人 |
| 認定こども園数 | 3園 |
| 預かり保育実施園数-公立 | 3園 |
| 預かり保育実施園数-私立 | 35園 |
| 学校給食 | 【小学校】完全給食【中学校】完全給食 |
| 公立中学校の学校選択制 | 実施(新入学時のみ) |
| 子ども・学生等医療費助成<通院>対象年齢 | 18歳3月末まで |
| 子ども・学生等医療費助成<入院>対象年齢 | 18歳3月末まで |
練馬区の治安・ごみ収集情報
| 公共料金・インフラ | |
|---|---|
| ガス料金(22m3使用した場合の月額) | 東京瓦斯株式会社(東京地区等)3926円 |
| 水道料金(口径20mmで20m3の月額) | 東京都水道局2816円 |
| 下水道料金(20m3を使用した場合の月額) | 東京都下水道局2068円 |
| 下水道普及率 | 100.0% |
| 安心・安全 | |
| 建物火災出火件数 |
88件 人口10000人当たり 1.17件 |
| 刑法犯認知件数 |
3480件 人口1000人当たり 4.62件 |
| ハザード・防災マップ | あり |
| 医療 | |
| 一般病院総数 | 17ヶ所 |
| 一般診療所総数 | 593ヶ所 |
| 小児科医師数 |
125人 小児人口10000人当たり 14.71人 |
| 産婦人科医師数 |
40人 15~49歳女性人口1万人当たり 2.35人 |
| 介護保険料基準額(月額) | 6670円 |
| ごみ | |
| 家庭ごみ収集(可燃ごみ) |
無料
|
| 家庭ごみの分別方式 | 3分別10種〔可燃ごみ 不燃ごみ 資源(古紙[新聞、雑誌・雑紙、ダンボール、紙パック]、びん、缶、ペットボトル、容器包装プラスチック)〕 拠点回収:古布 廃食用油 乾電池 小型家電(13品目) |
| 家庭ごみの戸別収集 | 一部実施(【練馬区戸別訪問収集実施要綱】65歳以上の方のみの世帯または障害のある方のみの世帯で、世帯員自らごみを集積所へ持ち出すことが困難で、身近な人の協力が得られない世帯が対象) |
| 粗大ごみ収集 |
あり
|
| 生ごみ処理機助成金制度 |
なし 上限金額 - 上限比率 - |
練馬区の住まいの給付金
暮らしデータ提供元:生活ガイド.com
※行政機関により公表していない地域及びデータがございます。東京23区以外の政令指定都市は、市全体のデータとして表示しています。
※提供データには細心の注意を払っておりますが、調査後に変更がある場合があります。 最新の情報につきましては各市区役所までお問い合わせいただくか、自治体HPなどをご確認ください。
※提供データには細心の注意を払っておりますが、調査後に変更がある場合があります。 最新の情報につきましては各市区役所までお問い合わせいただくか、自治体HPなどをご確認ください。
この物件を見た人はこんな物件も
見ています
住宅ローンシミュレーション
月々の返済額からの購入額の計算と、購入額からの返済額の計算ができます。
住宅ローンをお考えの方へ
最もおトクであなたにぴったりな
住宅ローンをみてみよう!
お気に入りの物件を見逃さない!
プッシュ通知で最新の物件情報が届く






