ルネサンス東川口プレリア 4階 4LDK
4LDK / 東川口駅
- 情報提供元
- SUUMO
価格3880万円
-
最寄り駅のJR東川口駅は都内へとアクセスができる埼玉高速鉄道が利用可能。お仕事やお出掛けで都内に行かれる方にも嬉しいエリアとなっております。
-
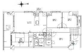
4LDK、価格3880万円、専有面積78.94m2、バルコニー面積11.3m2
-
浴室乾燥機、オートバス、温水洗浄便座、TVモニター付きインターフォンなどの充実した設備と仕様となっております。
-
扉を開ければ家族が出迎えてくれる、そんな気持ちのいい一日が始まるのが玄関。シューズスペースは大容量で、家族全員分入れても余裕が出そうです。ここから気持ちのいい一日をスタートしましょう。
-
奥行きのある広さのLDKは、より広く感じられるような仕様になっております。朝から気持ちよく食卓を囲む風景が目に浮かぶようです。
※VRによる家具置きの加工を施しております。 -
奥行きのある広さのLDKは、より広く感じられるような仕様になっております。朝から気持ちよく食卓を囲む風景が目に浮かぶようです。
-
広々と横に広がったバルコニーは、日差しをこれでもかというくらい差し込んでくれます。お洗濯物を干しても、天気がいい日ならすぐ乾きそう。
-
周辺には高いマンションも少ないので、視線をさえぎらない開放感あふれる眺望。特に天気のいい日には、青々としたきれいな空が広がります。
-
こちらのお部屋は、縦長で奥行きのある間取りとなっております。この形だと、より広く感じられますね。贅沢なお部屋ですね。
-
こちらの洋室はきれいな形で、実際に目の当たりにしてみると、より広く感じます。収納スペースは広々となっており、収納が苦手な方にも安心ですね。
-
こちらのお部屋は帰宅したらすぐに入れる玄関横に配置。すぐにお部屋に入りたい方はここのお部屋がいいですね。窓も付いており、風の通りも良さそう。家具の配置を考えるのも、楽しそうですね。
-
日本人ならこの【和】の匂いや雰囲気がお好きな方も多いのではないでしょうか。居室としてのご利用はもちろん、客間としてもご利用いただけます。リビングへのアクセスがいいのも嬉しい。
-
こちらの収納スペースは広さも十分にございますので、収納が苦手な方にも安心です。これならお部屋も広く使えそうですね。
-
温もりの感じられるキッチンは、奥様には嬉しい充実した仕様。忙しい時には、オートバス機能を使って、お風呂の準備もらくらく。
-
お家の中のオアシスは、ゆったりとくつろげる安らぎの空間。清潔感あふれるこの場所は、日々の仕事の疲れを癒してくれることでしょう。ついつい、長風呂をしてしまいたくなります。
-
高級感溢れるエントランスはオートロックとなっており、防犯面も安心となっております。特に女性の方やお子様連れのお客様には安心ができる設備ですね。
-
清潔感のあふれる奥行きのある空間。狭いと落ち着かない部分もありますが、この奥行きがあれば、落ち着けそうですね。温水洗浄便座になっており、より快適な仕様になっております。
-
共用部分はやわらかい配色の色使いで、落ち着いた雰囲気がただようようです。毎日この場所を行き来しているにも関わらず、これだけきれいなのは管理が行き届いている証拠ですね。
-
駐車場は広々としているので、駐車が苦手な方にも安心ですね。
空き状況はお問い合わせください。 -
洗面所は白で統一され、清潔感がこの上なくあふれることでしょう。きれいな洗面台だと朝の身支度も気持ちよく出来そうですね。寝起きのあなたをやさしく迎えてくれることでしょう。
-
JR東川口駅まで1120m
-
この物件が気になりましたか? 物件や周辺施設などの詳しい情報は
問合せをすることで確認できます
- お問い合わせ先
- 東宝ハウスライフソリューションズグループ(株)東宝ハウス川口営業3課
◇ 物 件 レ ポ ー ト ◇・日当たり良好な南向きバルコニー。・浴室乾燥機、オートバス、温水洗浄便座、TVモニター付きインターフォンなどの充実した設備。・埼玉高速鉄道とJR武蔵野線がご利用できるJR東川口駅が徒歩14分。・新規リフォーム完成済み。・お問い合わせ当日のご見学可能です。☆頭金0円での購入可能です。☆無料にて資金の見える可「生涯FPサービス」実施中☆無料にてお引渡しの翌週から1年間の「設備保証(上限10万円)」対応。☆嬉しい優待特典「Club Offプレミアム」サービス。☆お引越しから購入後のメンテナンスまで全てお任せ下さい。
-
価格返済シミュレーション 3880万円
-
管理費等1万2600円/月(委託(通勤))
-
修繕
積立金20,530円 -
専有面積78.94m2(23.87坪)(壁芯)
-
間取り4LDK
-
バルコニー面積11.3m2
-
築年数2010年1月
(築15年10ヶ月) -
方位南
-
駐車場空無
-
総戸数29戸
-
所在階
階数4階
5階建 -
物件
タイプ中古マンション -
マンション名ルネサンス東川口プレリア
-
住所埼玉県川口市東川口6 地図
-
交通JR武蔵野線 東川口駅 徒歩14分
埼玉高速鉄道 戸塚安行駅 徒歩33分
東武伊勢崎線 越谷駅 徒歩4.2km
| 借地期間・地代 | - |
|---|---|
| 建物構造 | RC |
| 管理形態 | 委託管理 |
| 維持費等 | - |
| 土地権利 | 所有権 |
| 用途地域 | 2種中高 |
| 現況 | - |
| 引渡可能年月 | 即時 |
| 情報提供元 | SUUMO [030Z77683417] |
| 情報公開日 | |
| 情報更新日 | |
| 次回更新予定日 | 随時 |
地図
設備など
設備
| バス・トイレ | トイレ、浴室乾燥機、温水洗浄便座、風呂 |
|---|---|
| キッチン | システムキッチン、対面K |
| 収納 | 収納スペース |
| セキュリティ | 管理人日勤、モニタ付インターホン |
| 室内設備 | 衣類乾燥機 |
| 建物設備 | バルコニー、エレベーター、宅配BOX |
| 駐車場・駐輪場 | 駐輪場、バイク置き場 |
| 特徴 | リフォーム |
リフォーム履歴
2025年7月完了
水回り設備交換:キッチン・浴室・トイレ
内装リフォーム:壁・床・全室
※年月は一番古いリフォーム箇所を表します
続きを見る
水回り設備交換:キッチン・浴室・トイレ
内装リフォーム:壁・床・全室
※年月は一番古いリフォーム箇所を表します
備考
<物件名>ルネサンス東川口プレリア/<駐車場>空無/委託(日勤)/<土地権利>所有権/<間取り>4LDK/<リフォーム>●リフォーム:2025年7月完了(水回り設備交換:キッチン・浴室・トイレ、内装リフォーム:壁・床・全室)※年月は一番古いリフォーム箇所を表します/<特徴>~約78.94m2の希少な4LDK・嬉しい角部屋・新規リフォーム施工済み~、即引渡可・2沿線以上利用可・スーパー 徒歩10分以内・内装リフォーム・南向き
販売戸数:1戸/管理費等帯:12600円/修繕積立金帯:20530円
続きを見る
販売戸数:1戸/管理費等帯:12600円/修繕積立金帯:20530円
特記事項
ペット相談可・日当り良好・閑静な住宅街・角部屋・管理人日勤
省エネ性能
| エネルギー消費性能 | - |
|---|---|
| 断熱性能 | - |
| 目安光熱費 | - |
- お問い合わせ先
- 東宝ハウスライフソリューションズグループ(株)東宝ハウス川口営業3課
不動産会社情報
お問い合わせ先
商号: 東宝ハウスライフソリューションズグループ(株)東宝ハウス川口営業3課
免許番号:埼玉県知事(6)第018501号
所在地:埼玉県川口市飯塚2-4-37
TEL:0120-104853
取引態様:媒介
管理コード:20250602-megumi この会社の他の物件情報を見る この不動産会社に相談したい
免許番号:埼玉県知事(6)第018501号
所在地:埼玉県川口市飯塚2-4-37
TEL:0120-104853
取引態様:媒介
管理コード:20250602-megumi この会社の他の物件情報を見る この不動産会社に相談したい
この地域の暮らしデータ
川口市の人口などの統計情報
| 世帯数 | 266756世帯 |
|---|---|
| 人口総数 | 606315人 |
| 転入者数 |
34070人 転入率(人口1000人当たり) 56.19人 |
| 転出者数 |
26834人 転出率(人口1000人当たり) 44.26人 |
| 土地平均価格 |
住宅地 249610円/m2 商業地 718600円/m2 |
川口市の結婚・育児の助成金
| 出産・子育て | |
|---|---|
| 子育て関連の独自の取り組み | - |
| 出産祝い |
あり
|
| 公立保育所数 |
41ヶ所 0歳児保育を実施 17ヶ所 |
| 私立保育所数 |
92ヶ所 0歳児保育を実施 82ヶ所 |
| 保育所入所待機児童数 | 10人 |
| 認定こども園数 | 5園 |
| 預かり保育実施園数-公立 | 0園 |
| 預かり保育実施園数-私立 | 36園 |
| 学校給食 | 【小学校】完全給食【中学校】完全給食 |
| 公立中学校の学校選択制 | 未実施 |
| 子ども・学生等医療費助成<通院>対象年齢 | 中学校卒業まで |
| 子ども・学生等医療費助成<入院>対象年齢 | 中学校卒業まで |
川口市の治安・ごみ収集情報
| 公共料金・インフラ | |
|---|---|
| ガス料金(22m3使用した場合の月額) | 東京瓦斯株式会社(東京地区等)3926円 大東ガス株式会社4335円 |
| 水道料金(口径20mmで20m3の月額) | 川口市3553円 |
| 下水道料金(20m3を使用した場合の月額) | 川口市1998円 |
| 下水道普及率 | 88.8% |
| 安心・安全 | |
| 建物火災出火件数 |
94件 人口10000人当たり 1.58件 |
| 刑法犯認知件数 |
4437件 人口1000人当たり 7.47件 |
| ハザード・防災マップ | あり |
| 医療 | |
| 一般病院総数 | 21ヶ所 |
| 一般診療所総数 | 339ヶ所 |
| 小児科医師数 |
88人 小児人口10000人当たり 12.52人 |
| 産婦人科医師数 |
34人 15~49歳女性人口1万人当たり 2.68人 |
| 介護保険料基準額(月額) | 6077円 |
| ごみ | |
| 家庭ごみ収集(可燃ごみ) |
無料
|
| 家庭ごみの分別方式 | 3分別13種〔一般ごみ 有害ごみ 資源物(プラスチック製容器包装、びん、飲料かん、金属類、ペットボトル、繊維類、紙類[紙パック、新聞紙、雑誌・雑紙、ダンボール、紙製容器包装])〕 拠点回収:乾電池 |
| 家庭ごみの戸別収集 | 一部実施(ふれあい収集) |
| 粗大ごみ収集 |
あり
|
| 生ごみ処理機助成金制度 |
あり 上限金額 24000円 上限比率 50.0% |
川口市の住まいの給付金
暮らしデータ提供元:生活ガイド.com
※行政機関により公表していない地域及びデータがございます。東京23区以外の政令指定都市は、市全体のデータとして表示しています。
※提供データには細心の注意を払っておりますが、調査後に変更がある場合があります。 最新の情報につきましては各市区役所までお問い合わせいただくか、自治体HPなどをご確認ください。
※提供データには細心の注意を払っておりますが、調査後に変更がある場合があります。 最新の情報につきましては各市区役所までお問い合わせいただくか、自治体HPなどをご確認ください。
この物件を見た人はこんな物件も
見ています
住宅ローンシミュレーション
月々の返済額からの購入額の計算と、購入額からの返済額の計算ができます。
住宅ローンをお考えの方へ
最もおトクであなたにぴったりな
住宅ローンをみてみよう!
お気に入りの物件を見逃さない!
プッシュ通知で最新の物件情報が届く






