大阪府堺市南区槇塚台3丁46-3 泉ケ丘駅 中古一戸建て・中古住宅
5SLDK / 泉ケ丘駅
- 情報提供元
- LIFULL HOME'S
価格5800万円
-
【中学校】堺市立晴美台中学校まで776m
-
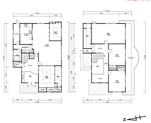
間取り
-
この物件が気になりましたか? 物件や周辺施設などの詳しい情報は
問合せをすることで確認できます
- お問い合わせ先
- ダイバーシティホーム株式会社
-
価格返済シミュレーション 5800万円
-
土地面積381.4m2(公簿)
-
建物面積241.8m2(壁芯)
-
間取り5SLDK(LDK 26.6 和 5.9・10 洋 19.5・10.5×2)
-
建物構造・規模木造2階建
-
築年月1990年1月
(築35年11ヶ月) -
駐車場-
-
物件
タイプ中古住宅 -
住所大阪府堺市南区槇塚台3丁46-3 地図
-
交通南海電鉄泉北線 泉ケ丘駅 徒歩34分
南海電鉄高野線 滝谷駅 徒歩4.8km
| 私道面積 | - |
|---|---|
| 接道状況 | 西10m公道 南12m公道 二方(除角地) |
| セットバック | 無 |
| 用途地域 | 1種低層 |
| 建ぺい率 / 容積率 | 40% / 80% |
| 地目 | 宅地 |
| 土地権利 | 所有権 |
| 借地期間・地代 | - |
| 都市計画 | 市街化区域 |
| 現況 | 空室 |
| 引渡可能時期 | 相談 |
| 情報提供元 | LIFULL HOME'S [1512430000869] |
| 情報公開日 | |
| 情報更新日 | |
| 次回更新予定日 | 2025年12月9日 |
地図
設備など
設備
| バス・トイレ | バス・トイレ別、シャワー、追焚機能、浴室乾燥機、温水洗浄便座 |
|---|---|
| キッチン | コンロ2口以上 |
| 収納 | クローゼット、床下収納 |
| セキュリティ | モニタ付インターホン |
| 室内設備 | 室内洗濯機置き場 |
| 駐車場・駐輪場 | 駐輪場、バイク置き場 |
| その他 | 上水道、本下水 |
備考
【物件周辺の生活情報】
・学校
堺市立槇塚台小学校(308m)、堺市立晴美台中学校(776m)
・買い物
スーパー(560m)、コンビニ(558m)
・その他施設
幼保連携型認定こども園槙塚こども園(577m)
【設備・特記事項備考】専用バス・専用トイレ・全居室収納
国土法届出:不要
述べ床面積:241.8m2
続きを見る
・学校
堺市立槇塚台小学校(308m)、堺市立晴美台中学校(776m)
・買い物
スーパー(560m)、コンビニ(558m)
・その他施設
幼保連携型認定こども園槙塚こども園(577m)
【設備・特記事項備考】専用バス・専用トイレ・全居室収納
国土法届出:不要
述べ床面積:241.8m2
特記事項
角部屋
省エネ性能
| エネルギー消費性能 | - |
|---|---|
| 断熱性能 | - |
| 目安光熱費 | - |
- お問い合わせ先
- ダイバーシティホーム株式会社
※0037で始まる電話番号に携帯電話からお問合せいただいた方には、ショートメッセージ(SMS)によるお問合せ完了通知をお届けする場合があります。
不動産会社情報
お問い合わせ先
商号: ダイバーシティホーム株式会社
免許番号:大阪府知事(01)第064768号
所在地:大阪府高石市取石7丁目4-1
取引態様:媒介
管理コード:869
所属協会など:(公社)近畿圏不動産流通機構、(公社)近畿地区不動産公正取引協議会、(公社)全日本不動産協会大阪府本部 会社情報 この会社の他の物件情報を見る この不動産会社に相談したい
免許番号:大阪府知事(01)第064768号
所在地:大阪府高石市取石7丁目4-1
取引態様:媒介
管理コード:869
所属協会など:(公社)近畿圏不動産流通機構、(公社)近畿地区不動産公正取引協議会、(公社)全日本不動産協会大阪府本部 会社情報 この会社の他の物件情報を見る この不動産会社に相談したい
この地域の暮らしデータ
堺市の人口などの統計情報
| 世帯数 | 365535世帯 |
|---|---|
| 人口総数 | 817041人 |
| 転入者数 |
37003人 転入率(人口1000人当たり) 45.29人 |
| 転出者数 |
35961人 転出率(人口1000人当たり) 44.01人 |
| 土地平均価格 |
住宅地 143254円/m2 商業地 254357円/m2 |
堺市の結婚・育児の助成金
| 出産・子育て | |
|---|---|
| 子育て関連の独自の取り組み | (1)「さかいマイ保育園」の実施(身近な保育所[園]をかかりつけ保育園として登録)。(2)子ども食堂。(3)子育て応援アプリ。 |
| 出産祝い |
あり
|
| 公立保育所数 |
0ヶ所 0歳児保育を実施 - |
| 私立保育所数 |
24ヶ所 0歳児保育を実施 24ヶ所 |
| 保育所入所待機児童数 | 0人 |
| 認定こども園数 | 136園 |
| 預かり保育実施園数-公立 | 4園 |
| 預かり保育実施園数-私立 | 5園 |
| 学校給食 | 【小学校】完全給食【中学校】家庭弁当等との選択制/デリバリー形式[運搬:ランチボックス、内容:完全給食] |
| 公立中学校の学校選択制 | 一部実施 |
| 子ども・学生等医療費助成<通院>対象年齢 | 18歳3月末まで |
| 子ども・学生等医療費助成<入院>対象年齢 | 18歳3月末まで |
堺市の治安・ごみ収集情報
| 公共料金・インフラ | |
|---|---|
| ガス料金(22m3使用した場合の月額) | 大阪瓦斯株式会社4544円 |
| 水道料金(口径20mmで20m3の月額) | 堺市2464円 |
| 下水道料金(20m3を使用した場合の月額) | 堺市2821円 |
| 下水道普及率 | 98.5% |
| 安心・安全 | |
| 建物火災出火件数 |
115件 人口10000人当たり 1.39件 |
| 刑法犯認知件数 |
6173件 人口1000人当たり 7.47件 |
| ハザード・防災マップ | あり |
| 医療 | |
| 一般病院総数 | 39ヶ所 |
| 一般診療所総数 | 744ヶ所 |
| 小児科医師数 |
108人 小児人口10000人当たり 11.15人 |
| 産婦人科医師数 |
73人 15~49歳女性人口1万人当たり 4.60人 |
| 介護保険料基準額(月額) | 7418円 |
| ごみ | |
| 家庭ごみ収集(可燃ごみ) |
無料
|
| 家庭ごみの分別方式 | 2分別12種〔生活ごみ 資源(缶類・びん類、プラスチック製容器包装、ペットボトル、小型金属[金属、刃物類、スプレー缶・カセットボンベ]、古紙類[新聞、雑誌、ダンボール、紙パック]、不燃小物類)〕 |
| 家庭ごみの戸別収集 | 実施 |
| 粗大ごみ収集 |
あり
|
| 生ごみ処理機助成金制度 |
なし 上限金額 - 上限比率 - |
堺市の住まいの給付金
暮らしデータ提供元:生活ガイド.com
※行政機関により公表していない地域及びデータがございます。東京23区以外の政令指定都市は、市全体のデータとして表示しています。
※提供データには細心の注意を払っておりますが、調査後に変更がある場合があります。 最新の情報につきましては各市区役所までお問い合わせいただくか、自治体HPなどをご確認ください。
※提供データには細心の注意を払っておりますが、調査後に変更がある場合があります。 最新の情報につきましては各市区役所までお問い合わせいただくか、自治体HPなどをご確認ください。
住宅ローンシミュレーション
月々の返済額からの購入額の計算と、購入額からの返済額の計算ができます。
住宅ローンをお考えの方へ
最もおトクであなたにぴったりな
住宅ローンをみてみよう!
お気に入りの物件を見逃さない!
プッシュ通知で最新の物件情報が届く






