大阪府堺市中区平井 深井駅 中古一戸建て・中古住宅
4LDK / 深井駅
- 情報提供元
- SUUMO
価格3880万円
-
ツートン色のサイディングがお洒落な雰囲気を醸し出します
-
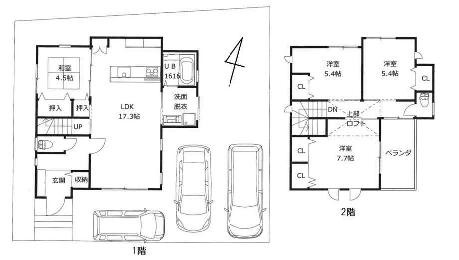
3880万円、4LDK、土地面積152.19m2、建物面積99.37m2 各部屋ともにゆったりとした広さがあるのが魅力です。
-
間口が広いので実際の面積以上にボリューム感が感じられます。
-
窓から注ぐ太陽の光が開放感を演出します
-
ゆったりとしたキッチンスペースなので料理も楽々です
-
洋室7.7帖。天井が高く開放感があります。
-
シンプルなデザインのすっきりした玄関です
-
各部屋にはゆったりとしたクローゼットがあります。
-
洋室7.7帖にあるオープンロフトです。
-
リビング階段なので、子供さんの顔が見える安心感があります
-
対面式のキッチンなのでリビングにいる家族との会話も弾みます
-
洋室5.4帖のお部屋は子供部屋にいかがでしょうか。
-
畳の香りを楽しみながらゆったりとした気分が味わえる空間です。
-
この物件が気になりましたか? 物件や周辺施設などの詳しい情報は
問合せをすることで確認できます
- お問い合わせ先
- (株)近畿リアルティ
開発分譲地内の平成29年建築の住宅です。前面道路は6.7M、間口は13Mもありゆったりしているのが特徴です。令和7年11月改装済みなので引渡し後はすぐに入居できるの嬉しいですね。
-
価格返済シミュレーション 3880万円
-
土地面積152.19m2(46.03坪)(登記)
-
建物面積99.37m2(30.05坪)
-
間取り4LDK
-
建物構造・規模木造2階建
-
築年月2017年7月
(築8年5ヶ月) -
駐車場-
-
物件
タイプ中古住宅 -
住所大阪府堺市中区平井 地図
-
交通南海泉北線 深井駅 徒歩31分
| 私道面積 | - |
|---|---|
| 接道状況 | 南東6.7m接面13m |
| 用途地域 | 無指定 |
| 建ぺい率 / 容積率 | 50% / 100% |
| 地目 | - |
| 土地権利 | 所有権 |
| 借地期間・地代 | - |
| 都市計画 | 調整区域 |
| 現況 | - |
| 引渡可能時期 | 相談 |
| 情報提供元 | SUUMO [060Z78861504] |
| 情報公開日 | |
| 情報更新日 | |
| 次回更新予定日 | 随時 |
地図
設備など
設備
| バス・トイレ | トイレ、浴室乾燥機、温水洗浄便座、風呂、トイレ2ヶ所 |
|---|---|
| キッチン | システムキッチン、対面K |
| 収納 | 収納スペース |
| セキュリティ | モニタ付インターホン |
| 室内設備 | ロフト、洗面所、フローリング、シャンプードレッサ、床暖房、衣類乾燥機 |
| 建物設備 | 都市ガス、複層ガラス、太陽光システム |
| 特徴 | リフォーム |
| その他 | 上水道、本下水 |
リフォーム履歴
2025年11月完了
内装リフォーム:床・全室
※年月は一番古いリフォーム箇所を表します
続きを見る
内装リフォーム:床・全室
※年月は一番古いリフォーム箇所を表します
備考
<物件名>平井(深井駅) 3880万円/<土地権利>所有権/<間取り>4LDK/<リフォーム>●リフォーム:2025年11月完了(内装リフォーム:床・全室)※年月は一番古いリフォーム箇所を表します/<特徴>平成29年建築。開発分譲地内・南東向き・太陽光発電付き。、太陽光発電システム・駐車3台以上可・内装リフォーム・システムキッチン・浴室乾燥機
販売戸数:1戸
法令等制限:景観法・宅造及び盛土規制法
続きを見る
販売戸数:1戸
法令等制限:景観法・宅造及び盛土規制法
特記事項
日当り良好・閑静な住宅街・駐車場3台分以上・整形地
省エネ性能
| エネルギー消費性能 | - |
|---|---|
| 断熱性能 | - |
| 目安光熱費 | - |
- お問い合わせ先
- (株)近畿リアルティ
不動産会社情報
お問い合わせ先
| 商号 | (株)近畿リアルティ |
|---|---|
| 免許番号 | 大阪府知事(1)第065588号 |
| 所在地 | 大阪府大阪市北区西天満5-16-15 |
| TEL | 06-4400-6572 |
| 取引態様 | 専任媒介 |
| 管理コード | - |
| 所属協会など | - |
この地域の暮らしデータ
堺市の人口などの統計情報
| 世帯数 | 365535世帯 |
|---|---|
| 人口総数 | 817041人 |
| 転入者数 |
37003人 転入率(人口1000人当たり) 45.29人 |
| 転出者数 |
35961人 転出率(人口1000人当たり) 44.01人 |
| 土地平均価格 |
住宅地 143254円/m2 商業地 254357円/m2 |
堺市の結婚・育児の助成金
| 出産・子育て | |
|---|---|
| 子育て関連の独自の取り組み | (1)「さかいマイ保育園」の実施(身近な保育所[園]をかかりつけ保育園として登録)。(2)子ども食堂。(3)子育て応援アプリ。 |
| 出産祝い |
あり
|
| 公立保育所数 |
0ヶ所 0歳児保育を実施 - |
| 私立保育所数 |
24ヶ所 0歳児保育を実施 24ヶ所 |
| 保育所入所待機児童数 | 0人 |
| 認定こども園数 | 136園 |
| 預かり保育実施園数-公立 | 4園 |
| 預かり保育実施園数-私立 | 5園 |
| 学校給食 | 【小学校】完全給食【中学校】家庭弁当等との選択制/デリバリー形式[運搬:ランチボックス、内容:完全給食] |
| 公立中学校の学校選択制 | 一部実施 |
| 子ども・学生等医療費助成<通院>対象年齢 | 18歳3月末まで |
| 子ども・学生等医療費助成<入院>対象年齢 | 18歳3月末まで |
堺市の治安・ごみ収集情報
| 公共料金・インフラ | |
|---|---|
| ガス料金(22m3使用した場合の月額) | 大阪瓦斯株式会社4544円 |
| 水道料金(口径20mmで20m3の月額) | 堺市2464円 |
| 下水道料金(20m3を使用した場合の月額) | 堺市2821円 |
| 下水道普及率 | 98.5% |
| 安心・安全 | |
| 建物火災出火件数 |
115件 人口10000人当たり 1.39件 |
| 刑法犯認知件数 |
6173件 人口1000人当たり 7.47件 |
| ハザード・防災マップ | あり |
| 医療 | |
| 一般病院総数 | 39ヶ所 |
| 一般診療所総数 | 744ヶ所 |
| 小児科医師数 |
108人 小児人口10000人当たり 11.15人 |
| 産婦人科医師数 |
73人 15~49歳女性人口1万人当たり 4.60人 |
| 介護保険料基準額(月額) | 7418円 |
| ごみ | |
| 家庭ごみ収集(可燃ごみ) |
無料
|
| 家庭ごみの分別方式 | 2分別12種〔生活ごみ 資源(缶類・びん類、プラスチック製容器包装、ペットボトル、小型金属[金属、刃物類、スプレー缶・カセットボンベ]、古紙類[新聞、雑誌、ダンボール、紙パック]、不燃小物類)〕 |
| 家庭ごみの戸別収集 | 実施 |
| 粗大ごみ収集 |
あり
|
| 生ごみ処理機助成金制度 |
なし 上限金額 - 上限比率 - |
堺市の住まいの給付金
暮らしデータ提供元:生活ガイド.com
※行政機関により公表していない地域及びデータがございます。東京23区以外の政令指定都市は、市全体のデータとして表示しています。
※提供データには細心の注意を払っておりますが、調査後に変更がある場合があります。 最新の情報につきましては各市区役所までお問い合わせいただくか、自治体HPなどをご確認ください。
※提供データには細心の注意を払っておりますが、調査後に変更がある場合があります。 最新の情報につきましては各市区役所までお問い合わせいただくか、自治体HPなどをご確認ください。
住宅ローンシミュレーション
月々の返済額からの購入額の計算と、購入額からの返済額の計算ができます。
住宅ローンをお考えの方へ
最もおトクであなたにぴったりな
住宅ローンをみてみよう!
お気に入りの物件を見逃さない!
プッシュ通知で最新の物件情報が届く






