大阪府大阪市住吉区墨江3 沢ノ町駅 中古一戸建て・中古住宅
4LDK / 沢ノ町駅
- 情報提供元
- SUUMO
価格3490万円
-
外観
-
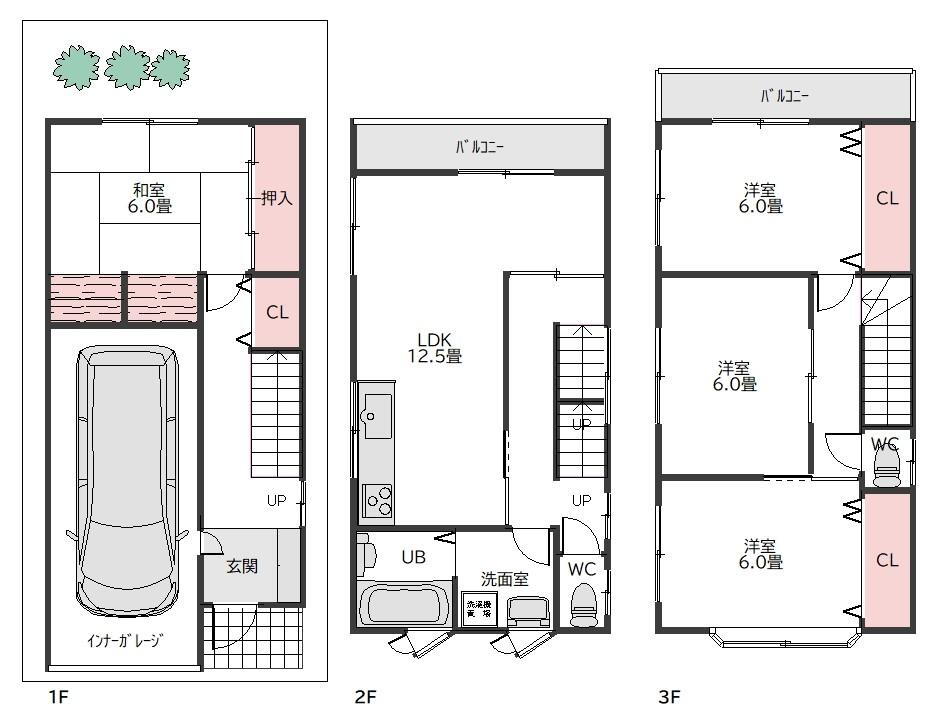
3490万円、4LDK、土地面積93.18m2、建物面積131.99m2
-
玄関を開けると視線が抜ける設計。ストリップ階段が開放的な空間を演出します。
-
穏やかな光が差し込む、心地よいリビング空間。
-
リビングとつながるダイニングスペースは、家族の団らんにぴったり。
-
画像
-
キッチンからリビングまで見渡せる、使いやすい直線動線。
-
自然光が入る明るいキッチン。毎日の家事も気持ちよくこなせます。
-
画像
-
窓付きのトイレで、換気と採光に優れた快適な空間です。
-
自然光の入る洗面スペースで、毎日の身支度も快適に。
-
採光と風通しに優れたバスルーム。毎日の入浴が心地よくなります。
-
伝統的な造りが残る和室。床の間が空間に上質さを演出します。
-
画像
-
押入は1間半と広く、布団や衣類、小物などもまとめて収納可能です。
-
画像
-
廊下で空間を区切ることで、冷暖房の効率を高め、快適な生活環境を実現。
-
画像
-
南向きの主寝室で、明るく心地よい朝を迎えられます。
-
南側にはお庭があり、趣味のスペースやガーデニングも楽しめます。
-
この物件が気になりましたか? 物件や周辺施設などの詳しい情報は
問合せをすることで確認できます
- お問い合わせ先
- (株)NORTH COMPANY
◇◆◇◆◇◆◇◆◇◆◇◆◇◆◇◆◇◆◇◆◇◆◇◆◇◆◇◆◇◆◇◆◇◆◇◆◇◆◇◆◇◆◇◆◇◆◇◆◇◆◇◆◇◆◇◆◇◆◇◆●住吉区墨江3丁目は落ち着いた住宅街で、公園や買い物施設も徒歩圏内に揃う、子育て世帯に人気のエリアです♪墨江小学校・墨江中学校が近く、通学も安心♪室内は大切にお使いでとても綺麗な状態♪シャッターガレージ付きでお車をお持ちのご家庭にも便利です♪車好きの方にも♪南海高野線「沢ノ町駅」まで徒歩圏で通勤・通学にも快適♪家族みんなが笑顔で暮らせる住まいです♪◇◆◇◆◇◆◇◆◇◆◇◆◇◆◇◆◇◆◇◆◇◆◇◆◇◆◇◆◇◆◇◆◇◆◇◆◇◆◇◆◇◆◇◆◇◆◇◆◇◆◇◆◇◆◇◆◇◆◇◆
-
価格返済シミュレーション 3490万円
-
土地面積93.18m2(登記)
-
建物面積131.99m2(登記)
-
間取り4LDK
-
建物構造・規模木造3階建
-
築年月1999年1月
(築26年11ヶ月) -
駐車場有
-
物件
タイプ中古住宅 -
住所大阪府大阪市住吉区墨江3 地図
-
交通南海高野線 沢ノ町駅 徒歩5分
阪堺電気軌道阪堺線 安立町駅 徒歩6分
南海本線 住ノ江駅 徒歩11分
| 私道面積 | - |
|---|---|
| 接道状況 | 北6m接面6.4m |
| 用途地域 | 1種住居 |
| 建ぺい率 / 容積率 | 80% / 200% |
| 地目 | - |
| 土地権利 | 所有権 |
| 借地期間・地代 | - |
| 都市計画 | - |
| 現況 | - |
| 引渡可能時期 | 相談 |
| 情報提供元 | SUUMO [060Z78615513] |
| 情報公開日 | |
| 情報更新日 | |
| 次回更新予定日 | 随時 |
地図
設備など
設備
| バス・トイレ | 風呂、トイレ2ヶ所 |
|---|---|
| キッチン | システムキッチン |
| 室内設備 | 洗面所、シャンプードレッサ |
| 建物設備 | バルコニー、都市ガス、庭、2面バルコニー |
| 駐車場・駐輪場 | 車庫 |
| その他 | 上水道、本下水 |
備考
<物件名>墨江3(沢ノ町駅) 3490万円/<駐車場>車庫/<土地権利>所有権/<間取り>4LDK/<特徴>●墨江小学校近く♪手入れの行き届いた綺麗なシャッターガレージ付きの一戸建♪、2沿線以上利用可・スーパー 徒歩10分以内・システムキッチン・閑静な住宅地・前道6m以上
販売戸数:1戸
法令等制限:景観法、準防火地域
続きを見る
販売戸数:1戸
法令等制限:景観法、準防火地域
特記事項
閑静な住宅街・整形地
省エネ性能
| エネルギー消費性能 | - |
|---|---|
| 断熱性能 | - |
| 目安光熱費 | - |
- お問い合わせ先
- (株)NORTH COMPANY
不動産会社情報
お問い合わせ先
商号: (株)NORTH COMPANY
免許番号:大阪府知事(2)第061748号
所在地:大阪府大阪市東住吉区針中野4-9-7
TEL:050-88828241
取引態様:媒介 この会社の他の物件情報を見る この不動産会社に相談したい
免許番号:大阪府知事(2)第061748号
所在地:大阪府大阪市東住吉区針中野4-9-7
TEL:050-88828241
取引態様:媒介 この会社の他の物件情報を見る この不動産会社に相談したい
この地域の暮らしデータ
大阪市の人口などの統計情報
| 世帯数 | 1464615世帯 |
|---|---|
| 人口総数 | 2757642人 |
| 転入者数 |
225000人 転入率(人口1000人当たり) 81.59人 |
| 転出者数 |
188180人 転出率(人口1000人当たり) 68.24人 |
| 土地平均価格 |
住宅地 270839円/m2 商業地 1966607円/m2 |
大阪市の結婚・育児の助成金
| 出産・子育て | |
|---|---|
| 子育て関連の独自の取り組み | (1)子ども・子育てプラザ(在宅での子育て家庭や地域での子育て活動を支援し、また乳幼児期の親子や子育て支援者、就学期の子どもが集い交流する機会を提供する等、地域福祉活動の推進を図る)。(2)習い事・塾代助成事業(学習塾や家庭教師、文化・スポーツ教室等学校外教育にかかる費用を、1人当たり月額1万円まで助成。所得制限あり)。 |
| 出産祝い |
なし
|
| 公立保育所数 |
53ヶ所 0歳児保育を実施 52ヶ所 |
| 私立保育所数 |
395ヶ所 0歳児保育を実施 385ヶ所 |
| 保育所入所待機児童数 | 2人 |
| 認定こども園数 | 117園 |
| 預かり保育実施園数-公立 | 52園 |
| 預かり保育実施園数-私立 | - |
| 学校給食 | 【小学校】完全給食【中学校】完全給食 |
| 公立中学校の学校選択制 | 実施 |
| 子ども・学生等医療費助成<通院>対象年齢 | 18歳3月末まで |
| 子ども・学生等医療費助成<入院>対象年齢 | 18歳3月末まで |
大阪市の治安・ごみ収集情報
| 公共料金・インフラ | |
|---|---|
| ガス料金(22m3使用した場合の月額) | 大阪瓦斯株式会社4544円 |
| 水道料金(口径20mmで20m3の月額) | 大阪市2112円 |
| 下水道料金(20m3を使用した場合の月額) | 大阪市1276円 |
| 下水道普及率 | 100.0% |
| 安心・安全 | |
| 建物火災出火件数 |
553件 人口10000人当たり 2.01件 |
| 刑法犯認知件数 |
39408件 人口1000人当たり 14.32件 |
| ハザード・防災マップ | あり |
| 医療 | |
| 一般病院総数 | 170ヶ所 |
| 一般診療所総数 | 3734ヶ所 |
| 小児科医師数 |
659人 小児人口10000人当たり 22.80人 |
| 産婦人科医師数 |
380人 15~49歳女性人口1万人当たり 6.15人 |
| 介護保険料基準額(月額) | 9249円 |
| ごみ | |
| 家庭ごみ収集(可燃ごみ) |
無料
|
| 家庭ごみの分別方式 | 4分別11種〔普通ごみ(普通ごみ、危険ごみ[竹串、ガラス片、カミソリの刃]) 資源ごみ(空き缶・空きびん・金属製の生活用品・ペットボトル、スプレー缶・カセットボンベ) 容器包装プラスチック 古紙・衣類(新聞紙・折込チラシ、段ボール、紙パック、雑誌、衣類、その他の紙類)〕 |
| 家庭ごみの戸別収集 | 一部実施(【ふれあい収集】65歳以上の一人暮らしの高齢者または高齢者だけの世帯、障がいがある方が居住される家庭で、ごみ出しが困難な人が対象) |
| 粗大ごみ収集 |
あり
|
| 生ごみ処理機助成金制度 |
なし 上限金額 - 上限比率 - |
大阪市の住まいの給付金
暮らしデータ提供元:生活ガイド.com
※行政機関により公表していない地域及びデータがございます。東京23区以外の政令指定都市は、市全体のデータとして表示しています。
※提供データには細心の注意を払っておりますが、調査後に変更がある場合があります。 最新の情報につきましては各市区役所までお問い合わせいただくか、自治体HPなどをご確認ください。
※提供データには細心の注意を払っておりますが、調査後に変更がある場合があります。 最新の情報につきましては各市区役所までお問い合わせいただくか、自治体HPなどをご確認ください。
この物件を見た人はこんな物件も
見ています
住宅ローンシミュレーション
月々の返済額からの購入額の計算と、購入額からの返済額の計算ができます。
住宅ローンをお考えの方へ
最もおトクであなたにぴったりな
住宅ローンをみてみよう!
お気に入りの物件を見逃さない!
プッシュ通知で最新の物件情報が届く






