兵庫県西宮市名塩さくら台1 西宮名塩駅 中古一戸建て・中古住宅
4LDK / 西宮名塩駅
- 情報提供元
- SUUMO
価格3780万円
-
外観
-
外観
-
外観
-
設備
-
室内
-
リビング
-
バス
-
キッチン
-
収納
-
トイレ
-
駐車場
-
バルコニー
-
2階バルコニー南東側からの眺望
-
その他現地
-
リビング
-
駐車場
-
リビング
-
この物件が気になりましたか? 物件や周辺施設などの詳しい情報は
問合せをすることで確認できます
- お問い合わせ先
- 三井のリハウス芦屋センター三井不動産リアルティ(株)
-物件のおすすめポイント-▼立地・第一種低層住居専用地域・南・東側はともに幅員約6mの公道▼特徴・敷地面積100坪超、南ひな壇につき陽当り・眺望良好・全居室2面からの採光を確保・お料理しながら会話が楽しめる対面式キッチン・自然に顔を合わせる機会が増えるリビング階段・キッチンと洗面室が近く、家事動線良好・全居室収納付、住空間をすっきりと整理可能・玄関周りをすっきりと保てる大容量のSB・駐車場2台分有(車種による)▼設備・食器洗乾燥機・トイレ2か所■ ご希望の住まい探しをお手伝いします ━━━━━・・・物件の詳細・ご相談はお気軽にお問い合わせください。
-
価格返済シミュレーション 3780万円
-
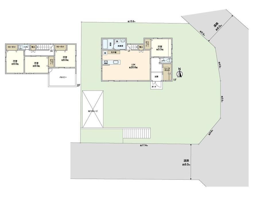
土地面積353.64m2(106.97坪)(登記)
-
建物面積107.25m2(32.44坪)(登記)
-
間取り4LDK
-
建物構造・規模木造2階建
-
築年月2023年5月
(築2年6ヶ月) -
駐車場有
-
物件
タイプ中古住宅 -
住所兵庫県西宮市名塩さくら台1 地図
-
交通JR福知山線 西宮名塩駅 バス16分/「さくら台一丁目」バス停 停歩2分
| 私道面積 | - |
|---|---|
| 接道状況 | 南6m接面17.4m 東6m接面10.5m 二方道路 |
| 用途地域 | 1種低層 |
| 建ぺい率 / 容積率 | 50% / 100% |
| 地目 | - |
| 土地権利 | 所有権 |
| 借地期間・地代 | - |
| 都市計画 | - |
| 現況 | - |
| 引渡可能時期 | 相談 |
| 情報提供元 | SUUMO [060Z78590902] |
| 情報公開日 | |
| 情報更新日 | |
| 次回更新予定日 | 随時 |
地図
設備など
設備
| バス・トイレ | トイレ、温水洗浄便座、風呂、トイレ2ヶ所 |
|---|---|
| キッチン | システムキッチン、対面K、食器洗浄乾燥機 |
| 収納 | 収納スペース、シューズインクローク |
| 建物設備 | バルコニー、都市ガス |
| 駐車場・駐輪場 | 駐車場2台分 |
| その他 | 上水道、本下水 |
備考
<物件名>名塩さくら台1 3780万円/<駐車場>車庫/<土地権利>所有権/<間取り>4LDK/<特徴>■三井のリハウス■南東角地に佇む住まいLDKは約20.6帖の広々空間、駐車2台可・LDK20畳以上・土地100坪以上・南向き・システムキッチン
販売戸数:1戸
続きを見る
販売戸数:1戸
特記事項
日当り良好・駐車場2台分・角地
省エネ性能
| エネルギー消費性能 | - |
|---|---|
| 断熱性能 | - |
| 目安光熱費 | - |
- お問い合わせ先
- 三井のリハウス芦屋センター三井不動産リアルティ(株)
不動産会社情報
お問い合わせ先
商号: 三井のリハウス芦屋センター三井不動産リアルティ(株)
免許番号:国土交通大臣(15)第000777号
所在地:兵庫県芦屋市船戸町4-1-118 ラポルテ本館1階
TEL:00786-01794221
取引態様:一般媒介
管理コード:FXZASA06 この会社の他の物件情報を見る この不動産会社に相談したい
免許番号:国土交通大臣(15)第000777号
所在地:兵庫県芦屋市船戸町4-1-118 ラポルテ本館1階
TEL:00786-01794221
取引態様:一般媒介
管理コード:FXZASA06 この会社の他の物件情報を見る この不動産会社に相談したい
この地域の暮らしデータ
西宮市の人口などの統計情報
| 世帯数 | 215454世帯 |
|---|---|
| 人口総数 | 482594人 |
| 転入者数 |
21367人 転入率(人口1000人当たり) 44.28人 |
| 転出者数 |
20159人 転出率(人口1000人当たり) 41.77人 |
| 土地平均価格 |
住宅地 267031円/m2 商業地 529100円/m2 |
西宮市の結婚・育児の助成金
| 出産・子育て | |
|---|---|
| 子育て関連の独自の取り組み | (1)赤ちゃんへの手紙(市内小学生から西宮に生まれた赤ちゃんに手紙を贈る事業)。(2)父子手帳(父親の育児参加促進のため、妊娠中のパートナーへの配慮のほか、赤ちゃんのあやし方やお風呂の入れ方等、イラストを交えて紹介した育児マニュアルを発行。母子健康手帳交付時に一体的に配布)。 |
| 出産祝い |
なし
|
| 公立保育所数 |
23ヶ所 0歳児保育を実施 21ヶ所 |
| 私立保育所数 |
30ヶ所 0歳児保育を実施 29ヶ所 |
| 保育所入所待機児童数 | 121人 |
| 認定こども園数 | 38園 |
| 預かり保育実施園数-公立 | 3園 |
| 預かり保育実施園数-私立 | 31園 |
| 学校給食 | 【小学校】完全給食【中学校】完全給食 |
| 公立中学校の学校選択制 | 一部実施(通学区域特認校制度を実施) |
| 子ども・学生等医療費助成<通院>対象年齢 | 18歳3月末まで |
| 子ども・学生等医療費助成<入院>対象年齢 | 18歳3月末まで |
西宮市の治安・ごみ収集情報
| 公共料金・インフラ | |
|---|---|
| ガス料金(22m3使用した場合の月額) | 大阪瓦斯株式会社4544円 |
| 水道料金(口径20mmで20m3の月額) | 西宮市2909円 |
| 下水道料金(20m3を使用した場合の月額) | 西宮市1777円 |
| 下水道普及率 | 100.0% |
| 安心・安全 | |
| 建物火災出火件数 |
51件 人口10000人当たり 1.05件 |
| 刑法犯認知件数 |
3110件 人口1000人当たり 6.40件 |
| ハザード・防災マップ | あり |
| 医療 | |
| 一般病院総数 | 23ヶ所 |
| 一般診療所総数 | 553ヶ所 |
| 小児科医師数 |
128人 小児人口10000人当たり 20.58人 |
| 産婦人科医師数 |
58人 15~49歳女性人口1万人当たり 5.77人 |
| 介護保険料基準額(月額) | 6400円 |
| ごみ | |
| 家庭ごみ収集(可燃ごみ) |
無料
|
| 家庭ごみの分別方式 | 6分別12種〔もやすごみ もやさないごみ 資源A(新聞、ダンボール、紙パック、古着) 資源B(雑誌、古本、チラシ、紙箱) ペットボトル その他プラ〕 拠点回収:使用済小型家電 |
| 家庭ごみの戸別収集 | 一部実施(【にこやか収集】要件を満たす障がい者、高齢者、要介護者が対象) |
| 粗大ごみ収集 |
あり
|
| 生ごみ処理機助成金制度 |
なし 上限金額 - 上限比率 - |
西宮市の住まいの給付金
暮らしデータ提供元:生活ガイド.com
※行政機関により公表していない地域及びデータがございます。東京23区以外の政令指定都市は、市全体のデータとして表示しています。
※提供データには細心の注意を払っておりますが、調査後に変更がある場合があります。 最新の情報につきましては各市区役所までお問い合わせいただくか、自治体HPなどをご確認ください。
※提供データには細心の注意を払っておりますが、調査後に変更がある場合があります。 最新の情報につきましては各市区役所までお問い合わせいただくか、自治体HPなどをご確認ください。
この物件を見た人はこんな物件も
見ています
住宅ローンシミュレーション
月々の返済額からの購入額の計算と、購入額からの返済額の計算ができます。
住宅ローンをお考えの方へ
最もおトクであなたにぴったりな
住宅ローンをみてみよう!
お気に入りの物件を見逃さない!
プッシュ通知で最新の物件情報が届く






