大阪府和泉市上町 北信太駅 中古一戸建て・中古住宅
他 / 北信太駅
- 情報提供元
- SUUMO
価格5700万円
-
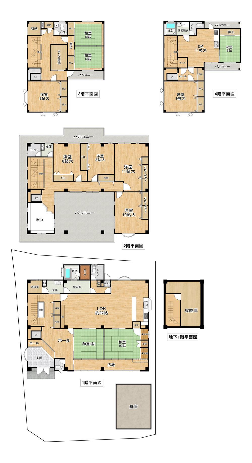
5700万円、11LDDKK、土地面積442.81m2、建物面積537.9m2 地下1階、1階間取図
-
5700万円、11LDDKK、土地面積442.81m2、建物面積537.9m2 全体間取り図
-
5700万円、11LDDKK、土地面積442.81m2、建物面積537.9m2 2階、3階、4階間取図
-
現地(2025年9月)撮影
-
現地(2025年9月)撮影
-
ローソン和泉上町店まで401m
-
門構え
-
サンドラッグ和泉上町店まで465m
-
玄関ホール
-
和泉市立信太中学校まで841m
-
和泉市立信太小学校まで466m
-
和泉信太郵便局まで472m
-
大阪信用金庫北信太支店まで446m
-
この物件が気になりましたか? 物件や周辺施設などの詳しい情報は
問合せをすることで確認できます
- お問い合わせ先
- (株)神幸ハウジング
土地100坪以上、2世帯住宅、LDK20畳以上、ワイドバルコニー、全居室6畳以上、陽当り良好、全居室収納、庭10坪以上、シャワー付洗面化粧台、浴室1坪以上、2面以上バルコニー、東南向き、温水洗浄便座、南庭、全居室フローリング、IHクッキングヒーター、3階建以上、都市ガス、高台に立地、屋根裏収納
-
価格返済シミュレーション 5700万円
-
土地面積442.81m2(登記)
-
建物面積537.9m2(登記)、うち地下室32.27m2
-
間取り他
-
建物構造・規模鉄骨地上4階地下1階建
-
築年月1998年1月
(築27年11ヶ月) -
駐車場有
-
物件
タイプ中古住宅 -
住所大阪府和泉市上町 地図
-
交通JR阪和線 北信太駅 徒歩7分
| 私道面積 | - |
|---|---|
| 接道状況 | 南西2.2m接面32m |
| 用途地域 | - |
| 建ぺい率 / 容積率 | 60% / 200% |
| 地目 | - |
| 土地権利 | 所有権 |
| 借地期間・地代 | - |
| 都市計画 | - |
| 現況 | - |
| 引渡可能時期 | 相談 |
| 情報提供元 | SUUMO [060Z78381206] |
| 情報公開日 | |
| 情報更新日 | |
| 次回更新予定日 | 随時 |
地図
設備など
設備
| バス・トイレ | トイレ、温水洗浄便座、風呂 |
|---|---|
| キッチン | IHクッキングヒータ |
| 収納 | 収納スペース、グルニエ |
| 室内設備 | 洗面所、フローリング、シャンプードレッサ |
| 建物設備 | バルコニー、都市ガス、庭、2面バルコニー、浄化槽 |
| その他 | 上水道 |
備考
<物件名>上町(北信太駅) 5700万円/<駐車場>車庫/<土地権利>所有権/<間取り>11LDDKK/<特徴>土地133坪、LDK32帖の大規模2世帯住宅、ワイドバルコニー、全居室6畳、LDK20畳以上・土地100坪以上・陽当り良好・全居室収納・庭10坪以上
販売戸数:1戸
法令等制限:景観法
続きを見る
販売戸数:1戸
法令等制限:景観法
特記事項
日当り良好・セットバック要・二世帯向き・浴室1坪以上
省エネ性能
| エネルギー消費性能 | - |
|---|---|
| 断熱性能 | - |
| 目安光熱費 | - |
- お問い合わせ先
- (株)神幸ハウジング
不動産会社情報
お問い合わせ先
商号: (株)神幸ハウジング
免許番号:大阪府知事(3)第056202号
所在地:大阪府和泉市鶴山台1-12-2
TEL:0725-40-1718
取引態様:一般媒介 この会社の他の物件情報を見る この不動産会社に相談したい
免許番号:大阪府知事(3)第056202号
所在地:大阪府和泉市鶴山台1-12-2
TEL:0725-40-1718
取引態様:一般媒介 この会社の他の物件情報を見る この不動産会社に相談したい
この地域の暮らしデータ
和泉市の人口などの統計情報
| 世帯数 | 73587世帯 |
|---|---|
| 人口総数 | 182841人 |
| 転入者数 |
6226人 転入率(人口1000人当たり) 34.05人 |
| 転出者数 |
6141人 転出率(人口1000人当たり) 33.59人 |
| 土地平均価格 |
住宅地 80214円/m2 商業地 126000円/m2 |
和泉市の結婚・育児の助成金
| 出産・子育て | |
|---|---|
| 子育て関連の独自の取り組み | 和泉市子育てサークル活動支援補助金(登録・承認を得たサークルを対象に算定基準表により事業費の補助を行う)。 |
| 出産祝い |
あり
|
| 公立保育所数 |
9ヶ所 0歳児保育を実施 8ヶ所 |
| 私立保育所数 |
2ヶ所 0歳児保育を実施 2ヶ所 |
| 保育所入所待機児童数 | 2人 |
| 認定こども園数 | 24園 |
| 預かり保育実施園数-公立 | 0園 |
| 預かり保育実施園数-私立 | - |
| 学校給食 | 【小学校】完全給食【中学校】完全給食 |
| 公立中学校の学校選択制 | 未実施 |
| 子ども・学生等医療費助成<通院>対象年齢 | 18歳3月末まで |
| 子ども・学生等医療費助成<入院>対象年齢 | 18歳3月末まで |
和泉市の治安・ごみ収集情報
| 公共料金・インフラ | |
|---|---|
| ガス料金(22m3使用した場合の月額) | 大阪瓦斯株式会社4544円 |
| 水道料金(口径20mmで20m3の月額) | 和泉市2574円 |
| 下水道料金(20m3を使用した場合の月額) | 和泉市2530円 |
| 下水道普及率 | 89.2% |
| 安心・安全 | |
| 建物火災出火件数 |
22件 人口10000人当たり 1.19件 |
| 刑法犯認知件数 |
1250件 人口1000人当たり 6.78件 |
| ハザード・防災マップ | あり |
| 医療 | |
| 一般病院総数 | 10ヶ所 |
| 一般診療所総数 | 128ヶ所 |
| 小児科医師数 |
105人 小児人口10000人当たり 44.74人 |
| 産婦人科医師数 |
24人 15~49歳女性人口1万人当たり 6.76人 |
| 介護保険料基準額(月額) | 6543円 |
| ごみ | |
| 家庭ごみ収集(可燃ごみ) |
有料
|
| 家庭ごみの分別方式 | 8分別〔日常(可燃)ごみ 缶・ビン等 スプレー缶等 せともの・ガラス類 ペットボトル プラスチックボトル等 古着 紙類等〕 拠点回収:使用済小型家電 コンタクトレンズの空ケース インクカートリッジ |
| 家庭ごみの戸別収集 | 実施 |
| 粗大ごみ収集 |
あり
|
| 生ごみ処理機助成金制度 |
あり 上限金額 40000円 上限比率 66.7% |
和泉市の住まいの給付金
暮らしデータ提供元:生活ガイド.com
※行政機関により公表していない地域及びデータがございます。東京23区以外の政令指定都市は、市全体のデータとして表示しています。
※提供データには細心の注意を払っておりますが、調査後に変更がある場合があります。 最新の情報につきましては各市区役所までお問い合わせいただくか、自治体HPなどをご確認ください。
※提供データには細心の注意を払っておりますが、調査後に変更がある場合があります。 最新の情報につきましては各市区役所までお問い合わせいただくか、自治体HPなどをご確認ください。
住宅ローンシミュレーション
月々の返済額からの購入額の計算と、購入額からの返済額の計算ができます。
住宅ローンをお考えの方へ
最もおトクであなたにぴったりな
住宅ローンをみてみよう!
お気に入りの物件を見逃さない!
プッシュ通知で最新の物件情報が届く






