兵庫県西宮市上之町 西宮北口駅 中古一戸建て・中古住宅
7LDK / 西宮北口駅
- 情報提供元
- SUUMO
価格13900万円
-
外観
本物件南東側から撮影 -
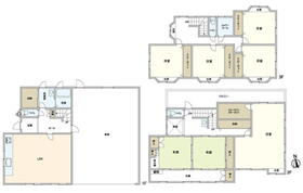
1億3900万円、7LDK、土地面積297.02m2、建物面積326.34m2 間取図
トイレ3箇所付き7LDK -
外観
本物件北西側から撮影 -
外観
本物件西側道路から撮影 -
LDK
2面採光の明るいLDK -
LDK
丁寧に使用されています -
バス
大きな窓がございます -
キッチン
ワイドサイズの壁付けキッチン -
3階洋室
クローゼット付き -
玄関
吹き抜けがある明るい玄関 -
車庫
車種によりますが4台の駐車が可能です -
門戸厄神駅(阪急 今津線)まで1690m 徒歩22分。
-
3階廊下
2面採光で明るい廊下 -
3階洋室
南向きのため陽当り良好です -
西宮北口駅(阪急 神戸本線)まで1840m 徒歩23分。
-
2階廊下
共同収納がございます -
和室
隣接する和室と続き間になっています -
和室
8帖のすっきりとした和室。南側には広縁がございます。 -
和室
床の間や押入れがございます -
洋室
南側・東側・北側3面採光のため陽当り良好です -
洋室
可動式扉がございます -
この物件が気になりましたか? 物件や周辺施設などの詳しい情報は
問合せをすることで確認できます
- お問い合わせ先
- 三井のリハウス西宮センター三井不動産リアルティ(株)
-物件のおすすめポイント-▼特徴・土地面積約89.37坪、建物面積約98.71坪・2階に二間続きの和室有、広縁付・バルコニーに面する2階洋室は3面採光設計・WICなど室内随所に収納有・各階にトイレを設置・1階に浴室、3階にシャワールーム有・玄関は上部吹抜け仕様※容積率は前面道路によりに制限されます(道路幅員4(m)×4/10×100%)※建物面積には車庫部分が含まれます※土地面積(通路負担面積含む)/343.26平米(約半分が都市計画道路区域内※計画決定)■ ご希望の住まい探しをお手伝いします ━━━━━・・・物件の詳細・ご相談はお気軽にお問い合わせください。
-
価格返済シミュレーション 13900万円
-
土地面積297.02m2(89.84坪)(登記)
-
建物面積326.34m2(98.71坪)(登記)
-
間取り7LDK
-
建物構造・規模その他3階建
-
築年月1991年1月
(築34年11ヶ月) -
駐車場-
-
物件
タイプ中古住宅 -
住所兵庫県西宮市上之町 地図
-
交通阪急神戸線 西宮北口駅 徒歩23分
阪急今津線 門戸厄神駅 徒歩22分
JR東海道本線 甲子園口駅 徒歩21分
| 私道面積 | 46.24m2 |
|---|---|
| 接道状況 | 南4m接面18m 西4m接面2.5m |
| 用途地域 | 1種中高 |
| 建ぺい率 / 容積率 | 60% / 200% |
| 地目 | - |
| 土地権利 | 所有権 |
| 借地期間・地代 | - |
| 都市計画 | - |
| 現況 | - |
| 引渡可能時期 | 相談 |
| 情報提供元 | SUUMO [060Z75722430] |
| 情報公開日 | |
| 情報更新日 | |
| 次回更新予定日 | 随時 |
地図
設備など
設備
| バス・トイレ | トイレ、温水洗浄便座、風呂、トイレ2ヶ所 |
|---|---|
| キッチン | システムキッチン、食器洗浄乾燥機 |
| 収納 | 収納スペース、ウォークインクローゼット |
| 建物設備 | 都市ガス |
| 駐車場・駐輪場 | 車庫 |
| その他 | 上水道、本下水 |
備考
<物件名>上之町(西宮北口駅) 1億3900万円/<土地権利>所有権/<間取り>7LDK/<その他制限事項>らに制限されます(道路幅員4(m)× 4/10×100%)/<特徴>■三井の仲介■内覧可能なお部屋です。車庫に4台駐車可能(車種による)。、土地50坪以上・南向き・システムキッチン・陽当り良好・全居室収納
販売戸数:1戸
法令等制限:※建物面積には車庫部分が含まれています。※土地面積(通路負担面積含む)/343.26平米(約半分が都市計画道路区域内(計画決定))※前面道路により上記容積率がさ
続きを見る
販売戸数:1戸
法令等制限:※建物面積には車庫部分が含まれています。※土地面積(通路負担面積含む)/343.26平米(約半分が都市計画道路区域内(計画決定))※前面道路により上記容積率がさ
特記事項
日当り良好・閑静な住宅街
省エネ性能
| エネルギー消費性能 | - |
|---|---|
| 断熱性能 | - |
| 目安光熱費 | - |
- お問い合わせ先
- 三井のリハウス西宮センター三井不動産リアルティ(株)
不動産会社情報
お問い合わせ先
商号: 三井のリハウス西宮センター三井不動産リアルティ(株)
免許番号:国土交通大臣(15)第000777号
所在地:兵庫県西宮市甲風園1-5-15 ディアーナビル1階
TEL:00786-01794227
取引態様:専任媒介
管理コード:FZA7QA09 この会社の他の物件情報を見る この不動産会社に相談したい
免許番号:国土交通大臣(15)第000777号
所在地:兵庫県西宮市甲風園1-5-15 ディアーナビル1階
TEL:00786-01794227
取引態様:専任媒介
管理コード:FZA7QA09 この会社の他の物件情報を見る この不動産会社に相談したい
この地域の暮らしデータ
西宮市の人口などの統計情報
| 世帯数 | 215454世帯 |
|---|---|
| 人口総数 | 482594人 |
| 転入者数 |
21367人 転入率(人口1000人当たり) 44.28人 |
| 転出者数 |
20159人 転出率(人口1000人当たり) 41.77人 |
| 土地平均価格 |
住宅地 267031円/m2 商業地 529100円/m2 |
西宮市の結婚・育児の助成金
| 出産・子育て | |
|---|---|
| 子育て関連の独自の取り組み | (1)赤ちゃんへの手紙(市内小学生から西宮に生まれた赤ちゃんに手紙を贈る事業)。(2)父子手帳(父親の育児参加促進のため、妊娠中のパートナーへの配慮のほか、赤ちゃんのあやし方やお風呂の入れ方等、イラストを交えて紹介した育児マニュアルを発行。母子健康手帳交付時に一体的に配布)。 |
| 出産祝い |
なし
|
| 公立保育所数 |
23ヶ所 0歳児保育を実施 21ヶ所 |
| 私立保育所数 |
30ヶ所 0歳児保育を実施 29ヶ所 |
| 保育所入所待機児童数 | 121人 |
| 認定こども園数 | 38園 |
| 預かり保育実施園数-公立 | 3園 |
| 預かり保育実施園数-私立 | 31園 |
| 学校給食 | 【小学校】完全給食【中学校】完全給食 |
| 公立中学校の学校選択制 | 一部実施(通学区域特認校制度を実施) |
| 子ども・学生等医療費助成<通院>対象年齢 | 18歳3月末まで |
| 子ども・学生等医療費助成<入院>対象年齢 | 18歳3月末まで |
西宮市の治安・ごみ収集情報
| 公共料金・インフラ | |
|---|---|
| ガス料金(22m3使用した場合の月額) | 大阪瓦斯株式会社4544円 |
| 水道料金(口径20mmで20m3の月額) | 西宮市2909円 |
| 下水道料金(20m3を使用した場合の月額) | 西宮市1777円 |
| 下水道普及率 | 100.0% |
| 安心・安全 | |
| 建物火災出火件数 |
51件 人口10000人当たり 1.05件 |
| 刑法犯認知件数 |
3110件 人口1000人当たり 6.40件 |
| ハザード・防災マップ | あり |
| 医療 | |
| 一般病院総数 | 23ヶ所 |
| 一般診療所総数 | 553ヶ所 |
| 小児科医師数 |
128人 小児人口10000人当たり 20.58人 |
| 産婦人科医師数 |
58人 15~49歳女性人口1万人当たり 5.77人 |
| 介護保険料基準額(月額) | 6400円 |
| ごみ | |
| 家庭ごみ収集(可燃ごみ) |
無料
|
| 家庭ごみの分別方式 | 6分別12種〔もやすごみ もやさないごみ 資源A(新聞、ダンボール、紙パック、古着) 資源B(雑誌、古本、チラシ、紙箱) ペットボトル その他プラ〕 拠点回収:使用済小型家電 |
| 家庭ごみの戸別収集 | 一部実施(【にこやか収集】要件を満たす障がい者、高齢者、要介護者が対象) |
| 粗大ごみ収集 |
あり
|
| 生ごみ処理機助成金制度 |
なし 上限金額 - 上限比率 - |
西宮市の住まいの給付金
暮らしデータ提供元:生活ガイド.com
※行政機関により公表していない地域及びデータがございます。東京23区以外の政令指定都市は、市全体のデータとして表示しています。
※提供データには細心の注意を払っておりますが、調査後に変更がある場合があります。 最新の情報につきましては各市区役所までお問い合わせいただくか、自治体HPなどをご確認ください。
※提供データには細心の注意を払っておりますが、調査後に変更がある場合があります。 最新の情報につきましては各市区役所までお問い合わせいただくか、自治体HPなどをご確認ください。
この物件を見た人はこんな物件も
見ています
住宅ローンシミュレーション
月々の返済額からの購入額の計算と、購入額からの返済額の計算ができます。
住宅ローンをお考えの方へ
最もおトクであなたにぴったりな
住宅ローンをみてみよう!
お気に入りの物件を見逃さない!
プッシュ通知で最新の物件情報が届く






