埼玉県朝霞市三原5 朝霞台駅 中古一戸建て・中古住宅
3SLDK / 朝霞台駅
- 情報提供元
- SUUMO
価格5880万円
-
外観
-
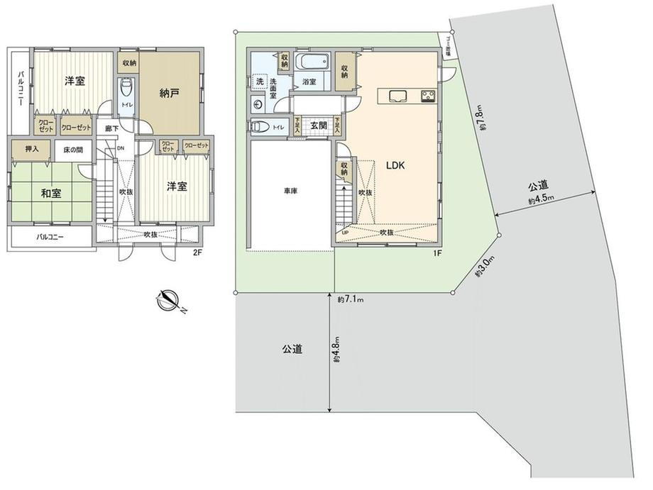
5880万円、3LDK+S、土地面積108.27m2、建物面積119.88m2
-
外観
-
外観
-
外観
-
外観
-
庭
-
前面道路
-
駐車場
-
朝霞市立朝霞第五小学校まで710m
-
前面道路
-
朝霞市立朝霞第三中学校まで1720m
-
TAIRAYA朝霞三原店まで330m
-
ファミリーマート新座東一丁目店まで330m 24時間営業の為、急な買い足しなどに対応できます。
-
ドラッグセイムス新座中央通り店まで240m
-
せおクリニックまで430m
-
新座志木中央総合病院まで1290m 新座市の総合病院
-
朝霞三原郵便局まで1140m
-
ひがし児童遊園まで370m
-
この物件が気になりましたか? 物件や周辺施設などの詳しい情報は
問合せをすることで確認できます
- お問い合わせ先
- 三井のリハウス志木センター三井不動産リアルティ(株)
-物件のおすすめポイント▼立地・東武東上線「朝霞台」駅 徒歩19分▼建物の特徴・2階建、間取り3SLDK・カースペース1台あり(※車種による)▼お部屋の特徴・吹き抜けのある開放感あふれるリビングダイニング・コミュニケーションを育むリビング階段・バルコニー2面あり、採光通風良好▼設備・家族との会話が弾む対面式キッチン・キッチンに勝手口あり・食器洗浄乾燥機・窓があり、換気しやすく明るい浴室・洗面所・1・2階トイレ付・浴室換気乾燥機■ご希望の住まい探しをお手伝いします━━━━━・・・物件の詳細・ご相談はお気軽にお問い合わせください。
-
価格返済シミュレーション 5880万円
-
土地面積108.27m2(32.75坪)(登記)
-
建物面積119.88m2(36.26坪)(登記)
-
間取り3SLDK
-
建物構造・規模木造2階建
-
築年月2013年10月
(築12年2ヶ月) -
駐車場有
-
物件
タイプ中古住宅 -
住所埼玉県朝霞市三原5 地図
-
交通東武東上線 朝霞台駅 徒歩19分
| 私道面積 | - |
|---|---|
| 接道状況 | 北西4.5m接面7.8m 北東4.8m接面7.1m |
| 用途地域 | 1種中高 |
| 建ぺい率 / 容積率 | 60% / 200% |
| 地目 | - |
| 土地権利 | 所有権 |
| 借地期間・地代 | - |
| 都市計画 | - |
| 現況 | - |
| 引渡可能時期 | 相談 |
| 情報提供元 | SUUMO [030Z78698567] |
| 情報公開日 | |
| 情報更新日 | |
| 次回更新予定日 | 随時 |
地図
設備など
設備
| バス・トイレ | 浴室乾燥機、風呂、トイレ2ヶ所 |
|---|---|
| キッチン | システムキッチン、食器洗浄乾燥機 |
| 収納 | 収納スペース |
| セキュリティ | モニタ付インターホン |
| 室内設備 | 衣類乾燥機 |
| 建物設備 | バルコニー、都市ガス、庭、2面バルコニー、複層ガラス |
| その他 | 上水道、本下水 |
備考
<物件名>三原5(朝霞台駅) 5880万円/<駐車場>カースペース/<土地権利>所有権/<間取り>3LDK+S(納戸)/<その他制限事項>角地緩和により70%に緩和されます。/<特徴>【三井のリハウス志木センター】カースペース1台分あり2階建3SLDK、スーパー 徒歩10分以内・システムキッチン・浴室乾燥機・陽当り良好・和室
販売戸数:1戸
法令等制限:※建物面積119.88平米には車庫部分17.28平米が含まれています。 ※清掃施設1.82平米のうち持分2万6768分の2868あり※建ぺい率は
続きを見る
販売戸数:1戸
法令等制限:※建物面積119.88平米には車庫部分17.28平米が含まれています。 ※清掃施設1.82平米のうち持分2万6768分の2868あり※建ぺい率は
特記事項
日当り良好・浴室1坪以上
省エネ性能
| エネルギー消費性能 | - |
|---|---|
| 断熱性能 | - |
| 目安光熱費 | - |
- お問い合わせ先
- 三井のリハウス志木センター三井不動産リアルティ(株)
不動産会社情報
お問い合わせ先
商号: 三井のリハウス志木センター三井不動産リアルティ(株)
免許番号:国土交通大臣(15)第000777号
所在地:埼玉県新座市東北2-37-15 ランカフィクス志木1階
TEL:00786-01794065
取引態様:専任媒介
管理コード:F42ASA1D この会社の他の物件情報を見る この不動産会社に相談したい
免許番号:国土交通大臣(15)第000777号
所在地:埼玉県新座市東北2-37-15 ランカフィクス志木1階
TEL:00786-01794065
取引態様:専任媒介
管理コード:F42ASA1D この会社の他の物件情報を見る この不動産会社に相談したい
この地域の暮らしデータ
朝霞市の人口などの統計情報
| 世帯数 | 62564世帯 |
|---|---|
| 人口総数 | 144964人 |
| 転入者数 |
9648人 転入率(人口1000人当たり) 66.55人 |
| 転出者数 |
8570人 転出率(人口1000人当たり) 59.12人 |
| 土地平均価格 |
住宅地 245188円/m2 商業地 597000円/m2 |
朝霞市の結婚・育児の助成金
| 出産・子育て | |
|---|---|
| 子育て関連の独自の取り組み | 保護者の疾病等の理由により、家庭における児童の養育が一時的に困難になった場合に、里親宅において原則1週間以内の養育をするショートステイ事業の実施。 |
| 出産祝い |
あり
|
| 公立保育所数 |
11ヶ所 0歳児保育を実施 6ヶ所 |
| 私立保育所数 |
34ヶ所 0歳児保育を実施 30ヶ所 |
| 保育所入所待機児童数 | 17人 |
| 認定こども園数 | 2園 |
| 預かり保育実施園数-公立 | - |
| 預かり保育実施園数-私立 | 8園 |
| 学校給食 | 【小学校】完全給食【中学校】完全給食 |
| 公立中学校の学校選択制 | 実施(希望者のみ実施。年度によって募集人数の変更あり) |
| 子ども・学生等医療費助成<通院>対象年齢 | 18歳3月末まで |
| 子ども・学生等医療費助成<入院>対象年齢 | 18歳3月末まで |
朝霞市の治安・ごみ収集情報
| 公共料金・インフラ | |
|---|---|
| ガス料金(22m3使用した場合の月額) | 東京瓦斯株式会社(東京地区等)3926円 大東ガス株式会社4335円 |
| 水道料金(口径20mmで20m3の月額) | 朝霞市2530円 |
| 下水道料金(20m3を使用した場合の月額) | 朝霞市1155円 |
| 下水道普及率 | 97.9% |
| 安心・安全 | |
| 建物火災出火件数 |
19件 人口10000人当たり 1.35件 |
| 刑法犯認知件数 |
791件 人口1000人当たり 5.61件 |
| ハザード・防災マップ | あり |
| 医療 | |
| 一般病院総数 | 3ヶ所 |
| 一般診療所総数 | 83ヶ所 |
| 小児科医師数 |
16人 小児人口10000人当たり 8.45人 |
| 産婦人科医師数 |
1人 15~49歳女性人口1万人当たり 0.31人 |
| 介護保険料基準額(月額) | 6550円 |
| ごみ | |
| 家庭ごみ収集(可燃ごみ) |
無料
|
| 家庭ごみの分別方式 | 3分別16種〔可燃ごみ 不燃ごみ(不燃ごみ、有害ごみ[蛍光灯・電球、乾電池、水銀体温計、カセットボンベ・スプレー缶、ライター]) 資源(びん、かん、ペットボトル、新聞、ダンボール、紙パック、雑誌・雑がみ、布類、プラスチック資源)〕 拠点回収:使用済小型家電 |
| 家庭ごみの戸別収集 | 一部実施(日常、介助又は介護を必要とするおおむね65歳以上の者。日常、介助又は介護を必要とする障害者) |
| 粗大ごみ収集 |
あり
|
| 生ごみ処理機助成金制度 |
なし 上限金額 - 上限比率 - |
朝霞市の住まいの給付金
暮らしデータ提供元:生活ガイド.com
※行政機関により公表していない地域及びデータがございます。東京23区以外の政令指定都市は、市全体のデータとして表示しています。
※提供データには細心の注意を払っておりますが、調査後に変更がある場合があります。 最新の情報につきましては各市区役所までお問い合わせいただくか、自治体HPなどをご確認ください。
※提供データには細心の注意を払っておりますが、調査後に変更がある場合があります。 最新の情報につきましては各市区役所までお問い合わせいただくか、自治体HPなどをご確認ください。
この物件を見た人はこんな物件も
見ています
住宅ローンシミュレーション
月々の返済額からの購入額の計算と、購入額からの返済額の計算ができます。
住宅ローンをお考えの方へ
最もおトクであなたにぴったりな
住宅ローンをみてみよう!
お気に入りの物件を見逃さない!
プッシュ通知で最新の物件情報が届く






