神奈川県横浜市戸塚区汲沢6 踊場駅 中古一戸建て・中古住宅
4LDK / 踊場駅
- 情報提供元
- SUUMO
価格2980万円
-
外観
-
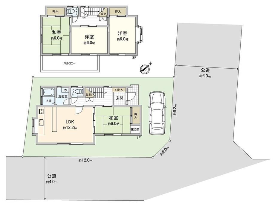
2980万円、4LDK、土地面積98.49m2、建物面積87.36m2
-
外観
-
外観
-
画像
-
サミットストア踊場駅前店まで1130m 徒歩15分。
-
画像
-
今美屋ストアーまで850m 徒歩11分。
-
画像
-
ドラッグセイムス戸塚汲沢店まで850m 徒歩11分。
-
画像
-
ローソン泉中田南五丁目店まで550m 徒歩7分。
-
ファミリーマート汲沢八丁目店まで850m 徒歩11分。
-
踊場駅前郵便局まで990m 徒歩13分。
-
葛野小学校まで580m 徒歩8分。「未来を拓く 健やかな 葛野の子」を教育スローガンに掲げています。
-
この物件が気になりましたか? 物件や周辺施設などの詳しい情報は
問合せをすることで確認できます
- お問い合わせ先
- 三井のリハウス藤沢センター三井不動産リアルティ(株)
-物件のおすすめポイント-▼立地・横浜市ブルーライン「踊場」駅 徒歩13分▼特徴・お料理に集中しやすい壁付キッチン・1階和室は2WAYで多彩に利用可能・各水回りに自然換気可能な窓を設置・2部屋に面する南東向きバルコニー、陽当り良好・駐車スペース1台分有(車種による)▼設備・各階にトイレ有、来客時も気兼ねなく使用可能▼周辺環境・葛野小学校 徒歩8分(約580m)・中田町葛野公園 徒歩4分(約320m)・ローソン泉中田南五丁目店 徒歩7分(約550m)■ ご希望の住まい探しをお手伝いします ━━━━━・・・物件の詳細・ご相談はお気軽にお問い合わせください。
-
価格返済シミュレーション 2980万円
-
土地面積98.49m2(29.79坪)(登記)
-
建物面積87.36m2(26.42坪)(登記)
-
間取り4LDK
-
建物構造・規模木造2階建
-
築年月1989年9月
(築36年2ヶ月) -
駐車場有
-
物件
タイプ中古住宅 -
住所神奈川県横浜市戸塚区汲沢6 地図
-
交通ブルーライン 踊場駅 徒歩13分
| 私道面積 | - |
|---|---|
| 接道状況 | 南東4m接面12m 北東6m接面6.2m 二方道路 |
| 用途地域 | 1種住居 |
| 建ぺい率 / 容積率 | 60% / 200% |
| 地目 | - |
| 土地権利 | 所有権 |
| 借地期間・地代 | - |
| 都市計画 | - |
| 現況 | - |
| 引渡可能時期 | 相談 |
| 情報提供元 | SUUMO [030Z78591081] |
| 情報公開日 | |
| 情報更新日 | |
| 次回更新予定日 | 随時 |
地図
設備など
設備
| バス・トイレ | 風呂、トイレ2ヶ所 |
|---|---|
| 建物設備 | 都市ガス |
| その他 | 上水道、本下水 |
備考
<物件名>汲沢6(踊場駅) 2980万円/<駐車場>カースペース/<土地権利>所有権/<間取り>4LDK/<特徴>■三井のリハウス■南東・北東角地で開放感有全居室6帖以上の間取り、陽当り良好・前道6m以上・角地・和室・トイレ2ヶ所
販売戸数:1戸
法令等制限:準防火地域、※法22条区域、宅地造成等工事規制区域、第4種高度地区※敷地内に浄化槽の埋設有※建物の解約不適合責任は免責となります。
続きを見る
販売戸数:1戸
法令等制限:準防火地域、※法22条区域、宅地造成等工事規制区域、第4種高度地区※敷地内に浄化槽の埋設有※建物の解約不適合責任は免責となります。
特記事項
日当り良好・角地
省エネ性能
| エネルギー消費性能 | - |
|---|---|
| 断熱性能 | - |
| 目安光熱費 | - |
- お問い合わせ先
- 三井のリハウス藤沢センター三井不動産リアルティ(株)
不動産会社情報
お問い合わせ先
商号: 三井のリハウス藤沢センター三井不動産リアルティ(株)
免許番号:国土交通大臣(15)第000777号
所在地:神奈川県藤沢市南藤沢3-12 クリオ藤沢駅前4階
TEL:00786-01793951
取引態様:専任媒介
管理コード:F90ARA1F この会社の他の物件情報を見る この不動産会社に相談したい
免許番号:国土交通大臣(15)第000777号
所在地:神奈川県藤沢市南藤沢3-12 クリオ藤沢駅前4階
TEL:00786-01793951
取引態様:専任媒介
管理コード:F90ARA1F この会社の他の物件情報を見る この不動産会社に相談したい
この地域の暮らしデータ
横浜市の人口などの統計情報
| 世帯数 | 1744208世帯 |
|---|---|
| 人口総数 | 3752969人 |
| 転入者数 |
217258人 転入率(人口1000人当たり) 57.89人 |
| 転出者数 |
201570人 転出率(人口1000人当たり) 53.71人 |
| 土地平均価格 |
住宅地 254434円/m2 商業地 1043863円/m2 |
横浜市の結婚・育児の助成金
| 出産・子育て | |
|---|---|
| 子育て関連の独自の取り組み | 横浜市私立幼稚園等預かり保育事業(横浜市が定めた基準(実施日、時間、職員配置等)を満たし、横浜市の認定を受けた幼稚園・認定こども園が実施する事業。市内在住の園児の保護者が就労や病気等で、園の正規教育時間の前後に家庭で保育ができない場合に、利用可能。3歳児~5歳児は無料、満3歳児は(a)私学助成を受ける幼稚園の場合、月額9,000円、(b)新制度に移行した園の場合、0円~9,000円)。 |
| 出産祝い |
あり
|
| 公立保育所数 |
56ヶ所 0歳児保育を実施 41ヶ所 |
| 私立保育所数 |
813ヶ所 0歳児保育を実施 716ヶ所 |
| 保育所入所待機児童数 | 5人 |
| 認定こども園数 | 70園 |
| 預かり保育実施園数-公立 | - |
| 預かり保育実施園数-私立 | 213園 |
| 学校給食 | 【小学校】完全給食【中学校】家庭弁当等・業者弁当との選択制/デリバリー形式[運搬:ランチボックス、内容:完全給食] |
| 公立中学校の学校選択制 | 一部実施(特定地域選択制[特別調整通学区域]) |
| 子ども・学生等医療費助成<通院>対象年齢 | 中学校卒業まで |
| 子ども・学生等医療費助成<入院>対象年齢 | 中学校卒業まで |
横浜市の治安・ごみ収集情報
| 公共料金・インフラ | |
|---|---|
| ガス料金(22m3使用した場合の月額) | 東京瓦斯株式会社(東京地区等)3926円 |
| 水道料金(口径20mmで20m3の月額) | 横浜市3017円 |
| 下水道料金(20m3を使用した場合の月額) | 横浜市2035円 |
| 下水道普及率 | 100.0% |
| 安心・安全 | |
| 建物火災出火件数 |
438件 人口10000人当たり 1.16件 |
| 刑法犯認知件数 |
16059件 人口1000人当たり 4.25件 |
| ハザード・防災マップ | あり |
| 医療 | |
| 一般病院総数 | 113ヶ所 |
| 一般診療所総数 | 3201ヶ所 |
| 小児科医師数 |
682人 小児人口10000人当たり 15.98人 |
| 産婦人科医師数 |
346人 15~49歳女性人口1万人当たり 4.58人 |
| 介護保険料基準額(月額) | 6620円 |
| ごみ | |
| 家庭ごみ収集(可燃ごみ) |
無料
|
| 家庭ごみの分別方式 | 7分別9種〔燃やすごみ 燃えないごみ スプレー缶 乾電池 プラスチック製容器包装 缶・びん・ペットボトル(缶、びん、ペットボトル) 小さな金属類〕 |
| 家庭ごみの戸別収集 | 一部実施(【ふれあい収集】家庭ごみ・粗大ごみを集積場所まで持ち出すことができない高齢者や障害のある方などを対象にごみ出しの支援を実施。【狭あい道路収集】道路が狭く収集車が通行することができないため、集積場所が自宅近くに設けられない地域において、軽四輪車でごみを収集) |
| 粗大ごみ収集 |
あり
|
| 生ごみ処理機助成金制度 |
なし 上限金額 - 上限比率 - |
横浜市の住まいの給付金
暮らしデータ提供元:生活ガイド.com
※行政機関により公表していない地域及びデータがございます。東京23区以外の政令指定都市は、市全体のデータとして表示しています。
※提供データには細心の注意を払っておりますが、調査後に変更がある場合があります。 最新の情報につきましては各市区役所までお問い合わせいただくか、自治体HPなどをご確認ください。
※提供データには細心の注意を払っておりますが、調査後に変更がある場合があります。 最新の情報につきましては各市区役所までお問い合わせいただくか、自治体HPなどをご確認ください。
この物件を見た人はこんな物件も
見ています
住宅ローンシミュレーション
月々の返済額からの購入額の計算と、購入額からの返済額の計算ができます。
住宅ローンをお考えの方へ
最もおトクであなたにぴったりな
住宅ローンをみてみよう!
お気に入りの物件を見逃さない!
プッシュ通知で最新の物件情報が届く






