千葉県柏市松ケ崎 北柏駅 中古一戸建て・中古住宅
3LDK / 北柏駅
- 情報提供元
- SUUMO
価格3490万円
-
外観
-
3490万円、3LDK、土地面積120.87m2、建物面積93.77m2 全12邸の旧開発分譲地内
-
◇全12棟のポラス旧分譲地◇当社売主!ポラスにてリフォーム!(2025年4月完了)保証継承可能!
-
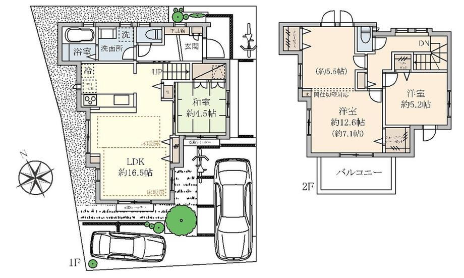
LDK約16.5帖 家族とのコミュニケーションが増えるリビング階段
-
足元から体を温めるLD床暖房付き
-
画像
-
家族やゲストとの対話を楽しみながらキッチンワークがこなせる開放的な対面式キッチン
-
画像
-
画像
-
画像
-
画像
-
柏市立柏第四小学校まで1000m
-
画像
-
電動シャッターなど充実した設備
-
お食事後の時間を有効に使える食洗機付き
-
画像
-
柏市立柏第五中学校まで1300m
-
画像
-
モラージュ柏まで650m
-
画像
-
柏厚生総合病院まで1800m
-
この物件が気になりましたか? 物件や周辺施設などの詳しい情報は
問合せをすることで確認できます
- お問い合わせ先
- (株)中央住宅ポラス住まいの情報館 南柏営業所
◆全12邸の旧開発分譲地内◆足元から体を温めるLD床暖房付き◆お食事後の時間を有効に使える食洗機付き◆開け閉めが楽々電動シャッター◆充実の設備◆周辺に商業施設多数あり、生活環境良好◆季節の衣類、小物や雑貨も収納可能なアイテム選びが楽しくなるウォークインクローゼットあり◆全室2面採光の明るい室内◆リビングと和室が隣接しており客間やお昼寝スペースとしてもお使いいただけます◆家族やゲストとの対話を楽しみながらキッチンワークがこなせる開放的な対面式キッチン◆複数路線2駅利用可能と各方面へのアクセスもスムーズ
-
価格返済シミュレーション 3490万円
-
土地面積120.87m2(36.56坪)(登記)
-
建物面積93.77m2(28.36坪)(登記)
-
間取り3LDK
-
建物構造・規模木造2階建
-
築年月2019年3月
(築6年8ヶ月) -
駐車場有
-
物件
タイプ中古住宅 -
住所千葉県柏市松ケ崎 地図
-
交通JR常磐線 北柏駅 徒歩23分
JR常磐線 柏駅 徒歩30分
| 私道面積 | - |
|---|---|
| 接道状況 | 南6.2m 北5.5m |
| 用途地域 | 1種低層 |
| 建ぺい率 / 容積率 | 60% / 150% |
| 地目 | - |
| 土地権利 | 所有権 |
| 借地期間・地代 | - |
| 都市計画 | - |
| 現況 | - |
| 引渡可能時期 | 相談 |
| 情報提供元 | SUUMO [030Z78590772] |
| 情報公開日 | |
| 情報更新日 | |
| 次回更新予定日 | 随時 |
地図
設備など
設備
| バス・トイレ | トイレ、浴室乾燥機、温水洗浄便座、風呂、トイレ2ヶ所 |
|---|---|
| キッチン | システムキッチン、対面K、浄水器、食器洗浄乾燥機 |
| 収納 | 収納スペース、ウォークインクローゼット、床下収納 |
| 室内設備 | 床暖房、衣類乾燥機 |
| 建物設備 | 都市ガス |
| 駐車場・駐輪場 | 駐車場2台分 |
| 特徴 | リフォーム |
| その他 | 上水道、本下水 |
リフォーム履歴
2025年4月完了
内装リフォーム:壁
その他:畳交換
2025年4月完了
その他リフォーム:外壁
※年月は一番古いリフォーム箇所を表します
続きを見る
内装リフォーム:壁
その他:畳交換
2025年4月完了
その他リフォーム:外壁
※年月は一番古いリフォーム箇所を表します
備考
<物件名>松ケ崎(北柏駅) 3490万円/<駐車場>カースペース/<土地権利>所有権/<間取り>3LDK/<リフォーム>●リフォーム:2025年4月完了(内装リフォーム:壁、その他:畳交換)、2025年4月完了(その他リフォーム:外壁)※年月は一番古いリフォーム箇所を表します/<特徴>◇全12邸のポラス旧分譲地◇ポラスにてリフォーム(2025年4月完了)、駐車2台可・内外装リフォーム・システムキッチン・浴室乾燥機・全居室収納
販売戸数:1戸
続きを見る
販売戸数:1戸
特記事項
駐車場2台分
省エネ性能
| エネルギー消費性能 | - |
|---|---|
| 断熱性能 | - |
| 目安光熱費 | - |
- お問い合わせ先
- (株)中央住宅ポラス住まいの情報館 南柏営業所
不動産会社情報
お問い合わせ先
商号: (株)中央住宅ポラス住まいの情報館 南柏営業所
免許番号:国土交通大臣(13)第002401号
所在地:千葉県柏市南柏中央6-3 S509KING205,105
TEL:0120-263966
取引態様:売主
管理コード:TMMY2501281 この会社の他の物件情報を見る この不動産会社に相談したい
免許番号:国土交通大臣(13)第002401号
所在地:千葉県柏市南柏中央6-3 S509KING205,105
TEL:0120-263966
取引態様:売主
管理コード:TMMY2501281 この会社の他の物件情報を見る この不動産会社に相談したい
この地域の暮らしデータ
柏市の人口などの統計情報
| 世帯数 | 187782世帯 |
|---|---|
| 人口総数 | 435529人 |
| 転入者数 |
23008人 転入率(人口1000人当たり) 52.83人 |
| 転出者数 |
19422人 転出率(人口1000人当たり) 44.59人 |
| 土地平均価格 |
住宅地 126272円/m2 商業地 540429円/m2 |
柏市の結婚・育児の助成金
| 出産・子育て | |
|---|---|
| 子育て関連の独自の取り組み | (1)初めて子育てをするお母さん同士が話し合い知識や学びを深めるBPプログラムや子育てに悩む保護者と一緒にお子さんのほめるポイントを見つけるペアレント・プログラムの実施。(2)子育てネットワーク事業(子育てフォーラム等)の実施。(3)LINE公式アカウントやInstagramアカウントの活用による子育て情報の提供。(4)乳幼児と保護者を主な対象としたこども図書館。 |
| 出産祝い |
なし
|
| 公立保育所数 |
22ヶ所 0歳児保育を実施 19ヶ所 |
| 私立保育所数 |
55ヶ所 0歳児保育を実施 54ヶ所 |
| 保育所入所待機児童数 | 0人 |
| 認定こども園数 | 20園 |
| 預かり保育実施園数-公立 | - |
| 預かり保育実施園数-私立 | 20園 |
| 学校給食 | 【小学校】完全給食【中学校】完全給食 |
| 公立中学校の学校選択制 | 未実施 |
| 子ども・学生等医療費助成<通院>対象年齢 | 18歳3月末まで |
| 子ども・学生等医療費助成<入院>対象年齢 | 18歳3月末まで |
柏市の治安・ごみ収集情報
| 公共料金・インフラ | |
|---|---|
| ガス料金(22m3使用した場合の月額) | 京葉瓦斯株式会社4515円 東日本ガス株式会社(我孫子・取手地区)5271円 京和ガス株式会社4162円 |
| 水道料金(口径20mmで20m3の月額) | 柏市3124円 |
| 下水道料金(20m3を使用した場合の月額) | 柏市2357円 |
| 下水道普及率 | 90.9% |
| 安心・安全 | |
| 建物火災出火件数 |
51件 人口10000人当たり 1.20件 |
| 刑法犯認知件数 |
2492件 人口1000人当たり 5.84件 |
| ハザード・防災マップ | あり |
| 医療 | |
| 一般病院総数 | 16ヶ所 |
| 一般診療所総数 | 270ヶ所 |
| 小児科医師数 |
69人 小児人口10000人当たり 12.67人 |
| 産婦人科医師数 |
36人 15~49歳女性人口1万人当たり 4.06人 |
| 介護保険料基準額(月額) | 5800円 |
| ごみ | |
| 家庭ごみ収集(可燃ごみ) |
無料
|
| 家庭ごみの分別方式 | 5分別17種〔資源品(古紙類[新聞紙、ダンボール、雑誌・ざつ紙、紙パック]、PETボトル、古着・古布類など、空カン類、空ビン類、金属類) 容器包装プラスチック類 可燃ごみ 不燃ごみ 有害ごみ(乾電池、バッテリー、蛍光灯、使い切ったライター、水銀含有物など)〕 拠点回収:小型家電 |
| 家庭ごみの戸別収集 | 一部実施(【ごみ出し困難者支援収集】一部地域のみ実施) |
| 粗大ごみ収集 |
あり
|
| 生ごみ処理機助成金制度 |
あり 上限金額 10000円 上限比率 33.3% |
柏市の住まいの給付金
暮らしデータ提供元:生活ガイド.com
※行政機関により公表していない地域及びデータがございます。東京23区以外の政令指定都市は、市全体のデータとして表示しています。
※提供データには細心の注意を払っておりますが、調査後に変更がある場合があります。 最新の情報につきましては各市区役所までお問い合わせいただくか、自治体HPなどをご確認ください。
※提供データには細心の注意を払っておりますが、調査後に変更がある場合があります。 最新の情報につきましては各市区役所までお問い合わせいただくか、自治体HPなどをご確認ください。
この物件を見た人はこんな物件も
見ています
住宅ローンシミュレーション
月々の返済額からの購入額の計算と、購入額からの返済額の計算ができます。
住宅ローンをお考えの方へ
最もおトクであなたにぴったりな
住宅ローンをみてみよう!
お気に入りの物件を見逃さない!
プッシュ通知で最新の物件情報が届く






