東京都小平市大沼町5 小平駅 中古一戸建て・中古住宅
3LDK / 小平駅
- 情報提供元
- SUUMO
価格3480万円
-
外壁張替
-
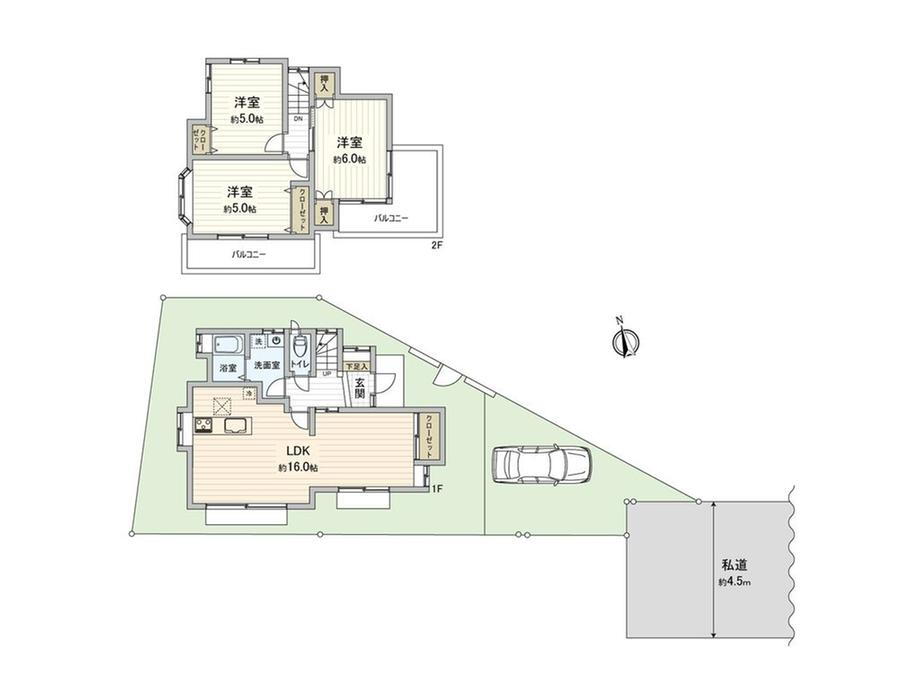
3480万円、3LDK、土地面積100.38m2、建物面積75.9m2 間取図
-
外壁張替
-
外壁張替
-
外壁張替
-
外壁張替
-
LDK
-
LDK
-
LDK
-
ユニットバス交換
-
システムキッチン交換
-
工事中
2025.9.28撮影 -
トイレ交換
-
小平市立小平第七小学校まで1320m 徒歩17分。
-
LDK
-
2階洋室
-
小平市立小平第六中学校まで1000m 徒歩13分。
-
2階洋室
-
食祭館あまいけまで570m 徒歩8分。
-
2階洋室
-
サンドラッグ小平大沼町店まで1040m 徒歩13分。
-
この物件が気になりましたか? 物件や周辺施設などの詳しい情報は
問合せをすることで確認できます
- お問い合わせ先
- 三井のリハウス田無センター三井不動産リアルティ(株)
-物件のおすすめポイント-▼立地・第一種低層住居専用地域▼特徴・LDKは3面からの採光が確保された設計・お料理中も会話が弾む対面式キッチン・水回り各所に窓有、自然換気可能・全居室に収納スペースを配置・雨天時の洗濯に重宝する浴室乾燥機付・駐車場有(車種による)▼2025年11月内外装リフォーム内容【張替】外壁、床、クロス、壁(一部)【交換】雨どい、キッチン、UB、トイレ、洗面台、建具(一部)▼周辺環境・スーパー「食祭館あまいけ」徒歩8分(約570m)■ ご希望の住まい探しをお手伝いします ━━━━━・・・物件の詳細・ご相談はお気軽にお問い合わせください。
-
価格返済シミュレーション 3480万円
-
土地面積100.38m2(30.36坪)(登記)
-
建物面積75.9m2(22.95坪)(登記)
-
間取り3LDK
-
建物構造・規模木造2階建
-
築年月1997年2月
(築28年9ヶ月) -
駐車場有
-
物件
タイプ中古住宅 -
住所東京都小平市大沼町5 地図
-
交通西武新宿線 小平駅 徒歩24分
| 私道面積 | - |
|---|---|
| 接道状況 | 南東4.5m接面2.1m |
| 用途地域 | 1種低層 |
| 建ぺい率 / 容積率 | 40% / 80% |
| 地目 | - |
| 土地権利 | 所有権 |
| 借地期間・地代 | - |
| 都市計画 | - |
| 現況 | - |
| 引渡可能時期 | 相談 |
| 情報提供元 | SUUMO [030Z78520538] |
| 情報公開日 | |
| 情報更新日 | |
| 次回更新予定日 | 随時 |
地図
設備など
設備
| バス・トイレ | トイレ、浴室乾燥機、温水洗浄便座、風呂 |
|---|---|
| キッチン | システムキッチン、対面K |
| 収納 | 収納スペース |
| 室内設備 | 洗面所、フローリング、シャンプードレッサ、衣類乾燥機 |
| 建物設備 | バルコニー、LPガス、2面バルコニー |
| 特徴 | リノベーション、リフォーム |
| その他 | 上水道、本下水 |
リフォーム履歴
2025年11月完了予定
水回り設備交換:キッチン・浴室・トイレ
内装リフォーム:壁・床
その他:全室クロス/建具/洗…
2025年11月完了予定
その他リフォーム:外壁・屋根
※年月は一番古いリフォーム箇所を表します
続きを見る
水回り設備交換:キッチン・浴室・トイレ
内装リフォーム:壁・床
その他:全室クロス/建具/洗…
2025年11月完了予定
その他リフォーム:外壁・屋根
※年月は一番古いリフォーム箇所を表します
備考
<物件名>大沼町5(小平駅) 3480万円/<駐車場>カースペース/<土地権利>所有権/<間取り>3LDK/<リフォーム>●リフォーム:2025年11月完了予定(水回り設備交換:キッチン・浴室・トイレ、内装リフォーム:壁・床、その他:全室クロス/建具/洗…)、2025年11月完了予定(その他リフォーム:外壁・屋根)※年月は一番古いリフォーム箇所を表します/<特徴>■三井のリハウス■バルコニー2ヶ所有、採光・通風良好全居室2面採光以上、スーパー 徒歩10分以内・内外装リフォーム・内装リフォーム・南向き・システムキッチン
販売戸数:1戸
続きを見る
販売戸数:1戸
特記事項
日当り良好・閑静な住宅街
省エネ性能
| エネルギー消費性能 | - |
|---|---|
| 断熱性能 | - |
| 目安光熱費 | - |
- お問い合わせ先
- 三井のリハウス田無センター三井不動産リアルティ(株)
不動産会社情報
お問い合わせ先
商号: 三井のリハウス田無センター三井不動産リアルティ(株)
免許番号:国土交通大臣(15)第000777号
所在地:東京都西東京市南町4-1-8 ネクステンド田無1F・2F
TEL:00786-01793729
取引態様:専任媒介
管理コード:FM7ARA14 この会社の他の物件情報を見る この不動産会社に相談したい
免許番号:国土交通大臣(15)第000777号
所在地:東京都西東京市南町4-1-8 ネクステンド田無1F・2F
TEL:00786-01793729
取引態様:専任媒介
管理コード:FM7ARA14 この会社の他の物件情報を見る この不動産会社に相談したい
この地域の暮らしデータ
小平市の人口などの統計情報
| 世帯数 | 91125世帯 |
|---|---|
| 人口総数 | 196913人 |
| 転入者数 |
11700人 転入率(人口1000人当たり) 59.42人 |
| 転出者数 |
10890人 転出率(人口1000人当たり) 55.30人 |
| 土地平均価格 |
住宅地 250688円/m2 商業地 336667円/m2 |
小平市の結婚・育児の助成金
| 出産・子育て | |
|---|---|
| 子育て関連の独自の取り組み | - |
| 出産祝い |
なし
|
| 公立保育所数 |
9ヶ所 0歳児保育を実施 4ヶ所 |
| 私立保育所数 |
38ヶ所 0歳児保育を実施 33ヶ所 |
| 保育所入所待機児童数 | 0人 |
| 認定こども園数 | 6園 |
| 預かり保育実施園数-公立 | - |
| 預かり保育実施園数-私立 | 9園 |
| 学校給食 | 【小学校】完全給食【中学校】完全給食 |
| 公立中学校の学校選択制 | 未実施 |
| 子ども・学生等医療費助成<通院>対象年齢 | 18歳3月末まで |
| 子ども・学生等医療費助成<入院>対象年齢 | 18歳3月末まで |
小平市の治安・ごみ収集情報
| 公共料金・インフラ | |
|---|---|
| ガス料金(22m3使用した場合の月額) | 東京瓦斯株式会社(東京地区等)3926円 |
| 水道料金(口径20mmで20m3の月額) | 東京都水道局2816円 |
| 下水道料金(20m3を使用した場合の月額) | 小平市1655円 |
| 下水道普及率 | 100.0% |
| 安心・安全 | |
| 建物火災出火件数 |
29件 人口10000人当たり 1.46件 |
| 刑法犯認知件数 |
1022件 人口1000人当たり 5.14件 |
| ハザード・防災マップ | あり |
| 医療 | |
| 一般病院総数 | 8ヶ所 |
| 一般診療所総数 | 136ヶ所 |
| 小児科医師数 |
66人 小児人口10000人当たり 26.29人 |
| 産婦人科医師数 |
15人 15~49歳女性人口1万人当たり 3.66人 |
| 介護保険料基準額(月額) | 6180円 |
| ごみ | |
| 家庭ごみ収集(可燃ごみ) |
有料
|
| 家庭ごみの分別方式 | 4分別19種〔燃やすごみ(燃やすごみ、枝木) 不燃ごみ 資源(ビン、カン、ペットボトル、金属製なべ・やかん・フライパン、スプレー缶・ガスカートリッジ缶、ライター、電池、蛍光管、水銀体温計・水銀血圧計、紙類[雑誌・雑がみ、シュレッダーくず、段ボール、新聞紙]、ふとん、古布類) プラスチック製容器包装〕 |
| 家庭ごみの戸別収集 | 実施 |
| 粗大ごみ収集 |
あり
|
| 生ごみ処理機助成金制度 |
あり 上限金額 30000円 上限比率 50.0% |
小平市の住まいの給付金
暮らしデータ提供元:生活ガイド.com
※行政機関により公表していない地域及びデータがございます。東京23区以外の政令指定都市は、市全体のデータとして表示しています。
※提供データには細心の注意を払っておりますが、調査後に変更がある場合があります。 最新の情報につきましては各市区役所までお問い合わせいただくか、自治体HPなどをご確認ください。
※提供データには細心の注意を払っておりますが、調査後に変更がある場合があります。 最新の情報につきましては各市区役所までお問い合わせいただくか、自治体HPなどをご確認ください。
この物件を見た人はこんな物件も
見ています
住宅ローンシミュレーション
月々の返済額からの購入額の計算と、購入額からの返済額の計算ができます。
住宅ローンをお考えの方へ
最もおトクであなたにぴったりな
住宅ローンをみてみよう!
お気に入りの物件を見逃さない!
プッシュ通知で最新の物件情報が届く






