東京都台東区橋場2 南千住駅 中古一戸建て・中古住宅
4LDK / 南千住駅
- 情報提供元
- SUUMO
価格14999万円
-
外観
-
1億4999万円、4LDK、土地面積78.2m2、建物面積202.19m2
-
オーケー橋場店まで450m
-
業務スーパー浅草店まで890m
-
くすりの福太郎橋場店まで520m
-
LaLaテラス南千住まで1420m
-
台東清川郵便局まで300m
-
区立石浜公園まで460m
-
台東区立石浜小学校まで540m
-
この物件が気になりましたか? 物件や周辺施設などの詳しい情報は
問合せをすることで確認できます
- お問い合わせ先
- 三井のリハウス南千住センター三井不動産リアルティ(株)
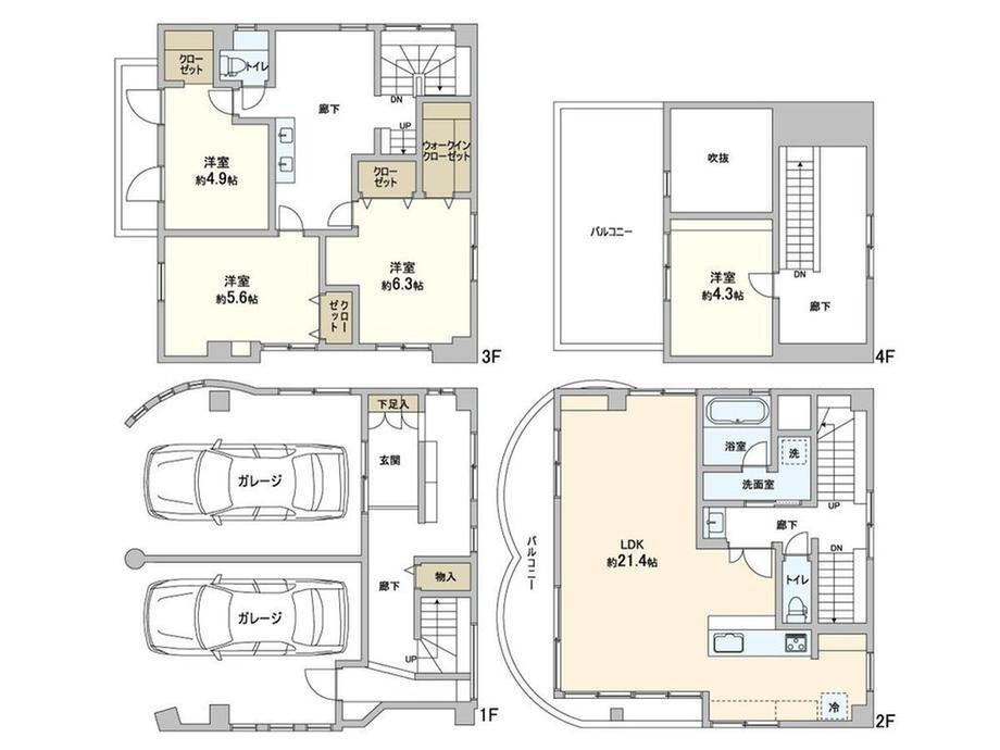
-物件のおすすめポイント-▼特徴・建物面積約61.16坪・プライバシーに配慮された2階リビング設計・主寝室約6.3帖はWIC有・3階廊下に洗面台を設置・ビルトインガレージ2台分有(車種による)▼設備・食洗機▼2026年1月内外装リフォーム内容【交換】キッチン、浴室、洗面化粧台、トイレ 等【貼替】全面クロス【その他】フローリング上張、外壁塗装 他▼周辺環境・スーパー「オーケー橋場店」徒歩6分(約450m)※建物面積に車庫面積42.41平米含む■ ご希望の住まい探しをお手伝いします ━━━━━・・・物件の詳細・ご相談はお気軽にお問い合わせください。
-
価格返済シミュレーション 14999万円
-
土地面積78.2m2(23.65坪)(実測)
-
建物面積202.19m2(61.16坪)(登記)
-
間取り4LDK
-
建物構造・規模鉄骨4階建
-
築年月1998年4月
(築27年7ヶ月) -
駐車場有
-
物件
タイプ中古住宅 -
住所東京都台東区橋場2 地図
-
交通東京メトロ日比谷線 南千住駅 徒歩15分
JR常磐線 南千住駅 徒歩17分
つくばエクスプレス 南千住駅 徒歩17分
| 私道面積 | - |
|---|---|
| 接道状況 | 北西4.9m接面5.8m 北東2.9m接面8.1m 南西2.8m接面7.9m 二方道路 |
| 用途地域 | 近隣商業 |
| 建ぺい率 / 容積率 | 80% / 400% |
| 地目 | - |
| 土地権利 | 所有権 |
| 借地期間・地代 | - |
| 都市計画 | - |
| 現況 | - |
| 引渡可能時期 | 2026年1月 |
| 情報提供元 | SUUMO [030Z78491957] |
| 情報公開日 | |
| 情報更新日 | |
| 次回更新予定日 | 随時 |
地図
設備など
設備
| バス・トイレ | 風呂、トイレ2ヶ所 |
|---|---|
| キッチン | システムキッチン、対面K、食器洗浄乾燥機 |
| 収納 | ウォークインクローゼット |
| 建物設備 | 都市ガス |
| 駐車場・駐輪場 | 駐車場2台分 |
| 特徴 | リノベーション、リフォーム |
| その他 | 上水道、本下水 |
リフォーム履歴
2026年1月完了予定
水回り設備交換:キッチン・浴室・トイレ
内装リフォーム:壁・床
その他:全室クロス/建具/洗…
2026年1月完了予定
その他リフォーム:外壁・屋根
※年月は一番古いリフォーム箇所を表します
続きを見る
水回り設備交換:キッチン・浴室・トイレ
内装リフォーム:壁・床
その他:全室クロス/建具/洗…
2026年1月完了予定
その他リフォーム:外壁・屋根
※年月は一番古いリフォーム箇所を表します
備考
<物件名>橋場2(南千住駅) 1億4999万円/<駐車場>車庫/<土地権利>所有権/<間取り>4LDK/<リフォーム>●リフォーム:2026年1月完了予定(水回り設備交換:キッチン・浴室・トイレ、内装リフォーム:壁・床、その他:全室クロス/建具/洗…)、2026年1月完了予定(その他リフォーム:外壁・屋根)※年月は一番古いリフォーム箇所を表します/<特徴>■三井のリハウス■角地に立つ鉄骨造4階建LDKはゆとりある約21.4帖、駐車2台可・2沿線以上利用可・LDK20畳以上・スーパー 徒歩10分以内・内外装リフォーム
販売戸数:1戸
続きを見る
販売戸数:1戸
特記事項
駐車場2台分・角地
省エネ性能
| エネルギー消費性能 | - |
|---|---|
| 断熱性能 | - |
| 目安光熱費 | - |
- お問い合わせ先
- 三井のリハウス南千住センター三井不動産リアルティ(株)
不動産会社情報
お問い合わせ先
商号: 三井のリハウス南千住センター三井不動産リアルティ(株)
免許番号:国土交通大臣(15)第000777号
所在地:東京都荒川区南千住7-1-1 ブランズタワー南千住1階
TEL:00786-01793606
取引態様:媒介
管理コード:FLMAGA34 この会社の他の物件情報を見る この不動産会社に相談したい
免許番号:国土交通大臣(15)第000777号
所在地:東京都荒川区南千住7-1-1 ブランズタワー南千住1階
TEL:00786-01793606
取引態様:媒介
管理コード:FLMAGA34 この会社の他の物件情報を見る この不動産会社に相談したい
この地域の暮らしデータ
台東区の人口などの統計情報
| 世帯数 | 121557世帯 |
|---|---|
| 人口総数 | 212388人 |
| 転入者数 |
25608人 転入率(人口1000人当たり) 120.57人 |
| 転出者数 |
19506人 転出率(人口1000人当たり) 91.84人 |
| 土地平均価格 |
住宅地 741667円/m2 商業地 1973458円/m2 |
台東区の結婚・育児の助成金
| 出産・子育て | |
|---|---|
| 子育て関連の独自の取り組み | (1)弱視等治療用眼鏡助成(9歳未満の児童が弱視等の治療用眼鏡を修理した場合及び保険で認められない期間に買い換えた場合、当該費用の一部を助成)。(2)にぎやか家庭応援プラン(第3子以降のお子さんの出生、小学校・中学校入学時に3万円相当のお祝品を贈呈)。(3)バスレクリエーション(ひとり親家庭を対象に日帰りのバスハイクを年2回実施)。 |
| 出産祝い |
あり
|
| 公立保育所数 |
11ヶ所 0歳児保育を実施 8ヶ所 |
| 私立保育所数 |
36ヶ所 0歳児保育を実施 26ヶ所 |
| 保育所入所待機児童数 | 0人 |
| 認定こども園数 | 5園 |
| 預かり保育実施園数-公立 | 10園 |
| 預かり保育実施園数-私立 | 7園 |
| 学校給食 | 【小学校】完全給食【中学校】完全給食 |
| 公立中学校の学校選択制 | 実施 |
| 子ども・学生等医療費助成<通院>対象年齢 | 18歳3月末まで |
| 子ども・学生等医療費助成<入院>対象年齢 | 18歳3月末まで |
台東区の治安・ごみ収集情報
| 公共料金・インフラ | |
|---|---|
| ガス料金(22m3使用した場合の月額) | 東京瓦斯株式会社(東京地区等)3926円 |
| 水道料金(口径20mmで20m3の月額) | 東京都水道局2816円 |
| 下水道料金(20m3を使用した場合の月額) | 東京都下水道局2068円 |
| 下水道普及率 | 100.0% |
| 安心・安全 | |
| 建物火災出火件数 |
65件 人口10000人当たり 3.07件 |
| 刑法犯認知件数 |
2805件 人口1000人当たり 13.27件 |
| ハザード・防災マップ | あり |
| 医療 | |
| 一般病院総数 | 7ヶ所 |
| 一般診療所総数 | 277ヶ所 |
| 小児科医師数 |
28人 小児人口10000人当たり 15.85人 |
| 産婦人科医師数 |
16人 15~49歳女性人口1万人当たり 3.13人 |
| 介護保険料基準額(月額) | 6900円 |
| ごみ | |
| 家庭ごみ収集(可燃ごみ) |
無料
|
| 家庭ごみの分別方式 | 3分別10種〔可燃ごみ 不燃ごみ 資源(新聞、雑誌・雑がみ、段ボール、紙パック、ペットボトル、缶、びん、食品発泡トレイ・カップ)〕 拠点回収:古布 ビデオテープ類 乾電池 廃食油 紙パック 小型家電 蛍光灯 |
| 家庭ごみの戸別収集 | 実施 |
| 粗大ごみ収集 |
あり
|
| 生ごみ処理機助成金制度 |
なし 上限金額 - 上限比率 - |
台東区の住まいの給付金
暮らしデータ提供元:生活ガイド.com
※行政機関により公表していない地域及びデータがございます。東京23区以外の政令指定都市は、市全体のデータとして表示しています。
※提供データには細心の注意を払っておりますが、調査後に変更がある場合があります。 最新の情報につきましては各市区役所までお問い合わせいただくか、自治体HPなどをご確認ください。
※提供データには細心の注意を払っておりますが、調査後に変更がある場合があります。 最新の情報につきましては各市区役所までお問い合わせいただくか、自治体HPなどをご確認ください。
この物件を見た人はこんな物件も
見ています
住宅ローンシミュレーション
月々の返済額からの購入額の計算と、購入額からの返済額の計算ができます。
住宅ローンをお考えの方へ
最もおトクであなたにぴったりな
住宅ローンをみてみよう!
お気に入りの物件を見逃さない!
プッシュ通知で最新の物件情報が届く






