埼玉県三郷市彦成2 新三郷駅 中古一戸建て・中古住宅
4LDK / 新三郷駅
- 情報提供元
- SUUMO
価格2490万円
-
■外壁・内装リフォームで綺麗なお部屋で新生活をスタートできます♪《2025.9.完了予定》
-
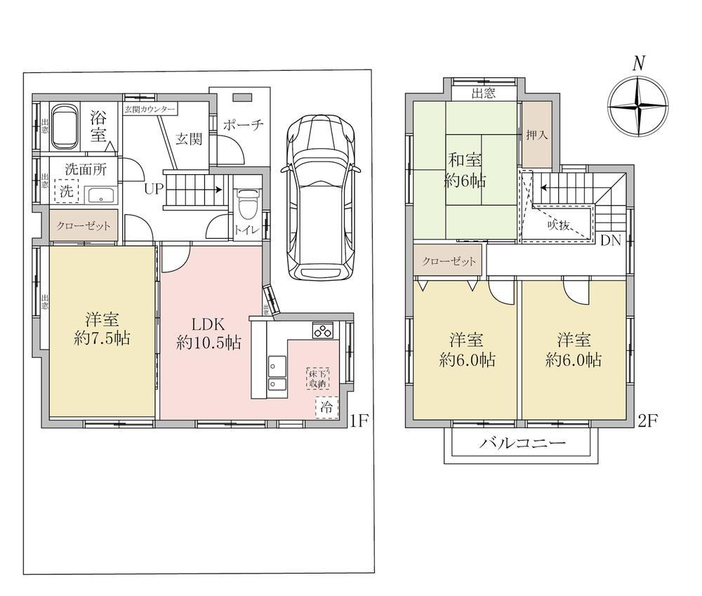
2490万円、4LDK、土地面積106.22m2、建物面積86.74m2 ■全居室6帖以上♪
-
■閑静な住宅街です
-
■2階、約6帖の和室
-
三郷市立彦郷小学校まで850m
-
三郷市立彦糸中学校まで1400m
-
彦成保育所まで650m
-
医療法人三愛会三愛会総合病院まで400m
-
イトーヨーカドー三郷店まで1100m
-
この物件が気になりましたか? 物件や周辺施設などの詳しい情報は
問合せをすることで確認できます
- お問い合わせ先
- (株)中央住宅不動産ソリューション事業部本社営業課一課
■首都高速道路・外環・常磐道利用可能な三郷ICまで約2km!■閑静な住宅街、南側に庭あり♪■ピアラシティ・ららぽーと・コストコ・IKEA等々大型店舗が充実☆■外壁・内装リフォーム!綺麗なお部屋で新生活をスタート♪備考/※建築基準法第22条区域――REFORM MENU――《2025年10月中旬完了予定》【交換】キッチン/レンジフード/ガスコンロ/洗面化粧台/トイレ/浴室/テレビモニター付きインターホン/給湯器/壁紙【その他】フローリング上張り/畳表替え/襖・障子張り替え/バルコニー/白蟻防除工事/外壁・屋根塗装物件の詳細は担当の≪まつもと≫までお問合せ下さい♪
-
価格返済シミュレーション 2490万円
-
土地面積106.22m2(32.13坪)(登記)
-
建物面積86.74m2(26.23坪)
-
間取り4LDK
-
建物構造・規模木造2階建
-
築年月1985年8月
(築40年3ヶ月) -
駐車場有
-
物件
タイプ中古住宅 -
住所埼玉県三郷市彦成2 地図
-
交通JR武蔵野線 新三郷駅 徒歩29分
| 私道面積 | - |
|---|---|
| 接道状況 | 北4.5m接面8.5m |
| 用途地域 | 1種住居 |
| 建ぺい率 / 容積率 | 60% / 180% |
| 地目 | - |
| 土地権利 | 所有権 |
| 借地期間・地代 | - |
| 都市計画 | - |
| 現況 | - |
| 引渡可能時期 | 相談 |
| 情報提供元 | SUUMO [030Z77807842] |
| 情報公開日 | |
| 情報更新日 | |
| 次回更新予定日 | 随時 |
地図
設備など
設備
| キッチン | システムキッチン |
|---|---|
| 建物設備 | LPガス |
| 特徴 | リフォーム |
| その他 | 上水道、本下水 |
リフォーム履歴
2025年10月完了
水回り設備交換:キッチン・浴室・トイレ
内装リフォーム:壁
2025年10月完了
その他リフォーム:外壁・屋根
※年月は一番古いリフォーム箇所を表します
続きを見る
水回り設備交換:キッチン・浴室・トイレ
内装リフォーム:壁
2025年10月完了
その他リフォーム:外壁・屋根
※年月は一番古いリフォーム箇所を表します
備考
<物件名>彦成2(新三郷駅) 2490万円/<駐車場>カースペース/<土地権利>所有権/<間取り>4LDK/<リフォーム>●リフォーム:2025年10月完了(水回り設備交換:キッチン・浴室・トイレ、内装リフォーム:壁)、2025年10月完了(その他リフォーム:外壁・屋根)※年月は一番古いリフォーム箇所を表します/<特徴>【ポラスの仲介】■大型商業施設が充実の「新三郷」駅利用!リフォーム渡し、システムキッチン・和室・整形地・2階建・全室2面採光
販売戸数:1戸
法令等制限:※建築基準法第22条区域
続きを見る
販売戸数:1戸
法令等制限:※建築基準法第22条区域
特記事項
整形地
省エネ性能
| エネルギー消費性能 | - |
|---|---|
| 断熱性能 | - |
| 目安光熱費 | - |
- お問い合わせ先
- (株)中央住宅不動産ソリューション事業部本社営業課一課
不動産会社情報
お問い合わせ先
商号: (株)中央住宅不動産ソリューション事業部本社営業課一課
免許番号:国土交通大臣(13)第002401号
所在地:埼玉県越谷市南越谷1-21-2
TEL:0120-153866
取引態様:一般媒介
管理コード:THB008982 この会社の他の物件情報を見る この不動産会社に相談したい
免許番号:国土交通大臣(13)第002401号
所在地:埼玉県越谷市南越谷1-21-2
TEL:0120-153866
取引態様:一般媒介
管理コード:THB008982 この会社の他の物件情報を見る この不動産会社に相談したい
この地域の暮らしデータ
三郷市の人口などの統計情報
| 世帯数 | 60711世帯 |
|---|---|
| 人口総数 | 141942人 |
| 転入者数 |
6348人 転入率(人口1000人当たり) 44.72人 |
| 転出者数 |
5965人 転出率(人口1000人当たり) 42.02人 |
| 土地平均価格 |
住宅地 120143円/m2 商業地 169750円/m2 |
三郷市の結婚・育児の助成金
| 出産・子育て | |
|---|---|
| 子育て関連の独自の取り組み | (1)予防接種自動スケジューラーのサービス提供(健康情報の配信を含む)。(2)大人の風しん・おたふくかぜ・造血細胞移植後のワクチン接種に関する予防接種費用の一部助成。(3)地域の栄養相談の実施。(4)市民団体の依頼を受け、地域で母子健康教育を実施。(5)妊娠届・母子健康手帳交付の来所、来所による妊娠・子育て相談、ハローベイビー教室、離乳食教室をインターネット上で予約できるサービス(かいちゃんとつぶちゃんの予約サポート)の提供。(6)こども家庭センター(妊娠・出産から子育て期にわたる総合相談窓口)を設置。(7)産後ケア事業の実施。(8)子育て移動支援事業の実施。(9)移動児童館の実施。 |
| 出産祝い |
あり
|
| 公立保育所数 |
6ヶ所 0歳児保育を実施 6ヶ所 |
| 私立保育所数 |
17ヶ所 0歳児保育を実施 16ヶ所 |
| 保育所入所待機児童数 | 0人 |
| 認定こども園数 | 6園 |
| 預かり保育実施園数-公立 | - |
| 預かり保育実施園数-私立 | 7園 |
| 学校給食 | 【小学校】完全給食【中学校】完全給食 |
| 公立中学校の学校選択制 | 実施(新入学時に実施、転入時は一部実施) |
| 子ども・学生等医療費助成<通院>対象年齢 | 18歳3月末まで |
| 子ども・学生等医療費助成<入院>対象年齢 | 18歳3月末まで |
三郷市の治安・ごみ収集情報
| 公共料金・インフラ | |
|---|---|
| ガス料金(22m3使用した場合の月額) | 東京瓦斯株式会社(東京地区等)3926円 東彩ガス株式会社(越谷・春日部地区)4893円 |
| 水道料金(口径20mmで20m3の月額) | 三郷市2563円 |
| 下水道料金(20m3を使用した場合の月額) | 三郷市2214円 |
| 下水道普及率 | 88.2% |
| 安心・安全 | |
| 建物火災出火件数 |
19件 人口10000人当たり 1.34件 |
| 刑法犯認知件数 |
1154件 人口1000人当たり 8.12件 |
| ハザード・防災マップ | あり |
| 医療 | |
| 一般病院総数 | 6ヶ所 |
| 一般診療所総数 | 67ヶ所 |
| 小児科医師数 |
14人 小児人口10000人当たり 7.98人 |
| 産婦人科医師数 |
10人 15~49歳女性人口1万人当たり 3.64人 |
| 介護保険料基準額(月額) | 6300円 |
| ごみ | |
| 家庭ごみ収集(可燃ごみ) |
無料
|
| 家庭ごみの分別方式 | 7分別11種〔可燃ごみ 不燃ごみ びん・かん ペットボトル 有害ごみ 資源古紙(新聞紙、雑誌、ダンボール、紙パック、ざつがみ) 布類〕 |
| 家庭ごみの戸別収集 | 未実施 |
| 粗大ごみ収集 |
あり
|
| 生ごみ処理機助成金制度 |
あり 上限金額 50000円 上限比率 50.0% |
三郷市の住まいの給付金
暮らしデータ提供元:生活ガイド.com
※行政機関により公表していない地域及びデータがございます。東京23区以外の政令指定都市は、市全体のデータとして表示しています。
※提供データには細心の注意を払っておりますが、調査後に変更がある場合があります。 最新の情報につきましては各市区役所までお問い合わせいただくか、自治体HPなどをご確認ください。
※提供データには細心の注意を払っておりますが、調査後に変更がある場合があります。 最新の情報につきましては各市区役所までお問い合わせいただくか、自治体HPなどをご確認ください。
この物件を見た人はこんな物件も
見ています
住宅ローンシミュレーション
月々の返済額からの購入額の計算と、購入額からの返済額の計算ができます。
住宅ローンをお考えの方へ
最もおトクであなたにぴったりな
住宅ローンをみてみよう!
お気に入りの物件を見逃さない!
プッシュ通知で最新の物件情報が届く






